Lauvåsen 34
6 750 000 kr
235 m²
3 soverom
Komplett salgsoppgave

FEVIK
Fantastisk beliggende enebolig på Fevik med magisk utsikt fra hage og stue- Garasje - Mulighet for kjøp av båtplass
Prisantydning
6 750 000 krOmkostninger
189 740 krTotalpris
6 939 740 kr
Pris
Bruksareal
266 m²BRA-I (internt bruksareal)
235 m²BRA-E (eksternt bruksareal)
31 m²TBA (terrasse-balkongareal)
41 m²
Areal
Etasje
2Byggeår
1967Soverom
3 soveromBad
1 badTomteareal
1 494 m² (eiet)Type
Enebolig - FrittliggendeEierform
EietFasiliteter
Garasje/P-plass og Balkong/Terrasse
Nøkkelinfo
Unngå doble boligrenter
Vi tilbyr gunstig forsikring.
Vurderer du utleie?
Få et tilbud fra Utleie KrogsveenHva koster lånet?
Sjekk estimert lånekostnadBeskrivelse
Kort om eiendommen
Innhold og byggemåte
Innhold og byggemåte
Eiendommen
Lauvåsen 34, 4870 FEVIK
Kommunenummer 4202, gårdsnummer 44, bruksnummer 181, ideell andel 1/1
Innhold
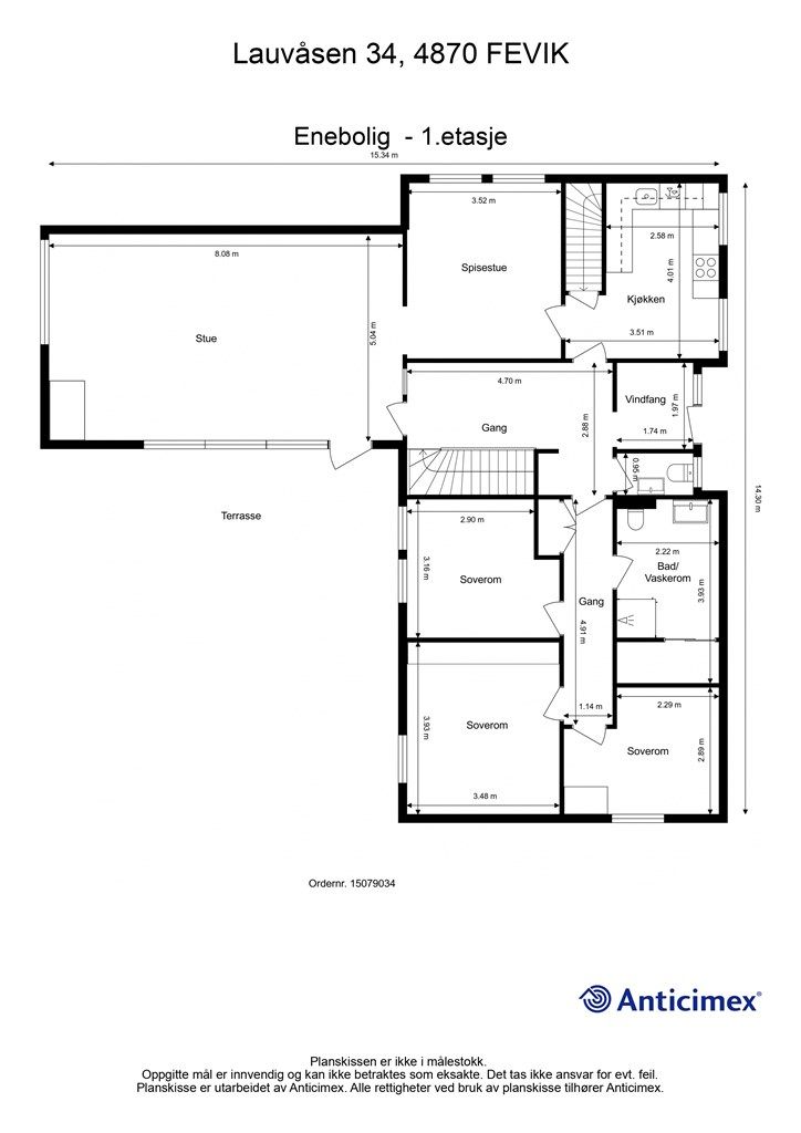
Totalt bruksareal BRA: 266 kvm
BRA-i:
Kjeller 93 kvm: To ganger, stue/hobbyrom, kjølerom og fire boder (et brukt som kontor).
1. etasje 142 kvm: Vindfang, to ganger, toalettrom, bad/vaskerom, tre soverom, kjøkken, trapperom, spisestue og stue.
BRA-e:
1. etasje 31 kvm: Garasje.
Terrasse- og balkongareal (TBA):
1. etasje 41 kvm: Terrasse.
Det gjøres spesielt oppmerksom på at det ikke er funnet dokumentasjon på at kontor og stue i kjelleren er søkt om, eller godkjent for varig opphold. Takhøyden i stuen er målt til 2,04 meter og på kontoret til 2,05 meter.
Vinduene i kjelleren oppfyller ikke kravene til rømningsvindu, og boligen mangler derfor tilstrekkelig antall godkjente rømningsveier.
Vedlagte plantegninger er ikke målbare. De oppgitte arealer er hentet fra rapport med befaringsdato 11.02.2026 utført av Anticimex AS v/Halvard Grina.
Byggemåte
Tilstandsrapporten er inntatt i salgsoppgaven. Rapporten inneholder informasjon om avvikene og konsekvensen av disse. Ettersom kjøper regnes å være kjent med forhold som tydelig fremgår av tilstandsrapporten, oppfordres du til å sette deg grundig inn i rapporten i sin helhet.
Enebolig med kjeller og 1. etasje, oppført i 1967. Boligen er oppført med grunnmur av betong, yttervegger og etasjeskillere av trekonstruksjoner, og har et saltak i trekonstruksjon. Yttertaket er tekket med betongtakstein med et undertak av papp, og oppgraderinger ble utført ca. 1990. I kjelleren er det ett vindu med karmer av plast og to-lags glass fra 2019, fem vinduer med karmer av tre og to-lags glass fra 1987, og ett vindu med karmer av tre og ett-lags glass fra byggeår. I 1. etasje er det ett vindu med karmer av tre og ett-lags glass fra byggeår, elleve vinduer med karmer av tre og to-lags glass fra byggeår-1987/1988, ett fra 2014 og to fra 2011. Ytterdør i kjeller er med karmer av tre fra byggeår. I 1. etasje er det en terrassedør med karmer av tre og to-lags glass fra 2012, og en ytterdør med karmer av tre og ett-lags glass fra byggeår.
Følgende bygningsdeler er gitt Tilstandsgrad 2 (TG2) — Avvik som kan kreve tiltak:
Våtrom - Bad/vaskerom 1.etasje
- Fallforhold (gulv): Lokalfallet i sluksonen er mindre enn anbefalt. Det er ikke påvist at vanntett sjikt har tilstrekkelig oppkant ved dørterskel for å kompensere for fall.
Kjøkken - 1.etasje
- Ventilasjon og avtrekk: Ventilasjonen vurderes til ikke å være tilstrekkelig (tilluft).
- Vannrør: Vannrør er vurdert til å ha en alder som tilsier at anbefalt brukstid er passert.
- Avløpsrør: Avløpsrør av støpejern er vurdert til å ha en alder som tilsier at anbefalt brukstid er passert.
Rom under terreng (kjeller, underetasje, sokkeletasje)
- Helhetsvurdering: Det er registrert sprekk og fuktsymptomer i et mindre område av himling i kjellerbod, som utgjør undersiden av utvendig betongtrapp ved inngangsparti. Forholdet antas å skyldes manglende eller utilstrekkelig tettesjikt i trappen, med påfølgende fuktvandring gjennom konstruksjonen. Det er påvist avleiring av salt- og kalkutslag på grunnmur/vegger mot terreng samt på synlig støpt gulv mot grunn. Forholdet skyldes fuktvandringer i konstruksjonen og indikerer mulige svakheter ved drenering og/eller manglende eller utilstrekkelig fuktsperre mot grunnen. Dette tyder på at tilsvarende forhold også kan gjøre seg gjeldende bak veggkonstruksjoner som er utlektet fra grunnmuren og opplektede gulv. Det er foretatt hulltaking og utført fuktmåling i utlektet veggkonstruksjon. Fuktinnholdet i tilgjengelig treverk ble målt til over 20 vektprosent, som tilsier et forhøyet fuktnivå.
Krypekjeller
- Innvendig inspeksjon: Synlige symptomer på fuktproblematikk, kokonger fra edderkopper er registrert. Det er utført fuktmåling i bjelkelag/etasjeskille. Fuktinnholdet i tilgjengelig treverk ble målt til mellom 16 og 20 vektprosent, som indikerer forhøyet fuktnivå. Det er foretatt stikktakning i tilgjengelig treverk for å undersøke etter råteskader, uten at dette ble påvist. Eksakt årsak er ikke kjent, men tilførsel av fuktighet fra utsiden og fuktoppsug fra grunnen vurderes som sannsynlige årsaker.
Loft - uinnredet / råloft
- Overflater vegger/undertak: Misfarging observeres stedvis i undertak/taktro (takkonstruksjonen), noe som tyder på negativ påvirkning av fukt. Det ble målt forhøyede fuktnivåer i berørte materialer. Fuktinnholdet i treverket ble målt til mellom 16 og 19 vektprosent, som er over grensen for forhøyet fuktnivå. Kondensproblematikk som følge av utilstrekkelig dampsperre mellom varm og kald sone vurderes som en sannsynlig hovedårsak.
- Kontroll av diffusjonssperre: Det ble funnet utettheter i dampsperre, som vurderes å ha medført misfarging i konstruksjonen.
Tekniske anlegg, VVS anlegg
- Vannrør (Sjekkpunkter utover det som er inkludert i andre rom): Vannrør av kobber fra byggeår er vurdert til å ha en alder som tilsier at anbefalt brukstid er passert.
- Avløpsrør. (Sjekkpunkter utover det som er inkludert i andre rom): Avløpsrør av plast fra bad, toalettrom og kjøkken i 1. etasje er tilkoblet eksisterende avløpsrør av støpejern. Avløpsrør av støpejern inkl. sluk i kjellerbod er vurdert til å ha en alder som tilsier at anbefalt brukstid er passert.
Yttervegger inkl. fasader og konstruksjon
- Fasader ink. kledning: Svertesopp er observert på deler av ytterkledningen. Det er vurdert å være begrenset spalte for lufting og drenering bak ytterkledningen. Det er ikke montert tilstrekkelig gnagersikring bak ytterkledningen.
Dører og vinduer
- Vinduer: Vinduer fra byggeår - 1987/1988 har en alder der fremtidig funksjon vurderes som usikker. Det er registrert symptomer på kondensproblematikk på flere vinduer/karmer. Punktert/sprukket vindu registrert i stue kjeller.
- Dører: Det er registrert fuktmerker i nedre del av ytterdør til kjeller. Ytterdør kjeller og ytterdør 1.etasje har nådd en alder og tilstand der fremtidig funksjon vurderes som usikker.
Yttertak
- Inspeksjonsmulighet: Taket er ikke fysisk inspisert grunnet is og snø (sikkerhetsmessige forhold). TG2 er valgt på bakgrunn av at taket kan være utsatt for slitasje, skader eller feil utførelse som ikke registreres grunnet begrenset tilkomst.
- Tekking (undertak, lekter og yttertekking): Taktekkingen viser begynnende tegn til slitasje og elde, men taktekkingen har nådd en alder og tilstand der fremtidig funksjon vurderes som usikker. Undertaket med tilhørende komponenter har en alder som tilsier at fremtidig funksjon er usikker.
Utvendige trapper
- Helhetsvurdering: Det er registrert fuktsymptomer i underkant av trapp, observert fra bod i kjeller. Forholdet indikerer at tettesjiktet i trappekonstruksjonen ikke er tilstrekkelig utført eller har sviktet, noe som medfører fuktvandring i konstruksjonen.
Grunnmur, fundamenter
- Grunnmur: Tegn til riss og enkelte sprekkdannelser observeres stedvis i grunnmuren, hovedsakelig ved luke til krypkjeller innvendig. Det er registrert at nett i ventiler i grunnmuren stedvis har rustet. Fuktsymptomer er registrert på innsiden av grunnmuren.
Drenering
- Helhetsvurdering: Dreneringen er nedgravd og skjult. Estimert teknisk levetid for drenssystem ligger mellom 20 - 60 år. Det ble observert symptomer på fuktinnsig i underetasjen som tilsier funksjonssvikt. Det kan ikke verifiseres at grunnmuren har utvendig fuktsperre. Stedvis lite terrengfall vekk fra grunnmuren. Dreneringens alder og observert tilstand tilsier at utbedringer/utskiftninger bør påregnes.
Forstøtningsmurer
- Forstøtningsmurer: Det er registrert enkelte sprekker i forstøtningsmur, samt indikasjoner på at deler av muren har forskjøvet seg/glidd ut i et område. Forholdet er observert i nedre del av innkjørselen. Ifølge selger har forholdet vært uendret i deres eiertid.
Stikkledninger og tanker
- Vann- og avløpsledninger (ink. stikkledninger): Alder tilsier at anbefalt brukstid og restlevetid på vann- og avløpsrør med tilliggende utstyr bør vies spesiell oppmerksomhet. Materialene er skjulte i grunnen og dermed er det kun alder som kan gi indikasjon på tilstand. TG2 settes for å belyse risiko.
Følgende bygningsdeler er ikke undersøkt (TGIU):
Kjølerom kjeller
- Tekniske anlegg: Kjøleaggregatet var ikke i bruk på befaringstidspunktet. Selger opplyser at aggregatet ikke har vært i drift på mange år, men at det fungerte ved siste gangs bruk. Dagens tekniske tilstand er ukjent, og ut fra alder må det påregnes usikker fremtidig funksjon og risiko for behov for reparasjon eller utskifting ved eventuell igangsetting.
Radon
- Radon: Det er ikke foretatt radonmåling i boligen og verdiene er derfor ukjent.
Yttertak
- Konstruksjon: Taket er en lukket konstruksjon fra stue, inspeksjon ikke mulig.
Terrasser / platting på terreng
- Terrasser på terreng (understøttet av bjelker / pilarer): Terrassen var tildekket av snø på befaringstidspunktet og lot seg derfor ikke inspisere i tilstrekkelig grad. Det ble ikke registrert synlige tegn til skader eller avvik på de områdene som var tilgjengelige for kontroll.
Grunnmur, fundamenter
- Byggegrunn: Byggegrunnens beskaffenhet er ukjent.
- Fundamenter: Fundamenter er naturlig skjult, og det er for øvrig ingen sikre og dokumenterte opplysninger om type fundamenter som huset har.
Helse, miljø og sikkerhet
Det er ikke etablert rekkverk/håndløper på begge sider av trapp fra kjøkken til kjeller, noe som medfører økt risiko for fallulykker. Rekkverkshøyden på forstøtningsmur mot kjellertrapp er under 1,0 meter og forstøtningsmur mot hage ved innkjørsel har ikke etablert rekkverk, forholdene medfører økt risiko for fallulykker. Det vurderes at deler av boligen mangler tilstrekkelige antall godkjente rømningsveier. Vinduer i kjeller oppfyller ikke de krav som gjelder for et rømningsvindu, og er dermed ikke tilrettelagt for rask og effektiv rømning.
Selger har fylt ut egenerklæringsskjema som er vedlagt salgsoppgaven i sin helhet som interessenter også må lese gjennom for en fullstendig oversikt. Her kommer et utdrag av utfylte punkter:
Selger har bodd i boligen siden 1986.
- Vannlekkasje 1994 på bad.
- Badet ble totalrenovert i 2014 av fagfolk.
- Det er utført arbeid på tak for over 30 år siden.
- I 2012 ble det satt opp ny terrasse, ny kledning sydvegg og enkelte andre steder. Nytt pipebeslag. Blending av soveromsdør. Skiftning av flere takrenner. Gjort av faglært.
- Det ble drenert rundt huset for over 30 år siden av faglært.
- Elektrisk arbeid ble gjort i forb. med nytt bad og garasje ca. 2014 av faglært.
- Nye panelovner, nytt lysarmatur med dimming i stua i 2025 av faglært.
- Noen rør ble skiftet i kjelleren i 2014 i forb. med nytt bad.
- Sukkermaur for flere år siden.
- Ny smart Høiax varmtvannsbereder i 2025. To nye vinduer i spisestua i 2012, utført av tømrer. Ny verandadør i 2012. I 1994 var det en vannlekkasje fra oppvaskmaskin på kjøkkenet. Da ble kjøkkenet totalrenovert/utbedret (forsikringssak). Vi satt inn nytt kjøkken i desember 2024 (oppgitt 2025 i skjema, men selger rettet dette til desember 2024 etter å ha funnet kvittering). I ca. 1989 ble det isolert i kjellerstue, kontor og hall i underetasjen. Garasjen er ny fra 2014, Igland hadde treverket og Asbjørnsen satt opp muren bl.a.
Ovennevnte er kun et utdrag fra rapporten og egenerklæringsskjema. Se supplerende tekst i tilstandsrapporten og egenerklæringsskjema for mer informasjon. Kjøper overtar ansvar og risiko for dette.
Moderniseringer og påkostninger
Følgende moderniseringer er foretatt de senere år:
2025:
- Nye kjøkkenfronter og litt påkostninger ellers på kjøkken (selger har rettet dette til desember 2024).
- Ny 187L varmtvannsbereder og dels nye kobberrør ved berederen.
- Installert 3 nye panelovner og nytt lysarmatur med dimming i stuen, utført av faglært.
2019:
- Ett vindu med karmer av plast og to-lags glass i kjeller.
2018:
- Installert AMS-måler. Samsvarserklæring foreligger.
2014:
- Renovert bad/vaskerom i 1. etasje, utført av Thorvald Hansen. Samsvarserklæring foreligger.
- Oppgradert toalettrom med nye vannrør (rør-i-rør).
- Installert vannrør av typen rør-i-rør system.
- Installert avløpsrør av plast.
- Ett vindu med karmer av tre og to-lags glass i 1. etasje.
- Bygget frittstående garasje og satt opp ny mur ved garasjen.
- Elektrisk arbeid i forbindelse med nytt bad og ny garasje, utført av faglært (Thorvald Hansen / Agder El Installasjon). Dokumentasjon foreligger.
- Noen nye rør i kjelleren i forbindelse med nytt bad, utført av faglært (Thorvald Hansen). Dokumentasjon foreligger.
2012:
- Ny terrasse, ny kledning sydvegg og andre steder, nytt pipebeslag og skifting av flere takrenner, utført av faglært (Peer Rødal Haugen). Dokumentasjon foreligger.
- To nye vinduer i spisestuen, utført av tømrer.
- Ny terrassedør med karmer av tre og to-lags glass.
2011:
- To vinduer med karmer av tre og to-lags glass i 1. etasje.
1994:
- Oppgradert kjøkken med nye overflater og dels vann- og avløpsrør, etter vannlekkasje fra oppvaskmaskin.
1990:
- Installert avløpsrør av plast.
- Oppgradert yttertak med betongtakstein og undertak av papp, utført av faglært (Byggmester Gunstein Lindtveit).
ca. 1989:
- Isolert i kjellerstue, kontor og hall i underetasjen.
1987:
- Fem vinduer med karmer av tre og to-lags glass i kjeller.
1980:
- Drenering rundt hele huset, utført av faglært (Olav Lindstøl).
Standard
Eneboligen har gjennomgått oppgraderinger og vedlikehold over tid. Bad/vaskerom i 1. etasje ble oppgradert i 2014. Kjøkkenet fikk nye overflater og dels vann- og avløpsrør i 1994, og ny innredning i 2025. Toalettrommet i 1. etasje fikk nye vannrør i 2014. Taktekkingen ble oppgradert rundt 1990. Dreneringen rundt boligen ble utført på 1980-tallet. Ytterkledning på sydvegg og andre steder, samt pipebeslag og flere takrenner, ble fornyet i 2012. To vinduer i spisestuen og en terrassedør ble skiftet i 2012. I kjellerstue, kontor og hall i underetasjen ble det isolert rundt 1989. En ny varmtvannsbereder ble installert i 2025. Det elektriske anlegget har fått oppgraderinger i 2014 i forbindelse med nytt bad og garasje, samt i 2025 med installasjon av tre nye panelovner og nytt lysarmatur i stuen. Garasjen er ny fra 2014.
OVERFLATER OG INNREDNINGER (oppsummert):
GULV:
Gulvoverflater er belagt med laminat, parkett, teppe, helte gulvbord, belegg og synlig støpt gulv.
INNERVEGGER:
Veggflater er utført med panel, tapét, malte flater, fliser og synlig grunnmur.
HIMLINGER:
Himlingsflater er utført med panel, malte flater, malte plater og downlights.
KJØKKEN:
Kjøkkeninnredningen har slette fronter og laminert benkeplate. Kjøkkenet er utstyrt med vask med ett-greps armatur, integrert oppvaskmaskin og komfyr med avtrekksvifte på vegg. Vannrør er av kobber, og avløpsrør er av plast og støpejern.
BAD/VASKEROM 1. ETASJE:
Rommet har flislagt gulv med gulvvarme og flislagte vegger. Himlingen er malt med downlights. Innredningen består av vegghengt servantinnredning med skuffer og ovenpåliggende servant med ett-greps armatur, samt speil og lys på vegg over servant. Det er et dusjhjørne med dører og vegghengt dusjarmatur (hånddusj og regndusj), samt vegghengt toalett. Vannrør er av typen rør-i-rør system. Det er opplegg for vaskemaskin og eget praktisk rom med skyvedør til vaskeromsdelen.
TOALETTROM 1. ETASJE:
Gulvet er belagt med laminat, vegger med tapét, og himling med malt panel. Rommet har servant med ett-greps armatur, speil og lys på vegg over servant, og et gulvstående toalett. Vannrør er av typen rør-i-rør og kobber. Ventilering skjer via naturlig avtrekksventil på vegg.
KJØLEROM KJELLER:
Kjølerommet har gulvflate belagt med belegg. Vegger- og himlingsflate er utført med panel. Rommet er utstyrt med et kjøleaggregat. Aggregatet var ikke i bruk under befaringen, og selger opplyser at det ikke har vært i drift på mange år, men fungerte ved siste gangs bruk. Dagens tekniske tilstand er ukjent, og usikker fremtidig funksjon må påregnes. Kjøper overtar ansvar og risiko for dette.
Løsøre og tilbehør
Taklampe i spisestuen, samt 2 leselamper på hovedsoverom medfølger ikke kjøpet.
Følgende hvitevarer medfølger i handelen: Kjøleskap, komfyr, oppvaskmaskin, tørketrommel, vaskemaskin, fryseboks og mikrobølgeovn.
Vi viser til liste fra Norges Eiendomsmeglerforbund som gjelder fra 01.01.2020 angående løsøre og tilbehør.
Oppvarming
Boligen varmes opp med elektrisitet og vedfyring. Det er gulvvarme på bad/vaskerom og panelovner i diverse rom. Vedfyring i ildsted plassert i stue.
Ferdigattest/brukstillatelse
Det foreligger ikke ferdigattest eller midlertidig brukstillatelse for eneboligen i kommunens arkiver. Boligen er registrert som tatt i bruk i matrikkelen.
Eneboligen er oppført i 1967. Det gjøres oppmerksom på at det ikke lenger utstedes ferdigattest på tiltak det er søkt om før 1998 jf. plan- og bygningsloven § 21-10. Kommunen vil ikke kreve ferdigattest for disse tiltakene og vil avvise eventuelle søknader. Bestemmelsen innebærer ikke at tiltak med manglende søknad blir lovlige, men at man ikke trenger å avslutte gamle byggesaker. Normalt sett kreves ferdigattest for alle søknadspliktige tiltak som gjøres etter plan- og bygningsloven.
Det er utstedt ferdigattest for oppføring av garasje datert 30.04.2024. Attesten gjelder for tiltak med igangsettingstillatelse fra 21.07.2014. Ferdigattesten kan fås ved henvendelse til megler.
Det foreligger godkjente og byggemeldte tegninger for eneboligen, datert 19.07.1965. Disse kan fås ved henvendelse til megler.
Dagens bruk av kjelleren avviker fra de godkjente tegningene. Rom som på tegningene er benevnt som hobbyrom og boder (tilleggsdel), er i dag innredet som stue og kontor (hoveddel). Det er ukjent om denne bruksendringen er omsøkt og godkjent av kommunen. Bruksendring fra tilleggsdel til hoveddel er normalt søknadspliktig.
Takhøyden i kjellerstuen er målt til 2,04 meter og på kontoret til 2,05 meter. Vinduene i kjelleren oppfyller ikke dagens krav til rømningsvei.
Dersom tiltaket avviker fra hva som er søkt om kan kommunen kreve at dagens forskrifter og lovverk legges til grunn ved omsøking. Disse setter blant annet krav til takhøyde, lysflate, ventilasjon, rømningsvei og brannsikring.
Kjøper overtar alt ansvar, kostnad og risiko for dette videre.
Tinglyste heftelser og rettigheter
Eiendommen overdras fri for pengeheftelser
2006/488143-1/200 12.10.2006 ELEKTRISKE KRAFTLINJER
Rettighetshaver: GLITRE NETT AS
ORG.NR: 982 974 011
Bestemmelse om ryddebelte
Eiendommens rettigheter:
1967/1571-1/37 11.07.1967 BESTEMMELSE OM BEBYGGELSE
Rettighet hefter i: KNR: 4202 GNR: 44 BNR: 166
Byggetillatelse gitt etter dispensasjon i henhold til Bygningsloven
Servituttene vil følge eiendommen. Kjøpers bank vil få prioritet etter ovennevnte heftelser og servitutter.
Eventuell adgang til utleie
Eiendommen har ikke separat utleieenhet. Det vil normalt være anledning til utleie av hele eiendommen eller enkeltrom, såfremt utleiearealet er bygningsmessig godkjent for varig opphold og har forsvarlige radonnivåer.
Diverse
Mulighet for kjøp av båtplass i Fevikkilen. Selger eier en båtplass på ca. 3 meter i Fevikkilen (plass nr. 156) som kan kjøpes med et tillegg i prisen, kr. 250.000,-. Plassen omtales som en innskuddsbrygge og ved kjøp vil eier få et innskuddsbevis fra styreleder. Ved kjøp av hus med båtplass kan overdragelse skje, da det er et krav at man eier eiendom på Fevik. Ved kjøp av båtplass må man følge havnereglementet og styrets krav, dette kan oversendes ved henvendelse.
Energimerking
Det er fylt ut en enkel energiattest for eiendommen. Det tas forbehold om mindre avvik i denne.
Beliggenhet og tomteforhold
Beliggenhet og tomteforhold
Beliggenhet
Lauvåsen 34 har en rolig og tilbaketrukket beliggenhet i et etablert og trygt nabolag som hovedsakelig består av eneboliger. Herfra er det gangavstand til alt en familie trenger i hverdagen. På bare noen minutter spaserer du til Feviktoppen, hvor du finner både Coop Extra, Meny, apotek og Fevik Senteret. Beliggenheten gir en perfekt kombinasjon av et fredelig bomiljø og umiddelbar nærhet til sentrale servicetilbud.
For barnefamilier er området ideelt. Med flere barnehager som Tykkåsen og Fevik barnehage innenfor en kort spasertur, blir logistikken enkel. Fevik skole, som dekker 1. til 10. trinn, ligger også i trygg gangavstand fra hjemmet. Fritiden kan fylles med aktiviteter i Fevikhallen eller på de lokale treningssentrene.
Fevik gir en unik tilgang til Sørlandets beste kvaliteter. Her strekker flotte turstier seg langs sjøen og gjennom skogen, og lysløypa i Fevikmarka inviterer til løpe- og skiturer. De varme sommerdagene nytes best på den anerkjente sandstranden Storesand, eller med et måltid på Strand Hotel Fevik. Området har en rik historie som ferieparadis, noe som fortsatt preger den avslappede atmosfæren. Med sin sentrale plassering midt mellom Grimstad og Arendal, og gode bussforbindelser fra Fevik øvre, er veien kort til et bredere utvalg av by- og kulturopplevelser.
Avstander:
Arendal sentrum ca. 12 km.
Grimstad sentrum ca. 7 km.
Kristiansand sentrum ca. 54 km.
Adkomst
Se kart eller kontakt megler for veibeskrivelse.
Barnehager, skoler og fritid
Barnehage:
Tykkåsen barnehage (0-5 år): 0.6 km
Fevik barnehage (1-5 år): 0.6 km
Solstrålen barnehage (0-5 år): 1 km
Skole:
Fevik skole (1-10 kl.): 0.7 km
Drottningborg videregående skole: 7.2 km
Dahlske videregående skole: 10.3 km
Informasjon om tilhørende skolekretser er hentet fra Prognosesenteret som dataleverandør, og tilhørigheten kan årlig endres av kommunen. Dersom skole- og barnehagetilbud er av betydning for kjøpet, ber vi om at det rettes en særskilt henvendelse til kommunen/bydelsadministrasjonen for oppdatert informasjon.
Beskrivelse av tomt
Eiet tomt på 1.494 m². Tomten er flott opparbeidet med stor plen, flott beplantning, bær og større biloppstillingsplass. Hagen er opparbeidet av gartner og eier, her finner man solbærbusker, markblomster, syrin, rips, Rhododendron, Hortensia, Jasmin, plommetre og kirsebærtre blant annet! Her kan man nyte sene kvelder med sol og kjenne brisen fra havet, i idyllisk hage.
Tomtegrensene er oppgitt som middels- til lite nøyaktighet, og informasjon fra Matrikkelen kan derfor avvike fra faktiske forhold. Dette skyldes eldre oppmåling.
Parkering
Eiendommen har en frittstående garasje fra 2014 med et bruksareal på 31 m². Det er mulighet for montering av ladeboks for elbil, men usikkert om det er lagt opp nok strøm til elbillader. Alternativt ved hovedinngang. Det er god plass til flere biler på egen tomt.
Vei, vann og avløp
Eiendommen er tilknyttet offentlig vann og avløp. Alle eiendommer som er tilknyttet offentlig vann og avløp har private stikkledninger, som vedlikeholdes for eiers egen regning. For ytterligere opplysninger om de private stikkledningene tar man kontakt med kommunen.
Eiendommen er tilknyttet offentlig vei.
Regulerings-og arealplaner
Eiendommen er uregulert, men omfattes av kommuneplanen for Grimstad, vedtatt 21.10.2019. Arealbruken er i planen avsatt til boligbebyggelse (nåværende).
Det er pågående planarbeid for Kommunedelplan Fevik (Bjønnmyra) med planident 363,400. Dette et stykke unna eiendommen.
Utsnitt av plan med tilhørende bestemmelser kan fås ved henvendelse til megler.
Økonomi
Økonomi
Kommunale utgifter
Kommunale avgifter inkluderer vann, avløp, renovasjon og feiing/tilsyn.
Fakturerte beløp for 2024 og 2025:
- Vann og avløp (2024): kr 10 279,-
- Renovasjon (2025): kr 4 818,-
Årsprognose for 2026:
- Vann (forbruk og abonnement): kr 2 497,-
- Avløp (forbruk og abonnement): kr 4 472,-
- Renovasjon: kr 5 108,-
- Feiing/Tilsyn: kr 723,-
- Eiendomsskatt: kr 7 441,-
Totalt: kr 20 241,-
Eiendommen har ikke vannmåler. Avgiftene for vann og avløp er basert på stipulert forbruk.
Andre løpende kostnader opplyst av selger:
- Strømforbruk (2025): kr 12 042,- (11 823 kWh). Norgespris er låst frem til 01.01.2027.
- Forsikring: kr 8 148,- per år (Tryg).
- TV/Internett: kr 1 500,- per måned (Fiber fra Telenor).
- Alarm: Abonnement følger ikke med.
Utgiftene er basert på nåværende eiers forbruk og avtaler.
Formuesverdi
Formuesverdi for 2024 var kr 1 187 196,- ifølge Skatteetaten. Beløpet forutsetter at eier bor fast i boligen (primærbolig).
Ved eventuell øvrig bruk av eiendommen (f.eks. fritidsbolig, pendlerbolig, utleieobjekt) var formuesverdien for 2024 kr 4 748 782,-.
Formuesverdien justeres normalt årlig.
Fra 2026 har Stortinget vedtatt en oppdatert modell for beregning av formuesverdi for primærbolig, så avvik kan forekomme.
For mer informasjon se skatteetaten.no
Omkostninger
6 750 000,00 Prisantydning
Omkostninger
168 750,00 Dokumentavgift til staten (2,5% av kjøpesum)
19 900,00 Gjensidige Boligkjøperpakke (valgfri)* (valgfritt)
545,00 Tinglysing panterettsdokument
545,00 Tinglysing skjøte
--------------------------------------------------------
169 840,00 Omkostninger totalt (uten Gjensidige Boligkjøperpakke (valgfri))
189 740,00 Omkostninger totalt (med Gjensidige Boligkjøperpakke (valgfri))
--------------------------------------------------------
6 919 840,00 Totalpris inkl. omkostninger
6 939 740,00 Totalpris inkl. omkostninger (med Gjensidige Boligkjøperpakke (valgfri))
--------------------------------------------------------
Totalpris inkl. omkostninger forutsetter kjøp til prisantydning.
Det tas forbehold om endringer i avgifter og gebyrer.
Betalingsbetingelser
Kjøpesum inkludert omkostninger, samt pantedokument tilknyttet eventuelt lån, skal være disponibelt hos megler 2 virkedager før overtagelsen.
Annen viktig informasjon
Annen viktig informasjon
Eier
Anne-Ragnhild Håkedal Vestøl
Overtakelse
Etter nærmere avtale.
Boligselgerforsikring
Selger har i forbindelse med salget tegnet boligselgerforsikring levert av Gjensidige.
Boligselgerforsikringen dekker selgers ansvar etter avhendingsloven begrenset oppad til kr 14 millioner. Dersom kjøper oppdager forhold ved eiendommen som hen mener utgjør en mangel ved eiendommen, vil Gjensidige behandle reklamasjonen på vegne av selger. Forsikringsvilkår kan fås ved henvendelse til megler.
Vedlagt salgsoppgaven følger selgers egenerklæringsskjema og tilstandsrapport. Interessenter må sette seg inn i dokumentene før bud inngis.
Boligkjøperforsikring
Innen kontraktsmøtet må kjøper ta stilling til om det ønskes å bestille Boligkjøperpakken gjennom Gjensidige. I denne gunstige pakken er boligen ferdig forsikret og inkluderer rettshjelpsforsikring, også kalt Boligkjøperforsikring. Rettshjelpsforsikring gir trygghet og tilgang på profesjonell juridisk hjelp dersom det oppdages uventede feil eller mangler det første året etter overtagelse. Forsikringsselskapet behandler i så fall ethvert mangelskrav kjøper måtte ha overfor selger.
Boligkjøperpakken inkluderer bygningsforsikring for hus og hytte, innboforsikring, flytteforsikring og dobbel rentedekning - i situasjoner hvor kjøper ikke får solgt nåværende primærbolig.
Kjøper mottar ingen særskilt faktura for Boligkjøperpakken da kostnaden det første året legges til kjøpesummen for boligen. Det gjøres oppmerksom på Krogsveen mottar et honorar for denne formidlingen.
Produktark for Boligkjøperpakken ligger vedlagt i salgsoppgaven.
Dersom ikke boligkjøperpakke ønskes kan kun rettshjelpsforsikring, også kalt boligkjøperforsikring, tegnes særskilt via megler. Rettshjelpsforsikringen varer i 5 år fra overtagelse og leveres gjennom Gjensidige. Ta kontakt med megler for ytterligere informasjon.
Selskap og privatpersoner som driver med kjøp/salg/utvikling som ledd i egen næringsvirksomhet kan ikke tegne boligkjøperpakke eller rettshjelpsforsikring.
Budgivning
Forbrukerinformasjon om budgivning er vedlagt denne salgsoppgaven og er også på vår hjemmeside Krogsveen.no. Alle bud og budforhøyelser må inngis skriftlig. I tillegg må legitimasjon være fremlagt sammen med signatur fra budgiver.
Vi oppfordrer til å gi bud elektronisk via GI BUD-knappen på eiendommens hjemmeside på Krogsveen.no. Da vil samtlige vilkår bli oppfylt.
Eventuelle forhøyelser eller endringer av budet kan bekreftes pr SMS eller på e-post. Vi oppfordrer alltid til å kontakte megler pr. telefon i tillegg da forsinkelser i SMS og e-post kan forekomme.
For at budene skal kunne bli behandlet og videreformidlet skriftlig til alle involverte parter, må alle bud ha en tilstrekkelig lang akseptfrist, jf. eiendomsmeglingsforskriften § 6-3.
Selger må også skriftlig akseptere budet før aksept kan formidles til budgiver. Akseptfrist bør derfor være på minimum 30 minutter, og budforhøyelser må derfor skje i god tid før fristens utløp.
Bud i forbrukerforhold kan uansett ikke settes med kortere frist enn kl. 12.00 første virkedag etter siste annonserte visning. I tillegg kan ikke budet ha forbehold om at det skal holdes hemmelig ovenfor øvrige interessenter. Megler har iht lov om eiendomsmegling ikke anledning til å videreformidle disse budene, og de vil dermed heller ikke bli journalført.
Etter at eiendommen er solgt vil kjøper og selger få tilsendt budjournal. Øvrige budgivere kan få utlevert kopi av budjournalen i anonymisert form.
Hvitvaskingsreglene
I henhold til lov om hvitvasking og terrorfinansiering har megler plikt til å gjennomføre kontrolltiltak overfor kunder, herunder fullmektiger. Dette innebærer bl.a. å bekrefte kunders og reelle rettighetshaveres identitet på bakgrunn av fremvist gyldig legitimasjon eller på annen godkjent måte, samt å innhente opplysninger om kundeforholdets formål og tilsiktede art.
Dersom slike kundetiltak ikke kan gjennomføres, kan megler ikke etablere kundeforholdet eller utføre transaksjonen.
Hvis kjøper ikke bidrar til gjennomføring av kundekontrollen og dette fører til at transaksjonen blir forsinket eller ikke kan gjennomføres, vil dette ansees som mislighold av avtalen og gi selger rettigheter etter avhendingslova kapittel 5. I tilfeller der selger ikke bidrar til gjennomføring av løpende kundekontroll underveis i oppdraget, er det selger som misligholder sine forpliktelser etter avtalen og gi kjøper rettigheter etter avhendingslovens kapittel 4. Partene er selv ansvarlige for eventuelle kostnader og ansvar dette kan medføre. Eiendomsmegleren eller eiendomsmeglingsforetaket kan ikke holdes ansvarlig for de konsekvenser dette vil kunne få for partene eller andre som har interesser i eiendomshandelen.
Kjøper oppfordres til å innbetale kjøpesummen som ikke kommer fra låneinstitusjon i én samlet innbetaling fra egen konto i norsk bank. Megler har plikt til å melde fra til Økokrim om eiendomshandler som fremstår som mistenkelige. Melding sendes Økokrim uten at partene varsles.
Personopplysningsloven
I henhold til personopplysningsloven gjør vi oppmerksom på at interessenter kan bli registrert for videre oppfølging.
Lovanvendelse
Generelle bestemmelser
Salgsoppgaven er basert på de opplysningene selger har gitt til megler, den bygningssakyndiges tilstandsrapport, samt opplysninger innhentet fra kommunen, Kartverket og andre tilgjengelige kilder. Det er viktig at kjøper setter seg grundig inn i alle salgsdokumentene, herunder salgsoppgave, tilstandsrapport og selgers egenerklæring. Kjøper anses kjent med forhold som er tydelig beskrevet i salgsdokumentene, og slike forhold kan ikke påberopes som mangler. Dette gjelder uavhengig av om kjøper har lest dokumentene. Alle interessenter oppfordres til å undersøke eiendommen nøye, gjerne sammen med fagkyndig før bud inngis. Kjøper som velger å kjøpe usett kan ikke gjøre gjeldende som mangel noe han burde blitt kjent med ved undersøkelsen.
Dersom det er behov for avklaringer, anbefaler vi at interessenter rådfører seg med eiendomsmegler eller egne rådgivere før det legges inn bud.
En bolig som har blitt brukt i en viss tid, har vanligvis blitt utsatt for slitasje og skader kan ha oppstått. Slik bruksslitasje må kjøper regne med, og det kan avdekkes enkelte forhold etter overtakelse som nødvendiggjør utbedringer. Normal slitasje og skader som nødvendiggjør utbedring, er innenfor hva kjøper må forvente og vil ikke utgjøre en mangel.
Kjøper og selgers rettigheter og plikter reguleres av avtalen mellom partene, samt informasjonen som har vært tilgjengelig for kjøperen i forbindelse med handelen. Avtalen utfylles av avhendingsloven, og det gjelder ulike avtalevilkår avhengig av om kjøper er forbrukerkjøper eller ikke. Dette er nærmere beskrevet nedenfor.
På grunn av ulike avtalevilkår kan selger vurdere bud fra en som ikke er forbruker, ulikt fra en forbrukers bud. Dersom kjøper ikke er forbruker, er selger sitt mulige mangelsansvar begrenset fordi eiendommen selges "som den er". Selger kan ikke ta «som den er»- forbehold overfor en forbrukerkjøper. Selv et lavere bud fra en som ikke er forbruker kan foretrekkes fordi begrensningen i mulig mangelsansvar kan ha egenverdi for selger. Selger står fritt til å forkaste eller akseptere ethvert bud, og er for eksempel ikke forpliktet til å akseptere høyeste bud.
Budgiver skal i budskjema avgi egenerklæring om budgiver er forbruker eller næringsdrivende/ person som hovedsakelig handler som ledd i næringsvirksomhet. Budgivere får informasjon dersom andre bud er inngitt av en som ikke er forbruker.
Forbrukerkjøp - definisjon
Med forbrukerkjøp menes kjøp av eiendom når kjøperen er en fysisk person som ikke hovedsakelig handler som ledd i næringsvirksomhet.
Forbruker – avtalevilkår
Eiendommen har en mangel dersom den ikke er i samsvar med kravene som følger av avtalen, eller det foreligger brudd på bestemmelsene i avhendingsloven §§ 3-2 til 3-8. Hvis eiendommen ikke er i samsvar med det kjøperen må kunne forvente ut ifra alder, type og synlig tilstand, kan det være grunnlag for mangelskrav. Det samme gjelder hvis det er holdt tilbake eller gitt uriktige opplysninger om eiendommen. Dette gjelder likevel bare dersom man kan gå ut ifra at det virket inn på avtalen at opplysningen ikke ble gitt eller at mangelskravet ikke blir rettet i tide på en tydelig måte.
Boligen kan ha en mangel etter avhendingsloven § 3-3 andre ledd, dersom det er avvik mellom opplyst og faktisk innvendig areal, forutsatt at avviket er på 2% eller mer og minimum 1 kvm.
Ved beregning av et eventuelt prisavslag eller erstatning må kjøper selv dekke tap/kostnader opptil et beløp på kr 10 000 (egenandel).
Ikke-forbruker (næringsdrivende) – definisjon
Hvis kjøper er en juridisk person, eller en fysisk person som hovedsakelig handler som ledd i næringsvirksomhet, vil kjøpet ikke anses som et forbrukerkjøp.
Ikke-forbruker – avtalevilkår
Eiendommen har en mangel dersom den ikke er i samsvar med kravene som følger av avtalen.
Eiendommen selges «som den er», og selgers ansvar utover det konkret avtalte er da begrenset etter avhendingsloven § 3-9, første ledd andre setning.
Avhendingsloven § 3-3 andre ledd fravikes, og hvorvidt boligens arealsvikt utgjør en mangel vurderes etter avhendingsloven § 3-8.
Informasjon om kjøpers undersøkelsesplikt, herunder oppfordringen om å undersøke eiendommen nøye, gjelder også for kjøpere som ikke anses som forbrukere.
Det forutsettes at hjemmel overføres til kjøper. Hvis kjøper ikke ønsker hjemmelsoverføring av eiendommen, må det tas forbehold om dette i budet.
Meglers vederlag
Meglers vederlag betales av selger og er avtalt til:
Vederlag: 0,80 % av salgssummen inkl. eventuell fellesgjeld. Minimumsprovisjon er kr 60 000,00,-
Vederlag:
Kontroll av hjemmel og heftelser kr 3 900,00,-
Markedsføringspakke kr 28 900,00,-
Oppgjør kr 8 900,00,-
Tilrettelegging kr 13 900,00,-
Visninger pr stk / Overtagelse kr 500,00,-
Utlegg:
Innhenting av offentlig opplysninger Grimstad kommune kr 6 650,00,-
Innhenting av dokumenter/servitutter fra grunnbok pr stk kr 290,00,-
Tinglysing sikring kr 545,00,-
Andre utgifter:
AX tilstandsrapport enebolig under 250kvm kr 17 000,00,-
Boligselgerforsikring Gjensidige Eiet - regnes av prisantydning kr 47 107,50,-
Foto inkl. dronebilder kr 6 000,00,-
Vi er opptatt av verdiskapning, og har knyttet til oss samarbeidspartnere som skal sikre våre kunder de beste produkter og tjenester;
• I forbindelse med forberedelse av salget, innhenter vi informasjon om eiendommen hovedsakelig fra vår samarbeidspartner Amibita.
• Gjensidige leverer boligselgerforsikring og tilbyr bygningsforsikring
• Boligkjøperforsikring leveres av Hiscox og med Sedgwick som skadebehandler, og er formidlet gjennom Gjensidige.
• BN bank tilbyr finansieringsløsninger
• Vår avdeling Krogsveen Pluss tilbyr flyttetjenester som utvask, visningsvask, lager, tømming og transport av flyttelass, i tillegg til å formidle kontakt med Flip for overflateoppussing.
• I forbindelse med overtagelse av eiendommen tilbyr Overo avtale om strøm, alarm og bredbånd.
• Krogsveen er, sammen med øvrige bransjeaktører, medeier i Bomega AS som tilbyr den digitale annonseringsplattformen Hjem.
Opplysninger om oppdraget
Oppdragsnummer 47-0009/26
Eiendomsmegler Krogsveen AS, avd. Arendal
Kystveien 14, 4841, ARENDAL
950 007 613
Oppdragets KR-kode KR47.269
Dato
Sist oppdatert: 24. mai 2026 kl. 10:38
Dokumenter
Dokumenter
PDF – 947 KB
PDF – 615 KB
PDF – 168 KB
PDF – 312 KB
PDF – 29 KB
PDF – 127 KB
PDF – 392 KB
Område
Legg til steder som er viktige for deg
Visning
For å delta på visning, ber vi om at du melder deg på. Da sikrer vi at du får nødvendig informasjon og at det er satt av tilstrekkelig med tid. Kontakt megler dersom annet tidspunkt ønskes. Husk å lese salgsoppgaven før visningen, så du stiller forberedt. NB. Visning utgår dersom det ikke er noen påmeldte. Ønsker du kun å bli holdt orientert, kan du fra eiendommens hjemmeside få varsel om solgtpris, eller kontakte megler.
Lurer du på noe?
Unngå doble boligrenter
Vi tilbyr gunstig forsikring.
Vurderer du utleie?
Få et tilbud fra Utleie KrogsveenHva koster lånet?
Sjekk estimert lånekostnadVil du varsles om lignende boliger?
Ved å lagre ditt boligsøk hos oss får du beskjed når vi har en bolig som ligner denne, før den legges ut på markedet!














































