Olav Trygvasons gate 84D
3 480 000 kr
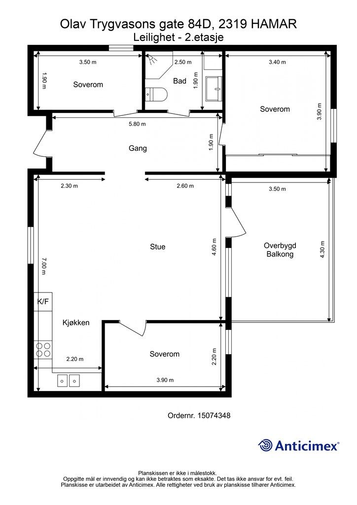
84 m²
3 soverom
Solgt
Hamar
Lettstelt og fin 4-roms leilighet i 2. etasje med heis, garasje og stor balkong. Kort vei til Hamar sentrum. IN-ordning.
Prisantydning
3 480 000 krAndel fellesgjeld
445 476 krOmkostninger
11 040 krTotalpris
3 936 516 kr
Pris
Bruksareal
89 m²BRA-I (internt bruksareal)
84 m²BRA-E (eksternt bruksareal)
5 m²TBA (terrasse-balkongareal)
15 m²
Areal
Etasje
2Byggeår
2005Soverom
3 soveromBad
1 badType
AndelsleilighetEierform
AndelFasiliteter
Garasje/P-plass, Heis og Balkong/TerrasseFellesutgifter
11 174 krEnergimerke
Grønn D
Nøkkelinfo
Unngå doble boligrenter
Vi tilbyr gunstig forsikring.
Vurderer du utleie?
Få et tilbud fra Utleie KrogsveenHva koster lånet?
Sjekk estimert lånekostnadBeskrivelse
Kort om eiendommen
Lettstelt og fin 4-roms andelsleilighet i 2. etasje med adkomst via heis. Leiligheten er gjennomgående og har en fin og praktisk planløsning med blant annet romslig entré/gang, stue og kjøkken i åpen løsning og stor overbygd balkong som er sørvendt. Én parkeringsplass i felles garasjeanlegg. Veldrevet borettslag med flotte og tiltalende fellesområder som er opparbeidet med diverse beplantning. Gangavstand til nærmeste matbutikk, kort vei til Hamar sentrum og 200 m til nærmeste bussholdeplass. Borettslaget har tilrettelagt for individuell nedbetaling av andel fellesgjeld (IN-ordning). Det vil si at hver enkelt andelseier helt eller delvis kan velge å nedbetale sin andel av borettslagets fellesgjeld til boligbyggelaget.
Velkommen til en hyggelig visning!
Område
Legg til steder som er viktige for deg
På flyttefot? Tenk kjøp og salg samtidig.
Få din egen rådgiver gjennom hele kjøps- og salgsprosessen. Det starter med en verdivurdering.
Unngå doble boligrenter
Vi tilbyr gunstig forsikring.
Vurderer du utleie?
Få et tilbud fra Utleie KrogsveenHva koster lånet?
Sjekk estimert lånekostnadVil du varsles om lignende boliger?
Ved å lagre ditt boligsøk hos oss får du beskjed når vi har en bolig som ligner denne, før den legges ut på markedet!




