Bøgata 29
5 200 000 kr
51 m²
1 soverom
Solgt

Kampen
Lys 2-roms på attraktive Kampen! Gjennomgående, vestvendt balkong, peis og god takhøyde. Stort kjøkken. God planløsning.
Prisantydning
5 200 000 krAndel fellesgjeld
26 733 krOmkostninger
14 193 krTotalpris
5 240 926 kr
Pris
Bruksareal
57 m²BRA-I (internt bruksareal)
51 m²BRA-E (eksternt bruksareal)
6 m²TBA (terrasse-balkongareal)
4 m²
Areal
Etasje
2Byggeår
1934Soverom
1 soveromBad
1 badType
AksjeleilighetEierform
AksjeFasiliteter
Balkong/TerrasseFellesutgifter
3 831 krEnergimerke
Oransje F
Nøkkelinfo
Unngå doble boligrenter
Vi tilbyr gunstig forsikring.
Vurderer du utleie?
Få et tilbud fra Utleie KrogsveenHva koster lånet?
Sjekk estimert lånekostnadBeskrivelse
Kort om eiendommen
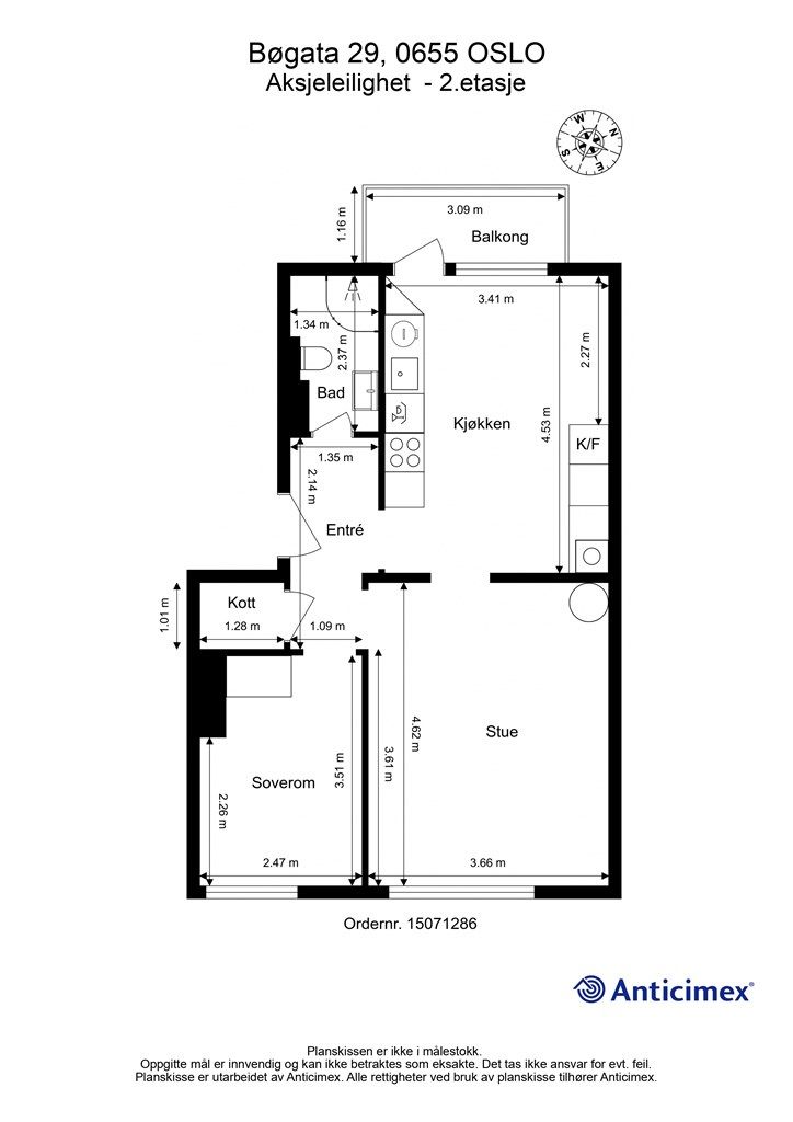
Velkommen til Bøgata 29 presentert av Halvor L. Heikkilä ved Krogsveen Majorstuen og Oslo Vest! En lys og pen 2-roms leilighet med attraktiv beliggenhet på Kampen rett ved hyggelige Kampen Park. Leiligheten har god planløsning, generøs takhøyde og vestvendt balkong. Kort informasjon om boligen:
- Vestvendt balkong på 4kvm
- Attraktiv beliggenhet i rolig og sentralt område
- Gjennomgående planløsning
- To disponible boder
- Romslige oppholdsrom med god størrelse
- Moderne kjøkken, oppgradert i 2019, med plass til stort spisebord
- Store vindusflater
- Soverom mot bakgård
- Stue med klebersteinsovn
- Originale tregulv
- Innvendig kott/bod
- Flislagt entré
- Felles treningsrom
Velkommen til visning!
Område
Legg til steder som er viktige for deg
På flyttefot? Tenk kjøp og salg samtidig.
Få din egen rådgiver gjennom hele kjøps- og salgsprosessen. Det starter med en verdivurdering.
Unngå doble boligrenter
Vi tilbyr gunstig forsikring.
Vurderer du utleie?
Få et tilbud fra Utleie KrogsveenHva koster lånet?
Sjekk estimert lånekostnadVil du varsles om lignende boliger?
Ved å lagre ditt boligsøk hos oss får du beskjed når vi har en bolig som ligner denne, før den legges ut på markedet!

