Røstadvegen 19
2 950 000 kr
115 m²
3 soverom
Komplett salgsoppgave
Moelv
Enebolig med alle rom på ett plan, garasje, stor uteplass og mjøsutsikt! Etablert boligområde kun ca. 2 km fra sentrum.
Prisantydning
2 950 000 krOmkostninger
74 840 krTotalpris
3 024 840 kr
Pris
Bruksareal
162 m²BRA-I (internt bruksareal)
115 m²BRA-E (eksternt bruksareal)
47 m²TBA (terrasse-balkongareal)
40 m²
Areal
Etasje
1Byggeår
1972Soverom
3 soveromBad
1 badTomteareal
866 m² (eiet)Type
Enebolig - FrittliggendeEierform
EietEnergimerke
Gul F
Nøkkelinfo
Vurderer du utleie?
Få et tilbud fra Utleie KrogsveenHva koster lånet?
Sjekk estimert lånekostnadBeskrivelse
Kort om eiendommen
Røstadvegen 19 er en eldre enebolig med alle rom på ett plan, beliggende i et etablert boligområde ca. 2 km fra Moelv sentrum. Boligen inneholder entré, stue/spisestue, kjøkken, vaskerom, 3 soverom (soverom nr. 4 er ikke bruksendret) og baderom. Fra stue er det utgang til romslig terrasse med flott mjøsutsikt og plass til flere møbleringssoner. Kjøkken i egen, praktisk sone med fin tilknytning til spisestuen. Parkering i garasje og øvrig parkering på tomten.
Velkommen til en hyggelig visning!
Innhold og byggemåte
Innhold og byggemåte
Eiendommen
Røstadvegen 19, 2390 MOELV
Kommunenummer 3411, gårdsnummer 367, bruksnummer 36, ideell andel 1/1
Innhold
Totalt bruksareal BRA: 162 kvm
BRA-i:
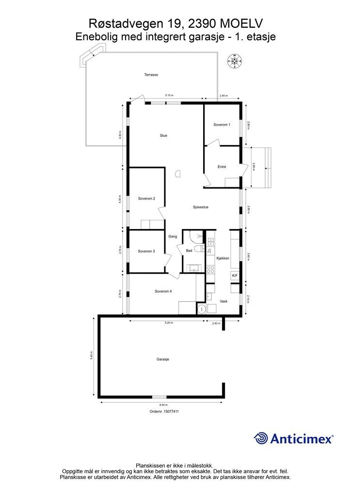
1. etasje 115 kvm: Entré, fire soverom, gang, bad, vaskerom, kjøkken og stue.
BRA-e:
1. etasje 47 kvm: Garasje.
Åpent areal:
1. etasje 40 kvm: Terrasse.
Vedlagte plantegninger er ikke målbare. De oppgitte arealer er hentet fra rapport med befaringsdato 08.12.2025 utført av Anticimex AS v/Marius Rognstad. Arealene er beregnet og rom er definert etter dagens faktiske bruk, uavhengig av hva som er godkjent av bygningsmyndighetene.
Her kan du vise til punkt om ferdigattest og beskrive konsekvens under det punktet.
Byggemåte
Selger har fått utarbeidet en tilstandsrapport, dvs. en teknisk gjennomgang av boligen hvor eventuelle avvik, risiko for kjøper og prisoverslag for hva som bør gjøres av oppgradering, er skissert. Se særskilt TGIU (tilstandsgrad ikke undersøkt), samt TG2 og TG3 som viser hva som er boligens normale slitasje, alder og type, hva som er avvik fra dette og hva som bør/må utbedres. Rapporten og selgers egenerklæring er en del av salgsoppgaven og må leses nøye før bud inngis. Kjøper overtar ansvaret for de opplysninger som fremkommer av salgsdokumentasjonen, og kan ikke gjøre gjeldende som mangel noe som burde vært kjent eller som ikke kan anses å ha betydning for avtalen.
Bygningen er iht. tilstandsrapporten:
Boligbygg oppført i 1972. Grunnmur av betong. Fundamentert på ukjent byggegrunn. Bygget er oppført med krypkjeller. Yttervegger av trekonstruksjoner. Fasaden er kledd med stående trekledning. Etasjeskillere av trekonstruksjoner. Saltak i trekonstruksjoner. Yttertak er utvendig tekket med shingel. Boligen har entrédør med glassfelter. Vinduer og balkongdør med karmer av tre, og to-lags glass. Varmepumpe samt peisovn i stue. Øvrig oppvarming med elektrisitet. Naturlig ventilasjon.
Det gjøres spesielt oppmerksom på at følgende bygningsdeler er gitt tilstandsgrad 3 (TG3):
- Krypkjeller: Helhetsvurdering
- Loft - innredet/råloft: Helhetsvurdering
- Tekniske anlegg, VVS anlegg: Avløpsrør
- Elektrisk anlegg: Forenklet vurdering
- Yttertak: Helhetsvurdering
Flere bygningsdeler er gitt tilstandsgrad 2 (TG2).
Se supplerende tekst i tilstandsrapporten. Kjøper overtar ansvar og risiko for dette.
Standard
Kjøkken:
Kjøkkeninnredning fra byggeår med glatte fronter. Benkeplater av laminat og av rustfritt stål med nedfelte oppvaskkummer og med ett-greps kjøkkenarmatur.
Frittstående komfyr, oppvaskmaskin og kjøleskap med fryser. Ventilator i overskap. Gulvflater belagt med laminat, vegg- og himlingsflater i malte flater og taklamper. Det er fliser mellom kjøkkenbenk og overskap. Det er kun de hvitevarene som er listet opp som følger med. Disse hvitevarene følger med:
Bad:
Baderom utvidet og oppgradert i ca. 2005 (ifølge huseier). Det er flislagt gulv med gulvvarme, flislagte vegger og panelbord i himling. Vegghengt servantinnredning, vegghengte skap ved speil, dusjhjørne med dører og gulvstående toalett.
Vaskerom:
Vaskerom fra byggeår med gulvflate belagt med gulvbelegg, malte veggplater på vegger og takplater i himling. Vegghengt utslagsvask og opplegg for vaskemaskin. Varmtvannsbereder er plassert i nisje.
Øvrige rom:
Gulvflater belagt med laminat. Profilerte innerdører og innerdør med glassfelt.
Løsøre og tilbehør
Vi viser til liste fra Norges Eiendomsmeglerforbund som gjelder fra 01.01.2020 angående løsøre og tilbehør.
Oppvarming
Boligen varmes opp via:
- Varmepumpe
- Peisovn
- Gulvvarme på bad
Dersom beboelsesrom ikke har vegg- eller fastmonterte varmekilder ved visning, følger dette heller ikke med.
Ferdigattest/brukstillatelse
Det foreligger ferdigattest på eiendommen som gjelder våningshus, datert 20.09.1972. Denne kan fås ved henvendelse til megler.
Merknader i ferdigattesten:
Inngangsparti mangler
Carport ikke bygget
Det er mottatt byggetegninger fra kommunen. Soverom 1 er opprinnelig byggemeldt som bod jf. byggetegningene er ikke godkjent til varig opphold. Deler av entré var opprinnelig byggemeldt som kjølerom og bod. Innredning av rommene til bruk for varig opphold er ikke bruksendret/omsøkt og er heller ikke godkjent av kommunen. Konsekvensen ved søknad kan være at rommet ikke godkjennes som varig opphold og at rommet da må brukes som bod/midlertidig oppbevaring.
Kjøper overtar alt ansvar, kostnad og risiko for dette videre.
Tinglyste heftelser og rettigheter
Det er tinglyst følgende servitutter på eiendommen.
Dagboknr. 1512, tinglyst 03.03.1972, type heftelse: Bestemmelse om vann/kloakkledning. Erklæring om å følge det til en hver tid gjeldende reglementet for vannforsynings- og kloakkanlegg.
Servituttene vil følge eiendommen. Kjøpers bank vil få prioritet etter ovennevnte heftelser og servitutter. Kopi av servitutten kan fås ved henvendelse til megler.
Eventuell adgang til utleie
Eiendommen har ikke separat utleieenhet. Det vil normalt være anledning til utleie av hele eiendommen eller enkeltrom, såfremt utleiearealet er bygningsmessig godkjent for varig opphold og har forsvarlige radonnivåer.
Diverse
Eiendommen selges som et tvangssalg og i henhold til Lov om tvangsfullbyrdelse og ikke etter avhendingslova. Dette innebærer vesentlig avvik fra et normalt salg ved at kjøper har en større risiko for eiendommens tekniske tilstand, og kjøper må være innforstått med at det kan være svært vanskelig å nå fram med en mangels klage etter kjøp av tvangssalgsbolig. Samtidig avviker tidsfrister for bud og rutiner for oppgjør fra et normalt salg.
Det vises for øvrig til "Orientering til kjøpere om tvangssalg ved medhjelper" som er vedlagt salgsoppgaven. Ta kontakt med megler dersom noe er uklart.
Beliggenhet og tomteforhold
Beliggenhet og tomteforhold
Beliggenhet
Beliggende i et etablert boligområde ca. 2 km fra Moelv sentrum. I sentrum har man et utvalg av diverse butikker, spisesteder og servicetjenester, samt Moelv stasjon. Det er kort avstand til skoler, barnehager og flotte turmuligheter. Se vedlagt nabolagsprofil for nærhet til diverse fasiliteter.
Adkomst
Se kart for adkomst.
Det vil bli skiltet med Krogsveen visningsskilt ved fellesvisninger.
Beskrivelse av tomt
Eiertomt på ca. 866 kvm som er opparbeidet med grus, diverse beplantninger, plenareal og biloppstillingsplass.
Parkering
Parkering i garasje og øvrig parkering på tomten.
Vei, vann og avløp
Eiendommen har adkomst via kommunal vei.
Eiendommen er tilknyttet kommunalt ledningsnett via private stikkledninger. Eier er selv ansvarlig for private stikkledninger til boligen.
Regulerings-og arealplaner
Eiendommen er regulert til frittliggende småhusbebyggelse i henhold til reguleringsplan for Fossen/Fjeldstad (eldre reguleringsplan) datert 27.08.1973 med tilhørende reguleringsbestemmelser. Delareal av eiendommen er regulert til kjørevei.
Eiendommen omfattes også av Kommuneplanens arealdel 2025-2040 datert 22.10.2025 hvor eiendommen er regulert til boligbebyggelse.
Utsnitt av plan med tilhørende bestemmelser kan fås ved henvendelse til megler.
Økonomi
Økonomi
Kommunale utgifter
Kommunale avgifter er kr. 22 421 for inneværende år. I dette inngår gebyr for vann, avløp, renovasjon og feiing/tilsyn.
Eier har ikke gitt megler opplysninger om øvrige løpende kostnader, og megler har derfor ikke kjennskap til hvor store kostnader dagens eier har til strømforbruk, forsikring, tv, internett m.v.
Formuesverdi
Formuesverdi for 2023 var kr. 736 032 ifølge selger/skatteetaten. Beløpet forutsetter at eier bor fast i boligen (primærbolig).
Ved eventuell øvrig bruk av eiendommen (f.eks. fritidsbolig, pendlerbolig, utleieobjekt) var formuesverdien for 2023 kr. 2 944 129.
Formuesverdien justeres normalt årlig. Se skatteetaten.no for mer informasjon om fastsettelse av formuesverdien.
Eiendomsskatt
Eiendomsskatten utgjør kr. 5 311 pr år.
Omkostninger
2 950 000,00 Prisantydning
Omkostninger
73 750,00 Dokumentavgift til staten (2,5% av kjøpesum)
545,00 Tinglysing panterettsdokument
545,00 Tinglysing skjøte
--------------------------------------------------------
74 840,00 Omkostninger totalt
--------------------------------------------------------
3 024 840,00 Totalpris inkl. omkostninger
--------------------------------------------------------
Betalingsbetingelser
Kjøpesum inkludert omkostninger, samt pantedokument tilknyttet eventuelt lån, skal være disponibelt hos megler 2 virkedager før overtagelsen.
Annen viktig informasjon
Annen viktig informasjon
Eier
Hedmarken og Østerdal Tingrett
Overtakelse
Etter gjeldende regelverk vedr. tvangssalg, konf. megler eller les info. på budskjemaet. Eiendommen overtas som den er besiktiget uten ytterligere ryddig eller rengjøring.
Boligselgerforsikring
Det kan ikke tegnes boligselgerforsikring ved tvangssalg da kontraktspart er Tingretten og salget skjer etter reglene i tvangsfullbyrdelsesloven. Interessenter oppfordres til å sette seg inn i regelverket og lese salgsdokumentasjonen nøye før bud inngis. Det gjøres oppmerksom på at kjøpers muligheter for reklamasjon er redusert ved kjøp av bolig etter tvangsfullbyrdelsesloven.
Boligkjøperforsikring
Det gjøres oppmerksom på at det ikke er mulig å tegne Boligkjøperforsikring i forbindelsen med tvangssalg.
Budgivning
Det gjelder egne budregler for tvangssalg, og disse er beskrevet i «Orientering til kjøpere om tvangssalg ved medhjelper». Budgivere må sette seg inn i orienteringen før man inngir bud.
Alle bud og budforhøyelser må inngis skriftlig. I tillegg må budet være signert og legitimasjon må være fremlagt. På grunn av de spesielle reglene for tvangssalg er det dessverre ikke mulig å inngi bud elektronisk via Krogsveen.no. Eventuelle forhøyelser eller endringer på budet kan skje pr sms eller på e-post.
Kjøper vil som vanlig få tilsendt budjournal etter at eiendommen er solgt. Budgiver kan også få utlevert en kopi av budjournalen i anonymisert form.
Hvitvaskingsreglene
I henhold til lov om hvitvasking og terrorfinansiering har megler plikt til å gjennomføre kontrolltiltak overfor kunder, herunder fullmektiger. Dette innebærer bl.a. å bekrefte kunders og reelle rettighetshaveres identitet på bakgrunn av fremvist gyldig legitimasjon eller på annen godkjent måte, samt å innhente opplysninger om kundeforholdets formål og tilsiktede art.
Dersom slike kundetiltak ikke kan gjennomføres, kan megler ikke etablere kundeforholdet eller utføre transaksjonen.
Hvis kjøper ikke bidrar til gjennomføring av kundekontrollen og dette fører til at transaksjonen blir forsinket eller ikke kan gjennomføres, vil dette ansees som mislighold av avtalen og gi selger rettigheter etter avhendingslova kapittel 5. I tilfeller der selger ikke bidrar til gjennomføring av løpende kundekontroll underveis i oppdraget, er det selger som misligholder sine forpliktelser etter avtalen og gi kjøper rettigheter etter avhendingslovens kapittel 4. Partene er selv ansvarlige for eventuelle kostnader og ansvar dette kan medføre. Eiendomsmegleren eller eiendomsmeglingsforetaket kan ikke holdes ansvarlig for de konsekvenser dette vil kunne få for partene eller andre som har interesser i eiendomshandelen.
Kjøper oppfordres til å innbetale kjøpesummen som ikke kommer fra låneinstitusjon i én samlet innbetaling fra egen konto i norsk bank. Megler har plikt til å melde fra til Økokrim om eiendomshandler som fremstår som mistenkelige. Melding sendes Økokrim uten at partene varsles.
Personopplysningsloven
I henhold til personopplysningsloven gjør vi oppmerksom på at interessenter kan bli registrert for videre oppfølging.
Lovanvendelse
Salget av denne eiendommen er et tvangssalg gjennom medhjelper, og selges etter
Tvangsfullbyrdelsesloven kapittel 11.
Dette innebærer at kjøper har begrensede muligheter til å fremsette eventuelle mangelskrav.
Mangel kan foreligge hvis eiendommen ikke svarer til gitte opplysninger om vesentlige forhold, eller det er forsømt å gi opplysninger om vesentlige forhold som medhjelper måtte kjenne til, eller den er i vesentlig dårligere stand enn kjøperen hadde grunn til å regne med. Manglende/feil opplysninger må ha innvirket på kjøpet. Det vises til tvangsfullbyrdelseslovens §11-39 for nærmere informasjon og alle vilkår. Dersom eiendommen har mangler, kan det kreves prisavslag, men kjøpet kan ikke heves. Det kan også forekomme at boligen overleveres uten normal rydding og rengjøring, samt at nøkkelsett ikke er komplett. Omkostninger må i så tilfeller dekkes av kjøper.
Opplysninger om oppdraget
Oppdragsnummer 65-0209/24
Eiendomsmegler Krogsveen AS, avd. Hamar
Strandgata 31, 2308, HAMAR
950 007 613
Oppdragets KR-kode KR65.24209
Dato
Sist oppdatert: 17. mars 2026 kl. 12:55
Dokumenter
Dokumenter
PDF – 629 KB
PDF – 744 KB
Område
Legg til steder som er viktige for deg
Visning
For å delta på visning, ber vi om at du melder deg på. Da sikrer vi at du får nødvendig informasjon og at det er satt av tilstrekkelig med tid. Kontakt megler dersom annet tidspunkt ønskes. Husk å lese salgsoppgaven før visningen, så du stiller forberedt.
Ønsker du kun å bli holdt orientert, kan du fra eiendommens hjemmeside få varsel om solgtpris, eller kontakte megler.
Lurer du på noe?
Vurderer du utleie?
Få et tilbud fra Utleie KrogsveenHva koster lånet?
Sjekk estimert lånekostnad



