Skareveien 159
7 500 000 kr
339 m²
5 soverom
Solgt

Tromøy
BUD MOTTATT - Klassisk villa med utestue - Lekkert kjøkken - 5 soverom. Nydelig hage og integrert dobbel garasje.
Prisantydning
7 500 000 krOmkostninger
208 490 krTotalpris
7 708 490 kr
Pris
Bruksareal
453 m²BRA-I (internt bruksareal)
339 m²BRA-E (eksternt bruksareal)
114 m²
Areal
Etasje
2Byggeår
2010Soverom
5 soveromBad
2 badTomteareal
938 m² (eiet)Type
Enebolig - FrittliggendeEierform
EietFasiliteter
Garasje/P-plassEnergimerke
Oransje D
Nøkkelinfo
Unngå doble boligrenter
Vi tilbyr gunstig forsikring.
Vurderer du utleie?
Få et tilbud fra Utleie KrogsveenHva koster lånet?
Sjekk estimert lånekostnadBeskrivelse
Kort om eiendommen
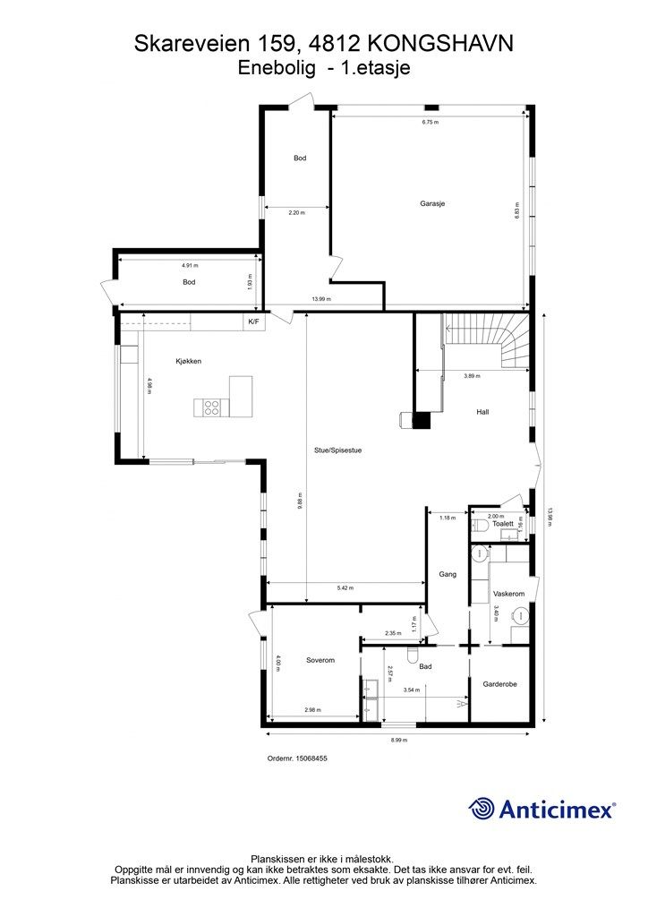
Praktfull enebolig i skjønne omgivelser. Hallen som møter deg når du kommer inn er innbydende og lekker, flislagt med varmebelagt gulv og åpent inn til stue/spisestue og kjøkkenet. Kjøkkenet har smarte løsninger og en tiltalende og moderne innredning. Det er i tillegg gjestetoalett, soverom, vaskerom, garderoberom og bad i 1 etasjen, samt integrert dobbel garasje og boder med direkte tilgang til boligen. 2 etasjen består av tv-stue/kontorplass, 4 soverom og bad. Begge baderom er stilig flislagt og holder en høy standard. På bad i 2 etasje er det egen infrarød badstue. Det er bygd treningsrom og utestue med bar på tomten. Beliggende i høyden "for seg selv" har eiendommen private omgivelser og fantastiske solforhold. Ingen gjennomgangstrafikk og skogen rett bak boligen. Sentrale omgivelser.
Område
Legg til steder som er viktige for deg
På flyttefot? Tenk kjøp og salg samtidig.
Få din egen rådgiver gjennom hele kjøps- og salgsprosessen. Det starter med en verdivurdering.
Unngå doble boligrenter
Vi tilbyr gunstig forsikring.
Vurderer du utleie?
Få et tilbud fra Utleie KrogsveenHva koster lånet?
Sjekk estimert lånekostnadVil du varsles om lignende boliger?
Ved å lagre ditt boligsøk hos oss får du beskjed når vi har en bolig som ligner denne, før den legges ut på markedet!

