Oscars gate 12B
3 690 000 kr
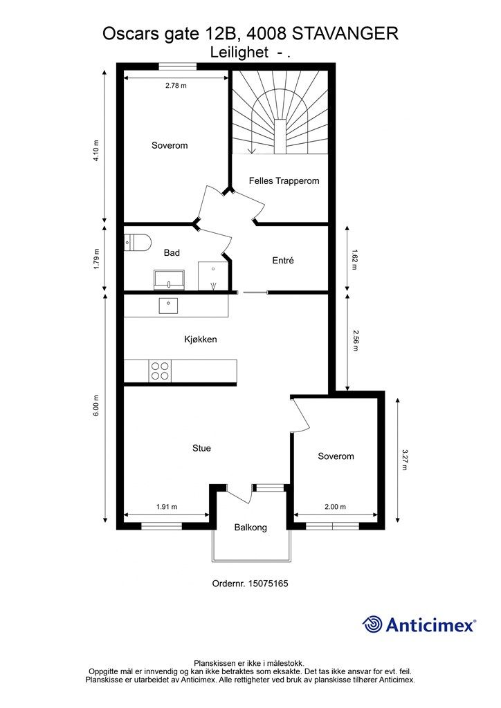
52 m²
2 soverom
Solgt

KANNIK
Trivelig toppleilighet like ved sentrum – solrik balkong |2 soverom| Fast parkering i lukket anlegg.
Prisantydning
3 690 000 krAndel fellesgjeld
44 882 krOmkostninger
104 390 krTotalpris
3 839 272 kr
Pris
Bruksareal
57 m²BRA-I (internt bruksareal)
52 m²BRA-E (eksternt bruksareal)
5 m²
Areal
Etasje
2Byggeår
1994Soverom
2 soveromBad
1 badType
EierleilighetEierform
EierseksjonFasiliteter
Garasje/P-plass og Balkong/TerrasseFellesutgifter
3 000 krEnergimerke
Rød E
Nøkkelinfo
Unngå doble boligrenter
Vi tilbyr gunstig forsikring.
Vurderer du utleie?
Få et tilbud fra Utleie KrogsveenHva koster lånet?
Sjekk estimert lånekostnadBeskrivelse
Kort om eiendommen
Oscars gate 12B byr på en lys og velholdt leilighet i toppetasjen, med to gode soverom. Beliggenheten er svært sentral – kun en kort spasertur unna Stavanger sentrum – samtidig som leiligheten ligger skjermet til. Fra stuen er det direkte utgang til en solrik balkong hvor du kan nyte solen fra midt på dagen til tidlig kveld.
* Gjennomtenkt planløsning med to soverom.
* Beliggenhet i toppetasjen gir ekstra lys og luft.
* Store vindusflater og takvinduer skaper en åpen og romslig atmosfære.
* Sosial stue/kjøkken-løsning med barbenk.
* Flislagt bad med gulvvarme og opplegg for vaskemaskin.
* Parkeringsplass og bod i felles garasjeanlegg.
* Tilrettelagt for elbillader.
Kort vei til dagligvarebutikk og øvrige servicetilbud.
Område
Legg til steder som er viktige for deg
På flyttefot? Tenk kjøp og salg samtidig.
Få din egen rådgiver gjennom hele kjøps- og salgsprosessen. Det starter med en verdivurdering.
Unngå doble boligrenter
Vi tilbyr gunstig forsikring.
Vurderer du utleie?
Få et tilbud fra Utleie KrogsveenHva koster lånet?
Sjekk estimert lånekostnadVil du varsles om lignende boliger?
Ved å lagre ditt boligsøk hos oss får du beskjed når vi har en bolig som ligner denne, før den legges ut på markedet!

