Skoglyveien 9
6 800 000 kr
154 m²
3 soverom
Solgt

Presenteres av
Øystein ThorsenLanghus
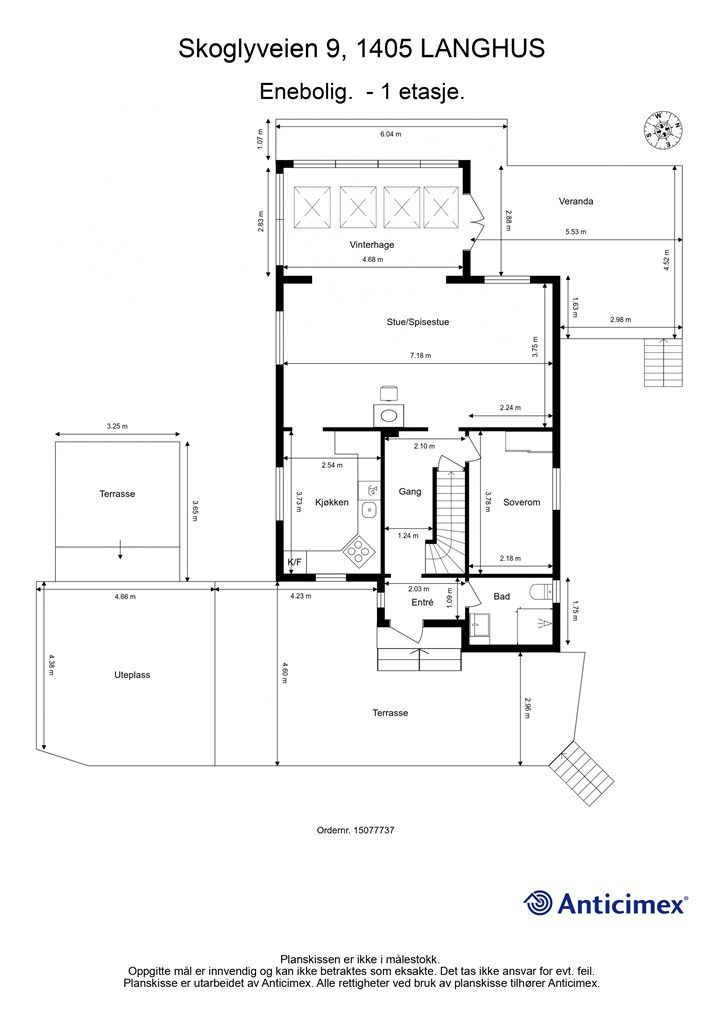
Koselig familiebolig i rolig villaområde med utbygget vinterhage og frittstående garasje fra 2018 - Solrik tomt mot vest
Prisantydning
6 800 000 krOmkostninger
190 990 krTotalpris
6 990 990 kr
Pris
Bruksareal
203 m²BRA-I (internt bruksareal)
154 m²BRA-E (eksternt bruksareal)
49 m²TBA (terrasse-balkongareal)
61 m²
Areal
Etasje
3Byggeår
1951Soverom
3 soveromBad
2 badTomteareal
896 m² (eiet)Type
Enebolig - FrittliggendeEierform
EietFasiliteter
Garasje/P-plass og Balkong/TerrasseEnergimerke
Oransje E
Nøkkelinfo
Unngå doble boligrenter
Vi tilbyr gunstig forsikring.
Vurderer du utleie?
Få et tilbud fra Utleie KrogsveenHva koster lånet?
Sjekk estimert lånekostnadBeskrivelse
Kort om eiendommen
Velkommen til en sjarmerende enebolig som har en flott tilbygget vinterhage med takvinduer:
- Familievennlig og attraktiv beliggenhet i et rolig, trygt og etablert boligområde
- Pent opparbeidet hage og uteområder med fine uteplasser rundt huset
- Svært gode solforhold mot sør og vest
- Gangavstand til barneskole og barnehager
- Kort vei til butikk, buss og tog med hyppige avganger mot Ski og Oslo
- Inneholder 3 soverom, 2 bad, vaskerom, kjøkken, stue/spisestue/vinterhage, trimrom/kjellerstue, entré, gang m/trappeløp og 2 boder
- Boligen fremstår godt ivaretatt med noe behov for modernisering
- Dobbeltgarasje fra 2018 med lader og lagringhems
- Skrånende tomt mot vest med hyggelig utsyn
- God plass til parkering på eiendommen
- Peisovn og varmepumpe
Område
Legg til steder som er viktige for deg
På flyttefot? Tenk kjøp og salg samtidig.
Få din egen rådgiver gjennom hele kjøps- og salgsprosessen. Det starter med en verdivurdering.
Unngå doble boligrenter
Vi tilbyr gunstig forsikring.
Vurderer du utleie?
Få et tilbud fra Utleie KrogsveenHva koster lånet?
Sjekk estimert lånekostnadVil du varsles om lignende boliger?
Ved å lagre ditt boligsøk hos oss får du beskjed når vi har en bolig som ligner denne, før den legges ut på markedet!
På flyttefot? Slik gjør vi det enklere for deg
Skreddersydd flyttepakke
Vi fikser håndverkere, vask, pakking, lagring og transport, og legger ut for utgiftene underveis.
Hjelp med både kjøp og salg
Hos oss har du din egen rådgiver gjennom hele kjøps- og salgsprosessen.
Hjelp til finansiering
Vårt samarbeid med BN Bank sikrer deg rask og løsningsorientert hjelp, til konkurransedyktige betingelser.

