Hyllebakken 8
7 450 000 kr
226 m²
4 soverom
Solgt

Innholdsrik og unik enebolig med attraktiv beliggenhet. Dobbelgarasje. Sjøutsikt. Solrikt.
Prisantydning
7 450 000 krOmkostninger
207 240 krTotalpris
7 657 240 kr
Pris
Bruksareal
278 m²BRA-I (internt bruksareal)
226 m²BRA-E (eksternt bruksareal)
52 m²TBA (terrasse-balkongareal)
83 m²
Areal
Etasje
2Byggeår
1974Soverom
4 soveromBad
2 badTomteareal
1 389 m² (eiet)Type
Enebolig - FrittliggendeEierform
EietFasiliteter
Garasje/P-plass og Balkong/Terrasse
Nøkkelinfo
Unngå doble boligrenter
Vi tilbyr gunstig forsikring.
Vurderer du utleie?
Få et tilbud fra Utleie KrogsveenHva koster lånet?
Sjekk estimert lånekostnadBeskrivelse
Kort om eiendommen
Velkommen til Hyllebakken 8 - En unik og svært innholdsrik eiendom med attraktiv beliggenhet i Vågsbygd.
Denne boligen har sjeldent bra beliggenhet i et barnevennlig og rolig nabolag i blindvei med skog og flere badevann like ved. Samtidig finner du alt av skoler, barnehager, dagligvarer og det du trenger for en enkel og tilrettelagt hverdag i nærområdet.
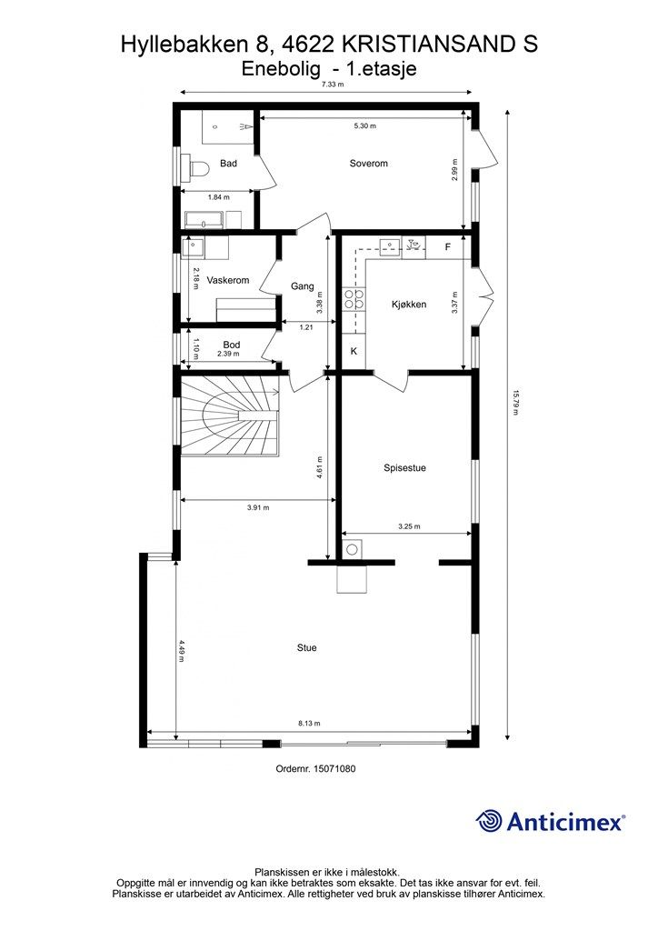
Boligen er velholdt, romslig og byr på god planløsning over to plan. Her får du 4 romslige soverom, 2 bad, vaskerom, grovinngang, nyere kjøkken, stor stue, spisestue og kjellerstue.
Tomten har solrik og usjenert beliggenhet, grenser mot grøntareal på 2 av 4 sider, og fantastisk utsikt mot Kristiansand, innseilingen og havgapet.
Her får du også dobbel garasje med god bodplass. Flere imponerende uteplasser.
Velkommen til visning
Område
Legg til steder som er viktige for deg
På flyttefot? Tenk kjøp og salg samtidig.
Få din egen rådgiver gjennom hele kjøps- og salgsprosessen. Det starter med en verdivurdering.
Unngå doble boligrenter
Vi tilbyr gunstig forsikring.
Vurderer du utleie?
Få et tilbud fra Utleie KrogsveenHva koster lånet?
Sjekk estimert lånekostnadVil du varsles om lignende boliger?
Ved å lagre ditt boligsøk hos oss får du beskjed når vi har en bolig som ligner denne, før den legges ut på markedet!

