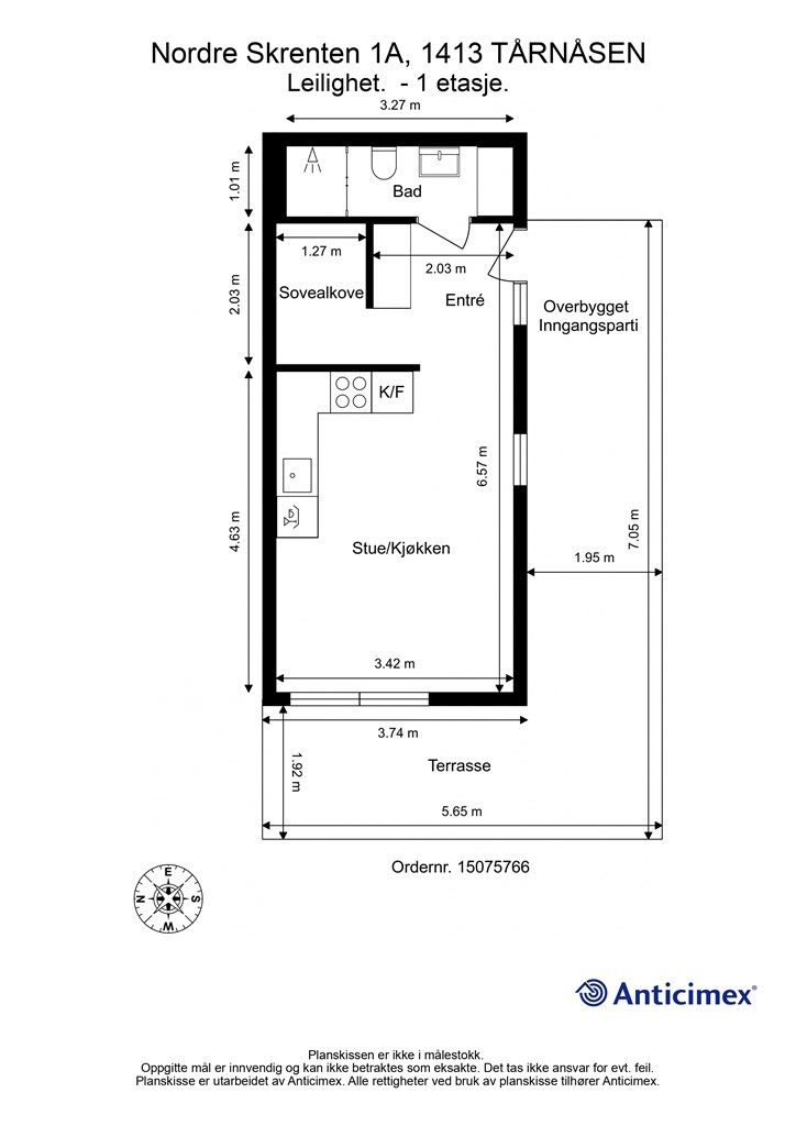
Nordre Skrenten 1A
2 900 000 kr
27 m²
1 soverom
Solgt
SENTRALT KOLBOTN
Lekker selveierleilighet med solrik uteplass på 25 kvm - vesentlig oppusset i 2022 - lave felleskostnader - garasje
Prisantydning
2 900 000 krAndel fellesgjeld
1 716 krOmkostninger
83 560 krTotalpris
2 985 276 kr
Pris
Bruksareal
27 m²BRA-I (internt bruksareal)
27 m²TBA (terrasse-balkongareal)
25 m²
Areal
Etasje
1Byggeår
1973Soverom
1 soveromBad
1 badType
EierleilighetEierform
EierseksjonFasiliteter
Garasje/P-plass og Balkong/TerrasseFellesutgifter
2 511 krEnergimerke
Rød F
Nøkkelinfo
Unngå doble boligrenter
Vi tilbyr gunstig forsikring.
Vurderer du utleie?
Få et tilbud fra Utleie KrogsveenHva koster lånet?
Sjekk estimert lånekostnadBeskrivelse
Kort om eiendommen
Velkommen til Nordre Skrenten 1A! Ettroms leilighet med fine uteområder beliggende sentralt på Kolbotn. Kort vei til sentrum og kollektivtransport.
Høydepunkter
Pent oppusset leilighet med nytt bad og kjøkken fra 2022
Endeleilighet med syd- og vestvendt terrasse
Nyere delvis overbygget terrasse og eget stenlagt inngangsparti
Parkeringsplass i felles garasjeanlegg med mulighet for å installere elbil-lader
Kort vei til Kolbotn sentrum med offentlig kommunikasjon, Kolbotn Torg med butikker og restauranter. Her ligger også kultursenteret Kolben, med kino, konserter, bibliotek m.m. Kort vei til marka og turområder
Område
Legg til steder som er viktige for deg
På flyttefot? Tenk kjøp og salg samtidig.
Få din egen rådgiver gjennom hele kjøps- og salgsprosessen. Det starter med en verdivurdering.
Unngå doble boligrenter
Vi tilbyr gunstig forsikring.
Vurderer du utleie?
Få et tilbud fra Utleie KrogsveenHva koster lånet?
Sjekk estimert lånekostnadVil du varsles om lignende boliger?
Ved å lagre ditt boligsøk hos oss får du beskjed når vi har en bolig som ligner denne, før den legges ut på markedet!
På flyttefot? Slik gjør vi det enklere for deg
Skreddersydd flyttepakke
Vi fikser håndverkere, vask, pakking, lagring og transport, og legger ut for utgiftene underveis.
Hjelp med både kjøp og salg
Hos oss har du din egen rådgiver gjennom hele kjøps- og salgsprosessen.
Hjelp til finansiering
Vårt samarbeid med BN Bank sikrer deg rask og løsningsorientert hjelp, til konkurransedyktige betingelser.




