Kyvannsvegen 16J
2 950 000 kr
67 m²
2 soverom
Solgt

Kyvannet/Byåsen
Tiltalende toppleilighet med nydelig beliggenhet i bygningens øverste etasje |Carport |Bod |Balkong m/ gode solforhold
Prisantydning
2 950 000 krAndel fellesgjeld
211 567 krOmkostninger
19 253 krTotalpris
3 180 820 kr
Pris
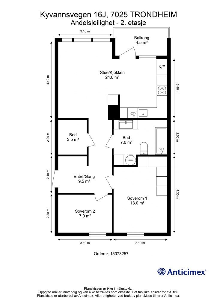
Bruksareal
72 m²BRA-I (internt bruksareal)
67 m²BRA-E (eksternt bruksareal)
5 m²TBA (terrasse-balkongareal)
4 m²
Areal
Etasje
2Byggeår
2001Soverom
2 soveromBad
1 badType
AndelsleilighetEierform
AndelFasiliteter
Balkong/TerrasseFellesutgifter
6 502 krEnergimerke
Rød D
Nøkkelinfo
Unngå doble boligrenter
Vi tilbyr gunstig forsikring.
Vurderer du utleie?
Få et tilbud fra Utleie KrogsveenHva koster lånet?
Sjekk estimert lånekostnadBeskrivelse
Kort om eiendommen
Her bor du i et fredelig og grønt område, med umiddelbar nærhet til populære turområder i bymarka. På sommeren kan du nyte noen av byens beste badeplasser som Kyvannet og Lianvannet, og om vinteren er Kyvannet perfekt til å gå på skøyter på, samtidig som det kjøres opp skispor like ved boligen. Leiligheten ligger strategisk plassert rett ved lokalbutikken Spar, hvor de har ferske bakevarer hver dag, samt post i butikk. Nærheten til trikken gjør at Trondheim sentrum kun er et lite øyeblikk unna.
Leiligheten har en smart og romslig planløsning, med to gode soverom og rikelig med oppbevaringsplass fordelt på to boder, én innvendig og én utvendig. Den lune og trivelige balkongen vender mot rolige og grønne omgivelser, og har herlig ettermiddagssol, perfekt for avslapning etter en lang dag.
Område
Legg til steder som er viktige for deg
På flyttefot? Tenk kjøp og salg samtidig.
Få din egen rådgiver gjennom hele kjøps- og salgsprosessen. Det starter med en verdivurdering.
Unngå doble boligrenter
Vi tilbyr gunstig forsikring.
Vurderer du utleie?
Få et tilbud fra Utleie KrogsveenHva koster lånet?
Sjekk estimert lånekostnadVil du varsles om lignende boliger?
Ved å lagre ditt boligsøk hos oss får du beskjed når vi har en bolig som ligner denne, før den legges ut på markedet!

