Lyseskrenten 54A
5 600 000 kr
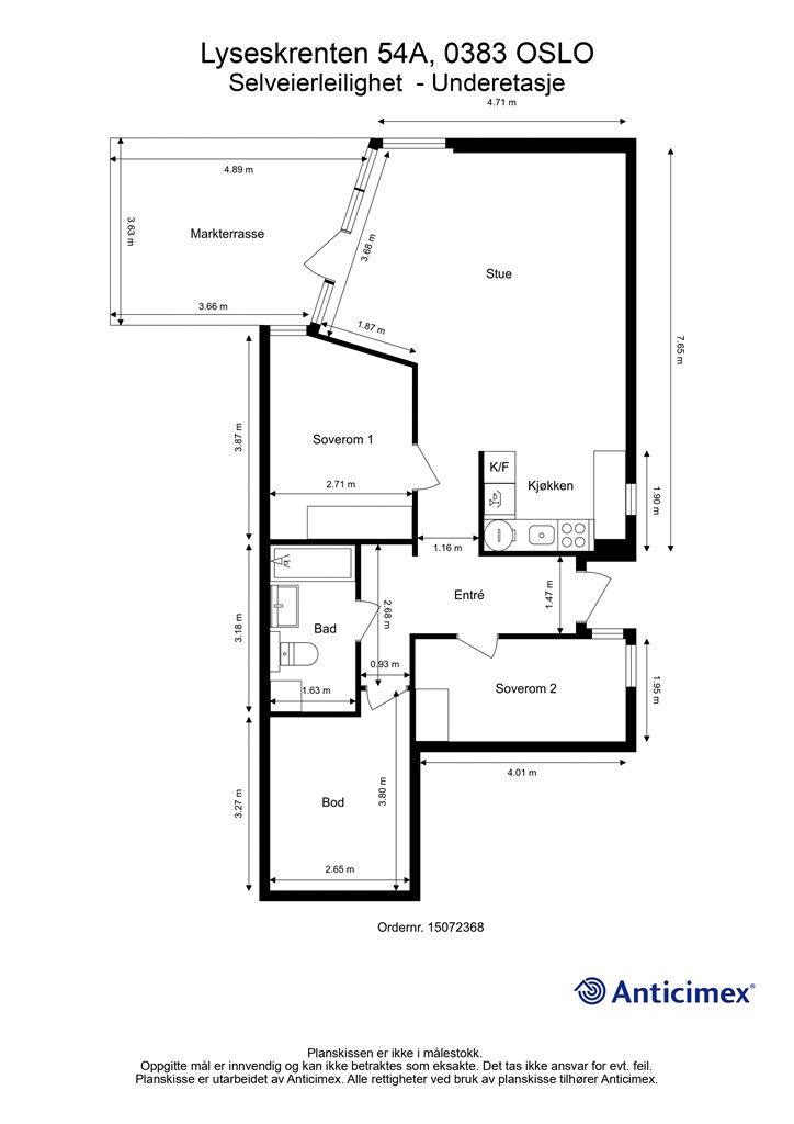
78 m²
2 soverom
Solgt

Ullernåsen
Romslig, attraktiv 3R selveier|Usjenert, vestvendt markterrasse|Felles hage|Garasjeplass m/lader|Peis|Meget barnevennlig
Prisantydning
5 600 000 krAndel fellesgjeld
175 117 krOmkostninger
155 410 krTotalpris
5 930 527 kr
Pris
Bruksareal
78 m²BRA-I (internt bruksareal)
78 m²TBA (terrasse-balkongareal)
16 m²
Areal
Etasje
1Byggeår
1994Soverom
2 soveromBad
1 badType
EierleilighetEierform
EierseksjonFasiliteter
Garasje/P-plass og Balkong/TerrasseFellesutgifter
4 122 krEnergimerke
Oransje E
Nøkkelinfo
Unngå doble boligrenter
Vi tilbyr gunstig forsikring.
Vurderer du utleie?
Få et tilbud fra Utleie KrogsveenHva koster lånet?
Sjekk estimert lånekostnadDette liker selger best ved boligen
Rolig og grønt område med lett tilgang til sentrum og Bekkestua via T-bane (Kolsåsbanen). Området har også lett adgang til Ring 3. Veldrevet sameie. Parkering i garasje (for 1 bil). Barnehage, barneskole, videregående skole, Ullern idrettsanlegg i nærområdet. Kolonialbutikk rett ned veien, flere andre i nærområdet. Flotte turområder rett utenfor døren. Leiligheten har utgang til terrasse og felles hage. Ettermiddagssol og kveldssol.
Beskrivelse
Kort om eiendommen
Velkommen til Lyseskrenten 54A – Romslig og tiltalende 3-roms selveierleilighet i grønne omgivelser!
Verdt å nevne:
- Garasjeplass m/elbil-lader
- Vestvendt markterrasse på 16 kvm m/ettermiddags- og kveldssol + adkomst til felles hage
- Romslig stue m/åpen kjøkkenløsning, peisinnsats og vinduer fra gulv til tak
- Flislagt bad m/badekar og opplegg for vaskemaskin
- 2 soverom m/garderobeskap
- Innvendig bod på 9 kvm
- Rolig, familievennlig beliggenhet
- Lysakerelven, marka, Bogstad og sjø i umiddelbar nærhet
- Rikt idrettstilbud: kunstgressbane, idrettshall, bredt sportsmiljø
- Gode skoler og barnehager
- Nærbutikk og kjøpesenter i gangavstand
- 12 min. til Majorstuen, hyppige buss- og T-baneavganger
Estimert utleievurdering for boligen: kr 21.000-22.000,- pr. mnd.
Område
Legg til steder som er viktige for deg
På flyttefot? Tenk kjøp og salg samtidig.
Få din egen rådgiver gjennom hele kjøps- og salgsprosessen. Det starter med en verdivurdering.
Unngå doble boligrenter
Vi tilbyr gunstig forsikring.
Vurderer du utleie?
Få et tilbud fra Utleie KrogsveenHva koster lånet?
Sjekk estimert lånekostnadVil du varsles om lignende boliger?
Ved å lagre ditt boligsøk hos oss får du beskjed når vi har en bolig som ligner denne, før den legges ut på markedet!

