Vallefaret 16
4 500 000 kr
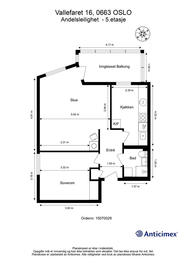
54 m²
1 soverom
Solgt

Presenteres av
Nora Larsen RørvikValle Hovin
Lys og lekker 2-roms topp- og hjørneleilighet | Solrik balkong og utsikt | Peisovn | Rolig og attraktiv beliggenhet!
Prisantydning
4 500 000 krAndel fellesgjeld
477 571 krOmkostninger
19 252 krTotalpris
4 996 823 kr
Pris
Bruksareal
69 m²BRA-I (internt bruksareal)
54 m²BRA-E (eksternt bruksareal)
5 m²
Areal
Etasje
5Byggeår
1953Soverom
1 soveromBad
1 badType
AndelsleilighetEierform
AndelFasiliteter
Balkong/TerrasseFellesutgifter
4 794 krEnergimerke
Rød G
Nøkkelinfo
Unngå doble boligrenter
Vi tilbyr gunstig forsikring.
Vurderer du utleie?
Få et tilbud fra Utleie KrogsveenHva koster lånet?
Sjekk estimert lånekostnadBeskrivelse
Kort om eiendommen
Nora Larsen Rørvik v/ Krogsveen har gleden av å presentere Vallefaret 16!
En lys og delikat topp-hjørneleilighet med naturskjønn beliggenhet i Valle borettslag. Området har fine og frodige grøntområder og er kjent for sitt gode bomiljø. Leiligheten har en kvadratsmart planløsning med god størrelse på alle rom. Overflatene er holdt i delikate og behagelige nyanser. Her bor man idyllisk til ved Hovindammen i grønne og rolige omgivelser, med et godt tilbud av kollektivtransport og servicetilbud innen kort avstand.
Høydepunkter:
Nærhet til offentlig kommunikasjon og servicetilbud
Ny, innglasset balkong fra 2024
Vinduer og balkongdør fra 2019
Flotte og grønne uteområder
Veldrevet borettslag
Toppleilighet
Internett inkl.
3 boder
Peisovn
Velkommen
Område
Legg til steder som er viktige for deg
På flyttefot? Tenk kjøp og salg samtidig.
Få din egen rådgiver gjennom hele kjøps- og salgsprosessen. Det starter med en verdivurdering.
Unngå doble boligrenter
Vi tilbyr gunstig forsikring.
Vurderer du utleie?
Få et tilbud fra Utleie KrogsveenHva koster lånet?
Sjekk estimert lånekostnadVil du varsles om lignende boliger?
Ved å lagre ditt boligsøk hos oss får du beskjed når vi har en bolig som ligner denne, før den legges ut på markedet!
På flyttefot? Slik gjør vi det enklere for deg
Skreddersydd flyttepakke
Vi fikser håndverkere, vask, pakking, lagring og transport, og legger ut for utgiftene underveis.
Hjelp med både kjøp og salg
Hos oss har du din egen rådgiver gjennom hele kjøps- og salgsprosessen.
Hjelp til finansiering
Vårt samarbeid med BN Bank sikrer deg rask og løsningsorientert hjelp, til konkurransedyktige betingelser.

