Stadionvegen 1
4 700 000 kr
300 m²
3 soverom
Solgt

Haga
Velholdt enebolig med stort utleiepotensial | Vinterhage | Dobbelgarasje | Solrik tomt
Prisantydning
4 700 000 krOmkostninger
138 490 krTotalpris
4 838 490 kr
Pris
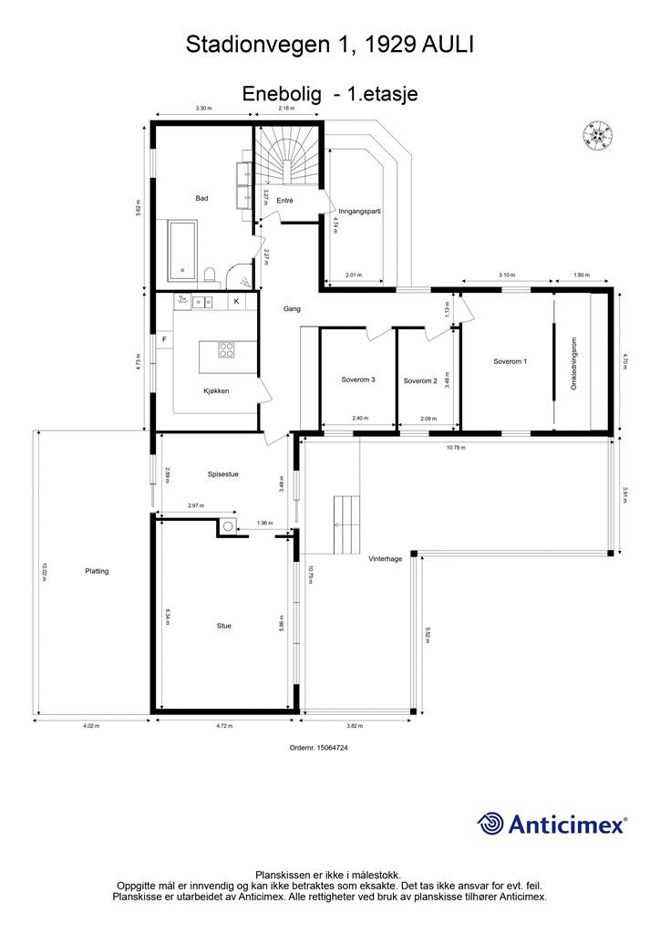
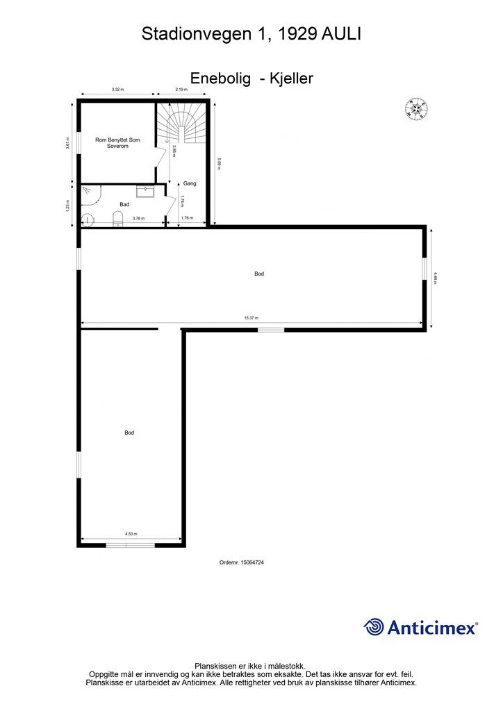
Bruksareal
432 m²BRA-I (internt bruksareal)
300 m²BRA-E (eksternt bruksareal)
132 m²TBA (terrasse-balkongareal)
40 m²
Areal
Etasje
1Byggeår
1968Soverom
3 soveromBad
2 badTomteareal
1 656 m² (eiet)Type
Enebolig - FrittliggendeEierform
EietFasiliteter
Garasje/P-plass og Balkong/TerrasseEnergimerke
Oransje G
Nøkkelinfo
Unngå doble boligrenter
Vi tilbyr gunstig forsikring.
Vurderer du utleie?
Få et tilbud fra Utleie KrogsveenHva koster lånet?
Sjekk estimert lånekostnadBeskrivelse
Kort om eiendommen
Er du på jakt etter en romslig enebolig med gode utviklingsmuligheter? Da bør du ikke gå glipp av denne unike muligheten. Her får du en velholdt og innholdsrik bolig med store rom og en spennende mulighet for videre innredning. Huset har romslige og åpne løsninger som gir en god flyt mellom rommene. Den store vinterhagen er virkelig et høydepunkt – et ekstra rom som gir deg plass til å samles med familie og venner, enten det er vinter eller sommer. Her kan du nyte de lyse, solfylte dagene på vinteren, eller skape minner sammen med dine nærmeste året rundt. Utvendig finner du en velholdt tomt som gir rom til både lek, avslapning og hagearbeid. Den store plenen gir plass til både hagefester og barnelek, mens en prydende hekk omkranser hele eiendommen og gir et privat og skjermet uteområde.
Område
Legg til steder som er viktige for deg
På flyttefot? Tenk kjøp og salg samtidig.
Få din egen rådgiver gjennom hele kjøps- og salgsprosessen. Det starter med en verdivurdering.
Unngå doble boligrenter
Vi tilbyr gunstig forsikring.
Vurderer du utleie?
Få et tilbud fra Utleie KrogsveenHva koster lånet?
Sjekk estimert lånekostnadVil du varsles om lignende boliger?
Ved å lagre ditt boligsøk hos oss får du beskjed når vi har en bolig som ligner denne, før den legges ut på markedet!

