Kristian brenners vei 56A
3 500 000 kr
95 m²
3 soverom
Solgt

Presenteres av
Sondre Trøseng GjellumÅssiden/Solåsblokka
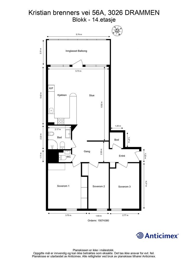
Pen & romslig 4-roms leilighet i øverste boligetasje. Bad & wc-rom. Innglasset balkong med suveren utsikt. Garasjeplass.
Prisantydning
3 500 000 krAndel fellesgjeld
244 847 krOmkostninger
19 250 krTotalpris
3 764 097 kr
Pris
Bruksareal
111 m²BRA-I (internt bruksareal)
95 m²BRA-E (eksternt bruksareal)
2 m²
Areal
Etasje
14Byggeår
1973Soverom
3 soveromBad
1 badType
AndelsleilighetEierform
AndelFasiliteter
Garasje/P-plass, Heis og Balkong/TerrasseFellesutgifter
8 874 krEnergimerke
Oransje D
Nøkkelinfo
Unngå doble boligrenter
Vi tilbyr gunstig forsikring.
Vurderer du utleie?
Få et tilbud fra Utleie KrogsveenHva koster lånet?
Sjekk estimert lånekostnadBeskrivelse
Kort om eiendommen
Pen og romslig 4-roms leilighet beliggende i øverste boligetasje (14. etasje).
Leiligheten er gjennomgående og har en praktisk planløsning
Åpen kjøkken- og stueløsning med god plass til møblement
Profilert kjøkken med praktisk barløsning og medfølgende hvitevarer
Bad med dusjhjørne og et praktisk ekstra wc-rom
Sentralfyr med radiatorer i leiligheten
Innglasset sydøstvendt balkong på 14 kvm med skyvbare glassfelt og innvendig solskjerming
Suveren utsikt mot fjorden og oppover elva i retning Jonsknuten samt Norefjell
Medfølgende fast disponibel parkeringsplass i felles garasjeanlegg
Beboere har tilgang til felles lokale med kjøkken (utleie), velutstyrt treningsrom, og solarium i 15. etasje
Umiddelbar nærhet til marka med flotte turområder
Område
Legg til steder som er viktige for deg
På flyttefot? Tenk kjøp og salg samtidig.
Få din egen rådgiver gjennom hele kjøps- og salgsprosessen. Det starter med en verdivurdering.
Unngå doble boligrenter
Vi tilbyr gunstig forsikring.
Vurderer du utleie?
Få et tilbud fra Utleie KrogsveenHva koster lånet?
Sjekk estimert lånekostnadVil du varsles om lignende boliger?
Ved å lagre ditt boligsøk hos oss får du beskjed når vi har en bolig som ligner denne, før den legges ut på markedet!
På flyttefot? Slik gjør vi det enklere for deg
Skreddersydd flyttepakke
Vi fikser håndverkere, vask, pakking, lagring og transport, og legger ut for utgiftene underveis.
Hjelp med både kjøp og salg
Hos oss har du din egen rådgiver gjennom hele kjøps- og salgsprosessen.
Hjelp til finansiering
Vårt samarbeid med BN Bank sikrer deg rask og løsningsorientert hjelp, til konkurransedyktige betingelser.

