Ystenesgata 28A
2 850 000 kr
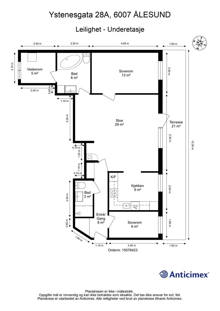
84 m²
2 soverom
Solgt

Ysteneset
Tiltalende 3 roms leilighet med god standard | Garasje| Terrasse | Fjernvarme | Utsikt Sunnmørsalpene | bud mottatt
Prisantydning
2 850 000 krAndel fellesgjeld
16 673 krOmkostninger
24 600 krTotalpris
2 891 273 kr
Pris
Bruksareal
104 m²BRA-I (internt bruksareal)
84 m²BRA-E (eksternt bruksareal)
20 m²TBA (terrasse-balkongareal)
21 m²
Areal
Byggeår
1997Soverom
2 soveromBad
2 badType
AksjeleilighetEierform
AksjeFasiliteter
Garasje/P-plass og Balkong/TerrasseFellesutgifter
5 070 krEnergimerke
Lysegrønn C
Nøkkelinfo
Unngå doble boligrenter
Vi tilbyr gunstig forsikring.
Vurderer du utleie?
Få et tilbud fra Utleie KrogsveenHva koster lånet?
Sjekk estimert lånekostnadBeskrivelse
Kort om eiendommen
Sentralt beliggende 3 roms leilighet i Ystenesgata
* Moderne bygård fra 1997
* Fjernvarme
* Stue med peis
* 2 soverom
* 2 bad
* Eget vaskerom
* Terrasse på ca 21 kvm + stor fellesterrasse
* Garasje
Velkommen til visning! Husk påmelding!
Område
Legg til steder som er viktige for deg
På flyttefot? Tenk kjøp og salg samtidig.
Få din egen rådgiver gjennom hele kjøps- og salgsprosessen. Det starter med en verdivurdering.
Unngå doble boligrenter
Vi tilbyr gunstig forsikring.
Vurderer du utleie?
Få et tilbud fra Utleie KrogsveenHva koster lånet?
Sjekk estimert lånekostnadVil du varsles om lignende boliger?
Ved å lagre ditt boligsøk hos oss får du beskjed når vi har en bolig som ligner denne, før den legges ut på markedet!


























