Sidesporet 4
3 490 000 kr
40 m²
1 soverom
Solgt

Strømmen
Nyere selveierleilighet i 1.etg. pen beliggende ved Sagelva |1 soverom | 1 terrasse | 1 bad | Kun 20 min til Oslo
Prisantydning
3 490 000 krOmkostninger
98 290 krTotalpris
3 588 290 kr
Pris
Bruksareal
43 m²BRA-I (internt bruksareal)
40 m²BRA-E (eksternt bruksareal)
3 m²
Areal
Etasje
1Byggeår
2020Soverom
1 soveromBad
1 badType
EierleilighetEierform
EierseksjonFasiliteter
Heis og Balkong/TerrasseFellesutgifter
2 511 krEnergimerke
Lysegrønn B
Nøkkelinfo
Unngå doble boligrenter
Vi tilbyr gunstig forsikring.
Vurderer du utleie?
Få et tilbud fra Utleie KrogsveenHva koster lånet?
Sjekk estimert lånekostnadBeskrivelse
Kort om eiendommen
Moderne 2-roms med terrasse – midt i hjertet av Strømmen!
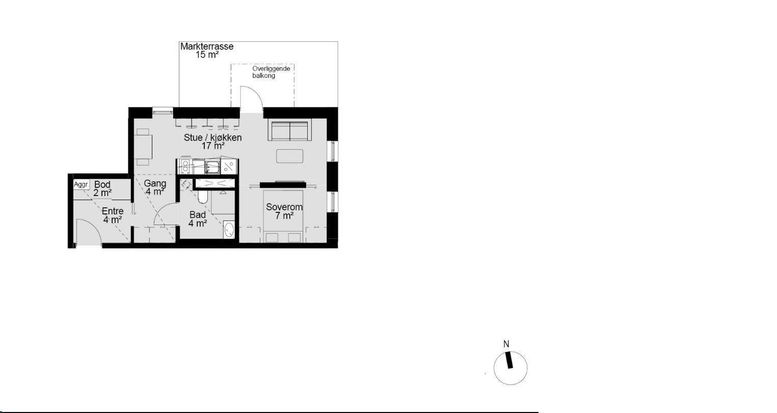
Nyere og effektiv 2-roms leilighet i 1. etasje på attraktive Sidesporet 4. Perfekt for unge eller første gangs kjøpere! Leiligheten har romslig bad, åpen stue/kjøkkenløsning, soverom og stor terrasse. Gangavstand til tog, buss og Strømmen Storsenter – Norges største kjøpesenter med over 200 butikker, kaféer og treningssentre. Strømmen byr på urbant byliv, men samtidig kort vei til grønne turområder, Sagelva, Østmarka og Romeriksåsene. Kun 6 min til Lillestrøm og 20 min til Oslo med bil eller tog. Her bor du moderne, sentralt og sosialt – med alt du trenger rett utenfor døra!
For de som ønsker og invester for utleie er det estimert leieinntekter på kr. 15.000,- - 16.000,- i mnd.
Område
Legg til steder som er viktige for deg
Megler

Bjørn Kitter Asak
Eiendomsmegler
På flyttefot? Tenk kjøp og salg samtidig.
Få din egen rådgiver gjennom hele kjøps- og salgsprosessen. Det starter med en verdivurdering.
Unngå doble boligrenter
Vi tilbyr gunstig forsikring.
Vurderer du utleie?
Få et tilbud fra Utleie KrogsveenHva koster lånet?
Sjekk estimert lånekostnadVil du varsles om lignende boliger?
Ved å lagre ditt boligsøk hos oss får du beskjed når vi har en bolig som ligner denne, før den legges ut på markedet!
