Finnåsveien 5A
4 400 000 kr
159 m²
1 soverom
Solgt

ÅSEN
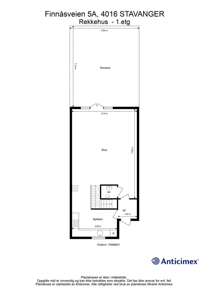
Enderekkehus m/innredet kjeller. 1 sov, 2 bad,2 kjøkken, hobbyrom og loftsrom. Terrasse og balkong. Parkering i gate.
Prisantydning
4 400 000 krAndel fellesgjeld
64 166 krOmkostninger
19 252 krTotalpris
4 483 418 kr
Pris
Bruksareal
163 m²BRA-I (internt bruksareal)
159 m²BRA-E (eksternt bruksareal)
4 m²TBA (terrasse-balkongareal)
81 m²
Areal
Byggeår
1954Soverom
1 soveromBad
2 badType
RekkehusEierform
AndelFasiliteter
Balkong/TerrasseFellesutgifter
3 189 krEnergimerke
Rød G
Nøkkelinfo
Unngå doble boligrenter
Vi tilbyr gunstig forsikring.
Vurderer du utleie?
Få et tilbud fra Utleie KrogsveenHva koster lånet?
Sjekk estimert lånekostnadBeskrivelse
Kort om eiendommen
*Enderekkehus med innredet kjeller, vestvendt terrasse, balkong ut fra 2.etg og loftsrom
*Sentralt på Åsen med kort vei til Hillevåg, Sørmarka, SUS, UIS og Stavanger sentrum
*Romslig utbygd stue med god plass til salong og spisebord, utgang til terrasse
*Kjøkken av god størrelse med god skapplass og arbeidsflater på benk
*Hovedsoverom med skyvedørsgarderobe
*Helfliset bad med varme i gulv. Dusjhjørne, servant med oppbevaring i underskap samt skap rundt speil å vegg
*Innredet kjeller m/kjøkken, kjellerstue, gang, 2 hobbyrom, bad og gang. Inngang til kjeller både innvendig og fra utsiden
*Tak skiftet 2018
*Parkering i gate utenfor boligen
*Loftsrom som kan innredes eller bruke som oppbevaring
*Kort gåavstand til skoler, barnehager, dagligvarebutikker og turområder som Sørmarka og Vannassen
Område
Legg til steder som er viktige for deg
På flyttefot? Tenk kjøp og salg samtidig.
Få din egen rådgiver gjennom hele kjøps- og salgsprosessen. Det starter med en verdivurdering.
Unngå doble boligrenter
Vi tilbyr gunstig forsikring.
Vurderer du utleie?
Få et tilbud fra Utleie KrogsveenHva koster lånet?
Sjekk estimert lånekostnadVil du varsles om lignende boliger?
Ved å lagre ditt boligsøk hos oss får du beskjed når vi har en bolig som ligner denne, før den legges ut på markedet!

