Rundhaugveien 5C
15 500 000 kr
178 m²
4 soverom
Solgt

Presenteres av
Jan Egil RøttingsnesUtsikt på Kjelsås
Innholdsrik enebolig med panoramautsikt | Solrike terrasser | Dobbelgarasje | Flott beliggenhet med nærhet til marka
Prisantydning
15 500 000 krOmkostninger
408 490 krTotalpris
15 908 490 kr
Pris
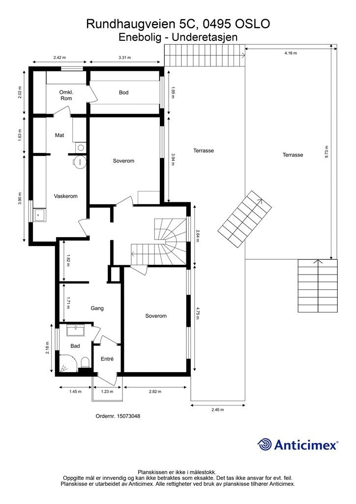
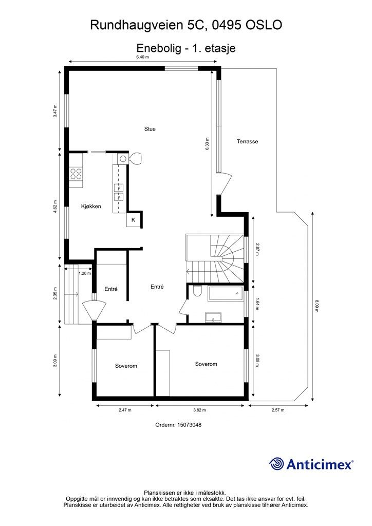
Bruksareal
212 m²BRA-I (internt bruksareal)
178 m²BRA-E (eksternt bruksareal)
34 m²TBA (terrasse-balkongareal)
120 m²
Areal
Byggeår
1977Soverom
4 soveromTomteareal
956 m² (eiet)Type
Enebolig - FrittliggendeEierform
EietFasiliteter
Garasje/P-plass og Balkong/TerrasseÅrlig velavgift
400 krEnergimerke
Oransje F
Nøkkelinfo
Unngå doble boligrenter
Vi tilbyr gunstig forsikring.
Vurderer du utleie?
Få et tilbud fra Utleie KrogsveenHva koster lånet?
Sjekk estimert lånekostnadBeskrivelse
Kort om eiendommen
Velkommen til Rundhaugveien 5C, en innbydende enebolig med sjeldne kvaliteter som panoramautsikt, sol fra morgen til kveld og nærhet til marka.
Huset har en gjennomtenkt planløsning over to etasjer med fire soverom, to bad og et moderne kjøkken fra 2021. Store vindusflater gir flott utsikt og fyller rommene med naturlig lys, mens terrasser på begge plan forlenger oppholdsarealene utendørs. Boligen ligger i en rolig og barnevennlig gate, samtidig som du når Storo og sentrum enkelt med buss fra Lachmanns vei. Nabolaget byr på trygge omgivelser, skoler og et bredt aktivitetstilbud. Med dobbelgarasje, to elbilladere, ekstra parkering og rikelig bodplass både inne og ute, er dette et hjem som kombinerer komfort, utsikt og beliggenhet.
Område
Legg til steder som er viktige for deg
På flyttefot? Tenk kjøp og salg samtidig.
Få din egen rådgiver gjennom hele kjøps- og salgsprosessen. Det starter med en verdivurdering.
Unngå doble boligrenter
Vi tilbyr gunstig forsikring.
Vurderer du utleie?
Få et tilbud fra Utleie KrogsveenHva koster lånet?
Sjekk estimert lånekostnadVil du varsles om lignende boliger?
Ved å lagre ditt boligsøk hos oss får du beskjed når vi har en bolig som ligner denne, før den legges ut på markedet!
På flyttefot? Slik gjør vi det enklere for deg
Skreddersydd flyttepakke
Vi fikser håndverkere, vask, pakking, lagring og transport, og legger ut for utgiftene underveis.
Hjelp med både kjøp og salg
Hos oss har du din egen rådgiver gjennom hele kjøps- og salgsprosessen.
Hjelp til finansiering
Vårt samarbeid med BN Bank sikrer deg rask og løsningsorientert hjelp, til konkurransedyktige betingelser.

