Vålaugsvegen 98 og 100
6 550 000 kr
497 m²
5 soverom
Solgt
Maura/Vålaugsmoen
Småbruk med rolig og tilbaketrukket beliggenhet | Stort potensiale | Kort vei til Maura sentrum | Ingen konsesjonsplikt
Prisantydning
6 550 000 krOmkostninger
184 650 krTotalpris
6 734 650 kr
Pris
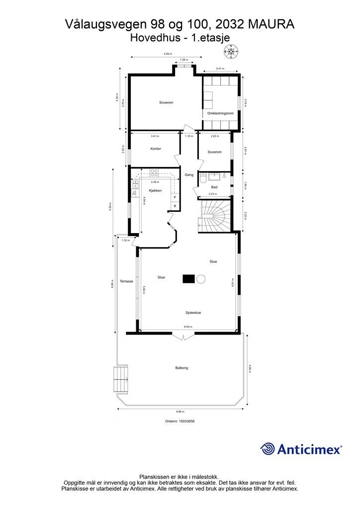
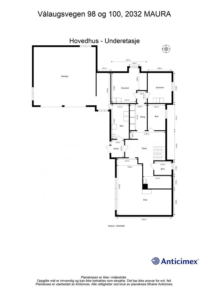
Bruksareal
503 m²BRA-I (internt bruksareal)
497 m²TBA (terrasse-balkongareal)
50 m²
Areal
Etasje
2Byggeår
1982Soverom
5 soveromBad
1 badTomteareal
75 781 m² (eiet)Type
SmåbrukEierform
EietFasiliteter
Garasje/P-plass og Balkong/TerrasseEnergimerke
Rød G
Nøkkelinfo
Unngå doble boligrenter
Vi tilbyr gunstig forsikring.
Vurderer du utleie?
Få et tilbud fra Utleie KrogsveenHva koster lånet?
Sjekk estimert lånekostnadBeskrivelse
Kort om eiendommen
Velkommen til Vålaugsvegen 98 og 100!
En sjelden perle i idylliske og landlige omgivelser i Nannestad kommune. Her har du alt det beste naturen kan by på rett utenfor døren! Flotte ski- og tur løyper, gode jakt og ride muligheter, perfekte forhold for fine sopp og bær turer. Eiendommen ligger usjenert og fint til i landskapet, samtidig som det kun er 2,2 km til Maura Sentrum med alt av nødvendige fasiliteter. 15 min til OSL.
Eiendommen består av hovedhus, kårbolig, stabbur og driftsbygning/låve. Hovedhuset er velholdt, men har moderniseringsbehov. Den sjarmerende kårboligen som er å anse som et restaureringsobjekt. Driftsbygning og stabbur har vedlikeholdsetterslep, og omfattende oppussing må påregnes. 17da fulldyrket jord og 55da skogsareal.
Parkering i dobbeltgarasje og på tomt.
Område
Legg til steder som er viktige for deg
Meglere
På flyttefot? Tenk kjøp og salg samtidig.
Få din egen rådgiver gjennom hele kjøps- og salgsprosessen. Det starter med en verdivurdering.
Unngå doble boligrenter
Vi tilbyr gunstig forsikring.
Vurderer du utleie?
Få et tilbud fra Utleie KrogsveenHva koster lånet?
Sjekk estimert lånekostnadVil du varsles om lignende boliger?
Ved å lagre ditt boligsøk hos oss får du beskjed når vi har en bolig som ligner denne, før den legges ut på markedet!




