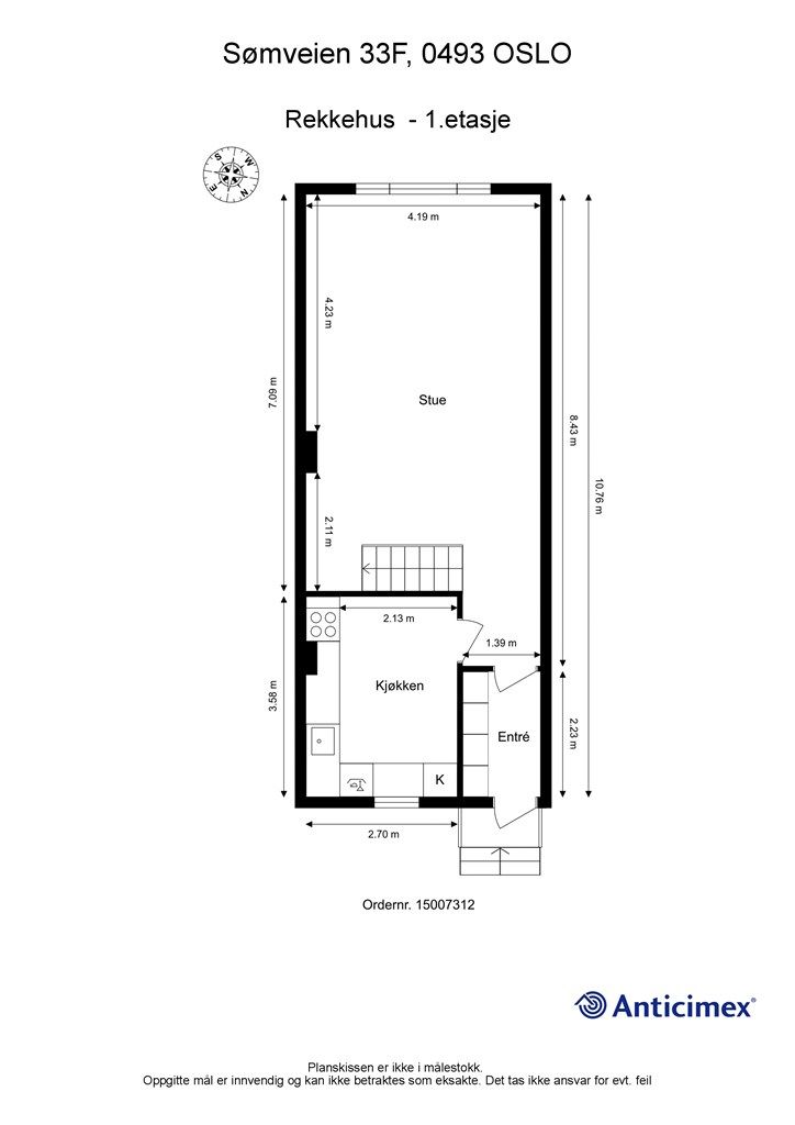
Sømveien 33F
11 000 000 kr
136 m²
3 soverom
Solgt
Kjelsås/Grefsen
Rekkehus med meget attraktiv, barnevennlig og solrik beliggenhet. God planløsning. Garasje. Oppussing
Prisantydning
11 000 000 krAndel fellesgjeld
285 146 krOmkostninger
293 160 krTotalpris
11 578 306 kr
Pris
Bruksareal
136 m²BRA-I (internt bruksareal)
136 m²TBA (terrasse-balkongareal)
11 m²
Areal
Byggeår
1961Soverom
3 soveromType
RekkehusEierform
EierseksjonFasiliteter
Garasje/P-plass og Balkong/TerrasseFellesutgifter
6 428 krEnergimerke
Oransje G
Nøkkelinfo
Unngå doble boligrenter
Vi tilbyr gunstig forsikring.
Vurderer du utleie?
Få et tilbud fra Utleie KrogsveenHva koster lånet?
Sjekk estimert lånekostnadBeskrivelse
Kort om eiendommen
Innholdsrikt og lyst rekkehus i meget barnevennlig og populært boligområde på Kjelsås/Grefsen.
Boligen har flott planløsning og er meget innholdsrik med 3 soverom, 2 stuer, kjøkken med spiseplass, bad, wc og vaskerom og wc. Sydvestvendt beliggenhet med gode solforhold og flott utsyn fra boligen. Rekkehuset disponerer også en pent opparbeidet og romslig hage med skjermet platting, plen og beplanting og det er umiddelbar tilgang til stor fellesplen og lekeapparater.
Boligen har et generelt oppussingsbehov av de fleste flater, mens bygningsmassen utvendig holdes vedlike i regi av sameiet. Rekken ble drenert i 2012 og i 1997 ble det etterisolert og panel skiftet. Fasadene ble malt i 2020.
Garasje i felles garasjerekke medfølger.
Kort vei til alt av skoler, marka, forretninger og Akerselva
Område
Legg til steder som er viktige for deg
På flyttefot? Tenk kjøp og salg samtidig.
Få din egen rådgiver gjennom hele kjøps- og salgsprosessen. Det starter med en verdivurdering.
Unngå doble boligrenter
Vi tilbyr gunstig forsikring.
Vurderer du utleie?
Få et tilbud fra Utleie KrogsveenHva koster lånet?
Sjekk estimert lånekostnadVil du varsles om lignende boliger?
Ved å lagre ditt boligsøk hos oss får du beskjed når vi har en bolig som ligner denne, før den legges ut på markedet!




