Fetveien 2622
890 000 kr
28 m²
1 soverom
Komplett salgsoppgave

Fritidsbolig med anneks og stor terrasse – idyllisk beliggenhet nær marka
Prisantydning
890 000 krOmkostninger
43 240 krTotalpris
933 240 kr
Pris
Bruksareal
32 m²BRA-I (internt bruksareal)
28 m²BRA-E (eksternt bruksareal)
4 m²TBA (terrasse-balkongareal)
40 m²
Areal
Byggeår
1958Soverom
1 soveromBad
1 badTomteareal
891 m² (eiet)Type
Fritidseiendom innlandetEierform
EietFasiliteter
Balkong/TerrasseEnergimerke
Rød G
Nøkkelinfo
Vurderer du utleie?
Få et tilbud fra Utleie KrogsveenHva koster lånet?
Sjekk estimert lånekostnadBeskrivelse
Kort om eiendommen
Velkommen til Fetveien 2622 – en koselig fritidsbolig med tilhørende anneks, idyllisk beliggende på Enebakkneset i Lillestrøm kommune. Eiendommen byr på gode uteplasser, enkel standard og et hyggelig helårstilbud i landlige omgivelser.
* Hytta selges møblert
* Privat vei med bom
* Hyttevel med vedlikehold av vei og vann
* Flott turområde bær og sopp
Innhold og byggemåte
Innhold og byggemåte
Eiendommen
Fetveien 2622, 1910 ENEBAKKNESET
Kommunenummer 3205, gårdsnummer 483, bruksnummer 20, ideell andel 1/1
Innhold
Totalt bruksareal BRA: 32 kvm
BRA-i:
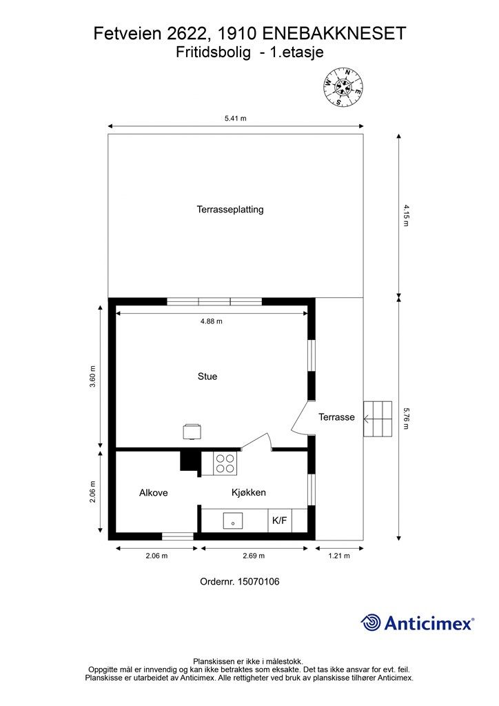
1. etasje 28 kvm: Stue, kjøkken og alkove
BRA-e:
Anneks:
1. etasje 4 kvm:
Åpent areal:
1. etasje 29 kvm: 2 terrasser
Anneks:
1. etasje 11 kvm: Terrasse
Det er to frittstående anneks på 8 m² og 13m² (ALH), disse er er ikke tilstandsvurdert, kun oppmålt.
Vedlagte plantegninger er ikke målbare. De oppgitte arealer er hentet fra rapport med befaringsdato 14.04.2025 utført av Anticimex AS v/Thomas André Nordby. Arealene er beregnet og rom er definert etter dagens faktiske bruk, uavhengig av hva som er godkjent av bygningsmyndighetene. På bakgrunn av at det ikke er fremlagt byggetegninger, er bruken av arealene i boligen ikke kontrollert opp mot de sist godkjente tegningene. Arealer kan være i strid med byggeforskriftene og mangle nødvendig godkjenning i kommunen, uten at dette har hatt betydning for klassifisering og vurdering av måleverdighet på befaringspunktet. Kjøper overtar risiko for dette. Se utfyllende informasjon om premisser om areal i tilstandsrapporten.
Det gjøres oppmerksom på at det ikke foreligger ferdigattest eller midlertidig brukstillatelse for eiendommen. Det finnes av den grunn ikke dokumentasjon over eiendommens lovlighet i kommunens arkiv. Grunnent lav takhøyde, regnes hems som ikke godkjent for varig opphold.
Byggemåte
Selger har fått utarbeidet en tilstandsrapport, dvs. en teknisk gjennomgang av boligen hvor eventuelle avvik, risiko for kjøper og prisoverslag for hva som bør gjøres av oppgradering, er skissert. Se særskilt TGIU (tilstandsgrad ikke undersøkt), samt TG2 og TG3 som viser hva som er boligens normale slitasje, alder og type, hva som er avvik fra dette og hva som bør/må utbedres. Rapporten og selgers egenerklæring er en del av salgsoppgaven og må leses nøye før bud inngis. Kjøper overtar ansvaret for de opplysninger som fremkommer av salgsdokumentasjonen, og kan ikke gjøre gjeldende som mangel noe som burde vært kjent eller som ikke kan anses å ha betydning for avtalen.
Bygningen er iht. tilstandsrapporten oppført i tre/mur. Les forøvrig mer om byggemåte og den tekniske tilstanden i rapporten.
Det gjøres spesielt oppmerksom på:
Tilstandsgrad 3 (TG3 – store eller alvorlige avvik):
- Etasjeskiller: Merkbare skjevheter i stue.
- Fasader (yttervegger): Råteskade ved tømmerknute på bunnstokk.
- Yttertak (konstruksjon): Råteskader i taksperre over terrasse.
- Frittstående byggverk (anneks): Store skjevheter i konstruksjonen
Tilstandsgrad 2 (TG2 – vesentlige avvik, slitasje eller eldre standard):
Kjøkken:
- Ingen kjøkkenventilator.
- Løse fliser på vegg over komfyr.
- Glipper i skjøter på laminatgulv.
- Slitasje på kjøkkeninnredning.
Øvrige rom (stue og alkove):
- Fuktskjolder på vegg etter tidligere lekkasje.
- Maur- og soppangrep på taksperre i alkove.
- Glipper i laminatgulv.
- Slitasje på tregulv ved ytterdør.
Krypekjeller:
- Manglende ventiler for lufting.
- Manglende fuktsperre mot grunn.
Elektrisk anlegg:
- Manglende samsvarserklæring.
- Manglende kursfortegnelse i sikringsskap.
Vinduer og dører:
- Slitasje og elde på vinduer og ytterdør.
Yttertak:
- Slitasje på skorstein over tak.
Balkong/terrasse/trapp:
- Rekkverk på overbygget terrasse er for lavt i forhold til dagens krav.
- Skjevheter og svikt i terrasseplatting.
- Slitt overflate på utvendig trapp.
Drenering:
- Drenering har oppnådd alder der funksjonssvikt ikke kan utelukkes
Se supplerende tekst i tilstandsrapporten. Kjøper overtar ansvar og risiko for dette.
Moderniseringer og påkostninger
Selger opplyser om arbeid som har blitt utført: Riving av gammelt materiale, nytt ta, nytt innertak med isolering, nye gulv, ny rentbrennende peisovn, nytt eklektisk anlegg, nybeiset, ny platting, nye anneks, ny verktøybod, opparbeiding av tomt. ved egeninnsats med bistand av tømrer, eklektiker og rørlegger.
Standard
Velkommen til en sjarmerende fritidsbolig som gir deg alt du trenger for et avslappende opphold på hytta. Hytta ligger idyllisk til med gode solforhold og nærhet til naturen – perfekt for deg som ønsker ro og rekreasjon.
ENTREE/TERRASSE
Adkomst til boligen via overbygget terrasse på 7kvm. Praktisk inngangsparti som tar deg rett inn i oppholdsrommet.
Terrasseplatting er oppmålt til 22kvm
STUE
Lys og trivelig stue med plass til sofagruppe og spisebord. Vedovn bidrar til en lun atmosfære. Fra stuen er det utgang til stor terrasseplatting med fine solforhold.
KJØKKEN
Eldre kjøkkeninnredning med hvite profilerte fronter og laminert benkeplate. Kjøkkenet er utstyrt med keramisk komfyr, oppvaskkum i rustfritt stål, samt frittstående kjøleskap og fryser. Det er naturlig ventilasjon i rommet.
BADEROM
Baderommet er innredet med dusjkabinett og har enkel, men praktisk standard.
ØVRIGE ROM
Sovealkove i tilknytning til stuen, egnet for seng eller køyeseng. Praktisk løsning som utnytter plassen godt.
HEMS
Liten hems med lav takhøyde, tilgjengelig via stige eller liten trapp. Passer fint til oppbevaring. Arealet måles til 5kvm, men grunnet lav takhøyde er ingen deler av arealet måleverdig som bruksareal.
ANNEKS
Frittstående anneks på ca. 4 kvm oppført i trekonstruksjon. Innredet som ekstra soveplass eller hobbyrom. Egen terrasse på ca. 11 kvm gir en koselig uteplass foran annekset.
Det er to frittstående anneks på 8 kvm og 13kvm, disse er er ikke tilstandsvurdert, kun oppmålt.
Eiendommen har krypekjeller med adkomst via luke i grunnmur. Det er ikke etablert ventiler for gjennomlufting eller fuktsperre mot grunn, noe som medfører risiko for fukt- og råteskader. Kjøper oppfordres til jevnlig ettersyn og eventuelle tiltak.
Alt av møbler og utstyr som finnes igjen i hytte, annekser og verktøybod medfølger.
Løsøre og tilbehør
Vi viser til liste fra Norges Eiendomsmeglerforbund som gjelder fra 01.01.2020 angående løsøre og tilbehør.
Oppvarming
Elektrisk oppvarming kombinert med vedfyring
Ferdigattest/brukstillatelse
Eiendommen har vært brukt til fritidsformål siden 1958.
Kommunen opplyser at det ikke foreligger ferdigattest eller midlertidig brukstillatelse for eiendommen. Det finnes av den grunn ikke dokumentasjon over eiendommens lovlighet i kommunens arkiv.
Kjøper overtar eiendommen slik den fremstår på visning med risiko og ansvaret for eventuelle pålegg fra kommunen og kostnader forbundet med dette.
Tinglyste heftelser og rettigheter
Eiendommen overdras fri for pengeheftelser.
Det er tinglyst følgende servitutter på eiendommen:
Dagboknr. 111408, tinglyst 28.11.1989.
Dokumentet gjelder blant annet målebrev og grensebeskrivelse for eiendommen med et registrert areal på 891 m². Erklæringen inneholder informasjon om utført grensejustering og oppmåling i regi av Teig Hyttevel v/Astrid Lorentzen, samt bekreftelse fra oppmålingsmyndighet og bestyrer.
Servituttene vil følge eiendommen, og kjøpers bank vil få prioritet etter ovennevnte heftelser og servitutter.
Eventuell adgang til utleie
Fritidseiendommen har ikke separat utleiedel. Det vil normalt være anledning til utleie av hele eiendommen eller enkeltrom, såfremt utleiearealet er bygningsmessig godkjent for varig opphold. Det er ikke krav om radonmåling på fritidsbolig.
Diverse
Vi er opptatt av verdiskapning, og har knyttet til oss samarbeidspartnere som skal sikre våre kunder de beste produkter og tjenester;
• Gjensidige leverer boligselgerforsikring og tilbyr bygningsforsikring
• Boligkjøperforsikring leveres av Hiscox og med Sedgwick som skadebehandler, og er formidlet gjennom Gjensidige.
• BN bank tilbyr finansieringsløsninger
• Vår avdeling Krogsveen Pluss tilbyr flyttetjenester som utvask, visningsvask, lager, tømming og transport av flyttelass, i tillegg til å formidle kontakt med Flip for overflateoppussing.
• I forbindelse med overtagelse av eiendommen tilbyr Overo avtale om strøm, alarm og bredbånd.
• Krogsveen er, sammen med øvrige bransjeaktører, medeier i den digitale annonseringsplattformen Hjem.
Beliggenhet og tomteforhold
Beliggenhet og tomteforhold
Beliggenhet
Eiendommen har en landlig og rolig beliggenhet langs Fetveien, med nærhet til både flotte friluftsområder og daglige servicetilbud. Her bor du i et familievennlig område, samtidig som du enkelt kommer deg til større byer.
Offentlig transport er lett tilgjengelig, med nærmeste bussholdeplass kun 4 minutters gange unna (Teig, linje 490). Togforbindelser finnes ved både Svingen og Fetsund stasjon, som ligger ca. 27–29 minutter unna med bil, og gir videre forbindelse til Oslo via linje R14.
For pendlere er det verdt å merke seg at Oslo sentrum nås på under én time, og det er også kort kjørevei til både Lillestrøm (ca. 36 min) og Mysen (ca. 27 min). Oslo Lufthavn Gardermoen ligger ca. 59 minutter unna med bil.
Området byr i tillegg på gode aktivitetsmuligheter med både idrettsanlegg, treningssentre, golfklubb og turmuligheter innen kort avstand.
Adkomst
Det vil bli skiltet med Krogsveen visningsskilt ved fellesvisninger.
Barnehager, skoler og fritid
OFFENTLIG TRASPORT
Teig (bussholdeplass) – 4 min unna (0,4 km)
Svingen stasjon – 27 min unna (21,8 km)
Fetsund stasjon – 29 min unna (22,2 km)
Oslo Gardermoen – 59 min unna
AVSTAND TIL BYER
Mysen – 27 min
Lillestrøm – 36 min
Oslo – 58 min
ANNET
Bunnpris Båstad 7 min
Coop Prix Hemnes 11 min
Løken senter 17 min
Informasjon om tilhørende skolekretser er hentet fra Prognosesenteret som dataleverandør, og tilhørigheten kan årlig endres av kommunen. Dersom skole- og barnehagetilbud er av betydning for kjøpet, ber vi om at det rettes en særskilt henvendelse til kommunen/bydelsadministrasjonen for oppdatert informasjon.
Beskrivelse av tomt
Eiertomt på 891 kvm, opparbeidet med gressplen, trær, prydbusker og diverse beplanting.
Parkering
Eiendommen har gruset gårdsplass med 2 biloppstillingsplasser innenfor tomtegrensen. I tillegg opplyser selger om 1 tilgjengelig parkeringsplass ca. 30 meter fra hytta.
Vei, vann og avløp
Eiendommen har adkomst via privat vei.
Eiendommen har tilgang til sommervann via andel i felles vannanlegg organisert gjennom Teig Hyttevel. Vannretten er dokumentert med andelsbrev, datert 01.07.2020. Det foreligger ikke dokumentasjon på drikkevannskvalitet og det er i forbindelse med salget ikke undersøkt eller tatt vannprøver. Det tas forbehold om vannkvalitet.
Kontakt megler for ytterligere informasjon.
Regulerings-og arealplaner
Eiendommen ligger i et uregulert område, men er i kommuneplan avsatt til LNF - område
Utsnitt av plan med tilhørende bestemmelser kan fås ved henvendelse til megler.
Det gjøres oppmerksom på at én av anneksene er plassert delvis utenfor eiendommens tomtegrense.
Økonomi
Økonomi
Kommunale utgifter
Kommunale avgifter for inneværende år er estimert til ca. kr 3 016,-. I dette inngår gebyr for renovasjon (mat- og restavfall) og feiing/tilsyn.
Beløpet er basert på prognose fra Lillestrøm kommune for 2025 og kan variere noe avhengig av faktisk forbruk og eventuelle endringer i gebyrsatser.
Brannvesenet er pålagt å føre tilsyn med, og å feie pipeløp i alle fritidseiendommer. Dette innebærer et feie- og tilsynsgebyr på kr 556,- pr. år. Det kan påløpe kostnader til utbedring for kjøper dersom det gis pålegg ved fremtidige tilsyn. Kontakt kommunen for informasjon om siste tilsyn og eventuelle pålegg. Dersom pålegg foreligger, skal dette fremgå under punktet om oppvarming i salgsoppgaven.
Nåværende eier har et strømforbruk som tilsvarer ca. kr 350,- pr. mnd.
Boligen har en årlig forsikringspremie på kr 4 000,-.
Velavgift er oppgitt å være mellom kr 200 og 1 500,- pr. år.
Boligen er ikke tilknyttet alarmselskap.
Utgiftene er basert på nåværende eiers forbruk og avtaler, og kan variere ved eierskifte.
Formuesverdi
Formuesverdi for 2023 var kr 103 116,- ifølge selger/skatteetaten.
Omkostninger
890 000,00 Prisantydning
Omkostninger
22 250,00 Dokumentavgift til staten (2,5% av kjøpesum)
19 900,00 Gjensidige Boligkjøperpakke (valgfri)
545,00 Tinglysing panterettsdokument
545,00 Tinglysing skjøte
--------------------------------------------------------
43 240,00 Omkostninger totalt
--------------------------------------------------------
933 240,00 Totalpris inkl. omkostninger
--------------------------------------------------------
Totalpris inkl. omkostninger forutsetter kjøp til prisantydning.
Det tas forbehold om endringer i avgifter og gebyrer.
Betalingsbetingelser
Kjøpesum inkludert omkostninger, samt pantedokument tilknyttet eventuelt lån, skal være disponibelt hos megler 2 virkedager før overtagelsen.
Annen viktig informasjon
Annen viktig informasjon
Eier
Tor Harald Skjærsvold
Overtakelse
Etter nærmere avtale.
Velforening
Boligen er tilknyttet Teig Hyttevel, representert ved Tove Almås Velforening.
Årlig kostnad til velforeningen varierer mellom kr 200 og kr 1 500, avhengig av eventuelle vedlikeholdsprosjekter som gjennomføres. Velforeningen har midler på bok.
Boligselgerforsikring
Selger har i forbindelse med salget tegnet boligselgerforsikring levert av Gjensidige.
Boligselgerforsikringen dekker selgers ansvar etter avhendingsloven begrenset oppad til kr 14 millioner. Dersom kjøper oppdager forhold ved eiendommen som hen mener utgjør en mangel ved eiendommen, vil Gjensidige behandle reklamasjonen på vegne av selger. Forsikringsvilkår kan fås ved henvendelse til megler.
Vedlagt salgsoppgaven følger selgers egenerklæringsskjema og tilstandsrapport. Interessenter må sette seg inn i dokumentene før bud inngis.
Boligkjøperforsikring
Innen kontraktsmøtet må kjøper ta stilling til om det ønskes å bestille Boligkjøperpakken gjennom Gjensidige. I denne gunstige pakken er boligen ferdig forsikret og inkluderer rettshjelpsforsikring, også kalt Boligkjøperforsikring. Rettshjelpsforsikring gir trygghet og tilgang på profesjonell juridisk hjelp dersom det oppdages uventede feil eller mangler det første året etter overtagelse. Forsikringsselskapet behandler i så fall ethvert mangelskrav kjøper måtte ha overfor selger.
Boligkjøperpakken inkluderer bygningsforsikring for hus og hytte, innboforsikring, flytteforsikring og dobbel rentedekning - i situasjoner hvor kjøper ikke får solgt nåværende primærbolig.
Kjøper mottar ingen særskilt faktura for Boligkjøperpakken da kostnaden det første året legges til kjøpesummen for boligen. Det gjøres oppmerksom på Krogsveen mottar et honorar for denne formidlingen.
Produktark for Boligkjøperpakken ligger vedlagt i salgsoppgaven.
Dersom ikke boligkjøperpakke ønskes kan kun rettshjelpsforsikring, også kalt boligkjøperforsikring, tegnes særskilt via megler. Rettshjelpsforsikringen varer i 5 år fra overtagelse og leveres gjennom Gjensidige. Ta kontakt med megler for ytterligere informasjon.
Selskap og privatpersoner som driver med kjøp/salg/utvikling som ledd i egen næringsvirksomhet kan ikke tegne boligkjøperpakke eller rettshjelpsforsikring.
Budgivning
Forbrukerinformasjon om budgivning er vedlagt denne salgsoppgaven og er også på vår hjemmeside www.krogsveen.no. Alle bud og budforhøyelser må inngis skriftlig. I tillegg må legitimasjon være fremlagt sammen med signatur fra budgiver.
Vi oppfordrer til å gi bud elektronisk via GI BUD-knappen på eiendommens hjemmeside på Krogsveen.no. Da vil samtlige vilkår bli oppfylt.
Eventuelle forhøyelser eller endringer av budet kan bekreftes pr SMS eller på e-post. Vi oppfordrer alltid til å kontakte megler pr. telefon i tillegg da forsinkelser i SMS og e-post kan forekomme.
For at budene skal kunne bli behandlet og videreformidlet skriftlig til alle involverte parter, må alle bud ha en tilstrekkelig lang akseptfrist, jf. eiendomsmeglingsforskriften § 6-3.
Selger må også skriftlig akseptere budet før aksept kan formidles til budgiver. Akseptfrist bør derfor være på minimum 30 minutter, og budforhøyelser må derfor skje i god tid før fristens utløp.
Bud i forbrukerforhold kan uansett ikke settes med kortere frist enn kl. 12.00 første virkedag etter siste annonserte visning.
Etter at eiendommen er solgt vil kjøper og selger få tilsendt budjournal. Øvrige budgivere kan få utlevert kopi av budjournalen i anonymisert form.
Hvitvaskingsreglene
I henhold til lov om hvitvasking og terrorfinansiering har megler plikt til å gjennomføre kontrolltiltak overfor kunder, herunder fullmektiger. Dette innebærer bl.a. å bekrefte kunders og reelle rettighetshaveres identitet på bakgrunn av fremvist gyldig legitimasjon eller på annen godkjent måte, samt å innhente opplysninger om kundeforholdets formål og tilsiktede art.
Dersom slike kundetiltak ikke kan gjennomføres, kan megler ikke etablere kundeforholdet eller utføre transaksjonen.
Hvis kjøper ikke bidrar til gjennomføring av kundekontrollen og dette fører til at transaksjonen blir forsinket eller ikke kan gjennomføres, vil dette ansees som mislighold av avtalen og gi selger rettigheter etter avhendingslova kapittel 5. I tilfeller der selger ikke bidrar til gjennomføring av løpende kundekontroll underveis i oppdraget, er det selger som misligholder sine forpliktelser etter avtalen og gi kjøper rettigheter etter avhendingslovens kapittel 4. Partene er selv ansvarlige for eventuelle kostnader og ansvar dette kan medføre. Eiendomsmegleren eller eiendomsmeglingsforetaket kan ikke holdes ansvarlig for de konsekvenser dette vil kunne få for partene eller andre som har interesser i eiendomshandelen.
Kjøper oppfordres til å innbetale kjøpesummen som ikke kommer fra låneinstitusjon i én samlet innbetaling fra egen konto i norsk bank. Megler har plikt til å melde fra til Økokrim om eiendomshandler som fremstår som mistenkelige. Melding sendes Økokrim uten at partene varsles.
Personopplysningsloven
I henhold til personopplysningsloven gjør vi oppmerksom på at interessenter kan bli registrert for videre oppfølging.
Lovanvendelse
Generelle bestemmelser
Salgsoppgaven er basert på de opplysningene selger har gitt til megler, den bygningssakyndiges tilstandsrapport, samt opplysninger innhentet fra kommunen, Kartverket og andre tilgjengelige kilder. Det er viktig at kjøper setter seg grundig inn i alle salgsdokumentene, herunder salgsoppgave, tilstandsrapport og selgers egenerklæring. Kjøper anses kjent med forhold som er tydelig beskrevet i salgsdokumentene, og slike forhold kan ikke påberopes som mangler. Dette gjelder uavhengig av om kjøper har lest dokumentene. Alle interessenter oppfordres til å undersøke eiendommen nøye, gjerne sammen med fagkyndig før bud inngis. Kjøper som velger å kjøpe usett kan ikke gjøre gjeldende som mangel noe han burde blitt kjent med ved undersøkelsen.
Dersom det er behov for avklaringer, anbefaler vi at interessenter rådfører seg med eiendomsmegler eller egne rådgivere før det legges inn bud.
En bolig som har blitt brukt i en viss tid, har vanligvis blitt utsatt for slitasje og skader kan ha oppstått. Slik bruksslitasje må kjøper regne med, og det kan avdekkes enkelte forhold etter overtakelse som nødvendiggjør utbedringer. Normal slitasje og skader som nødvendiggjør utbedring, er innenfor hva kjøper må forvente og vil ikke utgjøre en mangel.
Kjøper og selgers rettigheter og plikter reguleres av avtalen mellom partene, samt informasjonen som har vært tilgjengelig for kjøperen i forbindelse med handelen. Avtalen utfylles av avhendingsloven, og det gjelder ulike avtalevilkår avhengig av om kjøper er forbrukerkjøper eller ikke. Dette er nærmere beskrevet nedenfor.
På grunn av ulike avtalevilkår kan selger vurdere bud fra en som ikke er forbruker, ulikt fra en forbrukers bud. Dersom kjøper ikke er forbruker, er selger sitt mulige mangelsansvar begrenset fordi eiendommen selges "som den er". Selger kan ikke ta «som den er»- forbehold overfor en forbrukerkjøper. Selv et lavere bud fra en som ikke er forbruker kan foretrekkes fordi begrensningen i mulig mangelsansvar kan ha egenverdi for selger. Selger står fritt til å forkaste eller akseptere ethvert bud, og er for eksempel ikke forpliktet til å akseptere høyeste bud.
Budgiver skal i budskjema avgi egenerklæring om budgiver er forbruker eller næringsdrivende/ person som hovedsakelig handler som ledd i næringsvirksomhet. Budgivere får informasjon dersom andre bud er inngitt av en som ikke er forbruker.
Forbrukerkjøp - definisjon
Med forbrukerkjøp menes kjøp av eiendom når kjøperen er en fysisk person som ikke hovedsakelig handler som ledd i næringsvirksomhet.
Forbruker – avtalevilkår
Eiendommen har en mangel dersom den ikke er i samsvar med kravene som følger av avtalen, eller det foreligger brudd på bestemmelsene i avhendingsloven §§ 3-2 til 3-8. Hvis eiendommen ikke er i samsvar med det kjøperen må kunne forvente ut ifra alder, type og synlig tilstand, kan det være grunnlag for mangelskrav. Det samme gjelder hvis det er holdt tilbake eller gitt uriktige opplysninger om eiendommen. Dette gjelder likevel bare dersom man kan gå ut ifra at det virket inn på avtalen at opplysningen ikke ble gitt eller at mangelskravet ikke blir rettet i tide på en tydelig måte.
Boligen kan ha en mangel etter avhendingsloven § 3-3 andre ledd, dersom det er avvik mellom opplyst og faktisk innvendig areal, forutsatt at avviket er på 2% eller mer og minimum 1 kvm.
Ved beregning av et eventuelt prisavslag eller erstatning må kjøper selv dekke tap/kostnader opptil et beløp på kr 10 000 (egenandel).
Ikke-forbruker (næringsdrivende) – definisjon
Hvis kjøper er en juridisk person, eller en fysisk person som hovedsakelig handler som ledd i næringsvirksomhet, vil kjøpet ikke anses som et forbrukerkjøp.
Ikke-forbruker – avtalevilkår
Eiendommen har en mangel dersom den ikke er i samsvar med kravene som følger av avtalen.
Eiendommen selges «som den er», og selgers ansvar utover det konkret avtalte er da begrenset etter avhendingsloven § 3-9, første ledd andre setning.
Avhendingsloven § 3-3 andre ledd fravikes, og hvorvidt boligens arealsvikt utgjør en mangel vurderes etter avhendingsloven § 3-8.
Informasjon om kjøpers undersøkelsesplikt, herunder oppfordringen om å undersøke eiendommen nøye, gjelder også for kjøpere som ikke anses som forbrukere.
Det forutsettes at hjemmel overføres til kjøper. Hvis kjøper ikke ønsker hjemmelsoverføring av eiendommen, må det tas forbehold om dette i budet.
Meglers vederlag
Meglers vederlag betales av selger og er avtalt til:
Vederlag: kr 50 000,-
Vederlag
Foto Image Day kr 2 500,-
Kontroll av hjemmel og heftelser kr 2 900,-
Markedsføringspakke Fritid og Tomt kr 27 400,-
Oppgjør kr 7 500,-
Tilrettelegging kr 17 000,-
Visninger kr 4 000 utover 1 gratis
Utlegg
Innhenting av offentlig opplysninger kr 756,-
Tinglysing sikring kr 545,-
Innhenting av dokumenter/servitutter fra grunnboken kr 260,- pr stk
Opplysninger om oppdraget
Oppdragsnummer 60-0112/25
Eiendomsmegler Krogsveen AS, avd. Lillestrøm
Adolph Tidemands gate 38, 2000, LILLESTRØM
950 007 613
Oppdragets KR-kode KR60.25112
Dato
Sist oppdatert: 05. desember 2025 kl. 12:48
Dokumenter
Dokumenter
PDF – 373 KB
PDF – 363 KB
PDF – 312 KB
PDF – 29 KB
PDF – 127 KB
PDF – 392 KB
Område
Legg til steder som er viktige for deg
Visning
Det er ingen planlagte visninger. Meld deg på for å avtale en tid som passer.
Lurer du på noe?
Vurderer du utleie?
Få et tilbud fra Utleie KrogsveenHva koster lånet?
Sjekk estimert lånekostnadVil du varsles om lignende boliger?
Ved å lagre ditt boligsøk hos oss får du beskjed når vi har en bolig som ligner denne, før den legges ut på markedet!

