P. T. Mallings vei 33 A
18 900 000 kr
211 m²
4 soverom
Solgt

Bygdøy
Sjarmerende enebolig over 3 plan med romslig hage i et ettertraktet område - Flotte solforhold - Familievennlig - Hybel
Prisantydning
18 900 000 krOmkostninger
493 490 krTotalpris
19 393 490 kr
Pris
Bruksareal
211 m²BRA-I (internt bruksareal)
211 m²TBA (terrasse-balkongareal)
6 m²
Areal
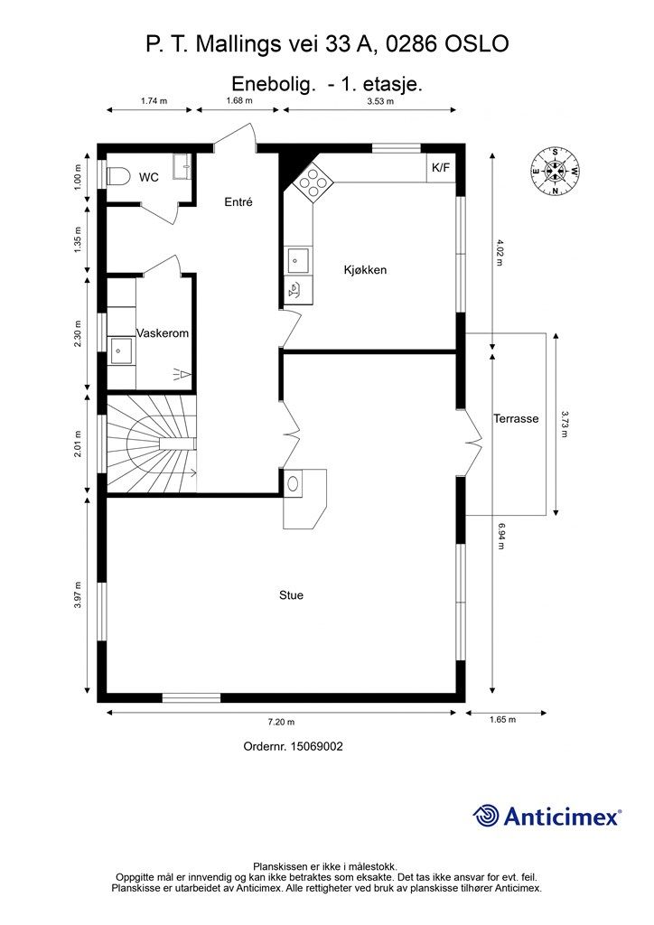
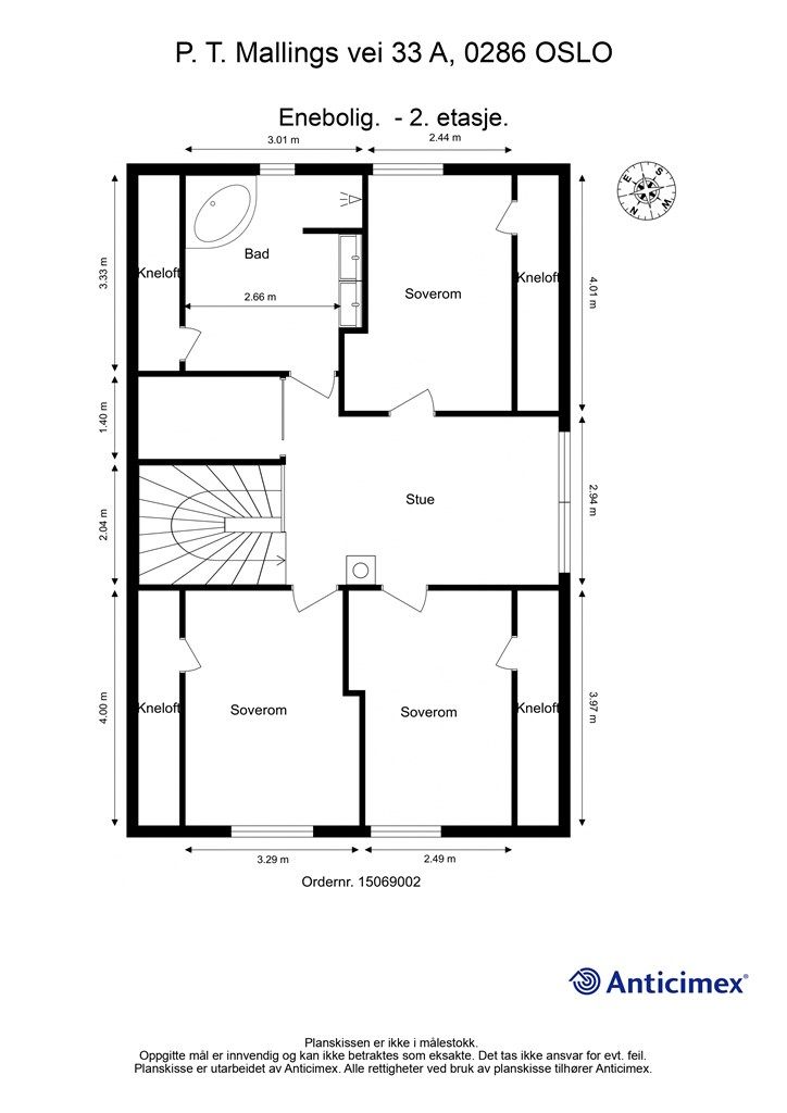
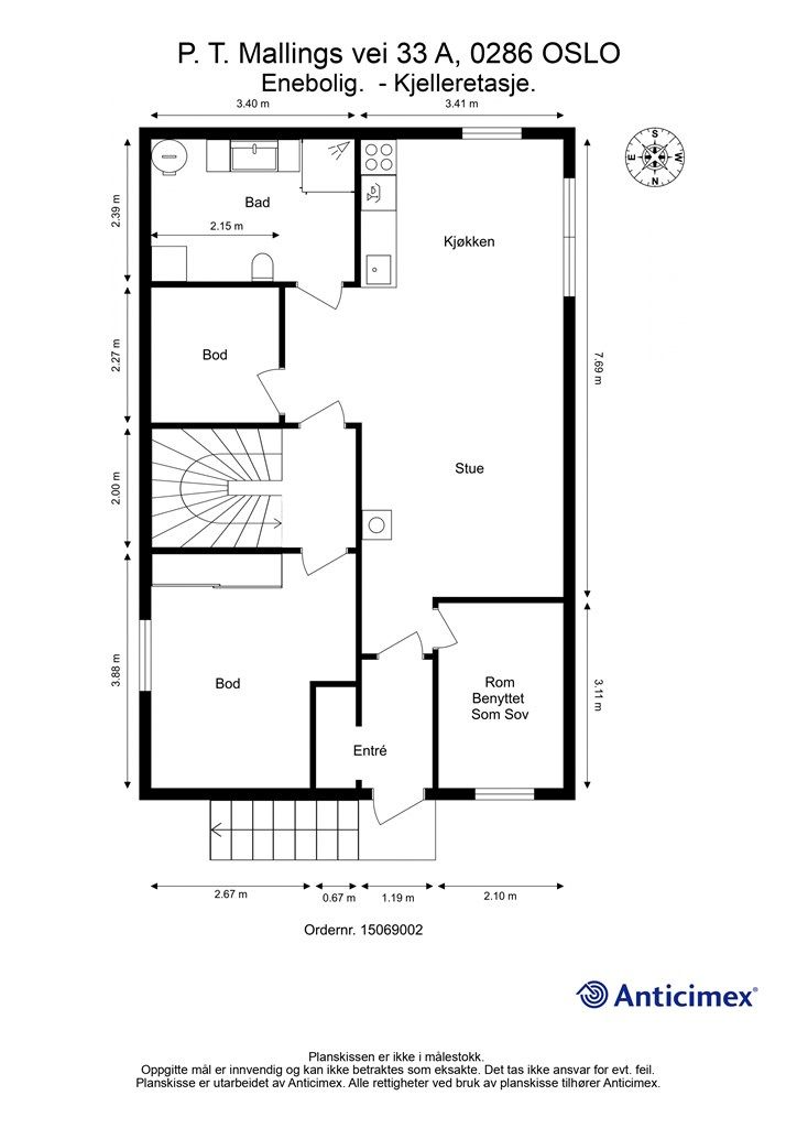
Etasje
3Byggeår
1997Soverom
4 soveromBad
3 badTomteareal
732 m² (eiet)Type
Enebolig - FrittliggendeEierform
EietFasiliteter
Balkong/TerrasseEnergimerke
Rød E
Nøkkelinfo
Unngå doble boligrenter
Vi tilbyr gunstig forsikring.
Vurderer du utleie?
Få et tilbud fra Utleie KrogsveenHva koster lånet?
Sjekk estimert lånekostnadBeskrivelse
Kort om eiendommen
Drømmer du om å bo i landlige omgivelser nær sjøen, men allikevel med nærhet til Oslo sentrum? Bo i et nabolag hvor barna kan vokse opp i trygge omgivelser, med gåavstand til både skole, barnehager og strand? Da bør du ta turen innom denne visningen! Frittliggende enebolig på romslig tomt. Boligen går over 3 plan og har en familievennlig planløsning med gode, luftige oppholdsrom og separat inngang til underetasjen.
Kort fortalt:
- Innholdsrik enebolig fra 1997
-3 bad/WC og 3/4 soverom
- Vaskerom
- Nyoppusset (2023/2024) underetasje med separat inngang og mulighet for utleie av hybel
- Nymalte overflater i flere rom
- Flotte uteplasser og skjermet hage
- Parkering på egen tomt for to eller flere biler
- Rikelig med bodplass
- Barnevennlig beliggenhet med tøffelavstand til Huk
Velkommen!
Område
Legg til steder som er viktige for deg
På flyttefot? Tenk kjøp og salg samtidig.
Få din egen rådgiver gjennom hele kjøps- og salgsprosessen. Det starter med en verdivurdering.
Unngå doble boligrenter
Vi tilbyr gunstig forsikring.
Vurderer du utleie?
Få et tilbud fra Utleie KrogsveenHva koster lånet?
Sjekk estimert lånekostnadVil du varsles om lignende boliger?
Ved å lagre ditt boligsøk hos oss får du beskjed når vi har en bolig som ligner denne, før den legges ut på markedet!

