Nydalsenga 40B
3 850 000 kr
69 m²
3 soverom
Solgt
Furnes/Nydal
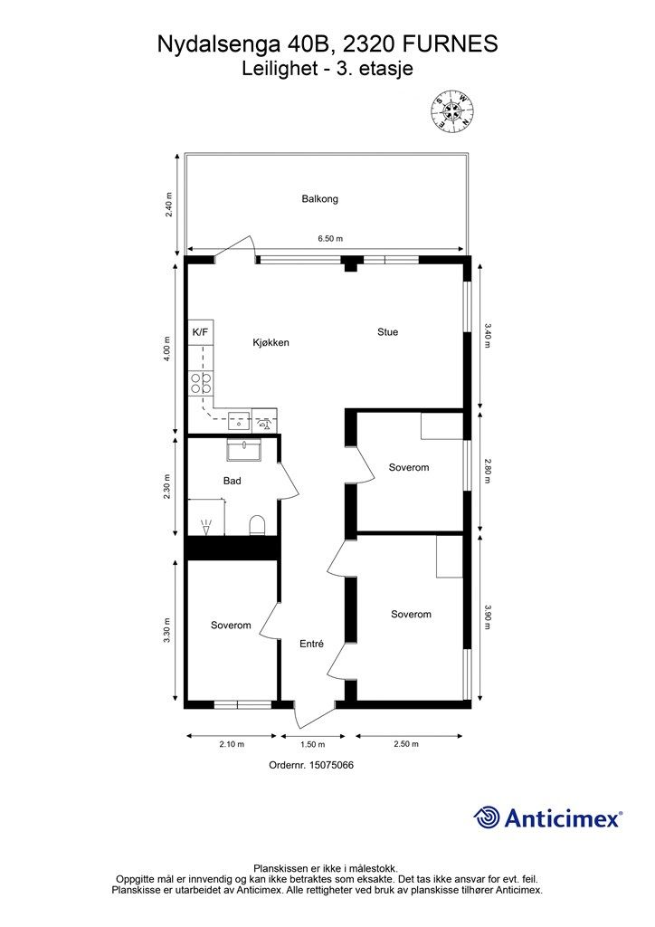
Nyere og tiltalende 4-roms fra 2022. Topp- og endeleilighet, garasjeplass, balkong og heis. Fin intern beliggenhet.
Prisantydning
3 850 000 krOmkostninger
107 290 krTotalpris
3 957 290 kr
Pris
Bruksareal
74 m²BRA-I (internt bruksareal)
69 m²BRA-E (eksternt bruksareal)
5 m²TBA (terrasse-balkongareal)
16 m²
Areal
Etasje
3Byggeår
2022Soverom
3 soveromBad
1 badType
EierleilighetEierform
EierseksjonFasiliteter
Garasje/P-plass, Heis og Balkong/TerrasseFellesutgifter
5 772 krEnergimerke
Grønn B
Nøkkelinfo
Unngå doble boligrenter
Vi tilbyr gunstig forsikring.
Vurderer du utleie?
Få et tilbud fra Utleie KrogsveenHva koster lånet?
Sjekk estimert lånekostnadBeskrivelse
Kort om eiendommen
Moderne og praktisk 4-roms eierleilighet beliggende midt i mellom Hamar og Brumunddal. Leiligheten er fra 2022 og har gjennomgående flotte farge- og materialvalg, sydvestvendt balkong på 16 kvm og god planløsning. Fin intern beliggenhet på enden i 3. etasje, noe som gjør at det ikke er videre adkomst til andre leiligheter. 2 av 3 soverom er orientert mot nord som gir behagelig temperatur på sommerhalvåret. Kjøkken og stue i åpen løsning med plass til flere møbleringssoner, samt utgang til balkongen med plass til utemøblement. Adkomst via heis.
Det medfølger én parkeringsplass i garasjekjeller, med mulighet for å montere elbillader. Sportsbod i bakkant av parkeringsplass. Gangavstand til matbutikk og kun ca. 10 minutters kjøretid til Hamar. Ingen TG2 eller TG3 i tilstandsrapport!
Område
Legg til steder som er viktige for deg
På flyttefot? Tenk kjøp og salg samtidig.
Få din egen rådgiver gjennom hele kjøps- og salgsprosessen. Det starter med en verdivurdering.
Unngå doble boligrenter
Vi tilbyr gunstig forsikring.
Vurderer du utleie?
Få et tilbud fra Utleie KrogsveenHva koster lånet?
Sjekk estimert lånekostnadVil du varsles om lignende boliger?
Ved å lagre ditt boligsøk hos oss får du beskjed når vi har en bolig som ligner denne, før den legges ut på markedet!




