Torgny Segerstedts vei 188
3 390 000 kr
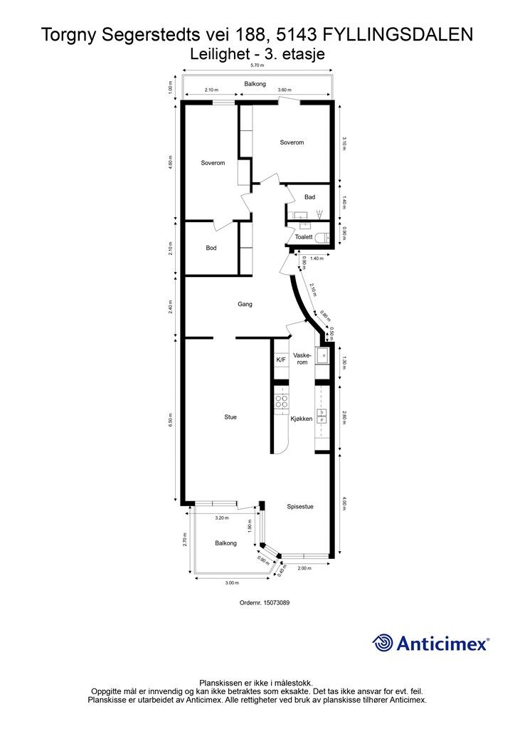
94 m²
2 soverom
Solgt

Presenteres av
Henriette MuriOppussingsobjekt - Stor 3-roms i ett av Fyllingsdalens mest ettertraktede borettslag-Like ved bybanen og Oasen
Prisantydning
3 390 000 krAndel fellesgjeld
33 678 krOmkostninger
19 252 krTotalpris
3 442 930 kr
Pris
Bruksareal
97 m²BRA-I (internt bruksareal)
94 m²BRA-E (eksternt bruksareal)
3 m²TBA (terrasse-balkongareal)
14 m²
Areal
Etasje
4Byggeår
1973Soverom
2 soveromBad
1 badType
AndelsleilighetEierform
AndelFasiliteter
Balkong/TerrasseFellesutgifter
5 648 krEnergimerke
Rød E
Nøkkelinfo
Unngå doble boligrenter
Vi tilbyr gunstig forsikring.
Vurderer du utleie?
Få et tilbud fra Utleie KrogsveenHva koster lånet?
Sjekk estimert lånekostnadBeskrivelse
Kort om eiendommen
Velkommen til Torgny Segerstedts vei 188! En koselig leilighet i hjertet av Fyllingsdalen med gangavstand til bybanen og Oasen kjøpesenter, samt til skole og barnehager.
Høydepunkter:
Skap ditt drømmehjem!
Romslig leilighet
Solrik, vestvendt beliggenhet- fra ca. 13 til 22.30 sommerstid
Østvendt balkong med morgensol fra den står opp til ca. 10
Fin plassering i borettslaget
Høy og fri beliggenhet med flott utsikt
Bybanen, samt sykkel- og gangtunnelen tar deg raskt til Minde/Haukeland/sentrum
Svært gode turmuligheter i området
Meget romslig stue
God skap- og oppbevaringsplass
Varmtvann inkl. i fellesutgiftene
Under 10 minutter kjøretid til Bergen Sentrum
Område
Legg til steder som er viktige for deg
På flyttefot? Tenk kjøp og salg samtidig.
Få din egen rådgiver gjennom hele kjøps- og salgsprosessen. Det starter med en verdivurdering.
Unngå doble boligrenter
Vi tilbyr gunstig forsikring.
Vurderer du utleie?
Få et tilbud fra Utleie KrogsveenHva koster lånet?
Sjekk estimert lånekostnadVil du varsles om lignende boliger?
Ved å lagre ditt boligsøk hos oss får du beskjed når vi har en bolig som ligner denne, før den legges ut på markedet!
På flyttefot? Slik gjør vi det enklere for deg
Skreddersydd flyttepakke
Vi fikser håndverkere, vask, pakking, lagring og transport, og legger ut for utgiftene underveis.
Hjelp med både kjøp og salg
Hos oss har du din egen rådgiver gjennom hele kjøps- og salgsprosessen.
Hjelp til finansiering
Vårt samarbeid med BN Bank sikrer deg rask og løsningsorientert hjelp, til konkurransedyktige betingelser.

