Nyhavn 13
3 990 000 kr
46 m²
1 soverom
Komplett salgsoppgave
Nyhavn
Nyhavn-Lekker 2-roms eierleilighet et lite steinkast fra sjø & bademuligheter. God standard, bygget i 2017. Trappefritt
Prisantydning
3 990 000 krOmkostninger
110 790 krTotalpris
4 100 790 kr
Pris
Bruksareal
51 m²BRA-I (internt bruksareal)
46 m²BRA-E (eksternt bruksareal)
5 m²TBA (terrasse-balkongareal)
19 m²
Areal
Etasje
1Byggeår
2017Soverom
1 soveromBad
1 badType
EierleilighetEierform
EierseksjonFellesutgifter
1 538 kr
Nøkkelinfo
Unngå doble boligrenter
Vi tilbyr gunstig forsikring.
Vurderer du utleie?
Få et tilbud fra Utleie KrogsveenHva koster lånet?
Sjekk estimert lånekostnadBeskrivelse
Kort om eiendommen
Innhold og byggemåte
Innhold og byggemåte
Eiendommen
Nyhavn 13, 5042 BERGEN
Kommunenummer 4601, gårdsnummer 168, bruksnummer 2142, seksjonsnummer 2
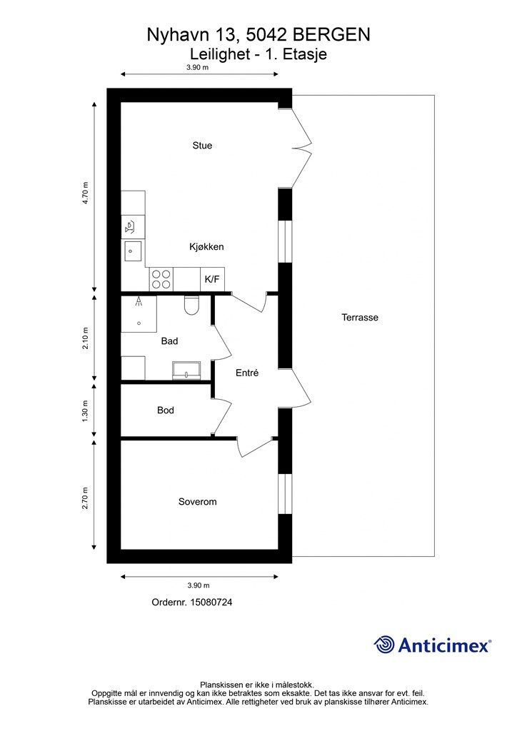
Innhold
Totalt bruksareal BRA: 51 kvm
BRA-i:
Leilighet:
1. etasje 46 kvm: Entre, bod, bad, soverom, stue og kjøkken
BRA-e:
Leilighet:
1. etasje 5 kvm: Bod
Åpent areal:
Leilighet:
1. etasje 19 kvm: Terrasse
Boligen disponerer 1 ekstern bod i Hollenderboden, det betales inn kostnader for drift av bodareal i felleskostnadene etter sameiebrøk. Det gjøres oppmerksom på at boligens eksterne boder tilhører sameiets fellesareal, og at boden således ikke eies av den enkelte sameier/andelseier. Dette medfører at sameiet/borettslaget i fellesskap beslutter bruken, og at man ikke selv har eierrett og rettsvern for boden. Sameiet/borettslaget kan ved vedtak beslutte annet bruk av fellesarealet og disponering av bodarealet kan dermed opphøre.
Vedlagte plantegninger er ikke målbare. De oppgitte arealer er hentet fra rapport med befaringsdato 08.04.2026 utført av Anticimex AS Bergen.
Byggemåte
Selger har fått utarbeidet en tilstandsrapport, dvs. en teknisk gjennomgang av boligen hvor eventuelle avvik, risiko for kjøper og prisoverslag for hva som bør gjøres av oppgradering, er skissert. Se særskilt TGIU (tilstandsgrad ikke undersøkt), samt TG2 og TG3 som viser hva som er boligens normale slitasje, alder og type, hva som er avvik fra dette og hva som bør/må utbedres. Rapporten og selgers egenerklæring er en del av salgsoppgaven og må leses nøye før bud inngis. Kjøper overtar ansvaret for de opplysninger som fremkommer av salgsdokumentasjonen, og kan ikke gjøre gjeldende som mangel noe som burde vært kjent eller som ikke kan anses å ha betydning for avtalen.
Bygningen er iht. tilstandsrapporten oppført i i 2017. Grunnmur av betong. Bygget er oppført med støpt gulv mot grunn. Yttervegger i en kombinasjon av tre- og
betongkonstruksjoner. Utvendige fasader er kledd med fasadeplater. Utvendige fasader av synlig murverk. Etasjeskillere av betong. Flatt tak. Entrédør med
glassfelter. Vinduer med karmer av tre, som er utvendig belagt med metallplater. Terrassedør med karmer av tre, som er utvendig belagt med metallplater.
Boligen ventileres hovedsakelig gjennom et mekanisk balansert ventilasjonssystem (med varmegjenvinning).
Det gjøres spesielt oppmerksom på følgende punkter som har fått TG2:
Våtrom:
- Overflater vegg.
Det er registrert riss/sprekk i flis utenfor dusjvegg.
Følgende punkter har fått TGIU:
Våtrom:
- Konstruksjon i tilliggende konstruksjon ikke utført.
På grunn av våtrommets utforming og bruk er det ikke praktisk mulig å gjennomføre hulltaking. Det ble utført et overflatesøk med fuktindikator på utvalgte steder, uten funn som indikerer fuktskade.
Se supplerende tekst i tilstandsrapporten. Kjøper overtar ansvar og risiko for dette.
Moderniseringer og påkostninger
Leiligheten er påkostet 60x60 fliser i gang, samt montert høyskap på kjøkken for ekstra oppbevaringsplass.
Løsøre og tilbehør
Vi viser til liste fra Norges Eiendomsmeglerforbund som gjelder fra 01.01.2020 angående løsøre og tilbehør.
Lampe på vegg i stue medfølger ikke handelen.
Oppvarming
Oppvarming av boligen skjer i hovedsak ved bruk av vannbåren gulvvarme.
Ferdigattest/brukstillatelse
Det foreligger ferdigattest på eiendommen, datert 14.06.2018 Denne kan fås ved henvendelse til megler.
Tinglyste heftelser og rettigheter
Leiligheten overdras fri for pengeheftelser.
Sameiet har legalpant for krav mot sameieren som følger av sameieforholdet iht. eierseksjonsloven § 31. Pantet er begrenset oppad til 2G, (G = folketrygdens grunnbeløp).
Det er tinglyst følgende servitutter på sameiets eiendom:
Dagboknr: 1930861, tinglyst 10.09.2024, type heftelse: Bruksrett.
Omhandler bruksrett til miljøstasjon og pumpestasjon/VA-ledninger.
Servituttene vil følge eiendommen. Kjøpers bank vil få pant etter ovennevnte heftelser og servitutter.
Eventuell adgang til utleie
Leiligheten kan leies ut såfremt leiligheten har forsvarlige radonverdier. Leietaker må følge sameiets vedtekter og ordensregler på lik linje som eier.
Sameiet har følgende restriksjoner på korttidsutleie:
Korttidsutleie av hele boligseksjonen i mer enn 90 døgn årlig er ikke tillatt. Med korttidsutleie menes utleie i inntil 30 døgn sammenhengende.
Beliggenhet og tomteforhold
Beliggenhet og tomteforhold
Beliggenhet
Velkommen til Nyhavn 13! En sjarmerende og praktisk 2-roms eierleilighet, med en attraktiv beliggenhet i Nyhavn/Ytre Sandviken. Her bor du idyllisk til ved Nyhavn brygge, med sjøen like utenfor døren. Området byr på en rolig og maritim atmosfære, samtidig som du har enkel tilgang til byens fasiliteter. Den nære beliggenheten til sjøen gir gode muligheter for både bading og rekreasjon året rundt.
I hverdagen har du Joker praktisk plassert rett utenfor døren, noe som gjør handlingen både enkel og tilgjengelig. For et større utvalg dagligvarer finner du Rema 1000 Helleveien, Spar Øyjorden og Extra Måseskjæret en kort kjøretur unna. I tillegg finnes det flere servicetilbud i området som gjør hverdagen både effektiv og komfortabel.
Fra leilighetens markterrasse har du direkte utgang til rolige omgivelser med frisk sjøluft og nærhet til natur.
Området er populært blant både unge og etablerte, og er særlig attraktivt for studenter med kort avstand til NHH og nærhet til flere av byens utdanningsinstitusjoner. Beliggenheten gir en fin balanse mellom et tilbaketrukket bomiljø og nærhet til et aktivt student- og byliv.
400 meter fra leiligheten finner du busstoppet Gamle Bergen, der hyppige bussavganger tar deg inn til bykjernen eller nordover mot Åsane. For deg som liker å gå eller sykle, er det gode gang- og sykkelveier som tar deg effektivt inn til byen.
For den aktive finnes det flere treningsmuligheter i nærområdet, med NEXT Fitness Ytre Sandviken noen få minutters gange unna. Det er heller ikke langt til SATS Måseskjæret, hvor du også finner Heit Bergen Sauna. Det er også kort vei til byfjellet, der for eksempel Munkebotn tar deg inn i naturen.
Adkomst
Veibeskrivelse Se Google maps - det er enkelt å finne frem i kartet.
Det vil bli skiltet med Krogsveen visningsskilt ved fellesvisninger.
Barnehager, skoler og fritid
Barnehager:
-Nyhavn barnehage (0-5år)
-Vinterdalen barnehage (0-5år)
-Biskophavn barnehage (1-5år)
Skoler:
-Hellen skole (1.-7. klasse)
-Rothaugen skole (8.-10. klasse)
-Tertnes videregående skole
-Amalie Skram videregående skole
Informasjon om tilhørende skolekretser er hentet fra Prognosesenteret som dataleverandør, og tilhørigheten kan årlig endres av kommunen. Dersom skole- og barnehagetilbud er av betydning for kjøpet, ber vi om at det rettes en særskilt henvendelse til kommunen/bydelsadministrasjonen for oppdatert informasjon.
Beskrivelse av tomt
eiertomt på 3 016 kvm som tilhører sameiet. Tomten er fellesareal og opparbeidet med blant annet asfalterte veier, belegningsstein, terrasse på terreng.
Parkering
Gateparkering etter områdets bestemmelser.
Vei, vann og avløp
Eiendommen har adkomst via privat vei med felles vedlikeholdsansvar.
Eiendommen er tilknyttet kommunalt ledningsnett via private stikkledninger. Sameiet er selv ansvarlig for private stikkledninger til boligen.
Regulerings-og arealplaner
Eiendommen er regulert til boligbebyggelse -blokkbebyggelse og kombinert bebyggelse og anleggsformål i henhold til reguleringsplan " BERGENHUS. GNR 168 BNR 1063 MFL., NYHAVN" datert 07.06.2012 med tilhørende reguleringsbestemmelser.
Reguleringsplaner under grunnen:
- BERGENHUS. BYBANEN FRA SENTRUM TIL ÅSANE, DELSTREKNING 2, SANDBROGATEN-EIDSVÅGTUNNELEN. 0,4% dekningsgrad.
Hensynssoner (kulturmiljø) i kommuneplanen:
-Historisk sentrum 100% dekningsgrad
-Gamle Bergen 0,2% dekningsgrad
Utsnitt av plan med tilhørende bestemmelser kan fås ved henvendelse til megler.
Økonomi
Økonomi
Boligens kostnader
Fellesutgiftene er kr 1 538,- pr. mnd. og inkluderer: internett, driftskostnader, vedlikehold, styrehonorar, renovasjon, forretningsførsel og kostnader for bodplass.
Selger betaler utenom internettavtalen til sameiet kr 269,- for Allente/TV pr. mnd.
Filter for balansert ventilasjon bør byttes minimum 1 gang årlig, selger har betalt ca. kr 2684,- for dette i 2026.
Selger har avtalt Norgespris på strøm på eiendommen til utgangen av 2026, og denne er pt på kr 50 øre inkl mva. Nettleie, avgifter og påslag fra kraftleverandøren kommer i tillegg. Er det fjernvarme vil det også komme kostnader i tillegg.
Denne avtalen vil følge eiendommen i den avtalte perioden.
Les mer om Norgespris her: https://www.regjeringen.no/no/aktuelt/legg-fram-lov-om-norgespris-pa-straum-og-fjernvarme/id3102642/
Kommunale utgifter
Kommunale avgifter er kr 13 676,- for inneværende år. I dette inngår gebyr for vann, avløp og renovasjon. Det tas forbehold om at kommunen kan justere gebyrene i løpet av året.
Formuesverdi
Formuesverdi for 2024 var kr 955 000,- ifølge Skatteetaten. Beløpet forutsetter at eier bor fast i boligen (primærbolig).
Ved eventuell øvrig bruk av eiendommen (f.eks. fritidsbolig, pendlerbolig, utleieobjekt) var formuesverdien for 2024 kr 3 820 000,-.
Fra 2026 har Stortinget vedtatt en oppdatert modell for beregning av formuesverdi for primærbolig, så avvik kan forekomme.
For mer informasjon se skatteetaten.no
Eiendomsskatt
Eiendomsskatten er inkludert i kommunale avgifter.
Omkostninger
3 990 000,00 Prisantydning
Omkostninger
99 750,00 Dokumentavgift til staten (2,5% av kjøpesum)
9 950,00 Gjensidige Boligkjøperpakke* (valgfritt)
545,00 Tinglysing panterettsdokument
545,00 Tinglysing skjøte
--------------------------------------------------------
100 840,00 (Omkostninger totalt (uten Gjensidige Boligkjøperpakke))
110 790,00 Omkostninger totalt (med Gjensidige Boligkjøperpakke))
--------------------------------------------------------
4 090 840,00 Totalpris inkl. omkostninger
4 100 790,00 Totalpris inkl. omkostninger (med Gjensidige Boligkjøperpakke)
--------------------------------------------------------
Tilbud om lånefinansiering
Megler formidler gjerne kontakt med rådgiver hos vår samarbeidspartner BN Bank. De har konkurransedyktige betingelser samt rask og løsningsorientert behandling av din lånesøknad. Krogsveen mottar et honorar dersom lån opprettes.
Betalingsbetingelser
Kjøpesum inkludert omkostninger, samt pantedokument tilknyttet eventuelt lån, skal være disponibelt hos megler 2 virkedager før overtagelsen.
Annen viktig informasjon
Annen viktig informasjon
Eier
May Tove Aanes og Ove Brennskag
Informasjon om sameiet
Eiendommen er seksjonert, og leiligheten er tilknyttet Sameiet Nyhavn Brygge, med sameiebrøk 45/6041.
Forretningsfører er OBOS.
Vi gjør videre oppmerksom på at det iht. eierseksjonsloven ikke er anledning å erverve mer enn 2 seksjoner i sameiet, her teller også eierskap via. firma, nærstående og familie. Kjøper har risikoen for at overskjøting på denne bakgrunn kan nektes av Statens Kartverk. I så fall vil kjøper uansett være forpliktet til å gjennomføre handelen, og oppgjør til selger vil finne sted tross manglende overskjøting.
Konferer med megler for mer informasjon.
Dokumenter for sameiet og kopi av seksjonsbegjæringen kan fås ved henvendelse til megler.
Styreleder: Emilie Ingjerd Øy Pons.
Overtakelse
Etter nærmere avtale.
Boligkjøperforsikring
Innen kontraktsmøtet må kjøper ta stilling til om det ønskes å bestille Boligkjøperpakken gjennom Gjensidige. I denne gunstige pakken er boligen ferdig forsikret og inkluderer rettshjelpsforsikring, også kalt Boligkjøperforsikring. Rettshjelpsforsikring gir trygghet og tilgang på profesjonell juridisk hjelp dersom det oppdages uventede feil eller mangler det første året etter overtagelse. Forsikringsselskapet behandler i så fall ethvert mangelskrav kjøper måtte ha overfor selger.
Boligkjøperpakken inkluderer bygningsforsikring for hus og hytte, innboforsikring, flytteforsikring og dobbel rentedekning - i situasjoner hvor kjøper ikke får solgt nåværende primærbolig.
Kjøper mottar ingen særskilt faktura for Boligkjøperpakken da kostnaden det første året legges til kjøpesummen for boligen. Det gjøres oppmerksom på Krogsveen mottar et honorar for denne formidlingen.
Produktark for Boligkjøperpakken ligger vedlagt i salgsoppgaven.
Dersom ikke boligkjøperpakke ønskes kan kun rettshjelpsforsikring, også kalt boligkjøperforsikring, tegnes særskilt via megler. Rettshjelpsforsikringen varer i 5 år fra overtagelse og leveres gjennom Gjensidige. Ta kontakt med megler for ytterligere informasjon.
Selskap og privatpersoner som driver med kjøp/salg/utvikling som ledd i egen næringsvirksomhet kan ikke tegne boligkjøperpakke eller rettshjelpsforsikring.
Budgivning
Forbrukerinformasjon om budgivning er vedlagt denne salgsoppgaven og er også på vår hjemmeside Krogsveen.no. Alle bud og budforhøyelser må inngis skriftlig. I tillegg må legitimasjon være fremlagt sammen med signatur fra budgiver.
Vi oppfordrer til å gi bud elektronisk via GI BUD-knappen på eiendommens hjemmeside på Krogsveen.no. Da vil samtlige vilkår bli oppfylt.
Eventuelle forhøyelser eller endringer av budet kan bekreftes pr SMS eller på e-post. Vi oppfordrer alltid til å kontakte megler pr. telefon i tillegg da forsinkelser i SMS og e-post kan forekomme.
For at budene skal kunne bli behandlet og videreformidlet skriftlig til alle involverte parter, må alle bud ha en tilstrekkelig lang akseptfrist, jf. eiendomsmeglingsforskriften § 6-3.
Selger må også skriftlig akseptere budet før aksept kan formidles til budgiver. Akseptfrist bør derfor være på minimum 30 minutter, og budforhøyelser må derfor skje i god tid før fristens utløp.
Bud i forbrukerforhold kan uansett ikke settes med kortere frist enn kl. 12.00 første virkedag etter siste annonserte visning. I tillegg kan ikke budet ha forbehold om at det skal holdes hemmelig ovenfor øvrige interessenter. Megler har iht lov om eiendomsmegling ikke anledning til å videreformidle disse budene, og de vil dermed heller ikke bli journalført.
Etter at eiendommen er solgt vil kjøper og selger få tilsendt budjournal. Øvrige budgivere kan få utlevert kopi av budjournalen i anonymisert form.
Hvitvaskingsreglene
I henhold til lov om hvitvasking og terrorfinansiering har megler plikt til å gjennomføre kontrolltiltak overfor kunder, herunder fullmektiger. Dette innebærer bl.a. å bekrefte kunders og reelle rettighetshaveres identitet på bakgrunn av fremvist gyldig legitimasjon eller på annen godkjent måte, samt å innhente opplysninger om kundeforholdets formål og tilsiktede art.
Dersom slike kundetiltak ikke kan gjennomføres, kan megler ikke etablere kundeforholdet eller utføre transaksjonen.
Hvis kjøper ikke bidrar til gjennomføring av kundekontrollen og dette fører til at transaksjonen blir forsinket eller ikke kan gjennomføres, vil dette ansees som mislighold av avtalen og gi selger rettigheter etter avhendingslova kapittel 5. I tilfeller der selger ikke bidrar til gjennomføring av løpende kundekontroll underveis i oppdraget, er det selger som misligholder sine forpliktelser etter avtalen og gi kjøper rettigheter etter avhendingslovens kapittel 4. Partene er selv ansvarlige for eventuelle kostnader og ansvar dette kan medføre. Eiendomsmegleren eller eiendomsmeglingsforetaket kan ikke holdes ansvarlig for de konsekvenser dette vil kunne få for partene eller andre som har interesser i eiendomshandelen.
Kjøper oppfordres til å innbetale kjøpesummen som ikke kommer fra låneinstitusjon i én samlet innbetaling fra egen konto i norsk bank. Megler har plikt til å melde fra til Økokrim om eiendomshandler som fremstår som mistenkelige. Melding sendes Økokrim uten at partene varsles.
Personopplysningsloven
I henhold til personopplysningsloven gjør vi oppmerksom på at interessenter kan bli registrert for videre oppfølging.
Lovanvendelse
Generelle bestemmelser
Salgsoppgaven er basert på de opplysningene selger har gitt til megler, den bygningssakyndiges tilstandsrapport, samt opplysninger innhentet fra kommunen, Kartverket og andre tilgjengelige kilder. Det er viktig at kjøper setter seg grundig inn i alle salgsdokumentene, herunder salgsoppgave, tilstandsrapport og selgers egenerklæring. Kjøper anses kjent med forhold som er tydelig beskrevet i salgsdokumentene, og slike forhold kan ikke påberopes som mangler. Dette gjelder uavhengig av om kjøper har lest dokumentene. Alle interessenter oppfordres til å undersøke eiendommen nøye, gjerne sammen med fagkyndig før bud inngis. Kjøper som velger å kjøpe usett kan ikke gjøre gjeldende som mangel noe han burde blitt kjent med ved undersøkelsen.
Dersom det er behov for avklaringer, anbefaler vi at interessenter rådfører seg med eiendomsmegler eller egne rådgivere før det legges inn bud.
En bolig som har blitt brukt i en viss tid, har vanligvis blitt utsatt for slitasje og skader kan ha oppstått. Slik bruksslitasje må kjøper regne med, og det kan avdekkes enkelte forhold etter overtakelse som nødvendiggjør utbedringer. Normal slitasje og skader som nødvendiggjør utbedring, er innenfor hva kjøper må forvente og vil ikke utgjøre en mangel.
Kjøper og selgers rettigheter og plikter reguleres av avtalen mellom partene, samt informasjonen som har vært tilgjengelig for kjøperen i forbindelse med handelen. Avtalen utfylles av avhendingsloven, og det gjelder ulike avtalevilkår avhengig av om kjøper er forbrukerkjøper eller ikke. Dette er nærmere beskrevet nedenfor.
På grunn av ulike avtalevilkår kan selger vurdere bud fra en som ikke er forbruker, ulikt fra en forbrukers bud. Dersom kjøper ikke er forbruker, er selger sitt mulige mangelsansvar begrenset fordi eiendommen selges "som den er". Selger kan ikke ta «som den er»- forbehold overfor en forbrukerkjøper. Selv et lavere bud fra en som ikke er forbruker kan foretrekkes fordi begrensningen i mulig mangelsansvar kan ha egenverdi for selger. Selger står fritt til å forkaste eller akseptere ethvert bud, og er for eksempel ikke forpliktet til å akseptere høyeste bud.
Budgiver skal i budskjema avgi egenerklæring om budgiver er forbruker eller næringsdrivende/ person som hovedsakelig handler som ledd i næringsvirksomhet. Budgivere får informasjon dersom andre bud er inngitt av en som ikke er forbruker.
Forbrukerkjøp - definisjon
Med forbrukerkjøp menes kjøp av eiendom når kjøperen er en fysisk person som ikke hovedsakelig handler som ledd i næringsvirksomhet.
Forbruker – avtalevilkår
Eiendommen har en mangel dersom den ikke er i samsvar med kravene som følger av avtalen, eller det foreligger brudd på bestemmelsene i avhendingsloven §§ 3-2 til 3-8. Hvis eiendommen ikke er i samsvar med det kjøperen må kunne forvente ut ifra alder, type og synlig tilstand, kan det være grunnlag for mangelskrav. Det samme gjelder hvis det er holdt tilbake eller gitt uriktige opplysninger om eiendommen. Dette gjelder likevel bare dersom man kan gå ut ifra at det virket inn på avtalen at opplysningen ikke ble gitt eller at mangelskravet ikke blir rettet i tide på en tydelig måte.
Boligen kan ha en mangel etter avhendingsloven § 3-3 andre ledd, dersom det er avvik mellom opplyst og faktisk innvendig areal, forutsatt at avviket er på 2% eller mer og minimum 1 kvm.
Ved beregning av et eventuelt prisavslag eller erstatning må kjøper selv dekke tap/kostnader opptil et beløp på kr 10 000 (egenandel).
Ikke-forbruker (næringsdrivende) – definisjon
Hvis kjøper er en juridisk person, eller en fysisk person som hovedsakelig handler som ledd i næringsvirksomhet, vil kjøpet ikke anses som et forbrukerkjøp.
Ikke-forbruker – avtalevilkår
Eiendommen har en mangel dersom den ikke er i samsvar med kravene som følger av avtalen.
Eiendommen selges «som den er», og selgers ansvar utover det konkret avtalte er da begrenset etter avhendingsloven § 3-9, første ledd andre setning.
Avhendingsloven § 3-3 andre ledd fravikes, og hvorvidt boligens arealsvikt utgjør en mangel vurderes etter avhendingsloven § 3-8.
Informasjon om kjøpers undersøkelsesplikt, herunder oppfordringen om å undersøke eiendommen nøye, gjelder også for kjøpere som ikke anses som forbrukere.
Det forutsettes at hjemmel overføres til kjøper. Hvis kjøper ikke ønsker hjemmelsoverføring av eiendommen, må det tas forbehold om dette i budet.
Meglers vederlag
Vi er opptatt av verdiskapning, og har knyttet til oss samarbeidspartnere som skal sikre våre kunder de beste produkter og tjenester;
• I forbindelse med forberedelse av salget, innhenter vi informasjon om eiendommen hovedsakelig fra vår samarbeidspartner Amibita.
• Gjensidige leverer boligselgerforsikring og tilbyr bygningsforsikring
• Boligkjøperforsikring leveres av Hiscox og med Sedgwick som skadebehandler, og er formidlet gjennom Gjensidige.
• BN bank tilbyr finansieringsløsninger
• Vår avdeling Krogsveen Pluss tilbyr flyttetjenester som utvask, visningsvask, lager, tømming og transport av flyttelass, i tillegg til å formidle kontakt med Flip for overflateoppussing.
• I forbindelse med overtagelse av eiendommen tilbyr Overo avtale om strøm, alarm og bredbånd.
• Krogsveen er, sammen med øvrige bransjeaktører, medeier i Bomega AS som tilbyr den digitale annonseringsplattformen Hjem.
Opplysninger om oppdraget
Oppdragsnummer 70-0021/26
Eiendomsmegler Krogsveen AS, avd. Fyllingsdalen
Folke Bernadottesvei 44-46, 5147, FYLLINGSDALEN
950 007 613
Oppdragets KR-kode KR70.2621
Dato
Sist oppdatert: 14. april 2026 kl. 15:34
Dokumenter
Dokumenter
PDF – 956 KB
PDF – 693 KB
PDF – 9 MB
PDF – 312 KB
PDF – 29 KB
PDF – 127 KB
PDF – 392 KB
Område
Legg til steder som er viktige for deg
Visning
For å delta på visning, ber vi om at du melder deg på. Da sikrer vi at du får nødvendig informasjon og at det er satt av tilstrekkelig med tid. Kontakt megler dersom annet tidspunkt ønskes. Husk å lese salgsoppgaven før visningen, så du stiller forberedt.
Ønsker du kun å bli holdt orientert, kan du fra eiendommens hjemmeside få varsel om solgtpris, eller kontakte megler.
Lurer du på noe?
Unngå doble boligrenter
Vi tilbyr gunstig forsikring.
Vurderer du utleie?
Få et tilbud fra Utleie KrogsveenHva koster lånet?
Sjekk estimert lånekostnadVil du varsles om lignende boliger?
Ved å lagre ditt boligsøk hos oss får du beskjed når vi har en bolig som ligner denne, før den legges ut på markedet!































