Bertrand Narvesens vei 2B
4 950 000 kr
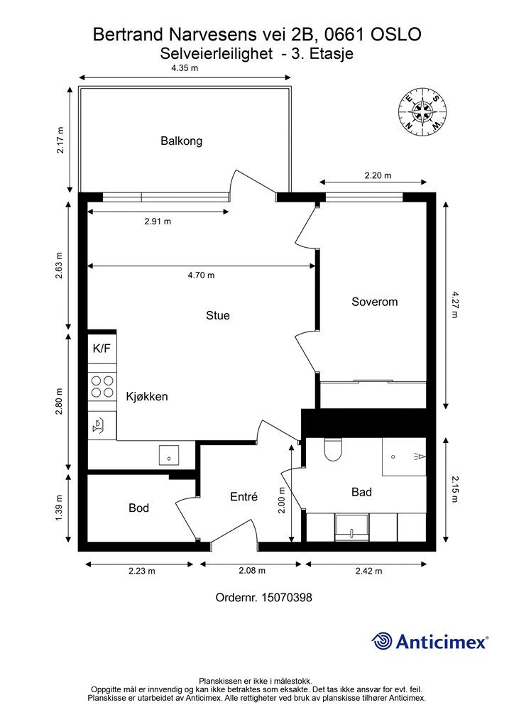
49 m²
1 soverom
Solgt

Presenteres av
Sindre Edvardsen NyhusHasle
Lys og romslig 2-roms. Stor & solrik balkong. Flott beliggenhet inn mot stor bakgård. Varmtvann og fyring inkl.
Prisantydning
4 950 000 krOmkostninger
134 790 krTotalpris
5 084 790 kr
Pris
Bruksareal
54 m²BRA-I (internt bruksareal)
49 m²BRA-E (eksternt bruksareal)
5 m²TBA (terrasse-balkongareal)
9 m²
Areal
Etasje
3Byggeår
2013Soverom
1 soveromBad
1 badType
EierleilighetEierform
EierseksjonFellesutgifter
3 514 krEnergimerke
Grønn E
Nøkkelinfo
Unngå doble boligrenter
Vi tilbyr gunstig forsikring.
Vurderer du utleie?
Få et tilbud fra Utleie KrogsveenHva koster lånet?
Sjekk estimert lånekostnadBeskrivelse
Kort om eiendommen
Sindre Nyhus v/Krogsveen viser denne 2-roms eierleiligheten i populære Marienfryd!.
Svært attraktiv 2-roms med solrik balkong, beliggende ut mot stor og grønn bakgård. Leiligheten ligger fint til i byggets 3. etasje med heisadkomst, og har en god planløsning.
På Hasle har du alt du trenger av servicetilbud. Det er videre kort vei til både sentrum og marka. Et perfekt sted å bosette seg!
- 2-roms selveier
- Etterspurt beliggenhet på populære Marienfrud
- Balkong på 9 kvm
- Hele leiligheten er nymalt av fagfolk
- Varmtvann, fyring inkludert i felleskostnadene
- Kjellerbod 5 kvm
- Kort vei til sentrum og marka m.m.
Område
Legg til steder som er viktige for deg
På flyttefot? Tenk kjøp og salg samtidig.
Få din egen rådgiver gjennom hele kjøps- og salgsprosessen. Det starter med en verdivurdering.
Unngå doble boligrenter
Vi tilbyr gunstig forsikring.
Vurderer du utleie?
Få et tilbud fra Utleie KrogsveenHva koster lånet?
Sjekk estimert lånekostnadVil du varsles om lignende boliger?
Ved å lagre ditt boligsøk hos oss får du beskjed når vi har en bolig som ligner denne, før den legges ut på markedet!
På flyttefot? Slik gjør vi det enklere for deg
Skreddersydd flyttepakke
Vi fikser håndverkere, vask, pakking, lagring og transport, og legger ut for utgiftene underveis.
Hjelp med både kjøp og salg
Hos oss har du din egen rådgiver gjennom hele kjøps- og salgsprosessen.
Hjelp til finansiering
Vårt samarbeid med BN Bank sikrer deg rask og løsningsorientert hjelp, til konkurransedyktige betingelser.

