Sofus Madsens vei 23
6 190 000 kr
138 m²
3 soverom
Solgt

Presenteres av
Henriette MuriFlott rekkehus over tre plan med solrike uteplasser, garasjeplass m/ lader & attraktiv beliggenhet! Bad og tak fra 2022
Prisantydning
6 190 000 krOmkostninger
175 740 krTotalpris
6 365 740 kr
Pris
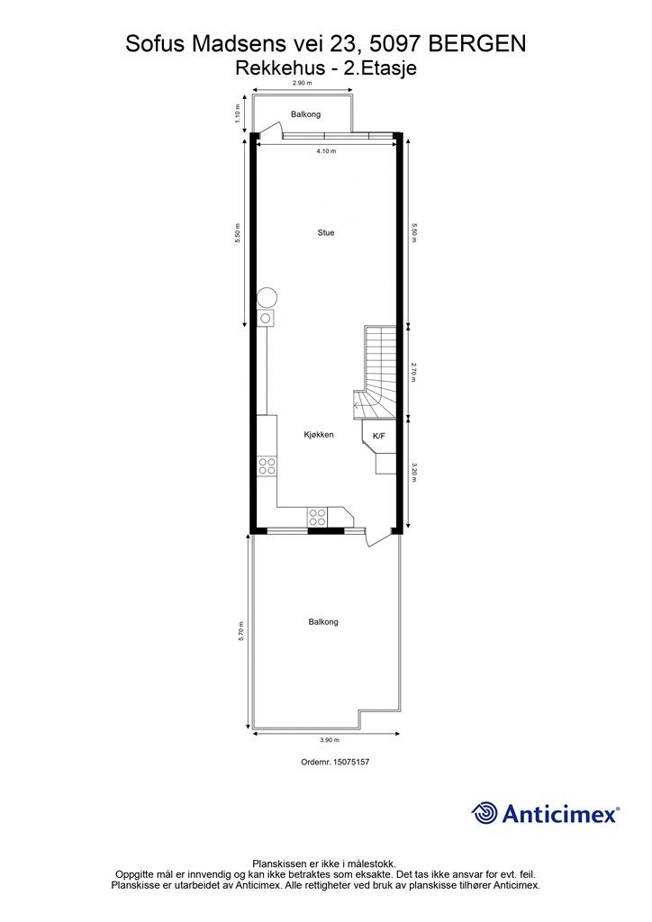
Bruksareal
152 m²BRA-I (internt bruksareal)
138 m²BRA-E (eksternt bruksareal)
14 m²TBA (terrasse-balkongareal)
65 m²
Areal
Etasje
3Byggeår
1960Soverom
3 soveromBad
2 badTomteareal
161 m² (eiet)Type
RekkehusEierform
EietFasiliteter
Garasje/P-plass og Balkong/TerrasseEnergimerke
Oransje E
Nøkkelinfo
Unngå doble boligrenter
Vi tilbyr gunstig forsikring.
Vurderer du utleie?
Få et tilbud fra Utleie KrogsveenHva koster lånet?
Sjekk estimert lånekostnadBeskrivelse
Kort om eiendommen
Velkommen til Sofus Madsens vei 23! Dette er en innholdsrik bolig med attraktiv beliggenhet. Her bor du sentralt med enkel tilgang til alt du trenger i hverdagen. Landås er et etablert og ettertraktet område, kjent for sitt gode kollektivtilbud, nærhet til skoler og utdanningsinstitusjoner, samt et bredt utvalg av servicetilbud.
Høydepunkter:
Fast garasjeplass med el-bil lader
Nytt tak (2022)
Nytt bad og toalett i 2. etg. (2022)
Rør-i-rør
Flott utsikt fra både boligen og uteplassene
Solrike uteplasser
Varmepumpe (2024)
Ny Peis (2020)
3 soverom
Sentral beliggenhet og kort vei til Bergen sentrum
Område
Legg til steder som er viktige for deg
På flyttefot? Tenk kjøp og salg samtidig.
Få din egen rådgiver gjennom hele kjøps- og salgsprosessen. Det starter med en verdivurdering.
Unngå doble boligrenter
Vi tilbyr gunstig forsikring.
Vurderer du utleie?
Få et tilbud fra Utleie KrogsveenHva koster lånet?
Sjekk estimert lånekostnadVil du varsles om lignende boliger?
Ved å lagre ditt boligsøk hos oss får du beskjed når vi har en bolig som ligner denne, før den legges ut på markedet!
På flyttefot? Slik gjør vi det enklere for deg
Skreddersydd flyttepakke
Vi fikser håndverkere, vask, pakking, lagring og transport, og legger ut for utgiftene underveis.
Hjelp med både kjøp og salg
Hos oss har du din egen rådgiver gjennom hele kjøps- og salgsprosessen.
Hjelp til finansiering
Vårt samarbeid med BN Bank sikrer deg rask og løsningsorientert hjelp, til konkurransedyktige betingelser.

