Idrettsgata 40 (Hus 1)
5 600 000 kr
69 m²
2 soverom
Komplett salgsoppgave

Lørenskog / Rolvsrud
Ny og ubebodd 3-roms selveier i 6. etg. Vestvendt balkong på 17 m² med utsikt. Vannbåren varme, hvitevarer inkl.
Prisantydning
5 600 000 krOmkostninger
39 560 krTotalpris
5 639 560 kr
Pris
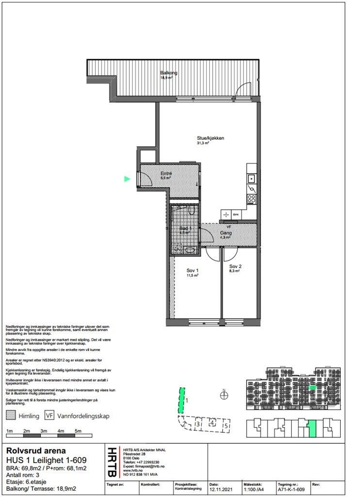
Bruksareal
74 m²BRA-I (internt bruksareal)
69 m²BRA-E (eksternt bruksareal)
5 m²TBA (terrasse-balkongareal)
17 m²
Areal
Etasje
6Byggeår
2024Soverom
2 soveromType
EierleilighetEierform
EierseksjonFasiliteter
Heis og Balkong/TerrasseFellesutgifter
3 390 krEnergimerke
A
Nøkkelinfo
Unngå doble boligrenter
Vi tilbyr gunstig forsikring.
Vurderer du utleie?
Få et tilbud fra Utleie KrogsveenHva koster lånet?
Sjekk estimert lånekostnadBeskrivelse
Kort om eiendommen
Velkommen til Idrettsgata 40!
Dette er en ny 3-roms eierleilighet med stor solrik balkong, med utsikt over grøntområder og etablert bebyggelse.
Gjennomgående moderne standard med enstavsparkett, vannbåren varme, listefritt og slette overflater. God planløsning og integrerte hvitevarer på kjøkken.
En innflyttingsklar og moderne leilighet.
Leiligheten ligger sentralt på Rolvsrud, med nærhet til både Lørenskogs byliv og rolige turområder.
Kort vei til skoler, barneh., butikker og offentlig kommunikasjon.
Kort fortalt:
Lekkert HTH kjøkken
Stor vestvendt balkong på 17m²
To gode soverom
Tilhørende bod på ca. 5 kvm. og tilgang til felles sykkelparkering
Gangavstand til Triaden Lørenskog Storsenter
Gode bussforbindelser til Oslo og Lillestrøm
Muligheter for kjøp av garasjeplass.
Innhold og byggemåte
Innhold og byggemåte
Eiendommen
Idrettsgata 40 (Hus 1), 1473 LØRENSKOG
Kommunenummer 3222, gårdsnummer 102, bruksnummer 477, seksjonsnummer 63, ideell andel 1/1
Innhold
Totalt bruksareal BRA: 69 kvm
BRA-i:
Leilighet:
6. etasje 69 kvm: Entré, stue/kjøkken, gang, bad og 2 soverom.
BRA-e:
Rolvsrud arena HUS 1:
1. etasje 5 kvm: Bod
Åpent areal:
6. etasje 17 kvm: Balkong.
Vedlagte plantegninger er ikke målbare. De oppgitte arealer er hentet fra arealoppmåling med befaringsdato 7/10-25.
Byggemåte
Selger har innhentet en arealoppmåling i forbindelse med salget.
Se vedlagt leveransebeskrivelse, romskjema og arealoppmåling.
Moderniseringer og påkostninger
Ingen moderniseringer er dokumentert siden byggeår.
Standard
Boligen har en gjennomgående moderne standard med 1-stavs lys, hvitpigmentert eikeparkett. Vannbåren gulvvarme i entré/gang, stue/kjøkken og bad.
I entré/gang og bad er himling nedsenket, og det er levert med hvite LED-spotter med dimmer.
Planløsningen er åpen og sosial, med store vindusflater.
Entré:
Entréen er av god størrelse og gir plass til å henge fra seg yttertøy og sette fra seg sko. Det er avsatt plass til garderobeskap, og det er plassbesparende skyvedør inn mot kjøkken og stue.
Stue:
Stuen er leilighetens sentrale rom, med en åpen løsning mot kjøkkenet. Store vindusflater slipper inn dagslys og gir godt utsyn. Rommet har en god utforming med plass til både sofagruppe og spisebord. Fra stuen er det direkte utgang til balkongen med god plass til utemøbler og beplantning. Balkongen har rekkverk i glass og metall, impregnert tregulv, utelampe og strømuttak.
Kjøkken:
Kjøkkenet er en integrert del av det sosiale arealet. Innredningen fra HTH har mørke, strukturerte fronter i trelook og en lys laminatbenkeplate som gir en fin kontrast. Det er godt med skap- og benkeplass, og belysning under overskapene gir et godt arbeidslys. Alle hvitevarer fra Electrolux er integrerte, inkludert stekeovn, induksjonstopp, kombiskap og oppvaskmaskin.
Bad:
Badet har en ren og moderne utforming med store, sandfargede fliser og vannbåren gulvvarme. Innredningen fra HTH har skuffer med sorte fronter, heldekkende servant og speil med integrert belysning. Dusjsonen er nedsenket og adskilt med innfellbare glassdører. Det er et vegghengt toalett og opplegg for vaskemaskin og tørketrommel.
Soverom:
Hovedsoverommet på 11 m² har god plass til dobbeltseng med tilhørende nattbord, i tillegg til en garderobeløsning. Leilighetens andre soverom er på 8 m² og egner seg godt som barnerom, gjesterom eller kontor, alt etter behov.
Løsøre og tilbehør
Vi viser til liste fra Norges Eiendomsmeglerforbund som gjelder fra 01.01.2020 angående løsøre og tilbehør.
Oppvarming
Vannbåren gulvvarme i entré/gang, stue/kjøkken og bad.
Dersom beboelsesrom ikke har vegg- eller fastmonterte varmekilder ved visning, følger dette heller ikke med.
Ferdigattest/brukstillatelse
Det foreligger ikke ferdigattest på eiendommen, men midlertidig brukstillatelse for ny boligblokk ble gitt 31.07.2024. Tillatelsen er gitt på følgende vilkår for gjenstående arbeider:
- Etablering av nytt tribuneanlegg i tråd med reguleringsbestemmelsene
- Opparbeidelse av gatetun i tråd med reguleringsbestemmelsene
- Etablering av ny 5-erbane i tråd med reguleringsbestemmelsene
Det er søkt om ferdigattest, men den er ikke godkjent enda siden det ikke foreligger brukstillatelse på hele idrettsanlegget. Det forventes å foreligge ganske snart.
Det foreligger kontraktstegninger for leiligheten datert 12.11.2021. Siden det er utstedt en midlertidig brukstillatelse for bygget, legges det til grunn at leiligheten er oppført i samsvar med de godkjente tegningene for prosjektet. Tegningene kan fås ved henvendelse til megler.
Kjøper overtar alt ansvar, kostnad og risiko for dette videre.
Tinglyste heftelser og rettigheter
Eiendommen overdras fri for pengeheftelser
Sameiet har legalpant for krav mot sameieren som følger av sameieforholdet iht. eierseksjonsloven § 31. Pantet er begrenset oppad til 2G (G = folketrygdens grunnbeløp).
Det er tinglyst 19 servitutter på sameiets eiendom. Disse omhandler blant annet bestemmelse om veg, vannrett, elektriske kraftlinjer, telefonledninger, kabelanlegg, bruksrett, vedlikehold, støyskjerming, støttemur, adkomstrett, uteoppholdsarealer, fellesareal, bruk av sprinkelrom, vann/kloakk og teknisk anlegg.
2024/2081259-1/200 11.10.2024 SEKSJONERING
Opprettet seksjoner:
SNR: 63
Formål: Bolig
Sameiebrøk: 70/6108
Servituttene vil følge eiendommen. Kjøpers bank vil få prioritet etter ovennevnte heftelser og servitutter.
Eventuell adgang til utleie
Leiligheten kan leies ut såfremt leiligheten har forsvarlige radonverdier. Leietaker må følge sameiets vedtekter og ordensregler på lik linje som eier.
Sameiets vedtekter angir at seksjonseieren fritt kan leie ut sin seksjon. Korttidsutleie av hele boligseksjonen i mer enn 90 døgn årlig er ikke tillatt. Med korttidsutleie menes utleie i inntil 30 døgn sammenhengende. Sameiets styre skal underrettes skriftlig om leieforhold utover korttidsutleie, inkludert leietakers navn og kontaktinformasjon.
Beliggenhet og tomteforhold
Beliggenhet og tomteforhold
Beliggenhet
Leiligheten har en sentral og god intern beliggenhet på Rolvsrud Arena. Et område som kombinerer nærhet til Lørenskogs byliv med rolige, grønne omgivelser.
Fra balkongen er det utsyn mot trær, grøntområder og etablert bebyggelse. Rett ved bygget ligger lekeplasser og Rolvsrud stadion. Her er hverdagen enkel og aktiv.
Lørenskog har et godt utbygd nettverk av gang- og sykkelveier, samt et aktivt idrettsmiljø med anlegg for de fleste idretter. I umiddelbar nærhet har du Rolvsrud stadion med flere fotballbaner og friidrettsanlegg med 200 meters løpebane. Det er golfbane på Losby, flere flerbrukshaller, svømmehaller og tennisbane ved Kjenn. Det er kort vei til treningssentre som Sats Triaden/Metro eller Fresh Fitness på Skårersletta.
Fra Vallerud, som ligger i kort gangavstand, har du tilgang til lysløypenett mot Mariholtet, med preparerte skiløyper vinterstid. Lysløype fra Sørlihavna fører inn mot Losby. Østmarka ligger rett i nærheten og byr på flotte turområder, bade- og fiskevann året rundt. Losby besøksgård og kafé gir mulighet til å oppleve husdyr på nært hold.
Kulturhuset Lørenskog Hus ved Metro senter er et populært samlingspunkt med kino, konserter, festivaler, bibliotek og kulturskole. I tillegg finner man SNØ som er verdens råeste helårsarena for snøopplevelser, åpnet i 2020 ved Lørenskog stasjon. Anlegget på 50 000 kvm rommer fire alpinbakker, stol- og koppheis, langrennsspor på ca. 2 km, blåpark med big jump og et stort lekeområde.
Det er gangavstand til flere barnehager, som Emaljeverket og Rolvsrud, samt skoler for alle trinn. Både Benterud og Solheim barneskoler, og Løkenåsen og Kjenn ungdomsskoler, ligger innenfor en radius på rundt 1,5 kilometer. For de eldre elevene er det kort vei til Mailand og Lørenskog videregående skoler.
For den daglige handelen ligger Rema 1000 Skårer kun noen minutters gange unna. Ønsker du et større utvalg, er Triaden Lørenskog Storsenter og Metro Senter også rett i nærheten med et bredt spekter av butikker, spisesteder, apotek og vinmonopol.
Kollektivtilbudet er godt, med busstoppet Rolvsrud i Skårersletta innen gangavstand. Herfra går det hyppige avganger mot Oslo og Lillestrøm. For pendlere er det enkel tilgang til Lørenskog stasjon med bil, og Oslo S når du på under 20 minutter. Oslo lufthavn Gardermoen er cirka en halvtimes kjøretur unna.
Adkomst
Det vil bli skiltet med Krogsveen visningsskilt ved fellesvisninger.
Barnehager, skoler og fritid
Bhg. Emaljeverket barnehage - 0.5 km
Bhg. Solheim barnehage - 0.6 km
Bhg. Rolvsrud barnehage - 0.9 km
1-7 kl. Benterud skole - 1.2 km
1-7 kl. Solheim skole - 1.2 km
1-7 kl. Rasta skole - 1.5 km
8-10 kl. Løkenåsen skole - 1.4 km
8-10 kl. Kjenn skole - 1.6 km
Vgs. Mailand videregående skole - 1.5 km
Vgs. Lørenskog videregående skole - 2.8 km
Informasjon om tilhørende skolekretser er hentet fra Prognosesenteret som dataleverandør, og tilhørigheten kan årlig endres av kommunen. Dersom skole- og barnehagetilbud er av betydning for kjøpet, ber vi om at det rettes en særskilt henvendelse til kommunen for oppdatert informasjon.
Beskrivelse av tomt
Eiertomt på 1 312 kvm som tilhører sameiet. Sameiet inngår i et større utbyggingsområde (Rolvsrud Arena) som omfatter en utomhusplan med felles uteoppholdsarealer for boligbyggene. Fellesarealene er opparbeidet med plen, beplantning, lekeplasser og interne gangveier.
Parkering
Garasjeplass kan kjøpes for kr 375 000,- inkludert ladestasjon for elbil. For øvrig gateparkering etter områdets bestemmelser. Det er 23 gjesteparkeringsplasser til bruk for besøkende til Rolvsrud Arena.
Vei, vann og avløp
Eiendommen har adkomst via kommunal vei. Eiendommen er tilknyttet kommunalt ledningsnett via private stikkledninger. Sameiet er ansvarlig for private stikkledninger til bygningen.
Regulerings-og arealplaner
Eiendommen er regulert til bolig/tjenesteyting (feltnavn BKB1 - BKB2) i detaljregulering 041, Rolvsrud idrettspark, vedtatt 19.06.2019, med tilhørende reguleringsbestemmelser.
Eiendommen omfattes av Kommuneplanens arealdel 2023 - 2035 (ID: 2022003), vedtatt 15.03.2023. Ved motstrid mellom planer gjelder detaljreguleringen foran kommuneplanen.
Eiendommen berøres av hensynssone H140: Sikringsone - Frisikt. I frisiktsonene skal det være frisikt ned til en høyde av 0,5 m over tilstøtende vegers planum.
Utsnitt av plan med tilhørende bestemmelser kan fås ved henvendelse til megler.
Økonomi
Økonomi
Boligens kostnader
Fellesutgiftene er kr 3 390,- pr. mnd. og inkluderer: bl.a. drift og utvending vedlikehold, kommunale avgifter, bygningsforsikring, tv-anlegg/bredbånd, revisjons- og forretningsførsel.
Fellesutgiftene justeres normalt en til to ganger årlig i forhold til sameiets faktiske utgifter.
Da boligen ikke er tatt i bruk, foreligger det ingen eksakt oversikt over faste og løpende kostnader.
Fjernvarme og varmtvann avleses av Techem, og faktureres månedlig fra Obos basert på faktisk forbruk.
I tillegg til fellesutgifter må sameierne dekke egne kostnader til strøm, innboforsikring og evt. alarm.
Iht. Fjordkraft er gjennomsnittlig strømforbruk for leiligheter ca. 9.000 kWh. Kostnadene til strøm vil variere avhengig av antall medlemmer i husstanden, ønsket innetemperatur, egne fordelsavtaler etc. Indivduell avregning av Fjernvarme, kommunalt vann og avløp.
Kjøper må selv tegne innboforsikring.
Formuesverdi
Formuesverdi for 2025 var kr 1 381 074,- ifølge skatteetatens boligkalkulator. Beløpet forutsetter at eier bor fast i boligen (primærbolig).
Ved eventuell øvrig bruk av eiendommen (f.eks. fritidsbolig, pendlerbolig, utleieobjekt) var formuesverdien for 2025 kr 5 524 294,-.
Fra 2026 har Stortinget vedtatt en oppdatert modell for beregning av formuesverdi for primærbolig, så avvik kan forekomme.
For mer informasjon se skatteetaten.no
Eiendomsskatt
Det er vedtatt eiendomsskatt for eiendommer i kommunen fra 2026. Det foreligger ikke informasjon om hvor mye den vil utgjøre for denne enheten enda.
Opplysninger om fellesgjeld
Andel formue er kr 26 430,- pr. 31.12.2025.
Andel fellesgjeld er kr 0,- pr. 24.03.2026.
Det er pr. 24.03.2026 ingen lån registrert på selskapet.
Omkostninger
5 600 000,00 Prisantydning
Omkostninger
10 170,00 Oppstartkapital til Sameiet (3 mnd. felleskostnader)
18 350,00 Dokumentavgift til staten (2,5% av tomteverdi, pt. anslått til kr 266,- pr. kvm. BRA)
9 950,00 Gjensidige Boligkjøperpakke (valgfri)* (valgfritt)
545,00 Tinglysing panterettsdokument
545,00 Tinglysing skjøte
--------------------------------------------------------
29 610,00 Omkostninger totalt (uten Gjensidige Boligkjøperpakke (valgfri))
39 560,00 Omkostninger totalt (med Gjensidige Boligkjøperpakke (valgfri))
--------------------------------------------------------
5 629 610,00 Totalpris inkl. omkostninger
5 639 560,00 Totalpris inkl. omkostninger (med Gjensidige Boligkjøperpakke (valgfri))
--------------------------------------------------------
Betalingsbetingelser
Kjøpesum inkludert omkostninger, samt pantedokument tilknyttet eventuelt lån, skal være disponibelt hos megler 2 virkedager før overtagelsen.
Annen viktig informasjon
Annen viktig informasjon
Eier
Rolvsrud Idrettspark AS
Informasjon om sameiet
Eiendommen er seksjonert, og leiligheten er tilknyttet Rolvsrud Arena Sameie 1, med sameiebrøk 70/6108.
Sameiet består av 95 boligseksjoner.
Forretningsfører er Obos Eiendomsforvaltning AS.
Dugnad må påregnes.
Dyrehold er tillatt så lenge det ikke er til urimelig eller unødvendig skade eller ulempe for de øvrige brukerne av eiendommen.
Utenom vanlig vedlikehold et er ikke noen planlagte påkostninger i sameiet.
I forbindelse med utleie skal det straks gis skriftlig melding til styret v/forretningsfører om leietakers navn.
Det praktiseres ikke forkjøpsrett i sameiet. Det er ingen krav til styregodkjennelse.
Vi gjør videre oppmerksom på at det iht. eierseksjonsloven ikke er anledning å erverve mer enn 2 seksjoner i sameiet, her teller også eierskap via. firma, nærstående og familie. Kjøper har risikoen for at overskjøting på denne bakgrunn kan nektes av Statens Kartverk. I så fall vil kjøper uansett være forpliktet til å gjennomføre handelen, og oppgjør til selger vil finne sted tross manglende overskjøting.
Konferer med megler for mer informasjon.
I tillegg følger det av sameiets vedtekter at juridiske personer (selskaper) ikke kan eie seksjoner i sameiet.
Dokumenter for sameiet og kopi av seksjonsbegjæringen kan fås ved henvendelse til megler.
Overtakelse
Etter nærmere avtale.
Boligkjøperforsikring
Innen kontraktsmøtet må kjøper ta stilling til om det ønskes å bestille Boligkjøperpakken gjennom Gjensidige. I denne gunstige pakken er boligen ferdig forsikret og inkluderer rettshjelpsforsikring, også kalt Boligkjøperforsikring. Rettshjelpsforsikring gir trygghet og tilgang på profesjonell juridisk hjelp dersom det oppdages uventede feil eller mangler det første året etter overtagelse. Forsikringsselskapet behandler i så fall ethvert mangelskrav kjøper måtte ha overfor selger.
Boligkjøperpakken inkluderer bygningsforsikring for hus og hytte, innboforsikring, flytteforsikring og dobbel rentedekning - i situasjoner hvor kjøper ikke får solgt nåværende primærbolig.
Kjøper mottar ingen særskilt faktura for Boligkjøperpakken da kostnaden det første året legges til kjøpesummen for boligen. Det gjøres oppmerksom på Krogsveen mottar et honorar for denne formidlingen.
Produktark for Boligkjøperpakken ligger vedlagt i salgsoppgaven.
Dersom ikke boligkjøperpakke ønskes kan kun rettshjelpsforsikring, også kalt boligkjøperforsikring, tegnes særskilt via megler. Rettshjelpsforsikringen varer i 5 år fra overtagelse og leveres gjennom Gjensidige. Ta kontakt med megler for ytterligere informasjon.
Selskap og privatpersoner som driver med kjøp/salg/utvikling som ledd i egen næringsvirksomhet kan ikke tegne boligkjøperpakke eller rettshjelpsforsikring.
Budgivning
Forbrukerinformasjon om budgivning er vedlagt denne salgsoppgaven og er også på vår hjemmeside Krogsveen.no. Alle bud og budforhøyelser må inngis skriftlig. I tillegg må legitimasjon være fremlagt sammen med signatur fra budgiver.
Vi oppfordrer til å gi bud elektronisk via GI BUD-knappen på eiendommens hjemmeside på Krogsveen.no. Da vil samtlige vilkår bli oppfylt.
Eventuelle forhøyelser eller endringer av budet kan bekreftes pr SMS eller på e-post. Vi oppfordrer alltid til å kontakte megler pr. telefon i tillegg da forsinkelser i SMS og e-post kan forekomme.
For at budene skal kunne bli behandlet og videreformidlet skriftlig til alle involverte parter, må alle bud ha en tilstrekkelig lang akseptfrist, jf. eiendomsmeglingsforskriften § 6-3.
Selger må også skriftlig akseptere budet før aksept kan formidles til budgiver. Akseptfrist bør derfor være på minimum 30 minutter, og budforhøyelser må derfor skje i god tid før fristens utløp.
Bud i forbrukerforhold kan uansett ikke settes med kortere frist enn kl. 12.00 første virkedag etter siste annonserte visning. I tillegg kan ikke budet ha forbehold om at det skal holdes hemmelig ovenfor øvrige interessenter. Megler har iht lov om eiendomsmegling ikke anledning til å videreformidle disse budene, og de vil dermed heller ikke bli journalført.
Etter at eiendommen er solgt vil kjøper og selger få tilsendt budjournal. Øvrige budgivere kan få utlevert kopi av budjournalen i anonymisert form.
Hvitvaskingsreglene
I henhold til lov om hvitvasking og terrorfinansiering har megler plikt til å gjennomføre kontrolltiltak overfor kunder, herunder fullmektiger. Dette innebærer bl.a. å bekrefte kunders og reelle rettighetshaveres identitet på bakgrunn av fremvist gyldig legitimasjon eller på annen godkjent måte, samt å innhente opplysninger om kundeforholdets formål og tilsiktede art.
Dersom slike kundetiltak ikke kan gjennomføres, kan megler ikke etablere kundeforholdet eller utføre transaksjonen.
Hvis kjøper ikke bidrar til gjennomføring av kundekontrollen og dette fører til at transaksjonen blir forsinket eller ikke kan gjennomføres, vil dette ansees som mislighold av avtalen og gi selger rettigheter etter avhendingslova kapittel 5. I tilfeller der selger ikke bidrar til gjennomføring av løpende kundekontroll underveis i oppdraget, er det selger som misligholder sine forpliktelser etter avtalen og gi kjøper rettigheter etter avhendingslovens kapittel 4. Partene er selv ansvarlige for eventuelle kostnader og ansvar dette kan medføre. Eiendomsmegleren eller eiendomsmeglingsforetaket kan ikke holdes ansvarlig for de konsekvenser dette vil kunne få for partene eller andre som har interesser i eiendomshandelen.
Kjøper oppfordres til å innbetale kjøpesummen som ikke kommer fra låneinstitusjon i én samlet innbetaling fra egen konto i norsk bank. Megler har plikt til å melde fra til Økokrim om eiendomshandler som fremstår som mistenkelige. Melding sendes Økokrim uten at partene varsles.
Personopplysningsloven
I henhold til personopplysningsloven gjør vi oppmerksom på at interessenter kan bli registrert for videre oppfølging.
Lovanvendelse
Generelle bestemmelser
Salgsoppgaven er basert på de opplysningene selger har gitt til megler, den bygningssakyndiges tilstandsrapport, samt opplysninger innhentet fra kommunen, Kartverket og andre tilgjengelige kilder. Det er viktig at kjøper setter seg grundig inn i alle salgsdokumentene, herunder salgsoppgave, tilstandsrapport og selgers egenerklæring. Kjøper anses kjent med forhold som er tydelig beskrevet i salgsdokumentene, og slike forhold kan ikke påberopes som mangler. Dette gjelder uavhengig av om kjøper har lest dokumentene. Alle interessenter oppfordres til å undersøke eiendommen nøye, gjerne sammen med fagkyndig før bud inngis. Kjøper som velger å kjøpe usett kan ikke gjøre gjeldende som mangel noe han burde blitt kjent med ved undersøkelsen.
Dersom det er behov for avklaringer, anbefaler vi at interessenter rådfører seg med eiendomsmegler eller egne rådgivere før det legges inn bud.
En bolig som har blitt brukt i en viss tid, har vanligvis blitt utsatt for slitasje og skader kan ha oppstått. Slik bruksslitasje må kjøper regne med, og det kan avdekkes enkelte forhold etter overtakelse som nødvendiggjør utbedringer. Normal slitasje og skader som nødvendiggjør utbedring, er innenfor hva kjøper må forvente og vil ikke utgjøre en mangel.
Kjøper og selgers rettigheter og plikter reguleres av avtalen mellom partene, samt informasjonen som har vært tilgjengelig for kjøperen i forbindelse med handelen. Avtalen utfylles av avhendingsloven, og det gjelder ulike avtalevilkår avhengig av om kjøper er forbrukerkjøper eller ikke. Dette er nærmere beskrevet nedenfor.
På grunn av ulike avtalevilkår kan selger vurdere bud fra en som ikke er forbruker, ulikt fra en forbrukers bud. Dersom kjøper ikke er forbruker, er selger sitt mulige mangelsansvar begrenset fordi eiendommen selges "som den er". Selger kan ikke ta «som den er»- forbehold overfor en forbrukerkjøper. Selv et lavere bud fra en som ikke er forbruker kan foretrekkes fordi begrensningen i mulig mangelsansvar kan ha egenverdi for selger. Selger står fritt til å forkaste eller akseptere ethvert bud, og er for eksempel ikke forpliktet til å akseptere høyeste bud.
Budgiver skal i budskjema avgi egenerklæring om budgiver er forbruker eller næringsdrivende/ person som hovedsakelig handler som ledd i næringsvirksomhet. Budgivere får informasjon dersom andre bud er inngitt av en som ikke er forbruker.
Forbrukerkjøp - definisjon
Med forbrukerkjøp menes kjøp av eiendom når kjøperen er en fysisk person som ikke hovedsakelig handler som ledd i næringsvirksomhet.
Forbruker – avtalevilkår
Eiendommen har en mangel dersom den ikke er i samsvar med kravene som følger av avtalen, eller det foreligger brudd på bestemmelsene i avhendingsloven §§ 3-2 til 3-8. Hvis eiendommen ikke er i samsvar med det kjøperen må kunne forvente ut ifra alder, type og synlig tilstand, kan det være grunnlag for mangelskrav. Det samme gjelder hvis det er holdt tilbake eller gitt uriktige opplysninger om eiendommen. Dette gjelder likevel bare dersom man kan gå ut ifra at det virket inn på avtalen at opplysningen ikke ble gitt eller at mangelskravet ikke blir rettet i tide på en tydelig måte.
Boligen kan ha en mangel etter avhendingsloven § 3-3 andre ledd, dersom det er avvik mellom opplyst og faktisk innvendig areal, forutsatt at avviket er på 2% eller mer og minimum 1 kvm.
Ved beregning av et eventuelt prisavslag eller erstatning må kjøper selv dekke tap/kostnader opptil et beløp på kr 10 000 (egenandel).
Ikke-forbruker (næringsdrivende) – definisjon
Hvis kjøper er en juridisk person, eller en fysisk person som hovedsakelig handler som ledd i næringsvirksomhet, vil kjøpet ikke anses som et forbrukerkjøp.
Ikke-forbruker – avtalevilkår
Eiendommen har en mangel dersom den ikke er i samsvar med kravene som følger av avtalen.
Eiendommen selges «som den er», og selgers ansvar utover det konkret avtalte er da begrenset etter avhendingsloven § 3-9, første ledd andre setning.
Avhendingsloven § 3-3 andre ledd fravikes, og hvorvidt boligens arealsvikt utgjør en mangel vurderes etter avhendingsloven § 3-8.
Informasjon om kjøpers undersøkelsesplikt, herunder oppfordringen om å undersøke eiendommen nøye, gjelder også for kjøpere som ikke anses som forbrukere.
Det forutsettes at hjemmel overføres til kjøper. Hvis kjøper ikke ønsker hjemmelsoverføring av eiendommen, må det tas forbehold om dette i budet.
Meglers vederlag
Meglers vederlag betales av selger og er avtalt til:
Fastpris: 45 000,-
Vederlag:
Kontroll av hjemmel og heftelser kr 4 500,00
Markedsføringspakke kr 22 900,00
Oppgjør kr 8 900,00
Tilrettelegging kr 12 500,00
Visninger (2 visninger gratis, deretter kr. 3.500,- pr. visning) kr 3 500,00
Utlegg:
Eierskiftegebyr forretningsfører
Innhenting av informasjon forretningsfører kr 2 500,00
Tinglysing sikring kr 545,00
Andre utgifter:
Vi er opptatt av verdiskapning, og har knyttet til oss samarbeidspartnere som skal sikre våre kunder de beste produkter og tjenester;
• I forbindelse med forberedelse av salget, innhenter vi informasjon om eiendommen hovedsakelig fra vår samarbeidspartner Ambita.
• Gjensidige leverer boligselgerforsikring og tilbyr bygningsforsikring
• Boligkjøperforsikring leveres av Hiscox og med Sedgwick som skadebehandler, og er formidlet gjennom Gjensidige.
• BN bank tilbyr finansieringsløsninger
• Vår avdeling Krogsveen Pluss tilbyr flyttetjenester som utvask, visningsvask, lager, tømming og transport av flyttelass, i tillegg til å formidle kontakt med Flip for overflateoppussing.
• I forbindelse med overtagelse av eiendommen tilbyr Overo avtale om strøm, alarm og bredbånd.
• Krogsveen er, sammen med øvrige bransjeaktører, medeier i Bomega AS som tilbyr den digitale annonseringsplattformen Hjem.
Opplysninger om oppdraget
Oppdragsnummer 61-0018/26
Eiendomsmegler Krogsveen AS, avd. Lørenskog
Skårersletta 5, 1473, LØRENSKOG
950 007 613
Oppdragets KR-kode KR61.2618
Dato
Sist oppdatert: 13. mai 2026 kl. 15:31
Dokumenter
Dokumenter
PDF – 225 KB
PDF – 4 MB
PDF – 585 KB
PDF – 312 KB
PDF – 29 KB
PDF – 127 KB
PDF – 392 KB
Område
Legg til steder som er viktige for deg
Visning
Unngå doble boligrenter
Vi tilbyr gunstig forsikring.
Vurderer du utleie?
Få et tilbud fra Utleie KrogsveenHva koster lånet?
Sjekk estimert lånekostnadVil du varsles om lignende boliger?
Ved å lagre ditt boligsøk hos oss får du beskjed når vi har en bolig som ligner denne, før den legges ut på markedet!






















