Hesjaholtveien 20
2 590 000 kr
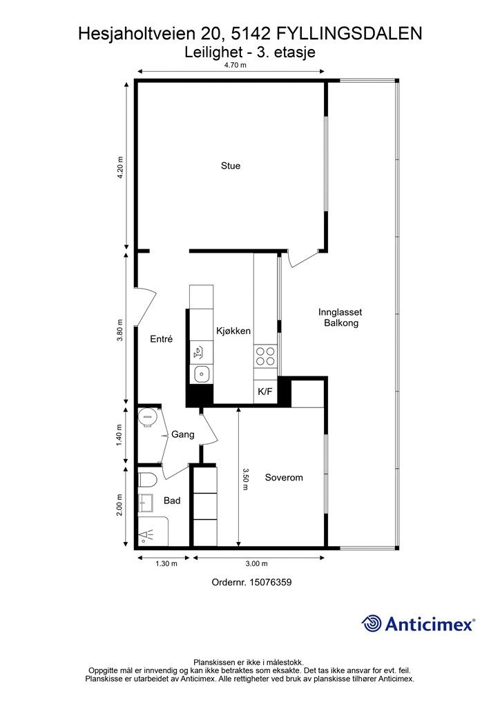
52 m²
1 soverom
Solgt

Presenteres av
Henriette MuriLys og trivelig leilighet med gode kvaliteter og naturskjønn utsikt! Innglasset, solrik altan uten innsyn - Heis i bygg
Prisantydning
2 590 000 krAndel fellesgjeld
434 311 krOmkostninger
19 252 krTotalpris
3 043 563 kr
Pris
Bruksareal
82 m²BRA-I (internt bruksareal)
52 m²BRA-E (eksternt bruksareal)
5 m²
Areal
Etasje
3Byggeår
1966Soverom
1 soveromBad
1 badType
AndelsleilighetEierform
AndelFasiliteter
Heis og Balkong/TerrasseFellesutgifter
5 889 krEnergimerke
Rød E
Nøkkelinfo
Unngå doble boligrenter
Vi tilbyr gunstig forsikring.
Vurderer du utleie?
Få et tilbud fra Utleie KrogsveenHva koster lånet?
Sjekk estimert lånekostnadBeskrivelse
Kort om eiendommen
Høydepunkter:
Moderne gulv- og veggflater.
Vaskemaskin (kjøpt høst 2025) medfølger handelen
Stor innglasset balkong på ca. 25 m²
Vestvendt beliggenhet med gode solforhold.
Flott naturskjønn utsikt!
Adkomst via heis og trapper
Mulighet til å søke styret om fast parkering
Flere gjesteparkeringer, også med lader til elbil
Kort om beliggenhet:
Fremste rekken i borettslaget!
Gangavstand til skoler og barnehager
Gode turmuligheter! Bla. tursti fra eiendommen til Kanadaskogen
Kort vei til butikk, bensinstasjon og Oasen senter
Bussholdeplass like ved innkjørsel til borettslaget (linje 4)
Varden Amfi i umiddelbar nærhet
Godt vedlikeholdt borettslag med en dyktig og engasjert vaktmester
Område
Legg til steder som er viktige for deg
På flyttefot? Tenk kjøp og salg samtidig.
Få din egen rådgiver gjennom hele kjøps- og salgsprosessen. Det starter med en verdivurdering.
Unngå doble boligrenter
Vi tilbyr gunstig forsikring.
Vurderer du utleie?
Få et tilbud fra Utleie KrogsveenHva koster lånet?
Sjekk estimert lånekostnadVil du varsles om lignende boliger?
Ved å lagre ditt boligsøk hos oss får du beskjed når vi har en bolig som ligner denne, før den legges ut på markedet!
På flyttefot? Slik gjør vi det enklere for deg
Skreddersydd flyttepakke
Vi fikser håndverkere, vask, pakking, lagring og transport, og legger ut for utgiftene underveis.
Hjelp med både kjøp og salg
Hos oss har du din egen rådgiver gjennom hele kjøps- og salgsprosessen.
Hjelp til finansiering
Vårt samarbeid med BN Bank sikrer deg rask og løsningsorientert hjelp, til konkurransedyktige betingelser.

