Lunden 43
7 480 000 kr
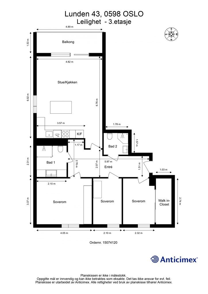
85 m²
3 soverom
Solgt

VOLLEBEKK
Lekker og lys 4-roms selveier fra 2019| God planløsning | Balkong | 2 Bad | Heis | Garasje | VV og fjernvarme inkl. i FK
Prisantydning
7 480 000 krOmkostninger
198 040 krTotalpris
7 678 040 kr
Pris
Bruksareal
90 m²BRA-I (internt bruksareal)
85 m²BRA-E (eksternt bruksareal)
5 m²TBA (terrasse-balkongareal)
7 m²
Areal
Etasje
3Byggeår
2019Soverom
3 soveromBad
2 badType
EierleilighetEierform
EierseksjonFellesutgifter
5 640 krEnergimerke
Grønn C
Nøkkelinfo
Unngå doble boligrenter
Vi tilbyr gunstig forsikring.
Vurderer du utleie?
Få et tilbud fra Utleie KrogsveenHva koster lånet?
Sjekk estimert lånekostnadBeskrivelse
Kort om eiendommen
Velkommen til en fantastisk 4-roms selveier med sentral og attraktiv beliggenhet. Her bor du i barnevennlige og urbane omgivelser med gangavstand til både barnehager, skoler og flere dagligvareforretninger. Gode kollektivmuligheter i umiddelbar nærhet tar deg til sentrum på 15 min. Leiligheten holder høy standard med bl.a. kjøkken fra 2024, store moderne vindusflater, parkett og vannbåren gulvvarme. Her kan du flytte rett inn!
• Felleskostnader som inkl. bl.a. fjernvarme, varmtvann, TV og internett
• Det er vannbåren gulvvarme i entre, badene, stue og kjøkken
• Balkong på 7 kvm med direkte utgang fra stuen
• Gjennomgående leilighet med gode solforhold
• Flott kjøkken fra 2024 med kjøkkenøy
• Garasjeplass med Elbil lader
• Ingen gjenboere
Område
Legg til steder som er viktige for deg
På flyttefot? Tenk kjøp og salg samtidig.
Få din egen rådgiver gjennom hele kjøps- og salgsprosessen. Det starter med en verdivurdering.
Unngå doble boligrenter
Vi tilbyr gunstig forsikring.
Vurderer du utleie?
Få et tilbud fra Utleie KrogsveenHva koster lånet?
Sjekk estimert lånekostnadVil du varsles om lignende boliger?
Ved å lagre ditt boligsøk hos oss får du beskjed når vi har en bolig som ligner denne, før den legges ut på markedet!

