Vargveien 17
17 000 000 kr
259 m²
6 soverom
Solgt
Ulvøya
Funkisvilla fra 1937 med store terrasser, 1 mål tomt, sjøutsikt, 6 soverom, hybel og carport.
Prisantydning
17 000 000 krOmkostninger
445 990 krTotalpris
17 445 990 kr
Pris
Bruksareal
271 m²BRA-I (internt bruksareal)
259 m²BRA-E (eksternt bruksareal)
12 m²TBA (terrasse-balkongareal)
21 m²
Areal
Byggeår
1937Soverom
6 soveromBad
3 badTomteareal
1 035 m² (eiet)Type
Enebolig - FrittliggendeEierform
EietEnergimerke
Rød G
Nøkkelinfo
Unngå doble boligrenter
Vi tilbyr gunstig forsikring.
Vurderer du utleie?
Få et tilbud fra Utleie KrogsveenHva koster lånet?
Sjekk estimert lånekostnadBeskrivelse
Kort om eiendommen
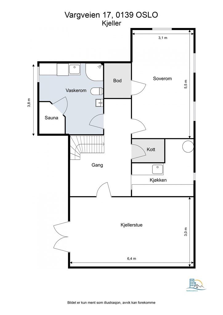
Velkommen til Vargveien 17, en original funkisvilla fra 1937 med stor tomt på drøye ett mål, i sjønære omgivelser. Tomten er opparbeidet med en solrik, frodig hageidyll, store terrasser mot syd og vest, samt gruset gårdsplass, dobbel carport og en nyere utebod på nordsiden. Fra den vestvendte terrassen strekker utsikten seg helt til fjorden.
Boligen er betydelig oppgradert de siste 12 årene og ominnredet med tanke på fleksibilitet og hybel i kjelleren. Her er det nå stue og kjøkken, samt et soverom og et bad/vaskerom med badstue. Hoveddelen har hele fem soverom, to bad og en loftstue. Hovedstuen ligger i åpen løsning til et påkostet kjøkken med integrerte hvitevarer og benkeplate i stein. Oppholdsommene er luftige med vindusrekker, lyse overflater og enstavs parkettgulv i oljet eik.
Område
Legg til steder som er viktige for deg
På flyttefot? Tenk kjøp og salg samtidig.
Få din egen rådgiver gjennom hele kjøps- og salgsprosessen. Det starter med en verdivurdering.
Unngå doble boligrenter
Vi tilbyr gunstig forsikring.
Vurderer du utleie?
Få et tilbud fra Utleie KrogsveenHva koster lånet?
Sjekk estimert lånekostnadVil du varsles om lignende boliger?
Ved å lagre ditt boligsøk hos oss får du beskjed når vi har en bolig som ligner denne, før den legges ut på markedet!




