Tordivelveien 14
3 950 000 kr
130 m²
3 soverom
Solgt

Gjekstad
Solrik og barnevennlig beliggende bolig med særdeles idyllisk eiertomt på 1.095 kvm. - Dobbel garasje
Prisantydning
3 950 000 krOmkostninger
119 740 krTotalpris
4 069 740 kr
Pris
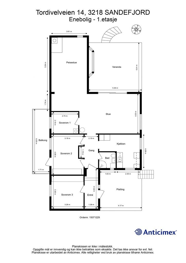
Bruksareal
172 m²BRA-I (internt bruksareal)
130 m²BRA-E (eksternt bruksareal)
42 m²TBA (terrasse-balkongareal)
51 m²
Areal
Byggeår
1959Soverom
3 soveromBad
1 badTomteareal
1 096 m² (eiet)Type
Enebolig - FrittliggendeEierform
EietEnergimerke
Gul G
Nøkkelinfo
Unngå doble boligrenter
Vi tilbyr gunstig forsikring.
Vurderer du utleie?
Få et tilbud fra Utleie KrogsveenHva koster lånet?
Sjekk estimert lånekostnadBeskrivelse
Kort om eiendommen
Velkommen til Tordivelveien 14!
Høyt og frittliggende enebolig med en fantastisk tomt. Særdeles solrik og barnevennlig beliggende med fantastiske utearealer. Her kan solen nytes fra morgen til kveld, og det er plass til hele familien på grilling og sommerhygge.
Det er sjeldent det selges eiendommer med denne tomtestørrelsen, og beliggenheten på denne tomten er trolig en av de beste i Tordivelveien. Boligen har aldri vært omsatt tidligere og har vært i familiens eie siden byggeår i 1959.
Boligen holder en eldre standard og de fleste vil nok vurdere å oppgradere boligen til en mer tidsriktig standard. Men grunnet den flotte beliggenheten vil denne eiendommen ha en vesentlig høyere verdi etter renovering og oppgradering.
Gode lagringsmuligheter i flere boder, samt dobbel garasje.
Område
Legg til steder som er viktige for deg
På flyttefot? Tenk kjøp og salg samtidig.
Få din egen rådgiver gjennom hele kjøps- og salgsprosessen. Det starter med en verdivurdering.
Unngå doble boligrenter
Vi tilbyr gunstig forsikring.
Vurderer du utleie?
Få et tilbud fra Utleie KrogsveenHva koster lånet?
Sjekk estimert lånekostnadVil du varsles om lignende boliger?
Ved å lagre ditt boligsøk hos oss får du beskjed når vi har en bolig som ligner denne, før den legges ut på markedet!

