Lensmann Klevs vei 186
5 000 000 kr
116 m²
1 soverom
Komplett salgsoppgave
Holt Vestvollen
Innbydende familiebolig over 2 plan på Holt Vestvollen | Garasje | 2 bad | 1(5) soverom
Prisantydning
5 000 000 krOmkostninger
145 900 krTotalpris
5 145 900 kr
Pris
Bruksareal
150 m²BRA-I (internt bruksareal)
116 m²BRA-E (eksternt bruksareal)
34 m²TBA (terrasse-balkongareal)
46 m²
Areal
Etasje
2Byggeår
1994Soverom
1 soveromBad
2 badTomteareal
351 m² (eiet)Type
Enebolig - FrittliggendeEierform
EietEnergimerke
Rød E
Nøkkelinfo
Unngå doble boligrenter
Vi tilbyr gunstig forsikring.
Vurderer du utleie?
Få et tilbud fra Utleie KrogsveenHva koster lånet?
Sjekk estimert lånekostnadBeskrivelse
Kort om eiendommen
Innhold og byggemåte
Innhold og byggemåte
Eiendommen
Lensmann Klevs vei 186, 2019 SKEDSMOKORSET
Kommunenummer 3205, gårdsnummer 21, bruksnummer 151, ideell andel 1/1
Kommunenummer 3205, gårdsnummer 21, bruksnummer 146, ideell andel 1/8
Innhold
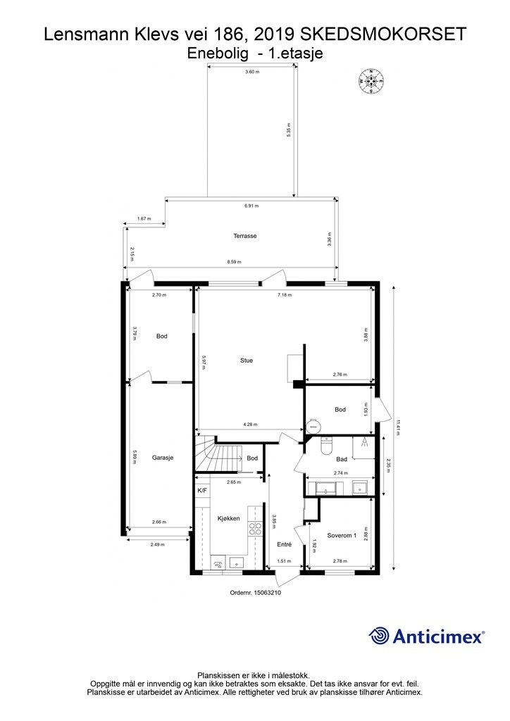
Totalt bruksareal BRA: 150 kvm
BRA-i:
1. etasje 76 kvm: Entre, soverom, bad, kjøkken, bod og stue
2. etasje 40 kvm: Gang, bad, omkledningsrom og to soverom
BRA-e:
1. etasje 34 kvm: Garasje og to boder
Åpent areal:
1. etasje 46 kvm: Terrasse
Loftsetasjen har et totalt gulvareal (GUA) på 46 m². På grunn av skråtak og lavere takhøyde er kun 40 m² av dette måleverdig bruksareal. Areal med lav himlingshøyde (ALH) utgjør 6 m². Den innvendige boden i 1. etasje er oppmålt til 6 m² (BRAe). Garasjen er oppmålt til 17 m² (BRAe), og den utvendige boden til 11 m² (BRAe). BRAe er oppmålt inkludert tilliggende vegg.
Det gjøres spesielt oppmerksom på at det ikke er søkt om/godkjent oppføring av utvendig bod og det er heller ikke kjent om det er et søknadspliktig tiltak, eller om det vil la seg godkjenne. En mulig konsekvens kan være at kommunen krever at boden rives. Kjøper overtar ansvar og risiko for dette. Arealene er medtatt i rapporten etter bruken på befaringsdagen. Se forøvrig punkt om ferdigattest.
Vedlagte plantegninger er ikke målbare. De oppgitte arealer er hentet fra rapport oppdatert den 15.10.2025, med ny rapportdato den 16.10.2025 utført av Anticimex AS. Arealene er beregnet og rom er definert etter dagens faktiske bruk, uavhengig av hva som er godkjent av bygningsmyndighetene.
Byggemåte
Selger har fått utarbeidet en tilstandsrapport, dvs. en teknisk gjennomgang av boligen hvor eventuelle avvik, risiko for kjøper og prisoverslag for hva som bør gjøres av oppgradering, er skissert. Se særskilt TGIU (tilstandsgrad ikke undersøkt), samt TG2 og TG3 som viser hva som er boligens normale slitasje, alder og type, hva som er avvik fra dette og hva som bør/må utbedres. Rapporten og selgers egenerklæring er en del av salgsoppgaven og må leses nøye før bud inngis. Kjøper overtar ansvaret for de opplysninger som fremkommer av salgsdokumentasjonen, og kan ikke gjøre gjeldende som mangel noe som burde vært kjent eller som ikke kan anses å ha betydning for avtalen. Boligen er oppført med grunnmur og gulv mot grunn av betong. Yttervegger av bindingsverk utvendig kledd med liggende panel. Saltak av
trekonstruksjoner tekket med takstein.
Følgende bygningsdeler har fått TG3:
Våtrom - Bad loftsetasje :
- Overflater vegger: Dørlist er stedvis plassert i dusjsonen og det er fuktmerker på nedre del av dørlisten. Plasseringen mot dusjsonen er ikke tilfredstillende da det kan oppstå fuktskader på list og i konstruksjonen. Dørlist må byttes og det bør etableres dusjvegger for å unngå ytterligere vannskade.
Våtrom - Bad 1.etasje :
- Helhetsvurdering: TG 3 er valgt på hele våtrommet på grunn av høy alder og/eller slitasjegrad. Det er blant annet registrert følgende avvik: Sluket er isolert inne i dusjsonen, dette gjør at vannsøl/lekkasjevann ikke har noen mulighet til å nå sluket. Det registreres bomlyd (tegn til hulrom) under enkelte gulvfliser. Eksakt årsak er ikke kjent. Det er stedvis riss/sprekker i flisfuger i dusjsonen. Kan skyldes utettheter i tettesjikt. Det er riss/sprekker i veggfliser i dusjsonen, mellom dusjvegg og toalett og ved toalett. Kan skyldes utettheter i tettesjikt. Elastiske fuger har stedvis manglende vedheft og missfarging/svertesopp i overgang mellom gulv og veggflater i dusjsonen. Det er stedvis motfall på gulvflater utenfor dusjsonen. Fare for vannansamling. Klosett har sprekk/riss i porselen, elastisk fuge rundt klosett har manglende vedheft og klosett er løst. Det er vurdert at det er en mindre lekkasje fra klosettet grunnet vann på gulvet rundt klosett. Klosett må skiftes ut. Servant har sprekk/riss i porselen. Servant må skiftes ut. Det er foretatt hulltaking og utført fuktmåling med egnet instrument (Protimeter MMS), i tilstøtende rom til våtsone. Det ble ikke registrert forhøyede verdier eller andre avvik. Målingene viser følgende: RH 61,6 %, temperatur 20,3 grader C og duggpunkt 12,7 grader C. Målingen gir kun et øyeblikksbilde av forholdene og kan endre seg med årstider, fukt- og temperaturforhold. Fornying/oppgradering av våtrommet må påregnes. Sjablongmessig prisanslag gjelder total oppgradering.
Ildsteder / skorsteiner innvendig. (Omfatter ikke funksjonalitet og innvendig pipeløp):
- Skorsteiner inne i boligen: Innkledd elementpipe i loftetasje. Minimum to sider skal kunne inspiseres. Konstruksjonen må åpnes slik at minimum to sider blir synliggjort.
Yttervegger inkl. fasader og konstruksjon:
- Annet: Det er registrert råteskade på bærende deler av overbygget ved inngangsparti. Utbedring må påregnes.
Dører og vinduer:
- Vinduer: TG2 gjelder: Vinduer i 1.etasje er av eldre dato og har behov for oppgraderinger/ overflatebehandling. Det må forventes høyere varmetap fra disse vinduene sammenlignet med vinduer fra nyere dato. Til informasjon ble det utført stikkprøvekontroll på enkelte vinduer, hvor åpne/lukkefunksjon fungerte som forventet. TG3 gjelder: Det er skader/sprekker/steinsprut i glass på vindu på kjøkken. Vindu med skader i glass må skiftes ut.
Frittstående byggverk - Bod:
- Helhetsvurdering: Boden har synlige feil og skader. Det er blant annet registrert fukt i bærende søyle, utettheter, skjevheter og råte i takkonstruksjonen, råteskader på utvendig panel og fuktskader i dør til terrasse. Døren er en innerdører. Tiltak og utbedring av boden må påregnes.
Følgende bygningsdeler har fått TG2:
Våtrom - Bad loftsetasje :
- Overflater gulv: Det registreres bomlyd (tegn til hulrom) under enkelte gulvfliser. Eksakt årsak er ikke kjent. Forholdet indikerer manglende vedheft mellom flis og underlag. Fliser med bom kan løsne og være svekket mot ytre påvirkninger. Jevnlig ettersyn anbefales slik at tiltak kan iverksettes ved behov.
- Fallforhold (gulv): Nivåforskjell fra døråpning på topp overflate gulv og til hovedsluk er på tilfeldig sted målt til ca. 11 mm. Dette er vurdert til å ikke være tilfredsstillende mht lekkasjesikkerhet.
- Membran, tettesjikt og overgang til sluk.: Tettesjiktet har en alder som tilsier at restlevetiden er usikker. Rommets lekkasjesikkerhet kan derfor ikke verifiseres, eventuelt bør nytt tettesjikt etableres. Det er ikke mulig å verifisere om slukmansjett og klemring er benyttet eller om monteringen er korrekt. Dette kan ha betydning for rommets lekkasjesikkerhet. Fornying av slukmansjett og klemring bør påregnes.
Kjøkken:
- Overflater vegger: Karmer og lister rundt åpning inn til kjøkkenet mangler. Karmer og listverk bør etableres.
- Innredning: Skuffer og fronter mangler under oppvaskkum og under komfyr. Skuffer og fronter bør etableres.
Øvrige rom - 1.etasje:
- Overflater vegger: Veggkonstruksjon ved trapp er åpen mot trappen. Forholdet er kun av kosmetisk betydning.
Loft - innredet:
- Overflater vegger: Det er sprekk/løsnet sparkel ved trapp. Forholdet er vurdert til å kun være av kosmetisk betydning.
- Overflater gulv: Det er stedvis knirk i gulvflater ved trapp. Eksakt årsak er ukjent. Tiltak kan iverksettes ved behov.
- Innerdører: Dørbladet til innerdør ved soverommene har kontakt med dørterskel/dørkarm, noe som gjør at dørene henger når de åpnes og lukkes. Justering av dørblad/dørkarm kan vurderes.
- Konstruksjonsoppbygging: Deler av konstruksjonen er lukket, og det er ikke kjent hvordan oppbyggingen er utført. Erfaringsmessig betraktes slike konstruksjoner som risikokonstruksjoner blant annet med tanke på fukt-/kondensproblematikk. Det er observert skader/symptomer på skader. Ytterligere undersøkelser for å avdekke skadeomfang og aktuelle tiltak bør påregnes.
Ildsteder / skorsteiner innvendig. (Omfatter ikke funksjonalitet og innvendig pipeløp):
- Ildsteder inne i boligen: Det er sprekker i fliser og flisfuger på gulv forran ildstedet. Fliser bør byttes.
Innvendige trapper:
- Innvendige trapper: Trappens bruksflater bærer preg av slitasje. Overflater må fornyes. Håndløper er ikke tilstrekkelig festet og det er slark i håndløperen. Forholdene anbefales utbedret.
Etasjeskiller - Loftsetasje :
- Skjevhetsmåling: Det er noe merkbare skjevheter i boligen. Forskjellen mellom høyeste og laveste punkt på 2,0 meter er målt til 12 mm i gang og 7 mm på soverom 2.
Tekniske anlegg, VVS anlegg (Sjekkpunkter utover det som er inkludert i andre rom):
- Varmtvannsbereder (Sjekkpunkter utover det som er inkludert i andre rom): På bakgrunn av berederens alder er det grunn til å varsle om usikker restlevetid eller andre forhold som utvikles over tid. Det kan ikke utelukkes behov for reparasjon/utskiftning. Jevnlig ettersyn anbefales slik at eventuelle tiltak kan iverksettes ved behov.
Elektrisk anlegg:
- Forenklet vurdering av det elektriske anlegget: Kursoversikt/merking av kurser er uoversiktlig. Kursfortegnelse/merking av kurser bør utbedres. Som følger av manglende samssvarerklæring på deler av det elektriske anlegget som er montert etter år 1999 er TG2 satt i henhold til NS3600. Det observeres løs ledning ved terrassedør. Forholdet må utbedres av en kvalifisert fagperson.
Loft - uinnredet / råloft:
- Overflater vegger/undertak: Fuktskjolder/-merker observert i tak/undertak. Skyldes mest sannsynlig kondens. Risiko for skader i konstruksjonen. Krever oppfølging med jevnlig ettersyn.
- Overflater gulv: Det er observert spor etter aktivitet av gnagere. Ytterligere undersøkelser for å avdekke skadeomfang og aktuelle tiltak bør påregnes.
Yttertak:
- Tekking (undertak, lekter og yttertekking): Det er registrert symptomer på elde og slitasje, samt dårlig utførelse ved en takstein under takgjennomføring av pipe. En stein er kappet for mye som gjør at det er en åpning i tekkingen inn til undertaket. Det anbefales oppfølging med jevnlig ettersyn slik at vedlikeholds- og eventuelle utbedringstiltak kan iverksettes ved behov. TG2 er satt for å belyse skaderisikoen som følge av alder og observert tilstand.
- Beslag, renner, nedløp og snøfangere: Det er registrert deformasjoner/slitasje på nedløp. Utskiftning bør påregnes.
Terrasser / platting på terreng:
- Fundamenter: Søyler/pilarer som danner fundamenter hviler på belegningsstein som kun ligger på bakken, samt enkelte søyler pilarer henger over bakken. Utførelsen av fundamentering av terrassen er ikke fagmessig utført. Kan føre til skjevheter i terrassen. Krever oppfølging med jevnlig ettersyn.
Drenering:
- Alder: Dreneringen er nedgravd og skjult. Tilstanden må derfor vurderes ut fra alder. Estimert teknisk levetid for drenssystem ligger mellom 20 - 60 år. TG2 er valgt for å belyse at dreneringen har nådd en alder der funksjonssvikt ikke kan utelukkes. Det anbefales derfor oppfølging med jevnlig ettersyn slik at eventuelle tiltak kan iverksettes ved behov.
- Vann fra yttertak og bortledning: Det er usikkert om takvann ledes i eget lukket avløpsystem, og om det fungerer tilfredstillende. Kan innebære økt fuktbelastning på grunnmuren og risiko for fuktinnsig. Det anbefales oppfølging med jevnlig ettersyn slik at tiltak kan iverksettes ved behov.
Sammendrag fra selgers egenerklæringsskjema:
Har du selv bodd i boligen?
- Ja, men har ikke bodd i boligen fra 26.04.2025- 01.11.25.
Har det vært feil på bad, vaskerom eller toalettrom?
- Ja, det har lekket litt vann fra nederste del av toalettet i første etasje.
Er det utført arbeid på varmeanlegg eller ventilasjonsanlegg?
- Ja, nytt arbeid i 2025.
Hvordan ble arbeidet utført?
- Utført av faglærte. Varmefolie ble bytta på første soverommet i loftsetasje, denne bytta forskingen da varmfolien var satt feil og hadde ødelagt gulvet. Husker ikke
navnet på forsikringen vi hadde den gang. Tror det er Trygg
Har du dokumentasjon på arbeidet?
- Ja.
Har du bygd på eller gjort om kjeller, loft eller annet til boligrom?
- Ja, utført nytt arbeid i 2023.
Hvordan ble arbeidet utført?
- Utført av faglærte. Bytte av vegger, gulv, varmefolie, vinduer og ledlys i taket.
Har du dokumentasjon på arbeidet?
- Ja.
Er det utført radonmåling?
- Ja, målene var normale. Sist var 17. mars i år.
- Det har blitt utført metanmåling av brånåsdalen avfallsdeponi og måleverdiene i følge rapporten på boligen var <5
Standard
Entré:
En romslig og lys entré ønsker deg velkommen inn i hjemmet, med god plass til oppbevaring av yttertøy og sko - perfekt for å holde orden.
Stue:
Stor og åpen stue med rikelig plass til både sofagruppe, spisebord og TV-løsning. Fra stuen er det utgang til en nordvendt terrasse på ca. 46 kvm. Peisovnen gir både varme og atmosfære i vinterhalvåret, og stuen har fleksible møbleringsmuligheter som gjør det enkelt å skape ditt drømmehjem.
Kjøkken:
Et stilrent og romslig Epoq-kjøkken fra 2023, med god skapplass og arbeidsflater. Kjøkkenet har integrerte hvitevarer som kjøleskap med frysedel, komfyr, mikrobølgeovn i høyskap, oppvaskmaskin og nedfelt platetopp. Ventilatoren er pent integrert i overskapet, og de slitesterke benkeplatene i laminat gir et moderne uttrykk.
Bad:
Boligen har to bad, ett i hver etasje. Badet i 1. etasje ble oppgradert rundt år 2000, og har flislagt gulv med varmekabler og flislagte vegger. Her finner du et vegghengt servantskap med overliggende servant, sideskap, overbelysning og stikkontakt. Badet har også dusjhjørne med glassdører, gulvstående toalett og opplegg for vaskemaskin og tørketrommel.
Soverom:
Ett soverom er praktisk plassert i første etasje, i nærheten av entréen. Opprinnelig ble boligen godkjent med to soverom i denne etasjen, hvor deler av stuen var tiltenkt som soverom.
Loftsetasje - Etasjen er ikke godkjent innredet
Loftsetasjen ble oppusset i 2023 og har moderne fargevalg og varmefolie i hele etasjen for økt komfort.
Bad:
Badet i 2. etasje er fra byggeår, og har et vegghengt servantskap, speil med overlys og stikkontakt, dusjhjørne og gulvstående toalett. Dette badet er plasser i boligens 2.etasje. Denne etasjen er ikke godkjent innredet og bade er derfor ikke godkjent. Viser til dette under punkt om ferdigattest.
Soverom:
Det er i byggetegninger tegnet inn 3 soverom i boligens 2.etasje. Herav blir det ene rommet i dag brukt som omkledningsrom. Etter dialog med kommunen er boligens loftetasje godkjent bygd, men ikke godkjent innredet. Disse tre rommene er derfor ikke godkjent som soverom. Viser til punkt om ferdigattest.
Omkledningsrom:
Praktisk garderobeløsning som gir rikelig med oppbevaringsplass.
Løsøre og tilbehør
Hvitevarer på kjøkkenet medfølger.
Vi viser til liste fra Norges Eiendomsmeglerforbund som gjelder fra 01.01.2020 angående løsøre og tilbehør.
Oppvarming
Boligen er oppvarmet med elektrisitet kombinert med peis i stue. Varmekabler i hele 1. etasje og varmefolie i hele loftsetasjen, og varmekabler på badet.
Dersom beboelsesrom ikke har vegg- eller fastmonterte varmekilder ved visning, følger dette heller ikke med.
Ferdigattest/brukstillatelse
Det foreligger ferdigattest på eiendommen datert 22.12.1998. Denne omfatter ikke loftetasjen.
Det foreligger samtidig ferdigattest for montering av ildsted datert 29.02.1996. Denne gjelder ildsted type Jøtul system 80 m/Kvålseth omramming oppført i 1 etg.
Det foreligger også en midlertidig brukstillatelse på enebolig, denne ble gitt 07.02.1994. Tillatelsen er gitt på følgende vilkår:
Tillatelsen er gitt på følgende vilkår:
- Baderom kan ikke godkjennes med trefiberplater på veggene. Bad må utføres etter byggeforskrift 1987 kap 41:51 og kap.46 jfr.NBI byggedetaljblad A 541.805 og A 543.805. Rørgjennomføringer må tettes forsvarlig.
- Loftet er ikke ferdig innredet. Trapp er montert men manglet rekkverk på den ene siden.
- Bereder rom må ventileres.
- Noen småarbeider gjenstår, samt utvendig planeringsarbeider.
- Det må ordnes med erklæring om felles vedlikehold av ledninger og pumpekummer.
Det er ukjent om alle tiltakene er utført. Kjøper overtar alt ansvar, kostnad og risiko for dette videre.
Endringer fra opprinnelige byggetegninger til dagens faktiske buk:
- Det opprinnelige plantegningen viser et soverom i tilknytning til stuen. I ettertid er stuen utvidet ved at veggene mellom stuen og soverommet er fjernet. Denne endringen har åpnet opp arealet slik at stuen og det tidligere soverommet nå utgjør en kombinert sone. Et slikt tiltak vil normalt ikke kreve bruksendring, det kan dog. være krav til f.eks. størrelse og ventilasjon ved en eventuell tilbakeføring. Eier må i så fall kontakte kommunen for å undersøke kravene om å få et godkjent soverom ved ønske om tilbakeføring. Kjøper overtar alt ansvar, kostnad og risiko for dette videre.
- Soverommet ved entréen er i byggetegningene fra 1993 godkjent som soverom. I byggetegningene fra 2000, i forbindelse med oppføring av garasjen, er rommet imidlertid betegnet som «disp.». Det er derfor usikkerhet knyttet til hvilken godkjenning som faktisk gjelder. Dersom rommet etter dagens regelverk ikke anses som godkjent for varig opphold, kan konsekvensen ved en eventuell søknadsprosess være at rommet ikke blir godkjent som soverom, men må brukes som bod eller til midlertidig oppbevaring. Rommet markedsføres som soverom fordi det er omtalt som dette i de opprinnelige tegningene. Etter en telefonsamtale med kommunen er det opplyst at rommet anses som godkjent soverom. Kjøper overtar likevel risiko og ansvar knyttet til dette forholdet. Det tas derfor et særskilt forbehold om at rommet er godkjent som soverom.
- Rommet som i dag blir brukt som omkledningsrom er i byggetegninger godkjent som soverom. Rommet er åpnet opp, og har ingen vegg eller dør til rommet fra trapperommet, og har derfor blitt innlemmet i trapperom/gang. En slik endring er normalt ikke søknadspliktig. Det er ukjent om det er enkelt å tilbakeføre dette til soverom. Ved en eventuell endring bør ny eier kontakte kommunen for å være sikker på at alle krav er oppfylt. Det gjøres videre oppmerksom på at tegninger fra 1993 i tilknytning til midlertidig brukstillatelse også viser tegning av loftetasjen. Det er likevel beskrevet i den samme tillatelsen at loftet ikke er ferdig innredet. Videre fremkommer det at gjenstående arbeider, herunder innredning av loftetasjen må utføres og ferdigbesiktigelse må avholdes innen 1 år fra dato i midlertidig brukstillatelse. Dette er ikke utført. En mulig konsekvens er at kommunen krever søknad om godkjenning av loftetasjen, eller at alle rommene brukes som bod/midlertidig oppbevaring. Ved en eventuell søknad kan det komme krav om diverse endringer, da hverken megler eller selger kjenner til om alt arbeidet er utført iht. kravene for å få en godkjent loftetasje. Kjøper overtar alt ansvar, kostnad og risiko for dette videre. Alle arealer er likevel medtatt i tilstandsrapport og i salgsoppgave.
-Etter samtale med kommunen har det blitt foretatt en nøye gjennomgang av punktet om loftsetasjen i ferdigattest og midlertidig brukstillatelse, hvor det fremgår at disse ikke omfatter boligens 2. etasje. Rammetillatelsen er ikke mottatt hos megler, men kommunen har gjennomgått denne og opplyser at den omhandler oppføring av en enebolig med to etasjer, herunder loftsetasje.
Merknaden i ferdigattesten innebærer at ferdigattesten ikke omfatter loftsetasjen. Det samme gjelder merknaden i midlertidig brukstillatelse. Det ble således søkt om ferdigattest, men innredning av loftsetasjen var ikke ferdigstilt på daværende tidspunkt og ble derfor tatt ut av saken.
Dette innebærer at boligens loftsetasje er godkjent oppført, men ikke godkjent innredet. Loftsetasjen kan dermed ikke defineres som rom for varig opphold. Slike tiltak er søknadspliktige, og det foreligger ingen dokumentasjon som tilsier at det tidligere er søkt om bruksendring.
En eventuell konsekvens ved en slik søknad kan være at kommunen krever tilbakeføring til opprinnelig stand og at etasjen må brukes som bod/midlertidig oppbevaring. Kjøper overtar alt ansvar, alle kostnader og all risiko knyttet til dette videre.
- Utvendig bod bak garasje er satt opp av en tidligere eier og det er ikke funnet søknadspapirer på dette tiltaket. Normalt kreves det ikke søknad, men ved overstigelse av utnyttingsgrad, ved bygging tett på tomtegrensen eller lignende kan det likevel være søknadspliktig. En eventuell konsekvens ved en søknad kan være at kommunen krever at boden rives. Kjøper overtar alt ansvar, kostnad og risiko for dette videre.
Det gjøres oppmerksom på at det ikke lenger utstedes ferdigattest på tiltak det er søkt om før 1998 jf. plan- og bygningsloven § 21-10. Kommunen vil ikke kreve ferdigattest for disse tiltakene og vil avvise eventuelle søknader. Bestemmelsen innebærer ikke at tiltak med manglende søknad blir lovlige, men at man ikke trenger å avslutte gamle byggesaker. Normalt sett kreves ferdigattest for alle søknadspliktige tiltak som gjøres etter plan- og bygningsloven.
Tinglyste heftelser og rettigheter
På eiendommen er det tinglyst følgende heftelser og rettigheter som følger eiendommens matrikkel ved overskjøting til ny hjemmelshaver:
3205/21/151:
23.02.1994 - Dokumentnr: 2807 - Best. om vann/kloakkledn.
Rett for kommunen til å anlegge og vedlikeholde ledninger m.m.
Bestemmelse om generende virksomhet
I følge skjøte solidarisk ansvar for vedlikehold av
kloakkpumpe nærmere beskrevet
23.02.1994 - Dokumentnr: 2807 - Forkjøpsrett på vilkår
Rettighetshaver Skedsmo kommune
Kommunen tar forbehold om å ta tomta tilbake mot tilbakebetaling av kjøpesummen dersom ikke byggearbeidet er satt i gang senest 2 år etter at skjøte er utestedet.
24.10.1994 - Dokumentnr: 15618 - Best. om vann/kloakkledn.
Den enkelte eier av tomt som er utsikt av samme byggefelt er forpliktet til å la eiere av nærliggende stikkledninger for vann, kloakk og overvann over sin tomt, fram til hovedledninger eter godkjent plan for stikkledninger og for øvrig etter bygningsmyndighetenes anvisning. Kommunen har rett til å anlegge over eiendommen ledninger for vann, kloakk og elektrisk strøm, samt rett til å foreta tilsyn og reparasjon av slike ledninger.
Eventuell adgang til utleie
Eiendommen har ikke separat utleieenhet. Det vil normalt være anledning til utleie av hele eiendommen eller enkeltrom, såfremt utleiearealet er bygningsmessig godkjent for varig opphold og har forsvarlige radonnivåer.
Beliggenhet og tomteforhold
Beliggenhet og tomteforhold
Beliggenhet
Lensmann Klevs vei 186 ligger i et populært og sentralt boligområde på Skedsmokorset med kort gåavstand til skoler, barnehager, kollektivtransport, marka og daglige servicetilbud.
For de som er glade i skog og mark kan dette gjøres blant annet i Tæruddalen og Romeriksåsen. Her er det flotte lysløyper på vinteren og hyggelige gå turer på sommeren. Her kan man bade og grille med venner og familie på sommeren. Samt gå på lange og hyggelige skiturer på vinteren.
Skedsmokorset og Romerike byr på et stort utvalg av fritidsaktiviteter for både barn og unge. Det er tennisbane og fotballbaner kun 10 minutter gange fra boligen. Det er også flere treningssentre i området. Både Fresh fitness og Avancia ligger på Skedsmokorset. Nylendlia slalombakke ligger kun 10 minutter gange fra boligen.
Det er opparbeidet et helt nytt parkområde i direkte nærhet til eiendommen hvor det er blant annet er sandvolleyballbane, trenings- og lekeplass samt en hundepark.
Lillestrøm er bare 10 minutter unna med bil, ca. 20 minutter med buss eller 10-15 minutter med sykkel. Her har du et stort utvalg av restauranter, kino, kjøpesenter, forretninger og utesteder. Det er direktebuss til Oslo som tar ca 20 minutter, med bil er det ca 15 minutter til Oslo og 25 minutter til OSL Gardermoen.
Boligen ligger kun få minutter fra Skedsmo senteret med cirka 50 butikker, restaurant og forretninger - et naturlig samlingspunkt!
Adkomst
Det vil bli skiltet med Krogsveen visningsskilt ved fellesvisninger.
Barnehager, skoler og fritid
Barnehager:
- Toppen barnehage (1-5 år) 0.6 km
- Holthagen barnehage (0-5 år) 1.2 km
- Sten-Tærud barnehage (1-5 år) 1.7 km
Skoler:
- OKS grunnskole (1-10 kl.) 1.3 km
- Brånås skole (1-7 kl.) 2.6 km
- Lillestrøm videregående skole 5.9 km
- Skedsmo videregående skole 6.3 km
Informasjon om tilhørende skolekretser er hentet fra Prognosesenteret som dataleverandør, og tilhørigheten kan årlig endres av kommunen. Dersom skole- og barnehagetilbud er av betydning for kjøpet, ber vi om at det rettes en særskilt henvendelse til kommunen/bydelsadministrasjonen for oppdatert informasjon.
Beskrivelse av tomt
Eiertomt på 351 kvm. Boligen ligger på en pent opparbeidet tomt som byr på en innbydende oppkjørsel, belagt med stilfulle belegningsstein, som leder til det overbygde inngangspartiet. Rundt huset er det flotte plenarealer og variert beplantning som skaper en trivelig atmosfære.
Parkering
Eiendommen tilbyr enkel og praktisk parkering med plass i egen garasje i tillegg til romslig oppstillingsplass på gårdsplassen.
Vei, vann og avløp
Eiendommen har adkomst via kommunal vei, med privat stikkvei med felles vedlikeholdsansvar inn til eiendommen. Boligen er tilknyttet offentlig vann og avløp
Informasjon fra selger: I dag blir kostnadene for vedlikehold av vei delt på tre boliger. Denne kostanden var i år 10.000,- pr bolig. I dette inngår snørydding og strøing inkl singel. Ny eier har her mulighet til å engasjere seg i driften og kostandene som påløper av dette.
Eiendommen er tilknyttet kommunalt ledningsnett via private stikkledninger. Eier er selv ansvarlig for private stikkledninger til boligen.
Regulerings-og arealplaner
Eiendommen er regulert til frittliggende småhus i henhold til reguleringsplan for Holtområdet med tilhørende reguleringsbestemmelser datert 05.04.1984.
Utsnitt av plan med tilhørende bestemmelser kan fås ved henvendelse til megler.
Iht. kommuneplan er området boligen ligger i, avsatt til boligbebyggelse - nåværende, Andre typer beb - nåværende, Friområde - nåværende og LNRF - nåværende.
Det foreligger en faresone for nedlagt avfallsdeponi, H390_2. Innenfor området tillates ikke etablering av teknisk infrastruktur i form av vann-, avløps- og fjernvarmeledninger eller el- og telekabler. Etablering av infrastruktur for håndtering av overvann/sigevann og deponigass er tillatt. Innenfor sonen kan det i områder som i kommuneplankartet er satt av til næringsvirksomhet, kombinerte formål eller bolig ikke gjennomføres tiltak etter plan- og bygningslovens § 20-1, med unntak av de som eksplisitt er nevnt over.
Multiconsult er anmodet av Lillestrøm kommune om å utføre målinger av metankonsentrasjoner i boliger som er omfattet av overvåkningsprogram for ordinær etterdrift av Brånåsdalen avfallsdeponi.
Deler av tomten ligger innenfor et område med forurensning, da eiendommen delvis ligger på et nedlagt søppeldeponi. Det har tidligere vært problemer med gass fra deponiet i noen boliger i området, men målinger i denne boligen viser metankonsentrasjon på under 5 ppm, hvor verdier over 5 ppm regnes som innsig av metangass. Målingen av metangass ble utført med gassmåler av typen SENSIT PMD (Portable Methane Detector). Instrumentet detekterer lave konsentrasjoner, ned til 1 ppm2, men svært lave konsentrasjoner (<5 ppm) er usikre. Boligen har hatt svært liten skjevsetting til nå, men det kan ikke garanteres at dette forblir uendret i fremtiden. Rapporter og mer detaljerte målinger er tilgjengelig hos megler ved forespørsel.
Deler av tomten er innenfor gul støysone.
Eiendommen er under marin grense, og det er svært stor sannsynlighet for marin leire. Eiendommen er ikke under faregrad for kvikkleireskred i følge NVE, men er under aktsomhetsområde. Eiendommen er også under moderat/lav aktsomhetsgrad for radon.
Mellom 2017 og 2020 gjennomførte kommunen en rekke tiltak for å hindre at deponigass kommer inn i boligene på området. Tiltakene omfattet:
- Oppgradering av gassanlegg samt tetting av mulige føringsveier for gass
- Håndtering av setninger
- Håndtering av sigevann
- Håndtering av overvann/topptetting
- Undersøkelser av hva som er deponert
Eiendommen er en av flere eiendommer som har vært igjennom rettsak mot kommunen vedr. forurensning i grunn og gass. Tidligere eier fikk i 2021 tilkjent erstatning av Lillestrøm Kommune. Erstatningen er for verdiforringelsen nærheten til deponiet og grunnforurensningen medfører, samt skjevsettinger og gass. Kjøper må ikke forvente å kunne komme igjennom med nye krav mot kommunen eller selger vedr. forurensing av grunn, gass i området eller skjevheter i huset.
Lillestrøm Kommune er pålagt av Statsforvalteren I Viken om å ha et overvåkingsprogram for gass og setninger. Med målinger hvert halvår inne og ute.
Økonomi
Økonomi
Kommunale utgifter
Kommunale avgifter er kr 17.010,- for år 2024. I dette inngår gebyr for vann, avløp, renovasjon og feiing/tilsyn. Oppgitt kostnad baserer seg på nåværende forbruk og vil variere utfra bruk/personer i husstanden.
Nåværende eier har et strømforbruk som tilsvarer ca. kr 28.000,- pr. år. / 19.000 kwh. pr. år.
Boligen har en årlig forsikringspremie på kr 11.843.
Boligen er tilknyttet Telia som leverandør av internett og tv og har avgift på kr 590,- pr. mnd. Tv-tuner/dekoder medfølger ikke.
Boligen er tilknyttet alarmselskap, men abonnement medfølger ikke.
Utgiftene er basert på nåværende eiers forbruk og avtaler.
Det er installert vannmåler på eiendommen og kostnadene betales etter forbruk. Forbruk avleses etter henvendelse fra kommunen. Forbruk betales à konto basert på siste avlesning. Avregning foretas i forbindelse med neste forfall på kommunale avgifter.
Formuesverdi
Formuesverdi for 2022 var kr 1.502.295,- ifølge skatteetaten. Beløpet forutsetter at eier bor fast i boligen (primærbolig).
Ved eventuell øvrig bruk av eiendommen (f.eks. fritidsbolig, pendlerbolig, utleieobjekt) var formuesverdien for 2022 kr 5.708.722,-.
Formuesverdien justeres normalt årlig. Se skatteetaten.no for mer informasjon om fastsettelse av formuesverdien.
Eiendomsskatt
Eiendomsskatten utgjør kr. 1345 pr år.
Omkostninger
5 000 000,00 Prisantydning
Omkostninger
125 000,00 Dokumentavgift til staten (2,5% av kjøpesum)
500,00 Tinglysing panterettsdokument
500,00 Tinglysing skjøte
19 900,00 Tryg Boligkjøperpakke (valgfri)
--------------------------------------------------------
145 900,00 Omkostninger totalt
--------------------------------------------------------
5 145 900,00 Totalpris inkl. omkostninger
--------------------------------------------------------
Totalpris inkl. omkostninger forutsetter kjøp til prisantydning.
Det tas forbehold om endringer i avgifter og gebyrer.
Tilbud om lånefinansiering
Megler formidler gjerne kontakt med rådgiver hos vår samarbeidspartner BN Bank. De har konkurransedyktige betingelser samt rask og løsningsorientert behandling av din lånesøknad. Krogsveen mottar et honorar for denne formidlingen.
Betalingsbetingelser
Kjøpesum inkludert omkostninger, samt pantedokument tilknyttet eventuelt lån, skal være disponibelt hos megler 2 virkedager før overtagelsen.
Annen viktig informasjon
Annen viktig informasjon
Eier
Ako Ahmadi og Hanni Bokani
Overtakelse
Etter nærmere avtale.
Boligselgerforsikring
Selger har i forbindelse med salget tegnet boligselgerforsikring levert av Gjensidige.
Boligselgerforsikringen dekker selgers ansvar etter avhendingsloven begrenset oppad til kr 14 millioner. Dersom kjøper oppdager forhold ved eiendommen som hen mener utgjør en mangel ved eiendommen, vil Gjensidige behandle reklamasjonen på vegne av selger. Forsikringsvilkår kan fås ved henvendelse til megler.
Vedlagt salgsoppgaven følger selgers egenerklæringsskjema og tilstandsrapport. Interessenter må sette seg inn i dokumentene før bud inngis.
Boligkjøperforsikring
Innen kontraktsmøtet må kjøper ta stilling til om det ønskes å bestille Boligkjøperpakken gjennom Gjensidige. I denne gunstige pakken er boligen ferdig forsikret og inkluderer rettshjelpsforsikring, også kalt Boligkjøperforsikring. Rettshjelpsforsikring gir trygghet og tilgang på profesjonell juridisk hjelp dersom det oppdages uventede feil eller mangler det første året etter overtagelse. Forsikringsselskapet behandler i så fall ethvert mangelskrav kjøper måtte ha overfor selger.
Boligkjøperpakken inkluderer bygningsforsikring for hus og hytte, innboforsikring, flytteforsikring og dobbel rentedekning - i situasjoner hvor kjøper ikke får solgt nåværende primærbolig.
Kjøper mottar ingen særskilt faktura for Boligkjøperpakken da kostnaden det første året legges til kjøpesummen for boligen. Det gjøres oppmerksom på Krogsveen mottar et honorar for denne formidlingen.
Produktark for Boligkjøperpakken ligger vedlagt i salgsoppgaven.
Dersom ikke boligkjøperpakke ønskes kan kun rettshjelpsforsikring, også kalt boligkjøperforsikring, tegnes særskilt via megler. Rettshjelpsforsikringen varer i 5 år fra overtagelse og leveres gjennom Gjensidige. Ta kontakt med megler for ytterligere informasjon.
Selskap og privatpersoner som driver med kjøp/salg/utvikling som ledd i egen næringsvirksomhet kan ikke tegne boligkjøperpakke eller rettshjelpsforsikring.
Budgivning
Forbrukerinformasjon om budgivning er vedlagt denne salgsoppgaven og er også på vår hjemmeside Krogsveen.no. Alle bud og budforhøyelser må inngis skriftlig. I tillegg må legitimasjon være fremlagt sammen med signatur fra budgiver.
Vi oppfordrer til å gi bud elektronisk via GI BUD-knappen på eiendommens hjemmeside på Krogsveen.no. Da vil samtlige vilkår bli oppfylt.
Eventuelle forhøyelser eller endringer av budet kan bekreftes pr SMS eller på e-post. Vi oppfordrer alltid til å kontakte megler pr. telefon i tillegg da forsinkelser i SMS og e-post kan forekomme.
For at budene skal kunne bli behandlet og videreformidlet skriftlig til alle involverte parter, må alle bud ha en tilstrekkelig lang akseptfrist, jf. eiendomsmeglingsforskriften § 6-3.
Selger må også skriftlig akseptere budet før aksept kan formidles til budgiver. Akseptfrist bør derfor være på minimum 30 minutter, og budforhøyelser må derfor skje i god tid før fristens utløp.
Bud i forbrukerforhold kan uansett ikke settes med kortere frist enn kl. 12.00 første virkedag etter siste annonserte visning. I tillegg kan ikke budet ha forbehold om at det skal holdes hemmelig ovenfor øvrige interessenter. Megler har iht lov om eiendomsmegling ikke anledning til å videreformidle disse budene, og de vil dermed heller ikke bli journalført.
Etter at eiendommen er solgt vil kjøper og selger få tilsendt budjournal. Øvrige budgivere kan få utlevert kopi av budjournalen i anonymisert form.
Hvitvaskingsreglene
I henhold til lov om hvitvasking og terrorfinansiering har megler plikt til å gjennomføre kontrolltiltak overfor kunder, herunder fullmektiger. Dette innebærer bl.a. å bekrefte kunders og reelle rettighetshaveres identitet på bakgrunn av fremvist gyldig legitimasjon eller på annen godkjent måte, samt å innhente opplysninger om kundeforholdets formål og tilsiktede art.
Dersom slike kundetiltak ikke kan gjennomføres, kan megler ikke etablere kundeforholdet eller utføre transaksjonen.
Hvis kjøper ikke bidrar til gjennomføring av kundekontrollen og dette fører til at transaksjonen blir forsinket eller ikke kan gjennomføres, vil dette ansees som mislighold av avtalen og gi selger rettigheter etter avhendingslova kapittel 5. I tilfeller der selger ikke bidrar til gjennomføring av løpende kundekontroll underveis i oppdraget, er det selger som misligholder sine forpliktelser etter avtalen og gi kjøper rettigheter etter avhendingslovens kapittel 4. Partene er selv ansvarlige for eventuelle kostnader og ansvar dette kan medføre. Eiendomsmegleren eller eiendomsmeglingsforetaket kan ikke holdes ansvarlig for de konsekvenser dette vil kunne få for partene eller andre som har interesser i eiendomshandelen.
Kjøper oppfordres til å innbetale kjøpesummen som ikke kommer fra låneinstitusjon i én samlet innbetaling fra egen konto i norsk bank. Megler har plikt til å melde fra til Økokrim om eiendomshandler som fremstår som mistenkelige. Melding sendes Økokrim uten at partene varsles.
Personopplysningsloven
I henhold til personopplysningsloven gjør vi oppmerksom på at interessenter kan bli registrert for videre oppfølging.
Lovanvendelse
Generelle bestemmelser
Salgsoppgaven er basert på de opplysningene selger har gitt til megler, den bygningssakyndiges tilstandsrapport, samt opplysninger innhentet fra kommunen, Kartverket og andre tilgjengelige kilder. Det er viktig at kjøper setter seg grundig inn i alle salgsdokumentene, herunder salgsoppgave, tilstandsrapport og selgers egenerklæring. Kjøper anses kjent med forhold som er tydelig beskrevet i salgsdokumentene, og slike forhold kan ikke påberopes som mangler. Dette gjelder uavhengig av om kjøper har lest dokumentene. Alle interessenter oppfordres til å undersøke eiendommen nøye, gjerne sammen med fagkyndig før bud inngis. Kjøper som velger å kjøpe usett kan ikke gjøre gjeldende som mangel noe han burde blitt kjent med ved undersøkelsen.
Dersom det er behov for avklaringer, anbefaler vi at interessenter rådfører seg med eiendomsmegler eller egne rådgivere før det legges inn bud.
En bolig som har blitt brukt i en viss tid, har vanligvis blitt utsatt for slitasje og skader kan ha oppstått. Slik bruksslitasje må kjøper regne med, og det kan avdekkes enkelte forhold etter overtakelse som nødvendiggjør utbedringer. Normal slitasje og skader som nødvendiggjør utbedring, er innenfor hva kjøper må forvente og vil ikke utgjøre en mangel.
Kjøper og selgers rettigheter og plikter reguleres av avtalen mellom partene, samt informasjonen som har vært tilgjengelig for kjøperen i forbindelse med handelen. Avtalen utfylles av avhendingsloven, og det gjelder ulike avtalevilkår avhengig av om kjøper er forbrukerkjøper eller ikke. Dette er nærmere beskrevet nedenfor.
På grunn av ulike avtalevilkår kan selger vurdere bud fra en som ikke er forbruker, ulikt fra en forbrukers bud. Dersom kjøper ikke er forbruker, er selger sitt mulige mangelsansvar begrenset fordi eiendommen selges "som den er". Selger kan ikke ta «som den er»- forbehold overfor en forbrukerkjøper. Selv et lavere bud fra en som ikke er forbruker kan foretrekkes fordi begrensningen i mulig mangelsansvar kan ha egenverdi for selger. Selger står fritt til å forkaste eller akseptere ethvert bud, og er for eksempel ikke forpliktet til å akseptere høyeste bud.
Budgiver skal i budskjema avgi egenerklæring om budgiver er forbruker eller næringsdrivende/ person som hovedsakelig handler som ledd i næringsvirksomhet. Budgivere får informasjon dersom andre bud er inngitt av en som ikke er forbruker.
Forbrukerkjøp - definisjon
Med forbrukerkjøp menes kjøp av eiendom når kjøperen er en fysisk person som ikke hovedsakelig handler som ledd i næringsvirksomhet.
Forbruker – avtalevilkår
Eiendommen har en mangel dersom den ikke er i samsvar med kravene som følger av avtalen, eller det foreligger brudd på bestemmelsene i avhendingsloven §§ 3-2 til 3-8. Hvis eiendommen ikke er i samsvar med det kjøperen må kunne forvente ut ifra alder, type og synlig tilstand, kan det være grunnlag for mangelskrav. Det samme gjelder hvis det er holdt tilbake eller gitt uriktige opplysninger om eiendommen. Dette gjelder likevel bare dersom man kan gå ut ifra at det virket inn på avtalen at opplysningen ikke ble gitt eller at mangelskravet ikke blir rettet i tide på en tydelig måte.
Boligen kan ha en mangel etter avhendingsloven § 3-3 andre ledd, dersom det er avvik mellom opplyst og faktisk innvendig areal, forutsatt at avviket er på 2% eller mer og minimum 1 kvm.
Ved beregning av et eventuelt prisavslag eller erstatning må kjøper selv dekke tap/kostnader opptil et beløp på kr 10 000 (egenandel).
Ikke-forbruker (næringsdrivende) – definisjon
Hvis kjøper er en juridisk person, eller en fysisk person som hovedsakelig handler som ledd i næringsvirksomhet, vil kjøpet ikke anses som et forbrukerkjøp.
Ikke-forbruker – avtalevilkår
Eiendommen har en mangel dersom den ikke er i samsvar med kravene som følger av avtalen.
Eiendommen selges «som den er», og selgers ansvar utover det konkret avtalte er da begrenset etter avhendingsloven § 3-9, første ledd andre setning.
Avhendingsloven § 3-3 andre ledd fravikes, og hvorvidt boligens arealsvikt utgjør en mangel vurderes etter avhendingsloven § 3-8.
Informasjon om kjøpers undersøkelsesplikt, herunder oppfordringen om å undersøke eiendommen nøye, gjelder også for kjøpere som ikke anses som forbrukere.
Det forutsettes at hjemmel overføres til kjøper. Hvis kjøper ikke ønsker hjemmelsoverføring av eiendommen, må det tas forbehold om dette i budet.
Meglers vederlag
Meglers vederlag betales av selger og er avtalt til:
Fastpris: 50 000,-
Vederlag:
Kontroll av hjemmel og heftelser kr 2 900,00
Markedsføringspakke Ekstra kr 28 500,00
Oppgjør kr 7 500,00
Tilrettelegging kr 17 000,00
Visninger pr stk / Overtagelse kr 4 000,00
Utlegg:
Innhenting av offentlig opplysninger kr 2 935,00
Innhenting av offentlig opplysninger (fornyelse av info) kr 915,99
Tinglysing sikring kr 500,00
Andre utgifter:
Foto 4 500,00
Tilstandsrapport Anticimex kr 16 950,00
Opplysninger om oppdraget
Oppdragsnummer 59-0138/24
Eiendomsmegler Krogsveen AS, avd. Skedsmokorset
Furuholtet 1, 2020, SKEDSMOKORSET
950 007 613
Oppdragets KR-kode KR59.24138
Dato
Sist oppdatert: 13. januar 2026 kl. 15:07
Dokumenter
Dokumenter
PDF – 945 KB
PDF – 312 KB
PDF – 29 KB
PDF – 127 KB
PDF – 392 KB
Område
Legg til steder som er viktige for deg
Visning
For å delta på visning, ber vi om at du melder deg på. Da sikrer vi at du får nødvendig informasjon og at det er satt av tilstrekkelig med tid. Kontakt megler dersom annet tidspunkt ønskes. Husk å lese salgsoppgaven før visningen, så du stiller forberedt. NB. Visning utgår dersom det ikke er noen påmeldte.
Ønsker du kun å bli holdt orientert, kan du fra eiendommens hjemmeside få varsel om solgtpris, eller kontakte megler.
Lurer du på noe?
Unngå doble boligrenter
Vi tilbyr gunstig forsikring.
Vurderer du utleie?
Få et tilbud fra Utleie KrogsveenHva koster lånet?
Sjekk estimert lånekostnadVil du varsles om lignende boliger?
Ved å lagre ditt boligsøk hos oss får du beskjed når vi har en bolig som ligner denne, før den legges ut på markedet!




