Valsøyveien 281
1 490 000 kr
93 m²
5 soverom
Solgt

Valsøya
Fritidseiendom ytterst på Valsøya med ca. 5 mål tomt og enestående beliggenhet.
Prisantydning
1 490 000 krOmkostninger
58 240 krTotalpris
1 548 240 kr
Pris
Bruksareal
93 m²BRA-I (internt bruksareal)
93 m²
Areal
Etasje
2Byggeår
1890Soverom
5 soveromTomteareal
5 738 m² (eiet)Type
Fritidseiendom ved sjøenEierform
EietÅrlig velavgift
2 769 krEnergimerke
Oransje G
Nøkkelinfo
Vurderer du utleie?
Få et tilbud fra Utleie KrogsveenHva koster lånet?
Sjekk estimert lånekostnadBeskrivelse
Kort om eiendommen
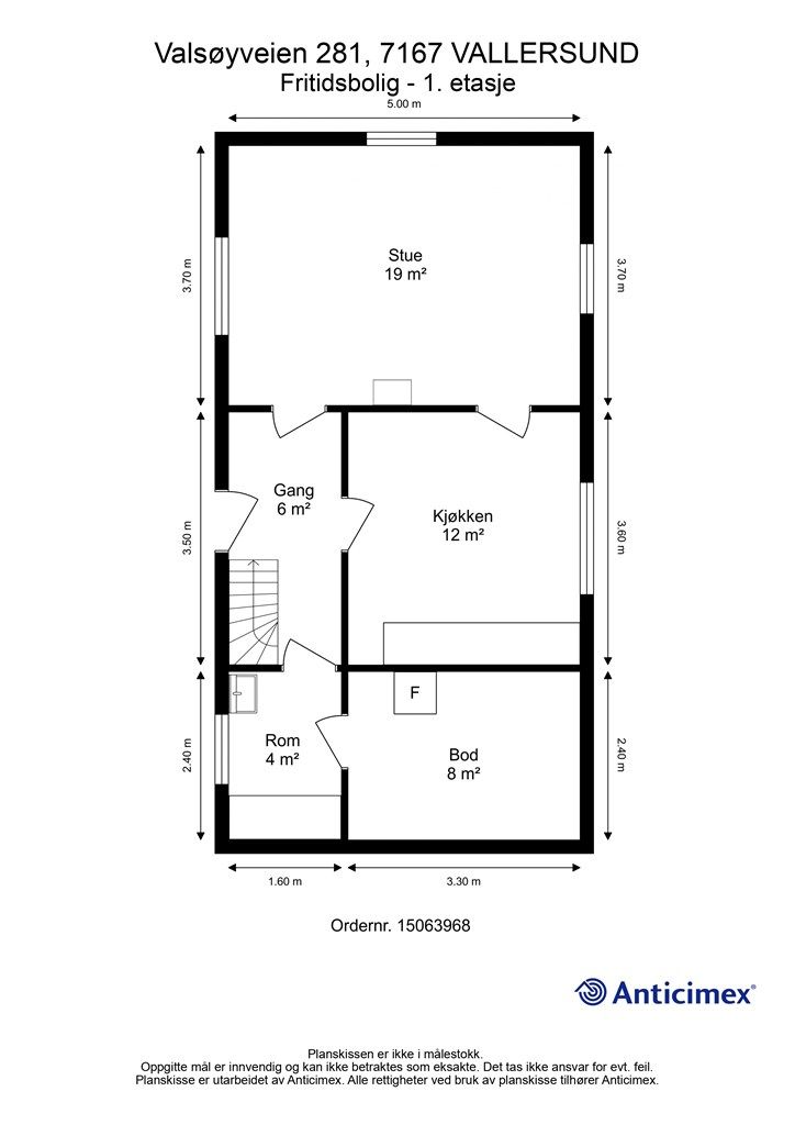
Eiendommen ligger fullstendig uforstyrret til, helt ytterst på Valsøya i Ørland kommune. Den utgjør eneste bebyggelse på ytterpunktet av øya, og hører virkelig med til sjeldenhetene på markedet. Her bor og lever man tett på naturen med selve storhavet i horisonten, og det er lite som fanger oppmerksomheten annet enn havet, naturen og været. Opprinnelig er fritidsboligen et nedlagt småbruk, men har ikke fungert som dette siden midten av 1960-tallet. Hovedhuset er en tømmerkasse fra slutten av 1800-tallet, og foruten nye vinduer og noe innvendig maling er det ingenting som er utført på flere tiår.
Arealet fordeler seg på én etasje + loft, med fem gode soverom på loftet. Selv om minimalt med vedlikehold er utført de siste år, er det stedvis godt material i det som eksisterer.

Område
Legg til steder som er viktige for deg
På flyttefot? Tenk kjøp og salg samtidig.
Få din egen rådgiver gjennom hele kjøps- og salgsprosessen. Det starter med en verdivurdering.
Vurderer du utleie?
Få et tilbud fra Utleie KrogsveenHva koster lånet?
Sjekk estimert lånekostnadVil du varsles om lignende boliger?
Ved å lagre ditt boligsøk hos oss får du beskjed når vi har en bolig som ligner denne, før den legges ut på markedet!

