Hageveien 6C
6 260 000 kr
128 m²
3 soverom
Solgt

Presenteres av
Marius Stormfelt Attraktiv rekke over 3 plan. 2 nyere bad. Kjøkken 2023. Ca.900m til togstasjon! Rolig boområde. Gode parkeringsforhold.
Prisantydning
6 260 000 krAndel fellesgjeld
58 212 krOmkostninger
178 940 krTotalpris
6 497 152 kr
Pris
Bruksareal
141 m²BRA-I (internt bruksareal)
128 m²BRA-E (eksternt bruksareal)
13 m²TBA (terrasse-balkongareal)
31 m²
Areal
Etasje
3Byggeår
1969Soverom
3 soveromBad
2 badType
RekkehusEierform
EierseksjonFellesutgifter
3 657 krEnergimerke
Oransje E
Nøkkelinfo
Unngå doble boligrenter
Vi tilbyr gunstig forsikring.
Vurderer du utleie?
Få et tilbud fra Utleie KrogsveenHva koster lånet?
Sjekk estimert lånekostnadBeskrivelse
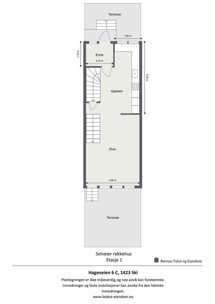
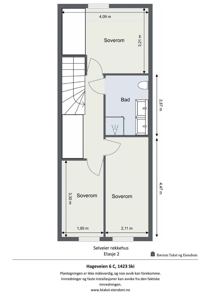
Kort om eiendommen
Velkommen til Hageveien 6C presentert av Eiendomsmegler Marius Stormfelt v/Krogsveen!
Boligen ligger sentralt og barnevennlig, med både barnehage og skole like ved, og kun 900m til Ski stasjon. Boligen har to solrike terrasser på hver sin side av boligen – én med tilknyttet hage. Det følger med garasjeplass i rekke med elbillader.
Hovedetasjen har entré, et moderne kjøkken fra 2023 og en lys stue. I andre etasje finner du tre soverom, godt med garderobeplass og et bad fra 2012. Kjelleren inneholder kjellerstue og et nytt bad fra 2023.
-Flytt rett inn, pen standard
-Attraktiv rekkehus over 3 plan
-Familievennlig planløsning
-Gar. m el-lader (ikke rettsvern)
-Barnevennlig
-Nærhet til barnehage og skoler
-900m til Ski stasjon
-3 min til Hebekk skole
-1 min gange til dagligvarebutikk
Område
Legg til steder som er viktige for deg
Megler

Marius Stormfelt
Eiendomsmegler/Fagansvarlig
På flyttefot? Tenk kjøp og salg samtidig.
Få din egen rådgiver gjennom hele kjøps- og salgsprosessen. Det starter med en verdivurdering.
Unngå doble boligrenter
Vi tilbyr gunstig forsikring.
Vurderer du utleie?
Få et tilbud fra Utleie KrogsveenHva koster lånet?
Sjekk estimert lånekostnadVil du varsles om lignende boliger?
Ved å lagre ditt boligsøk hos oss får du beskjed når vi har en bolig som ligner denne, før den legges ut på markedet!
På flyttefot? Slik gjør vi det enklere for deg
Skreddersydd flyttepakke
Vi fikser håndverkere, vask, pakking, lagring og transport, og legger ut for utgiftene underveis.
Hjelp med både kjøp og salg
Hos oss har du din egen rådgiver gjennom hele kjøps- og salgsprosessen.
Hjelp til finansiering
Vårt samarbeid med BN Bank sikrer deg rask og løsningsorientert hjelp, til konkurransedyktige betingelser.
