Ulsrudveien 1B
4 600 000 kr
64 m²
2 soverom
Solgt

Ulsrud / Østensjø
Pen 3-roms i nyere bygg | Trappefri adkomst | Garasjeplass | Skjermet og solrikt uteområde med platting og gressflekk
Prisantydning
4 600 000 krAndel fellesgjeld
49 485 krOmkostninger
127 260 krTotalpris
4 776 745 kr
Pris
Bruksareal
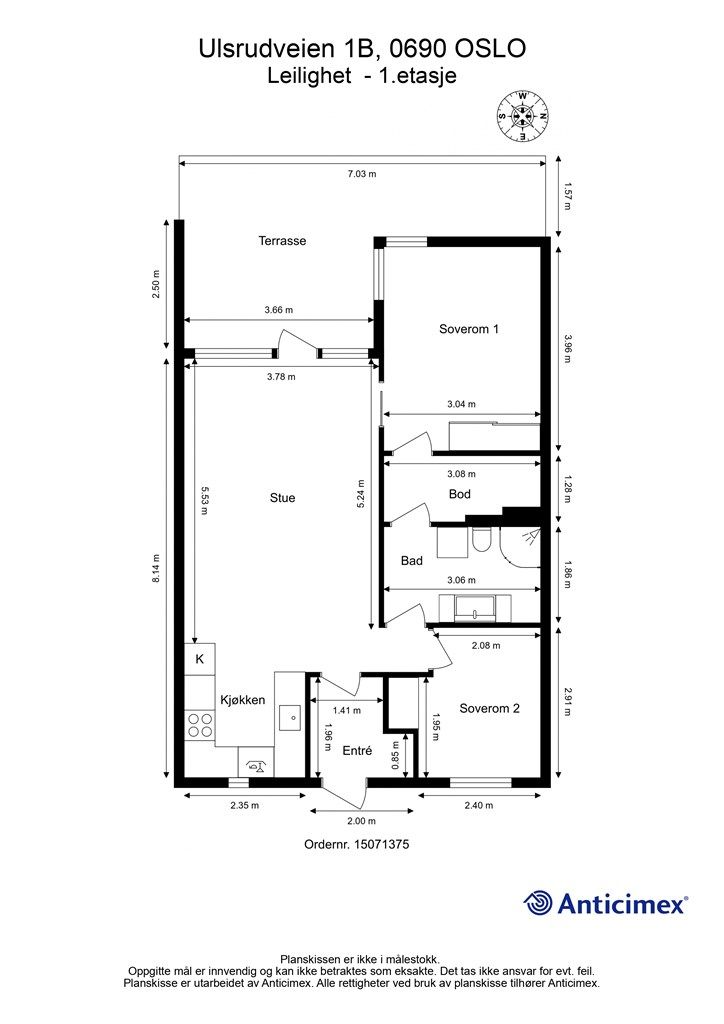
69 m²BRA-I (internt bruksareal)
64 m²BRA-E (eksternt bruksareal)
5 m²TBA (terrasse-balkongareal)
20 m²
Areal
Etasje
1Byggeår
2005Soverom
2 soveromBad
1 badType
EierleilighetEierform
EierseksjonFasiliteter
Garasje/P-plass, Heis og Balkong/TerrasseFellesutgifter
4 190 krEnergimerke
Rød D
Nøkkelinfo
Unngå doble boligrenter
Vi tilbyr gunstig forsikring.
Vurderer du utleie?
Få et tilbud fra Utleie KrogsveenHva koster lånet?
Sjekk estimert lånekostnadDette liker selger best ved boligen
Ulsrudveien 1B, seksjon 12, har en fin uteplass med gode solforhold og utsikt mot åker og eng. Det er komfortabelt med parkering i kjeller og tilgang til heis. Det er ett fredelig og stille område og fine turmuligheter rundt Østensjøvannet, Skullerud og Østmarka.
Beskrivelse
Kort om eiendommen
Velkommen til Ulsrudveien 1B – en lys og tiltalende selveierleilighet med trappefri adkomst, ideell for deg som ønsker en praktisk og lettstelt bolig i rolige omgivelser. Her bor du i første etasje, med vestvendt terrasse og tilgang til gressplen rett utenfor – perfekt for å nyte solen.
Høydepunkter:
– Trappefri og enkel adkomst
– Vestvendt terrasse med gressflekk
– Garasjeplass med heisadkomst
– Romslig bad med gulvvarme og opplegg for vaskemaskin
– Bygg fra 2005
– Nyere kjøkken (2021) med integrerte hvitevarer
– Kort vei til Østensjøvannet og Østmarka med flotte turmuligheter
– Rolig sameie med velholdte fellesområder
– Gjesteparkering
En fin mulighet for deg som vil bo komfortabelt og naturnært – med alt på ett plan.
Område
Legg til steder som er viktige for deg
På flyttefot? Tenk kjøp og salg samtidig.
Få din egen rådgiver gjennom hele kjøps- og salgsprosessen. Det starter med en verdivurdering.
Unngå doble boligrenter
Vi tilbyr gunstig forsikring.
Vurderer du utleie?
Få et tilbud fra Utleie KrogsveenHva koster lånet?
Sjekk estimert lånekostnadVil du varsles om lignende boliger?
Ved å lagre ditt boligsøk hos oss får du beskjed når vi har en bolig som ligner denne, før den legges ut på markedet!

