Høgøyna 1
4 900 000 kr
76 m²
3 soverom
Solgt

Arefjord
Hytte til jul? Flott og modernisert familiehytte med egen sjølinje og nytt kaianlegg. Nøst. Båtplass på fastlandet
Prisantydning
4 900 000 krOmkostninger
143 490 krTotalpris
5 043 490 kr
Pris
Bruksareal
121 m²BRA-I (internt bruksareal)
76 m²BRA-E (eksternt bruksareal)
45 m²TBA (terrasse-balkongareal)
45 m²
Areal
Etasje
1Byggeår
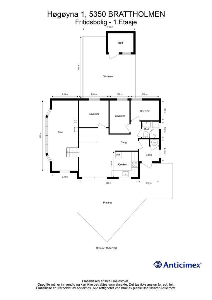
1950Soverom
3 soveromBad
1 badTomteareal
987 m² (eiet)Type
Fritidseiendom ved sjøenEierform
EietEnergimerke
Oransje G
Nøkkelinfo
Vurderer du utleie?
Få et tilbud fra Utleie KrogsveenHva koster lånet?
Sjekk estimert lånekostnadBeskrivelse
Kort om eiendommen
Eiendommen "Sjølyst" på Høgøyna er et sommerparadis for hyttefolk like øst for Litlesotra og vest for Langholmen i Øygarden kommune. Tilkomst fra sjø. Det medfølger båtplass i marina ved Arefjordvegen 215, som er ca. 600 meter unna eiendommen. Åpen, selvlensende båt med en 25 HK Tohatsu medfølger, og tar deg greit frem og tilbake. Eiendommen har egen sjølinje, ca. 57 meter, på vestsiden av øyen. Det er god sjødybde ved kai og flytebrygge, med plass til flere fritidsbåter. Her kan en prøve fiskelykken fra egen eiendom, eller ta båten ut på fisketur. Liker du bading og sjøsport av ulike slag, er det stort sett bare fantasien som setter begrensninger for hva en kan gjøre av aktiviteter.
- Nytt off. vann- og kloakk
- Bad/wc + toalettrom
- Peisovn
- Flere solrike uteplasser
- Innbo medfølger
Område
Legg til steder som er viktige for deg
På flyttefot? Tenk kjøp og salg samtidig.
Få din egen rådgiver gjennom hele kjøps- og salgsprosessen. Det starter med en verdivurdering.
Vurderer du utleie?
Få et tilbud fra Utleie KrogsveenHva koster lånet?
Sjekk estimert lånekostnadVil du varsles om lignende boliger?
Ved å lagre ditt boligsøk hos oss får du beskjed når vi har en bolig som ligner denne, før den legges ut på markedet!

