Brulia 20
3 750 000 kr
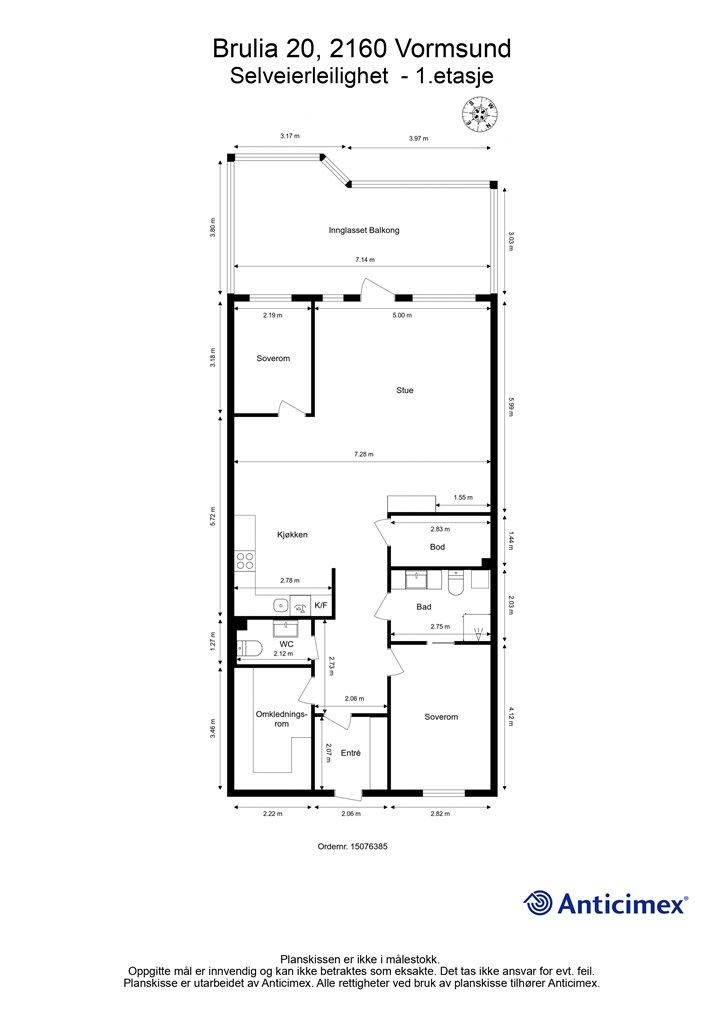
102 m²
2 soverom
Solgt
Lekker og romslig 3R selveierleilighet med flott utsikt over Vorma | Sydvestvendt balkong på 25 kvm | Garasje | Sentralt
Prisantydning
3 750 000 krOmkostninger
104 790 krTotalpris
3 854 790 kr
Pris
Bruksareal
102 m²BRA-I (internt bruksareal)
102 m²TBA (terrasse-balkongareal)
25 m²
Areal
Etasje
1Byggeår
2012Soverom
2 soveromType
EierleilighetEierform
EierseksjonFasiliteter
Garasje/P-plass, Heis og Balkong/TerrasseFellesutgifter
4 582 krEnergimerke
Rød C
Nøkkelinfo
Unngå doble boligrenter
Vi tilbyr gunstig forsikring.
Vurderer du utleie?
Få et tilbud fra Utleie KrogsveenHva koster lånet?
Sjekk estimert lånekostnadBeskrivelse
Kort om eiendommen
Velkommen til Brulia 20!
En lys og delikat 4R leilighet fra 2012 med trappefri adkomst. Leiligheten ligger i 1. etasje og har en innglasset balkong på ca. 25 kvm med nydelig utsikt mot Vorma – perfekt for rolige stunder i solen. Her bor du sentralt og fredelig, med kort vei til buss, sykkelparkering og flotte turområder.
Boligen har en romslig entré med skyvedørsgarderobe, lys og luftig stue med gasspeis og åpen løsning mot et stilrent kjøkken med integrerte hvitevarer, to soverom (hovedsoverommet har direkte tilgang til bad), romslig bad, et separat wc-rom og et stort garderoberom. Innvendig bod/teknisk rom gir ekstra lagringsplass.
I kjeller disponeres både bod og parkeringsplass.
Husk å meld deg på til visning - Vi sees!
Område
Legg til steder som er viktige for deg
Meglere

Kine Johansen Ruud
Eiendomsmegler
På flyttefot? Tenk kjøp og salg samtidig.
Få din egen rådgiver gjennom hele kjøps- og salgsprosessen. Det starter med en verdivurdering.
Unngå doble boligrenter
Vi tilbyr gunstig forsikring.
Vurderer du utleie?
Få et tilbud fra Utleie KrogsveenHva koster lånet?
Sjekk estimert lånekostnadVil du varsles om lignende boliger?
Ved å lagre ditt boligsøk hos oss får du beskjed når vi har en bolig som ligner denne, før den legges ut på markedet!



