Bjorøyvegen 130
4 800 000 kr
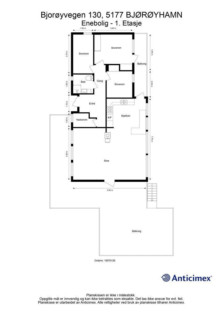
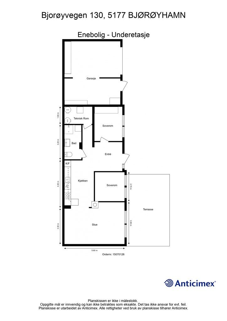
154 m²
4 soverom
Solgt

Presenteres av
Thomas GamnesBjorøy
Flott, solrik familiebolig med en fantastisk sjøutsikt og flott opparbeidet tomt med garasje
Prisantydning
4 800 000 krOmkostninger
140 990 krTotalpris
4 940 990 kr
Pris
Bruksareal
186 m²BRA-I (internt bruksareal)
154 m²BRA-E (eksternt bruksareal)
32 m²TBA (terrasse-balkongareal)
65 m²
Areal
Byggeår
1971Soverom
4 soveromBad
1 badTomteareal
979 m² (eiet)Type
Enebolig - FrittliggendeEierform
EietFasiliteter
Balkong/TerrasseEnergimerke
Oransje F
Nøkkelinfo
Unngå doble boligrenter
Vi tilbyr gunstig forsikring.
Vurderer du utleie?
Få et tilbud fra Utleie KrogsveenHva koster lånet?
Sjekk estimert lånekostnadDette liker selger best ved boligen
"God utsikt over fjorden, med gode solforhold. Boligen er sentralt plassert med under 200 meter til busstopp. God størrelse på tomt. Alt elektrisk i huset er nytt og det er oppgradert til 3-fase strøminntak. Alle rør er byttet eller rør-i-rør. Kjelleretasje er totalrenovert i 2022, med fokus på inneklima og er utført i henhold til TEK i forhold til lys, rømningsveier og alle andre parametere. Kjelleretasje har balansert ventilasjon og varmekabler i alle rom. Elbilladere for begge etasjene."
Beskrivelse
Kort om eiendommen
Eiendommen har en flott beliggenhet i naturskjønne omgivelser på Bjorøy, med kun 11 min gange til barnehage og 16 min til skole. Boligen ligger på en utsiktstomt med sjøen som nærmeste nabo samt gode solforhold. Området er et eldorado for de som liker båtliv, fiske, kajakk, dykking og andre maritime aktiviteter. Kun ca. 20 min kjøring fra Bergen sentrum på køfrie dager
Kort fortalt:
Hovedetasjen og hele underetasjen er pusset opp i 2022.
Kjøkken og stue i hovedetasjen er oppgradert i 2019
Dokumentasjon på arbeid kan fås av megler dersom ønskelig
Utleiedel (ikke søkt om godkjenning)
Varme i alle gulv i underetasjen
2 stykk elbilladere
Busstopp ligger i umiddelbar nærhet av boligen
Område
Legg til steder som er viktige for deg
Megler

Thomas Gamnes
Eiendomsmegler
På flyttefot? Tenk kjøp og salg samtidig.
Få din egen rådgiver gjennom hele kjøps- og salgsprosessen. Det starter med en verdivurdering.
Unngå doble boligrenter
Vi tilbyr gunstig forsikring.
Vurderer du utleie?
Få et tilbud fra Utleie KrogsveenHva koster lånet?
Sjekk estimert lånekostnadVil du varsles om lignende boliger?
Ved å lagre ditt boligsøk hos oss får du beskjed når vi har en bolig som ligner denne, før den legges ut på markedet!
På flyttefot? Slik gjør vi det enklere for deg
Skreddersydd flyttepakke
Vi fikser håndverkere, vask, pakking, lagring og transport, og legger ut for utgiftene underveis.
Hjelp med både kjøp og salg
Hos oss har du din egen rådgiver gjennom hele kjøps- og salgsprosessen.
Hjelp til finansiering
Vårt samarbeid med BN Bank sikrer deg rask og løsningsorientert hjelp, til konkurransedyktige betingelser.
