Bjergsted Terrasse 10
7 200 000 kr
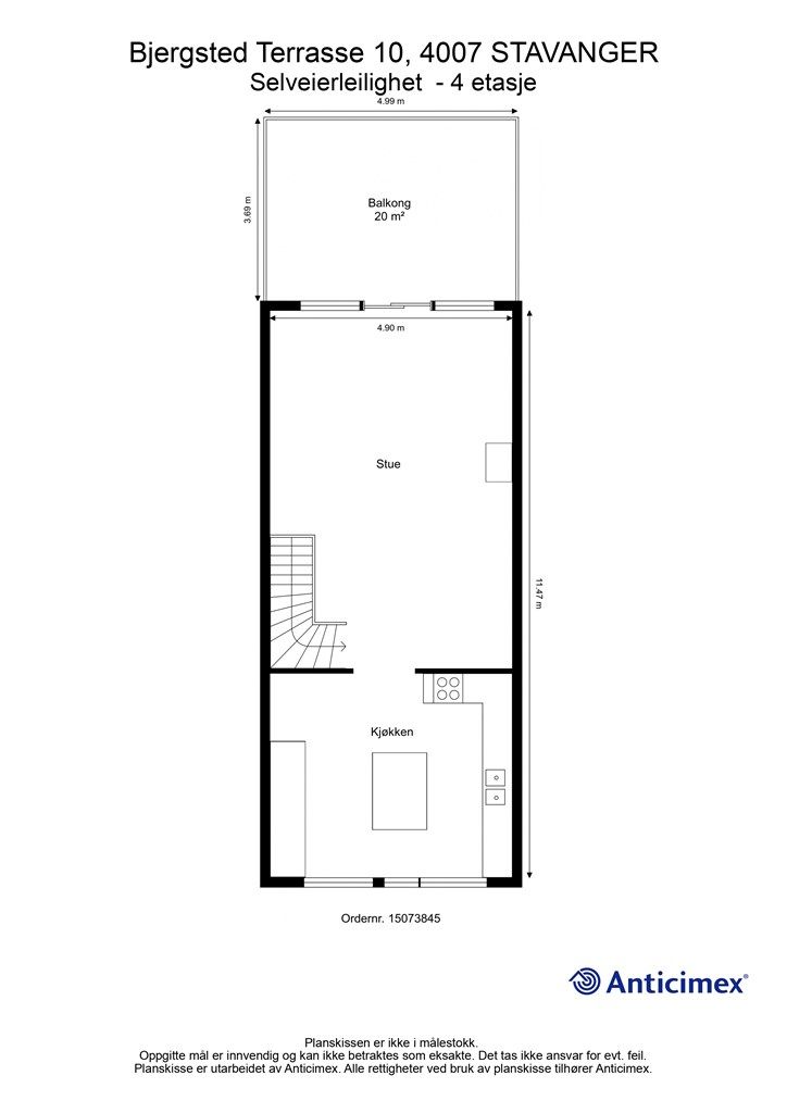
110 m²
2 soverom
Solgt

Presenteres av
Kine Stokholm WaageSTAVANGER SENTRUM
Stor og flott 3-roms toppleil. m/nydelig utsikt mot vågen og Bybroen. 2 balkonger mot øst og vest. 2 bad, garasje, heis
Prisantydning
7 200 000 krAndel fellesgjeld
85 011 krOmkostninger
193 160 krTotalpris
7 478 171 kr
Pris
Bruksareal
120 m²BRA-I (internt bruksareal)
110 m²BRA-E (eksternt bruksareal)
10 m²TBA (terrasse-balkongareal)
24 m²
Areal
Etasje
3Byggeår
1990Soverom
2 soveromBad
2 badType
EierleilighetEierform
EierseksjonFasiliteter
Garasje/P-plass, Heis og Balkong/TerrasseFellesutgifter
5 290 krEnergimerke
Rød D
Nøkkelinfo
Unngå doble boligrenter
Vi tilbyr gunstig forsikring.
Vurderer du utleie?
Få et tilbud fra Utleie KrogsveenHva koster lånet?
Sjekk estimert lånekostnadBeskrivelse
Kort om eiendommen
Område
Legg til steder som er viktige for deg
På flyttefot? Tenk kjøp og salg samtidig.
Få din egen rådgiver gjennom hele kjøps- og salgsprosessen. Det starter med en verdivurdering.
Unngå doble boligrenter
Vi tilbyr gunstig forsikring.
Vurderer du utleie?
Få et tilbud fra Utleie KrogsveenHva koster lånet?
Sjekk estimert lånekostnadVil du varsles om lignende boliger?
Ved å lagre ditt boligsøk hos oss får du beskjed når vi har en bolig som ligner denne, før den legges ut på markedet!
På flyttefot? Slik gjør vi det enklere for deg
Skreddersydd flyttepakke
Vi fikser håndverkere, vask, pakking, lagring og transport, og legger ut for utgiftene underveis.
Hjelp med både kjøp og salg
Hos oss har du din egen rådgiver gjennom hele kjøps- og salgsprosessen.
Hjelp til finansiering
Vårt samarbeid med BN Bank sikrer deg rask og løsningsorientert hjelp, til konkurransedyktige betingelser.

