Hageveien 20
2 690 000 kr
120 m²
2 soverom
Solgt

Gjeving
BUD MOTTATT! Oppgradert enebolig med alt på en flate, kort vei til nærbutikk og sjøen - Ingen boplikt
Prisantydning
2 690 000 krOmkostninger
88 240 krTotalpris
2 778 240 kr
Pris
Bruksareal
162 m²BRA-I (internt bruksareal)
120 m²BRA-E (eksternt bruksareal)
42 m²TBA (terrasse-balkongareal)
100 m²
Areal
Etasje
1Byggeår
1983Soverom
2 soveromBad
1 badTomteareal
1 254 m² (eiet)Type
Enebolig - FrittliggendeEierform
EietFasiliteter
Garasje/P-plass og Balkong/TerrasseEnergimerke
Gul F
Nøkkelinfo
Unngå doble boligrenter
Vi tilbyr gunstig forsikring.
Vurderer du utleie?
Få et tilbud fra Utleie KrogsveenHva koster lånet?
Sjekk estimert lånekostnadBeskrivelse
Kort om eiendommen
Flott enebolig på en rolig vei, sentralt på Gjeving. Boligen ligger ca. 900 meter fra nærbutikken på Gjeving. Gjeving har et godt tilbud enten man vil bade, ut i båt, spise ute eller gå tur i skog og mark. Eiendommen har gjennomgått flere oppgraderinger i nyere tid, det er blant annet nytt kjøkken, nye overflater i flere rom, opparbeidet uteareal, varmepumpe, ny peisovn og mye mer. Garasjen er etterisolert og har uinnredet loft og to elporter. Taket og badet ble skiftet av forrige eier rundt 2010. Det er en velholdt bolig i et rolig og fint nabolag. Nabolaget byr på høy aktivitet i sommersesong med feriegjester og noe roligere tilværelse i vinterhalvåret.
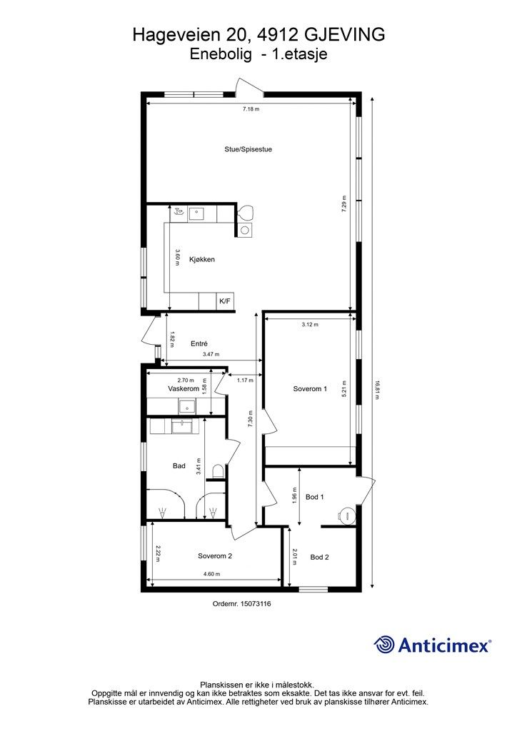
Boligen inneholder: Entré, kjøkken, stue/spisestue, vaskerom, bad, to soverom og to boder.
Område
Legg til steder som er viktige for deg
På flyttefot? Tenk kjøp og salg samtidig.
Få din egen rådgiver gjennom hele kjøps- og salgsprosessen. Det starter med en verdivurdering.
Unngå doble boligrenter
Vi tilbyr gunstig forsikring.
Vurderer du utleie?
Få et tilbud fra Utleie KrogsveenHva koster lånet?
Sjekk estimert lånekostnadVil du varsles om lignende boliger?
Ved å lagre ditt boligsøk hos oss får du beskjed når vi har en bolig som ligner denne, før den legges ut på markedet!

