Skytterholmen 5
12 500 000 kr
240 m²
5 soverom
Solgt

Vegsund
Lekker enebolig på nydelig utsiktstomt | 5 soverom | 2 bad | Store solrike uteplasser og terrasser | Dobbel garasje
Prisantydning
12 500 000 krOmkostninger
333 490 krTotalpris
12 833 490 kr
Pris
Bruksareal
306 m²BRA-I (internt bruksareal)
240 m²BRA-E (eksternt bruksareal)
66 m²TBA (terrasse-balkongareal)
253 m²
Areal
Etasje
2Byggeår
2011Soverom
5 soveromBad
2 badTomteareal
1 249 m² (eiet)Type
Enebolig - FrittliggendeEierform
EietFasiliteter
Garasje/P-plass og Balkong/TerrasseEnergimerke
Oransje C
Nøkkelinfo
Unngå doble boligrenter
Vi tilbyr gunstig forsikring.
Vurderer du utleie?
Få et tilbud fra Utleie KrogsveenHva koster lånet?
Sjekk estimert lånekostnadBeskrivelse
Kort om eiendommen
Gjennomført innholdsrik enebolig over 2 etasjer med nydelig utsikt
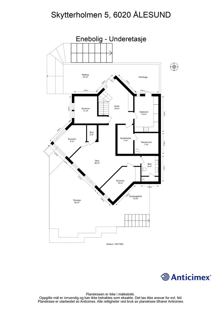
* 5 soverom av god størrelse
* 2 flotte flislagte bad
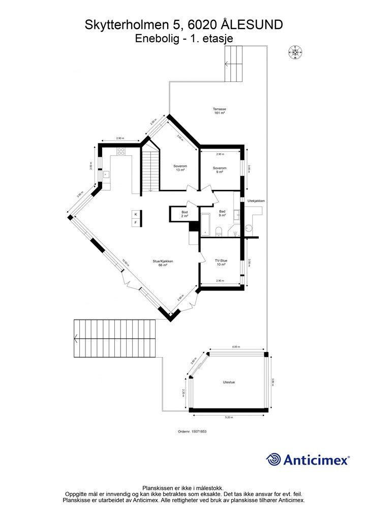
* Dobbel garasje 46 kvm
* Platting og terrasse i underetasjen på 92 kvm
* Terrasser på 161 kvm med utekjøkken og hagestue på 20 kvm
* Kort vei til barnehage og barneskole.
* Rolig gate uten gjennomgangstrafikk.
* Flott turterreng i nærområdet.
Velkommen til påmeldingsvisning! Husk å meld deg på!
Område
Legg til steder som er viktige for deg
På flyttefot? Tenk kjøp og salg samtidig.
Få din egen rådgiver gjennom hele kjøps- og salgsprosessen. Det starter med en verdivurdering.
Unngå doble boligrenter
Vi tilbyr gunstig forsikring.
Vurderer du utleie?
Få et tilbud fra Utleie KrogsveenHva koster lånet?
Sjekk estimert lånekostnadVil du varsles om lignende boliger?
Ved å lagre ditt boligsøk hos oss får du beskjed når vi har en bolig som ligner denne, før den legges ut på markedet!

