Odelsvegen 26
3 149 000 kr
48 m²
1 soverom
Solgt

Jessheim
Pen og romslig 2-roms eierleilighet med sentral beliggenhet på Jessheim | Garasje | Nærhet til tog/buss og turområder
Prisantydning
3 149 000 krAndel fellesgjeld
12 433 krOmkostninger
90 060 krTotalpris
3 251 493 kr
Pris
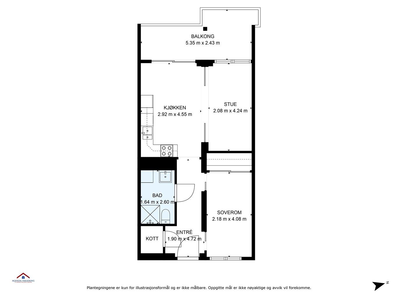
Bruksareal
55 m²BRA-I (internt bruksareal)
48 m²BRA-E (eksternt bruksareal)
7 m²TBA (terrasse-balkongareal)
13 m²
Areal
Etasje
2Byggeår
2016Soverom
1 soveromBad
1 badType
EierleilighetEierform
EierseksjonFasiliteter
Garasje/P-plass, Heis og Balkong/TerrasseFellesutgifter
3 408 krEnergimerke
Lysegrønn B
Nøkkelinfo
Unngå doble boligrenter
Vi tilbyr gunstig forsikring.
Vurderer du utleie?
Få et tilbud fra Utleie KrogsveenHva koster lånet?
Sjekk estimert lånekostnadBeskrivelse
Kort om eiendommen
Krogsveen presenterer Odelsvegen 26 - En innbydende leilighet med sentral beliggenhet. Her har du gangavstand til alle bymessige fasiliteter, og kan nyte late dager på solrik balkong.
Leiligheten holder en gjennomgående god standard, og har et pent flislagt bad, stilrent kjøkken med integrerte og frittstående hvitevarer. Oppvarming og varmtvann via fjernvarme og er inkludert i felleskostnadene med A-konto. Fra stua er det utgang til balkong på ca. 12 kvm. Leiligheten disponerer en sportsbod og en garasjeplass klargjort for elbil-lader.
Odelsvegen 26 har en sentral beliggenhet på Jessheim med umiddelbar nærhet til Coop OBS, Kiwi og søndagsåpen Joker. Videre kun 500 meter til Jessheim sentrum.
Velkommen til visning!
Område
Legg til steder som er viktige for deg
På flyttefot? Tenk kjøp og salg samtidig.
Få din egen rådgiver gjennom hele kjøps- og salgsprosessen. Det starter med en verdivurdering.
Unngå doble boligrenter
Vi tilbyr gunstig forsikring.
Vurderer du utleie?
Få et tilbud fra Utleie KrogsveenHva koster lånet?
Sjekk estimert lånekostnadVil du varsles om lignende boliger?
Ved å lagre ditt boligsøk hos oss får du beskjed når vi har en bolig som ligner denne, før den legges ut på markedet!

