Gjerivegen 12A
3 090 000 kr
41 m²
1 soverom
Solgt

Nyere (2021) og tiltalende 2-roms leilighet med balkong og flott utsikt - Parkering i kjeller - Perfekt førstegangskjøp!
Prisantydning
3 090 000 krOmkostninger
88 290 krTotalpris
3 178 290 kr
Pris
Bruksareal
54 m²BRA-I (internt bruksareal)
41 m²BRA-E (eksternt bruksareal)
13 m²
Areal
Etasje
3Byggeår
2021Soverom
1 soveromBad
1 badType
EierleilighetEierform
EierseksjonFasiliteter
Garasje/P-plass, Heis og Balkong/TerrasseFellesutgifter
3 328 krEnergimerke
Grønn B
Nøkkelinfo
Unngå doble boligrenter
Vi tilbyr gunstig forsikring.
Vurderer du utleie?
Få et tilbud fra Utleie KrogsveenHva koster lånet?
Sjekk estimert lånekostnadBeskrivelse
Kort om eiendommen
Velkommen til Gjerivegen 12A!
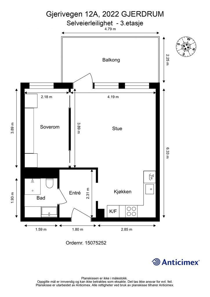
En moderne og tiltalende 2-roms selveierleilighet fra 2021 med god planløsning og gjennomgående høy standard. Leiligheten ligger i 3. etasje og har entré, stue med utgang til skjermet balkong på ca. 11 kvm med flott utsikt, stilrent kjøkken fra Sigdal med integrerte hvitevarer, soverom med garderobeløsning og flislagt bad med gulvvarme. Leiligheten disponerer en parkeringsplass i kjeller, bod i kjeller og felles takterrasse.
Beliggende svært sentralt i Ask, Gjerdrum med kort vei til butikker, Gjerdrum Torg, barnehager, skoler og kulturhus. Gangavstand til buss og flotte turområder. Perfekt for deg som ønsker et moderne hjem med alt innen rekkevidde.
Husk å meld deg på til visning - Vi sees!
Område
Legg til steder som er viktige for deg
På flyttefot? Tenk kjøp og salg samtidig.
Få din egen rådgiver gjennom hele kjøps- og salgsprosessen. Det starter med en verdivurdering.
Unngå doble boligrenter
Vi tilbyr gunstig forsikring.
Vurderer du utleie?
Få et tilbud fra Utleie KrogsveenHva koster lånet?
Sjekk estimert lånekostnadVil du varsles om lignende boliger?
Ved å lagre ditt boligsøk hos oss får du beskjed når vi har en bolig som ligner denne, før den legges ut på markedet!

