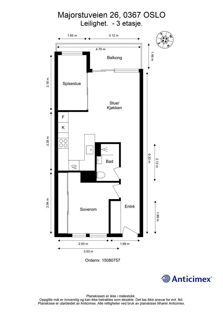
Majorstuveien 26
6 190 000 kr
46 m²
2 soverom
Solgt

Presenteres av
Marte Skui LarsenMajorstua
MAJORSTUEN – Lekker, oppgradert 3-roms med nytt kjøkken (2025). Solrik balkong og heis. Svært attraktiv beliggenhet!
Prisantydning
6 190 000 krAndel fellesgjeld
89 008 krOmkostninger
168 010 krTotalpris
6 447 018 kr
Pris
Bruksareal
48 m²BRA-I (internt bruksareal)
46 m²BRA-E (eksternt bruksareal)
2 m²TBA (terrasse-balkongareal)
5,35 m²
Areal
Etasje
3Byggeår
1976Soverom
2 soveromBad
1 badType
EierleilighetEierform
EierseksjonFasiliteter
Heis og Balkong/TerrasseFellesutgifter
3 705 krEnergimerke
Nøkkelinfo
Unngå doble boligrenter
Vi tilbyr gunstig forsikring.
Vurderer du utleie?
Få et tilbud fra Utleie KrogsveenHva koster lånet?
Sjekk estimert lånekostnadBeskrivelse
Kort om eiendommen
Velkommen til Majorstuveien 26! Dette er en gjennomgående og nylig oppgradert 3-roms selveierleilighet med vestvendt balkong og enkel adkomst via heis.
Leiligheten har en svært sentral beliggenhet på Majorstuen, med umiddelbar nærhet til et bredt utvalg av servicetilbud og kollektivtransport. Her bor du med et levende byliv og grønne omgivelser i Frognerparken rett utenfor døren.
Kort fortalt:
Oppgradert i 2025 med nytt kjøkken, gulv, vinduer og ytterdør/skyvedør til balkong
Alt av elektrisk anlegg er nytt, inkludert smartbelysning
Ekstra rom som kan benyttes som hjemmekontor eller gjesterom
Svalgang med morgensol
Delikat bad med gulvvarme
TV og internett inkludert i felleskostnadene
To kjellerboder, samt tilgang til felles vaskeri og sykkelrom
Område
Legg til steder som er viktige for deg
På flyttefot? Tenk kjøp og salg samtidig.
Få din egen rådgiver gjennom hele kjøps- og salgsprosessen. Det starter med en verdivurdering.
Unngå doble boligrenter
Vi tilbyr gunstig forsikring.
Vurderer du utleie?
Få et tilbud fra Utleie KrogsveenHva koster lånet?
Sjekk estimert lånekostnadVil du varsles om lignende boliger?
Ved å lagre ditt boligsøk hos oss får du beskjed når vi har en bolig som ligner denne, før den legges ut på markedet!
På flyttefot? Slik gjør vi det enklere for deg
Skreddersydd flyttepakke
Vi fikser håndverkere, vask, pakking, lagring og transport, og legger ut for utgiftene underveis.
Hjelp med både kjøp og salg
Hos oss har du din egen rådgiver gjennom hele kjøps- og salgsprosessen.
Hjelp til finansiering
Vårt samarbeid med BN Bank sikrer deg rask og løsningsorientert hjelp, til konkurransedyktige betingelser.


































