Lomviveien 82
4 500 000 kr
138 m²
2 soverom
Solgt

KVERNEVIK
Innholdsrikt enderekkehus m/ 2 sov, 3 stuer, vaskerom, gjestewc. Solrike uteplasser, utsikt. Parkering på egen tomt.
Prisantydning
4 500 000 krOmkostninger
133 490 krTotalpris
4 633 490 kr
Pris
Bruksareal
138 m²BRA-I (internt bruksareal)
138 m²TBA (terrasse-balkongareal)
66 m²
Areal
Byggeår
1967Soverom
2 soveromBad
1 badTomteareal
261 m² (eiet)Type
RekkehusEierform
EietEnergimerke
Oransje F
Nøkkelinfo
Unngå doble boligrenter
Vi tilbyr gunstig forsikring.
Vurderer du utleie?
Få et tilbud fra Utleie KrogsveenHva koster lånet?
Sjekk estimert lånekostnadBeskrivelse
Kort om eiendommen
*Innholdsrikt enderekkehus med innredet kjeller
*2 soverom av god størrelse, opprinnelig var det 3 sov i boligen og det kan man tilbakeføre det til
*Boligen har en fin og barnevennlig beliggenhet i Kvernevik, med kort vei til Stavanger, Sola, Tananger og Randaberg
*Flere lekeplasser på området. Boligen vender mot et flott grøntareal
*Solrike uteplasser, både terrasse, balkong og hage. Fin utsikt og fine solnedganger
*Parkeringsplasser på egen tomt. El-bil lader medfølger
*Varmepumpe ny i april 2023
*Kjøkken ligger i samme etasje som spisestue, men er delvis adskilt. Stort og praktisk med rikelig skapplass og arbeidsflater
*Stue i 2.etg
*Noen har flyttet stue og kjøkken til 2.etg
*3 vedovner
*Kjellerstue/kontor
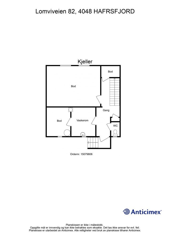
*Vaskerom, wc, stue og boder i kjeller. Inngang til kjeller også fra hage
Område
Legg til steder som er viktige for deg
På flyttefot? Tenk kjøp og salg samtidig.
Få din egen rådgiver gjennom hele kjøps- og salgsprosessen. Det starter med en verdivurdering.
Unngå doble boligrenter
Vi tilbyr gunstig forsikring.
Vurderer du utleie?
Få et tilbud fra Utleie KrogsveenHva koster lånet?
Sjekk estimert lånekostnadVil du varsles om lignende boliger?
Ved å lagre ditt boligsøk hos oss får du beskjed når vi har en bolig som ligner denne, før den legges ut på markedet!














































