Øllsvikvegen 43
5 150 000 kr
125 m²
3 soverom
Solgt

Flisnes
Attraktiv og tiltalende halvpart av tomannsbolig med flott utsikt og gode solforhold
Prisantydning
5 150 000 krOmkostninger
149 740 krTotalpris
5 299 740 kr
Pris
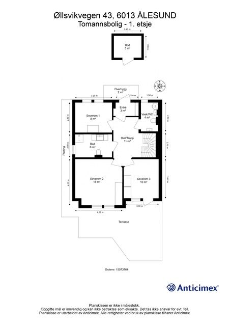
Bruksareal
130 m²BRA-I (internt bruksareal)
125 m²BRA-E (eksternt bruksareal)
5 m²TBA (terrasse-balkongareal)
32 m²
Areal
Etasje
2Byggeår
2011Soverom
3 soveromBad
1 badTomteareal
308 m² (eiet)Type
Halvpart vertikaldelt boligEierform
EietFasiliteter
Garasje/P-plass og Balkong/TerrasseÅrlig velavgift
1 000 krEnergimerke
Oransje C
Nøkkelinfo
Unngå doble boligrenter
Vi tilbyr gunstig forsikring.
Vurderer du utleie?
Få et tilbud fra Utleie KrogsveenHva koster lånet?
Sjekk estimert lånekostnadBeskrivelse
Kort om eiendommen
Krogsveen Sunnmøre v/Daglig leder/Eiendomsmegler Preben Willmann har gleden av å presentere en attraktiv moderne halvpart av tomannsbolig beliggende i Øllsvikvegen 43 til salgs. Boligen er beliggende i et populær og barnevennlig boligområde med gode sol- og utsiktsforhold i Havnevika på Flisnes. Skjermet markterrasse og hage i 1. etasje og balkong i 2. etasje.
Det er kort avstand til barneskole, barnehage, dagligvare samt buss-stopp. Gangavstand til flotte turområder på Emblemsfjellet via Eikenosen, badestrand og friområde på Emblemssanden og i Skråvika. Avstander til Moa er 5 km og bysentrum er 17 km.
Område
Legg til steder som er viktige for deg
På flyttefot? Tenk kjøp og salg samtidig.
Få din egen rådgiver gjennom hele kjøps- og salgsprosessen. Det starter med en verdivurdering.
Unngå doble boligrenter
Vi tilbyr gunstig forsikring.
Vurderer du utleie?
Få et tilbud fra Utleie KrogsveenHva koster lånet?
Sjekk estimert lånekostnadVil du varsles om lignende boliger?
Ved å lagre ditt boligsøk hos oss får du beskjed når vi har en bolig som ligner denne, før den legges ut på markedet!

