Varen 17
7 950 000 kr
280 m²
4 soverom
Komplett salgsoppgave

Varen - Romslig enebolig med strandlinje og leieinntekter på stor og meget solrik tomt - sentral beliggenhet
Prisantydning
7 950 000 krOmkostninger
219 740 krTotalpris
8 169 740 kr
Pris
Bruksareal
295 m²BRA-I (internt bruksareal)
280 m²BRA-E (eksternt bruksareal)
15 m²TBA (terrasse-balkongareal)
79 m²
Areal
Etasje
3Byggeår
1963Soverom
4 soveromBad
3 badTomteareal
2 376 m² (eiet)Type
Enebolig - FrittliggendeEierform
EietFasiliteter
Balkong/TerrasseEnergimerke
Rød G
Nøkkelinfo
Unngå doble boligrenter
Vi tilbyr gunstig forsikring.
Vurderer du utleie?
Få et tilbud fra Utleie KrogsveenHva koster lånet?
Sjekk estimert lånekostnadBeskrivelse
Kort om eiendommen
Velkommen til en flott beliggende eiendom med egen strandlinje og meget romslig tomt.
Nærområdet byr på flotte rekreasjonsområder med flere badeplasser og nydelig svaberg. Tomten er stor med stor gressplen og godt med sol.
Boligen er meget romslig med flere soverom og stuer og 3 bad pluss vaskerom. Boligen passer godt til en barnefamilie.
Selger har også leid ut øverste etg. ( 13000 pr mnd. inkl strøm og internett)
Eiendommen ligger på en liten øy med bro og kjørevei helt frem til boligen.
Innhold og byggemåte
Innhold og byggemåte
Eiendommen
Varen 17, 4633 KRISTIANSAND S
Kommunenummer 4204, gårdsnummer 46, bruksnummer 17
Innhold
Totalt bruksareal BRA: 295 kvm
BRA-i:
Kjeller: 53 kvm: Vindfang, hall, et soverom, bod (brukes som soverom), bod, bad og vaskerom.
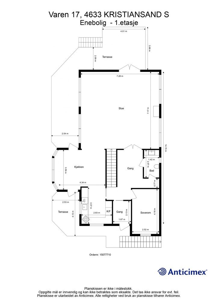
1. etasje 114 kvm: To ganger, soverom, bad, kjøkken og stue.
2. etasje 113 kvm: Entré, kjøkken, stue, bad og to soverom.
BRA-e:
Bod:
1. etasje 15 kvm: Bod (to rom)
Åpent areal:
1. etasje 68 kvm: Terrasser
2. etasje 11 kvm: Balkong (5m2) og terrasse/inngangsparti (6m2).
Vedlagte plantegninger er ikke målbare. De oppgitte arealer er hentet fra rapport med befaringsdato 10.12.2025 utført av Anticimex v/ Halvard Grina. Arealene er beregnet og rom er definert etter dagens faktiske bruk, uavhengig av hva som er godkjent av bygningsmyndighetene.
Byggemåte
Selger har fått utarbeidet en tilstandsrapport, dvs. en teknisk gjennomgang av boligen hvor eventuelle avvik, risiko for kjøper og prisoverslag for hva som bør gjøres av oppgradering, er skissert. Se særskilt TGIU (tilstandsgrad ikke undersøkt), samt TG2 og TG3 som viser hva som er boligens normale slitasje, alder og type, hva som er avvik fra dette og hva som bør/må utbedres. Rapporten og selgers egenerklæring er en del av salgsoppgaven og må leses nøye før bud inngis. Kjøper overtar ansvaret for de opplysninger som fremkommer av salgsdokumentasjonen, og kan ikke gjøre gjeldende som mangel noe som burde vært kjent eller som ikke kan anses å ha betydning for avtalen.
Bygningen er iht. tilstandsrapporten oppført i tre. Les for øvrig mer om byggemåte og den tekniske tilstanden i rapporten.
Sammendrag av boligens tilstandsgrad:
TG1 - 38%
TG2 - 57%
TG3 - 1%
TGIU - 4%
Det gjøres spesielt oppmerksom på:
TG 3 Frittstående byggverk -
Det er foretatt en forenklet og overordnet vurdering av tilstanden, og det er observert
omfattende fukt- og råteskader på yttervegger, gulv og takkonstruksjon. Skadene
antas å skyldes langvarig fuktbelastning og mangelfull vedlikehold. Dette medfører
betydelig svekket konstruksjon og risiko for videre skadeutvikling. Det anbefales total
oppgradering og fornying av berørte bygningsdeler for å gjenopprette forsvarlig
teknisk tilstand og hindre ytterligere forringelse.
Sjablongmessig prisanslag gjelder for total oppgradering/fornying.
Sjablongmessig prisanslag: kr 50 000 - 100 000
Oppsummering av selgers egenerklæring:
Selger har hevet taket i gangen i 3 etg. dette ligger da på baksiden av boligen ved trappa.
Hevning av tak og oppføring av trapp er ikke byggemeldt eller søkt om.
Standard
Boligen er av eldre dato, og det bør påregnes oppgraderinger av diverse bygningsdeler.
Selger har etablert et nytt bad og vaskerom i 1 etg samt en bod som brukes som gjesterom.
Løsøre og tilbehør
Vi viser til liste fra Norges Eiendomsmeglerforbund som gjelder fra 01.01.2020 angående løsøre og tilbehør.
Oppvarming
Boligen varmes opp med vedfyring og elektrisitet. Det er installert to varmepumper. 1 i hoved etg og en i topp etg.
Det er varmekabler på alle bad samt gangen nede
Ferdigattest/brukstillatelse
Det foreligger ferdigattest på .tilbygg/ombygging ( ikke loftetg da den ikke var innredet), det må også bygges stilling til pipe for feiing), datert.18.02.1987. Denne kan fås ved henvendelse til megler.
Ferdigattesten omfatter ikke Soverom til høyre når du kommer inn, er ikke omsøkt/bruksendret. Det samme gjelder vaskerom og bad i denne etg. dette er registrert som disp.rom og bod og kjølerom på tegninger fra 1984 (tilbygg/ombygging) er opprinnelig byggemeldt som boder jf. xxx (byggetegninger?) og er ikke godkjent til varig opphold. Innredning av rommene til bruk for varig opphold er ikke bruksendret/omsøkt og er heller ikke godkjent av kommunen. Konsekvensen ved søknad kan være at rommet ikke godkjennes som varig opphold og at rommet da må brukes som bod/midlertidig oppbevaring.
Trapp opp til 3 etg på utsiden er ikke søkt om, opprinnelig soverom er omgjort til kjøkken og entre. Stuen i denne etg står oppført som lekerom.
Takhøyden i gangen er økt, dette er ikke byggemeldt eller søkt godkjent.
1 etg har mindre endringer, på opprinnelige tegninger er det delt av til forstue og peiskrok. Nå er alt slått sammen til ett stort rom. Hagestuen som er tegnet inn, er kun uteplass uten overbygg/takk
Opprinnelig vaskerom er omgjort til gang/garderobe.
Kjøper overtar alt ansvar, kostnad og risiko for dette videre.
Det gjøres oppmerksom på at det ikke lenger utstedes ferdigattest på tiltak det er søkt om før 1998 jf. plan- og bygningsloven § 21-10. Kommunen vil ikke kreve ferdigattest for disse tiltakene og vil avvise eventuelle søknader. Bestemmelsen innebærer ikke at tiltak med manglende søknad blir lovlige, men at man ikke trenger å avslutte gamle byggesaker. Normalt sett kreves ferdigattest for alle søknadspliktige tiltak som gjøres etter plan- og bygningsloven.
Tinglyste heftelser og rettigheter
På eiendommen er det tinglyst følgende heftelser og rettigheter som følger eiendommens matrikkel ved overskjøting til ny hjemmelshaver:
4204/46/17:
02.06.1967 - Dokumentnr: 3387 - Best. om vann/kloakkledn.
Kan ikke slettes uten samtykke fra kommunen
24.01.1962 - Dokumentnr: 456 - Bestemmelse om veg ( dette er er en vegrett for denne eiendommen)
Rettighet hefter i: Knr:4204 Gnr:46 Bnr:2
Eventuell adgang til utleie
Den del av boligens 3 etasje som er innredet som en utleiedel er ikke søkt godkjent som separat boenhet av kommunen. Stuen er opprinnelig et lekerom og er ikke godkjent til varig opphold. Tidligere soverom er omgjort til kjøkken. Konsekvensen ved søknad kan være at rommet ikke godkjennes som varig opphold og at rommet da må brukes som bod/midlertidig oppbevaring og dermed heller ikke kan leies ut. Kjøper overtar alt ansvar og risiko for dette videre.
Selger har hatt ca 13 000 i leieinntekter inkludert strøm. Pt. er denne delen ikke leid ut.
Det gjøres oppmerksom på at det er krav til forsvarlige radonnivåer ved utleie. Det er ikke gjennomført radonmåling på denne boligen.
Beliggenhet og tomteforhold
Beliggenhet og tomteforhold
Beliggenhet
Varen 17 har en attraktiv beliggenhet ved Varoddbrua i Kristiansand, i et rolig og naturnært område med umiddelbar nærhet til sjøen. Området oppleves som tilbaketrukket og fredelig, samtidig som det er kort vei til byens fasiliteter. Beliggenheten gir enkel adkomst både mot Kristiansand sentrum og Sørlandsparken, med gode forbindelser øst–vest.
Nærområdet byr på flotte aktivitetsmuligheter med turstier, svaberg og badeplasser like i nærheten. Området er kjent for gode solforhold og en maritim atmosfære, noe som gjør beliggenheten attraktiv for dem som ønsker å oppholde seg tett på natur og sjø, uten å gi avkall på tilgjengelighet og sentralitet.
Adkomst
Det vil bli skiltet med Krogsveen visningsskilt ved fellesvisninger.
Barnehager, skoler og fritid
Barnehager:
- Gimlekollen barnehage ca. 1,8 km
- Bjørndalen barnehage ca. 1,9 km
- Bergtorasvei barnehage ca. 2,5 km
Grunnskoler:
- Fagerholt skole (1–7) ca. 2,7 km
- Presteheia skole (1–7) ca. 2,9 km
- Kristiansand Internasjonale skole (1–10) ca. 3,1 km
- Haumyrheia skole (8–10) ca. 3,4 km
- Oddemarka skole (8–10) ca. 3,6 km
Videregående skoler:
- Kristiansand katedralskole Gimle ca. 3,8 km
- Kvadraturen skolesenter ca. 4,3 km
- Tangen videregående skole ca. 4,3 km
- Akademiet videregående skole Kristiansand ca. 3,9 km
Butikker og sentre:
- Rona senter ca. 1,8 km
- Slottsquartalet ca. 4,0 km
-Sørlandssenteret ca. 6,0 km
- MENY Albert ca. 0,5 km
- Rema 1000 Bjørndalssletta ca. 2,0 km
Informasjon om tilhørende skolekretser er hentet fra Prognosesenteret som dataleverandør, og tilhørigheten kan årlig endres av kommunen. Dersom skole- og barnehagetilbud er av betydning for kjøpet, ber vi om at det rettes en særskilt henvendelse til kommunen/bydelsadministrasjonen for oppdatert informasjon.
Beskrivelse av tomt
Eiertomt på 2 376 kvm.
Tomten er opparbeidet med stor gressplen og stor terrasse ut fra boligen.
Egen strandlinje der selger har fylt på tidvis med sand ( det ligger et lass sand på tomten man kan bruke til påfylling) For påfylling så må mann gjøre dette selv. Det er søknadspliktig om man vil ha en entrepenør til å utføre jobben.
Det er noe lavt vann, og ny eier bør nok søke om å få mudret opp for å få god utnyttelse av sjøen.
Parkering
Det er parkering på egen tomt.
Vei, vann og avløp
Eiendommen har adkomst via privat vei med vedlikeholdsansvar.
Vegen inn mellom de røde bygningen er det selger som har ansvar for å brøyte. Fra veien Narviga og frem til boligen Varen 17
Nåværende eier betaler en mann for brøyting ( ca 4000 pr år) Nye eiere plikter å finne ny person for denne jobben.
Eiendommen er tilknyttet kommunalt ledningsnett via private stikkledninger. Vannledningen ligger i sjøen.
Eier er selv ansvarlig for private stikkledninger til boligen.
Regulerings-og arealplaner
Boligen ligger under kommuneplanen.
formål er Blågrønnstruktur.
Planer under arbeid er Nye E18 Ytre ringvei
Økonomi
Økonomi
Kommunale utgifter
Kommunale avgifter er kr 17 050,- for inneværende år. I dette inngår gebyr for vann, avløp, eiendomsskatt og feiing/tilsyn.
I selgers husstand har det bodd 2 mennesker og det opplyses om at strømforbruket har vært ca 42000 kr pr år inkludert den utleiede delen.
Boligen har en årlig forsikringspremie på kr ca 8500
Boligen er tilknyttet telenor som leverandør av kabel-tv og internett ( ikke fiber) Parebol til tv- og mobilt internett - avgift på kr 1600 pr. mnd. Tv-tuner/dekoder medfølger ikke.
Boligen er tilknyttet Verisure alarmselskap som koster kr 530 pr. mnd.
Det betales i tillegg for brøyting. Selger har hatt egen avtale, dog har denne mannen godt av med pensjon, ny eier bør finne ny person for denne jobben.
Utgiftene er basert på nåværende eiers forbruk og avtaler.
Formuesverdi
Formuesverdi for 2023 var kr 964 018,- ifølge selger/skatteetaten. Beløpet forutsetter at eier bor fast i boligen (primærbolig).
Ved eventuell øvrig bruk av eiendommen (f.eks. fritidsbolig, pendlerbolig, utleieobjekt) var formuesverdien for 2023 kr 3 856 070,-/3 856 072,-.
Formuesverdien justeres normalt årlig. Se skatteetaten.no for mer informasjon om fastsettelse av formuesverdien.
Omkostninger
7 950 000,00 Prisantydning
Omkostninger
198 750,00 Dokumentavgift til staten (2,5% av kjøpesum)
19 900,00 Gjensidige Boligkjøperpakke (valgfri)
545,00 Tinglysing panterettsdokument
545,00 Tinglysing skjøte
--------------------------------------------------------
219 740,00 Omkostninger totalt
--------------------------------------------------------
8 169 740,00 Totalpris inkl. omkostninger
--------------------------------------------------------
Betalingsbetingelser
Kjøpesum inkludert omkostninger, samt pantedokument tilknyttet eventuelt lån, skal være disponibelt hos megler 2 virkedager før overtagelsen.
Annen viktig informasjon
Annen viktig informasjon
Eier
Alf Yngve Bjørnstøl
Overtakelse
Etter nærmere avtale.
Boligselgerforsikring
Selger har i forbindelse med salget tegnet boligselgerforsikring levert av Gjensidige.
Boligselgerforsikringen dekker selgers ansvar etter avhendingsloven begrenset oppad til kr 14 millioner. Dersom kjøper oppdager forhold ved eiendommen som hen mener utgjør en mangel ved eiendommen, vil Gjensidige behandle reklamasjonen på vegne av selger. Forsikringsvilkår kan fås ved henvendelse til megler.
Vedlagt salgsoppgaven følger selgers egenerklæringsskjema og tilstandsrapport. Interessenter må sette seg inn i dokumentene før bud inngis.
Boligkjøperforsikring
Innen kontraktsmøtet må kjøper ta stilling til om det ønskes å bestille Boligkjøperpakken gjennom Gjensidige. I denne gunstige pakken er boligen ferdig forsikret og inkluderer rettshjelpsforsikring, også kalt Boligkjøperforsikring. Rettshjelpsforsikring gir trygghet og tilgang på profesjonell juridisk hjelp dersom det oppdages uventede feil eller mangler det første året etter overtagelse. Forsikringsselskapet behandler i så fall ethvert mangelskrav kjøper måtte ha overfor selger.
Boligkjøperpakken inkluderer bygningsforsikring for hus og hytte, innboforsikring, flytteforsikring og dobbel rentedekning - i situasjoner hvor kjøper ikke får solgt nåværende primærbolig.
Kjøper mottar ingen særskilt faktura for Boligkjøperpakken da kostnaden det første året legges til kjøpesummen for boligen. Det gjøres oppmerksom på Krogsveen mottar et honorar for denne formidlingen.
Produktark for Boligkjøperpakken ligger vedlagt i salgsoppgaven.
Dersom ikke boligkjøperpakke ønskes kan kun rettshjelpsforsikring, også kalt boligkjøperforsikring, tegnes særskilt via megler. Rettshjelpsforsikringen varer i 5 år fra overtagelse og leveres gjennom Gjensidige. Ta kontakt med megler for ytterligere informasjon.
Selskap og privatpersoner som driver med kjøp/salg/utvikling som ledd i egen næringsvirksomhet kan ikke tegne boligkjøperpakke eller rettshjelpsforsikring.
Budgivning
Forbrukerinformasjon om budgivning er vedlagt denne salgsoppgaven og er også på vår hjemmeside Krogsveen.no. Alle bud og budforhøyelser må inngis skriftlig. I tillegg må legitimasjon være fremlagt sammen med signatur fra budgiver.
Vi oppfordrer til å gi bud elektronisk via GI BUD-knappen på eiendommens hjemmeside på Krogsveen.no. Da vil samtlige vilkår bli oppfylt.
Eventuelle forhøyelser eller endringer av budet kan bekreftes pr SMS eller på e-post. Vi oppfordrer alltid til å kontakte megler pr. telefon i tillegg da forsinkelser i SMS og e-post kan forekomme.
For at budene skal kunne bli behandlet og videreformidlet skriftlig til alle involverte parter, må alle bud ha en tilstrekkelig lang akseptfrist, jf. eiendomsmeglingsforskriften § 6-3.
Selger må også skriftlig akseptere budet før aksept kan formidles til budgiver. Akseptfrist bør derfor være på minimum 30 minutter, og budforhøyelser må derfor skje i god tid før fristens utløp.
Bud i forbrukerforhold kan uansett ikke settes med kortere frist enn kl. 12.00 første virkedag etter siste annonserte visning. I tillegg kan ikke budet ha forbehold om at det skal holdes hemmelig ovenfor øvrige interessenter. Megler har iht lov om eiendomsmegling ikke anledning til å videreformidle disse budene, og de vil dermed heller ikke bli journalført.
Etter at eiendommen er solgt vil kjøper og selger få tilsendt budjournal. Øvrige budgivere kan få utlevert kopi av budjournalen i anonymisert form.
Hvitvaskingsreglene
I henhold til lov om hvitvasking og terrorfinansiering har megler plikt til å gjennomføre kontrolltiltak overfor kunder, herunder fullmektiger. Dette innebærer bl.a. å bekrefte kunders og reelle rettighetshaveres identitet på bakgrunn av fremvist gyldig legitimasjon eller på annen godkjent måte, samt å innhente opplysninger om kundeforholdets formål og tilsiktede art.
Dersom slike kundetiltak ikke kan gjennomføres, kan megler ikke etablere kundeforholdet eller utføre transaksjonen.
Hvis kjøper ikke bidrar til gjennomføring av kundekontrollen og dette fører til at transaksjonen blir forsinket eller ikke kan gjennomføres, vil dette ansees som mislighold av avtalen og gi selger rettigheter etter avhendingslova kapittel 5. I tilfeller der selger ikke bidrar til gjennomføring av løpende kundekontroll underveis i oppdraget, er det selger som misligholder sine forpliktelser etter avtalen og gi kjøper rettigheter etter avhendingslovens kapittel 4. Partene er selv ansvarlige for eventuelle kostnader og ansvar dette kan medføre. Eiendomsmegleren eller eiendomsmeglingsforetaket kan ikke holdes ansvarlig for de konsekvenser dette vil kunne få for partene eller andre som har interesser i eiendomshandelen.
Kjøper oppfordres til å innbetale kjøpesummen som ikke kommer fra låneinstitusjon i én samlet innbetaling fra egen konto i norsk bank. Megler har plikt til å melde fra til Økokrim om eiendomshandler som fremstår som mistenkelige. Melding sendes Økokrim uten at partene varsles.
Personopplysningsloven
I henhold til personopplysningsloven gjør vi oppmerksom på at interessenter kan bli registrert for videre oppfølging.
Lovanvendelse
Generelle bestemmelser
Salgsoppgaven er basert på de opplysningene selger har gitt til megler, den bygningssakyndiges tilstandsrapport, samt opplysninger innhentet fra kommunen, Kartverket og andre tilgjengelige kilder. Det er viktig at kjøper setter seg grundig inn i alle salgsdokumentene, herunder salgsoppgave, tilstandsrapport og selgers egenerklæring. Kjøper anses kjent med forhold som er tydelig beskrevet i salgsdokumentene, og slike forhold kan ikke påberopes som mangler. Dette gjelder uavhengig av om kjøper har lest dokumentene. Alle interessenter oppfordres til å undersøke eiendommen nøye, gjerne sammen med fagkyndig før bud inngis. Kjøper som velger å kjøpe usett kan ikke gjøre gjeldende som mangel noe han burde blitt kjent med ved undersøkelsen.
Dersom det er behov for avklaringer, anbefaler vi at interessenter rådfører seg med eiendomsmegler eller egne rådgivere før det legges inn bud.
En bolig som har blitt brukt i en viss tid, har vanligvis blitt utsatt for slitasje og skader kan ha oppstått. Slik bruksslitasje må kjøper regne med, og det kan avdekkes enkelte forhold etter overtakelse som nødvendiggjør utbedringer. Normal slitasje og skader som nødvendiggjør utbedring, er innenfor hva kjøper må forvente og vil ikke utgjøre en mangel.
Kjøper og selgers rettigheter og plikter reguleres av avtalen mellom partene, samt informasjonen som har vært tilgjengelig for kjøperen i forbindelse med handelen. Avtalen utfylles av avhendingsloven, og det gjelder ulike avtalevilkår avhengig av om kjøper er forbrukerkjøper eller ikke. Dette er nærmere beskrevet nedenfor.
På grunn av ulike avtalevilkår kan selger vurdere bud fra en som ikke er forbruker, ulikt fra en forbrukers bud. Dersom kjøper ikke er forbruker, er selger sitt mulige mangelsansvar begrenset fordi eiendommen selges "som den er". Selger kan ikke ta «som den er»- forbehold overfor en forbrukerkjøper. Selv et lavere bud fra en som ikke er forbruker kan foretrekkes fordi begrensningen i mulig mangelsansvar kan ha egenverdi for selger. Selger står fritt til å forkaste eller akseptere ethvert bud, og er for eksempel ikke forpliktet til å akseptere høyeste bud.
Budgiver skal i budskjema avgi egenerklæring om budgiver er forbruker eller næringsdrivende/ person som hovedsakelig handler som ledd i næringsvirksomhet. Budgivere får informasjon dersom andre bud er inngitt av en som ikke er forbruker.
Forbrukerkjøp - definisjon
Med forbrukerkjøp menes kjøp av eiendom når kjøperen er en fysisk person som ikke hovedsakelig handler som ledd i næringsvirksomhet.
Forbruker – avtalevilkår
Eiendommen har en mangel dersom den ikke er i samsvar med kravene som følger av avtalen, eller det foreligger brudd på bestemmelsene i avhendingsloven §§ 3-2 til 3-8. Hvis eiendommen ikke er i samsvar med det kjøperen må kunne forvente ut ifra alder, type og synlig tilstand, kan det være grunnlag for mangelskrav. Det samme gjelder hvis det er holdt tilbake eller gitt uriktige opplysninger om eiendommen. Dette gjelder likevel bare dersom man kan gå ut ifra at det virket inn på avtalen at opplysningen ikke ble gitt eller at mangelskravet ikke blir rettet i tide på en tydelig måte.
Boligen kan ha en mangel etter avhendingsloven § 3-3 andre ledd, dersom det er avvik mellom opplyst og faktisk innvendig areal, forutsatt at avviket er på 2% eller mer og minimum 1 kvm.
Ved beregning av et eventuelt prisavslag eller erstatning må kjøper selv dekke tap/kostnader opptil et beløp på kr 10 000 (egenandel).
Ikke-forbruker (næringsdrivende) – definisjon
Hvis kjøper er en juridisk person, eller en fysisk person som hovedsakelig handler som ledd i næringsvirksomhet, vil kjøpet ikke anses som et forbrukerkjøp.
Ikke-forbruker – avtalevilkår
Eiendommen har en mangel dersom den ikke er i samsvar med kravene som følger av avtalen.
Eiendommen selges «som den er», og selgers ansvar utover det konkret avtalte er da begrenset etter avhendingsloven § 3-9, første ledd andre setning.
Avhendingsloven § 3-3 andre ledd fravikes, og hvorvidt boligens arealsvikt utgjør en mangel vurderes etter avhendingsloven § 3-8.
Informasjon om kjøpers undersøkelsesplikt, herunder oppfordringen om å undersøke eiendommen nøye, gjelder også for kjøpere som ikke anses som forbrukere.
Det forutsettes at hjemmel overføres til kjøper. Hvis kjøper ikke ønsker hjemmelsoverføring av eiendommen, må det tas forbehold om dette i budet.
Meglers vederlag
Meglers vederlag betales av selger og er avtalt til:
Vederlag: 1,40 % av salgssummen inkl. eventuell fellesgjeld.
Vederlag:
Kontroll av hjemmel og heftelser kr 2 900,00
Markedsføringspakke kr 26 900,00
Oppgjør kr 7 500,00
Tilrettelegging kr 17 000,00
Visninger pr stk kr 2 000,00
Utlegg:
Innhenting av offentlig opplysninger kr 3 339,00
Tinglysing sikring kr 545,00
Andre utgifter:
AX tilstandsrapport enebolig over 250kvm/småbruk kr 24 687,50
Boligselgerforsikring Gjensidige Eiet - regnes av prisantydning kr 45 051,90
Foto kr 3 500,00
Vi er opptatt av verdiskapning, og har knyttet til oss samarbeidspartnere som skal sikre våre kunder de beste produkter og tjenester;
• I forbindelse med forberedelse av salget, innhenter vi informasjon om eiendommen hovedsakelig fra vår samarbeidspartner Amibita.
• Gjensidige leverer boligselgerforsikring og tilbyr bygningsforsikring
• Boligkjøperforsikring leveres av Hiscox og med Sedgwick som skadebehandler, og er formidlet gjennom Gjensidige.
• BN bank tilbyr finansieringsløsninger
• Vår avdeling Krogsveen Pluss tilbyr flyttetjenester som utvask, visningsvask, lager, tømming og transport av flyttelass, i tillegg til å formidle kontakt med Flip for overflateoppussing.
• I forbindelse med overtagelse av eiendommen tilbyr Overo avtale om strøm, alarm og bredbånd.
• Krogsveen er, sammen med øvrige bransjeaktører, medeier i Bomega AS som tilbyr den digitale annonseringsplattformen Hjem.
Opplysninger om oppdraget
Oppdragsnummer 31-0252/25
Eiendomsmegler Krogsveen AS, avd. Kristiansand
Østre Strandgate 12, 4610, KRISTIANSAND S
950 007 613
Oppdragets KR-kode KR31.25252
Dato
Sist oppdatert: 30. mars 2026 kl. 10:19
Dokumenter
Dokumenter
PDF – 943 KB
PDF – 746 KB
PDF – 312 KB
PDF – 29 KB
PDF – 127 KB
PDF – 392 KB
Område
Legg til steder som er viktige for deg
Visning
For å delta på visning, ber vi om at du melder deg på. Da sikrer vi at du får nødvendig informasjon og at det er satt av tilstrekkelig med tid. Kontakt megler dersom annet tidspunkt ønskes. Husk å lese salgsoppgaven før visningen, så du stiller forberedt.
Ønsker du kun å bli holdt orientert, kan du fra eiendommens hjemmeside få varsel om solgtpris, eller kontakte megler.
Lurer du på noe?
Unngå doble boligrenter
Vi tilbyr gunstig forsikring.
Vurderer du utleie?
Få et tilbud fra Utleie KrogsveenHva koster lånet?
Sjekk estimert lånekostnadVil du varsles om lignende boliger?
Ved å lagre ditt boligsøk hos oss får du beskjed når vi har en bolig som ligner denne, før den legges ut på markedet!




















































