Hesteskoen 7B
12 900 000 kr
110 m²
4 soverom
Solgt
Kjelsås
Arealsmart rekkehus fra 2021 med 4 soverom - Solrik takterrasse, hage & 2 markterrasser - Garasjeplass- Nærhet til "alt"
Prisantydning
12 900 000 krOmkostninger
343 490 krTotalpris
13 243 490 kr
Pris
Bruksareal
115 m²BRA-I (internt bruksareal)
110 m²BRA-E (eksternt bruksareal)
5 m²TBA (terrasse-balkongareal)
35 m²
Areal
Byggeår
2021Soverom
4 soveromBad
1 badType
RekkehusEierform
EierseksjonFasiliteter
Garasje/P-plass og Balkong/TerrasseFellesutgifter
3 126 krEnergimerke
Oransje B
Nøkkelinfo
Unngå doble boligrenter
Vi tilbyr gunstig forsikring.
Vurderer du utleie?
Få et tilbud fra Utleie KrogsveenHva koster lånet?
Sjekk estimert lånekostnadBeskrivelse
Kort om eiendommen
Lekkert rekkehus med meget god og arealsmart planløsning.
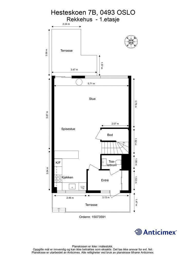
1. etasje inneholder entré med garderobeplass, toalettrom, fin stue/kjøkkenløsning med sone for spisebord og sone for sofaavdeling. Peisovn i stuen og det er utgang til en skjermet hagedel fra skyvedører i stuen.
2. Etasje har 4 soverom og et delikat, moderne bad.
3. etasje er et trapperom med plass til en liten hjemmekontorløsning. Fra trapperommet er det utgang til en herlig takterrasse på 17 kvm. Her er det sol hele dagen og det er flott utsyn over hustakene i nabolaget samt inn mot Maridalen og Grefsenkollen.
I kjelleren følger det en garasjeplass og en kjellerbod. I tillegg er det et fellesområde med mulighet for prepping av ski.
Fra huset er det kort vei til skoler, barnehager, butikker, off.komm, badeplasser med mer.
Område
Legg til steder som er viktige for deg
På flyttefot? Tenk kjøp og salg samtidig.
Få din egen rådgiver gjennom hele kjøps- og salgsprosessen. Det starter med en verdivurdering.
Unngå doble boligrenter
Vi tilbyr gunstig forsikring.
Vurderer du utleie?
Få et tilbud fra Utleie KrogsveenHva koster lånet?
Sjekk estimert lånekostnadVil du varsles om lignende boliger?
Ved å lagre ditt boligsøk hos oss får du beskjed når vi har en bolig som ligner denne, før den legges ut på markedet!




