Eugenies gate 23
5 340 000 kr
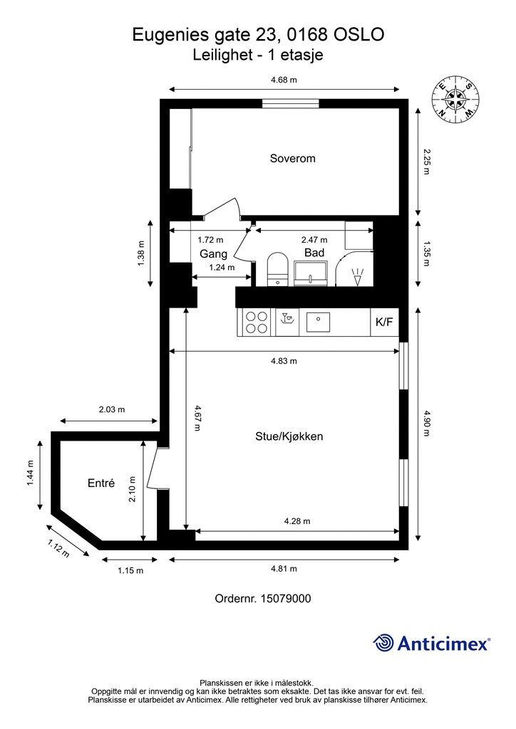
48 m²
1 soverom
Komplett salgsoppgave
Bolteløkka
Lys og romslig 2-roms i klassisk bygård ved St. Hanshaugen | God takhøyde og store vinduer | Fyring & TV/internett inkl.
Prisantydning
5 340 000 krAndel fellesgjeld
6 724,87 krOmkostninger
144 690 krTotalpris
5 491 414,87 kr
Pris
Bruksareal
50 m²BRA-I (internt bruksareal)
48 m²BRA-E (eksternt bruksareal)
2 m²
Areal
Etasje
1Byggeår
1891Soverom
1 soveromBad
1 badType
EierleilighetEierform
EierseksjonFellesutgifter
4 693 krEnergimerke
Rød G
Nøkkelinfo
Unngå doble boligrenter
Vi tilbyr gunstig forsikring.
Vurderer du utleie?
Få et tilbud fra Utleie KrogsveenHva koster lånet?
Sjekk estimert lånekostnadDette liker selger best ved boligen
Det er en lys og romslig leilighet med deilige store vinduer, og deilig med en yttergang man kan lukke igjen.
Beskrivelse
Kort om eiendommen
Velkommen til Eugenies Gate 23! Lys og klassisk 2-roms selveier med attraktiv beliggenhet.
Dette er en sjarmerende leilighet med ettertraktet beliggenhet på Bolteløkka, rett ved St. Hanshaugen. Her bor du i et veletablert nabolag med kort vei til butikker, kafeer og restauranter. Populære St. Hanshaugenparken er en kort spasertur unna. Leiligheten er lys og luftig, takket være store vindusflater og en sjenerøs takhøyde som gir en herlig romfølelse.
Høydepunkter:
- Attraktiv beliggenhet ved St. Hanshaugen
- Takhøyde ca. 2,80 m
- Høy første etasje som oppleves som en andre etasje.
- Åpen stue/kjøkkenløsning
- Parkett
- Kjøkken fra 2008 med integrerte hvitevarer
- Fyring og TV/internett inkl. i felleskostnader
- Kjellerbod
Leieestimat: 18 500-19 000,- pr. mnd.
Innhold og byggemåte
Innhold og byggemåte
Eiendommen
Eugenies gate 23, 0168 OSLO
Kommunenummer 301, gårdsnummer 217, bruksnummer 122, seksjonsnummer 8, ideell andel 1/1
Innhold
Totalt bruksareal BRA: 50 kvm.
BRA-i:
1. etasje, 48 kvm: Entré, bad, stue/kjøkken, gang, soverom.
BRA-e:
Kjeller, 2 kvm: Bod.
Boden er tinglyst som en tilleggsdel til seksjonen.
Vedlagte plantegninger er ikke målbare. De oppgitte arealer er hentet fra rapport med befaringsdato 04.02.2026 utført av Anticimex AS v/Jan Olav Morell-Nielsen.
Byggemåte
Tilstandsrapporten er inntatt i salgsoppgaven. Rapporten inneholder informasjon om avvikene og konsekvensen av disse. For avvik som er gitt TG3 har den bygningssakkyndige i tillegg gitt et anslag på hva det vil koste å utbedre disse avvikene. Ettersom kjøper regnes å være kjent med forhold som tydelig fremgår av tilstandsrapporten, oppfordres du til å sette deg grundig inn i rapporten i sin helhet.
Bygningen er iht. tilstandsrapport oppført i 1891. Dette er et boligbygg over 4 etasjer samt en underetasje. Bærende konstruksjoner er hovedsakelig av murkonstruksjoner med en grunnmur av sparsteinsmur og støpt gulv mot grunn. Yttervegger består av pusset og malt mur, samt synlig mur. Etasjeskillere er hovedsakelig av trekonstruksjoner. Takkonstruksjonen har en valmtaksform og er tekket med metallplater. Leiligheten har vinduer med karmer av tre og to-lags glass fra ukjent årstall. Entrédøren har brannklasse B30 og lydklasse 35dB, og det er profilerte innerdører samt en innerdør med glassfelt.
Det gjøres spesielt oppmerksom på at følgende bygningsdeler er gitt Tilstandsgrad 3 (TG3) — Store eller alvorlige avvik:
Våtrom
- Membran, tettesjikt og overgang til sluk.: Det er ikke etablert sluk i våtrommet. Manglende sluk medfører økt risiko for at lekkasjer og utilsiktet vannsøl kan føre til fuktskader i konstruksjoner og tilstøtende rom. På grunn av manglende sluk er det ikke mulig å kontrollere eller verifisere om våtrommet har tilfredsstillende membran eller tettesjikt. Eventuelt tettesjikt vurderes å ha en alder som tilsier usikker restlevetid. Rommets lekkasjesikkerhet kan derfor ikke dokumenteres.
Følgende bygningsdeler er gitt Tilstandsgrad 2 (TG2) — Avvik som kan kreve tiltak:
Kjøkken
- Vannrør: Vannrørene er ikke plugget mot varerør. Av denne grunn kan eventuelt lekkasjevann fra rør-i-rør system forårsake følgeskader.
Vinduer
- Vinduer er av eldre dato og har behov for oppgraderinger og overflatebehandling. Det må forventes høyere varmetap fra disse vinduene sammenlignet med vinduer fra nyere dato. Til informasjon ble det utført stikkprøvekontroll på enkelte vinduer, hvor åpne/lukkefunksjon fungerte som forventet, foruten på soverom der håndtak er feilmontert, samt vanskelig å åpne/lukke.
Følgende bygningsdeler er ikke undersøkt (TGIU):
Våtrom
- Fukt i tilliggende konstruksjoner: Våtrommet er vurdert til å ha vegger av mur og det er derfor ikke utført hulltaking/fuktmåling. Det er derfor utført et overflatesøk med fuktindikasjonsinstrument. Det ble ikke oppdaget forhold som kan tolkes til fuktskade.
Tekniske anlegg, VVS anlegg
- Stakeluke: Avløpsrørene er skjult og eventuell stakeluke er ikke lokalisert.
Helse, miljø og sikkerhet:
Det er foretatt en forenklet vurdering av boligens branntekniske forhold. Boligen har godkjent slukkeutstyr i form av husbrannslange og har tilstrekkelig røykvarsling/deteksjon. Det er ikke avdekket åpenbare feil eller mangler med brannskillende konstruksjoner, og boligen oppfyller krav til rømningsveier.
Elektrisk anlegg:
Det er foretatt en forenklet vurdering av deler av det elektriske anlegget. Vurderingen omfatter ikke funksjonstesting, eller kontroll av skjult anlegg.
Det legges vekt på at den bygningssakkyndige ikke er el-fagmann. Vurderingen er derfor begrenset til visuelle vurderinger og selgers informasjon.
På generelt grunnlag anbefales det alltid å gjennomføre en utvidet el-kontroll.
Ovennevnte er kun et utdrag fra rapporten. Se supplerende tekst i tilstandsrapporten for mer informasjon. Kjøper overtar ansvar og risiko for dette.
Selger har i forbindelse med salget fylt ut egenerklæringsskjema som vedlagt salgsoppgaven. I skjemaet fremkommer følgende informasjon:
Har det vært feil på utvendige eller innvendige avløpsrør eller vannrør?
- Jeg tror det var et rør som sprakk i 2024, men det ble fikset av sameiet.
Har det vært skadedyr i fellesområdene til sameiet eller borettslaget?
- Rotter, det har blitt fikset. Og det er jevnlig kontroll av Anticimex.
Har du andre opplysninger om boligen eller eiendommen utover det du har svart?
- Det er kvernedo, så det er ikke sluk i gulv på bad.
Moderniseringer og påkostninger
Følgende moderniseringer er foretatt de senere år:
2022:
- Satt inn nytt dusjkabinett og servantskap, utført av faglært.
- Installert nye spotter i tak med LED-lamper, utført av faglært. Ingen samsvarserklæring foreligger.
2008:
- Baderom renovert med flislagt gulv med gulvvarme, flislagte vegger, downlights, vegghengt servantskap, dusjkabinett, gulvmontert toalett, rør-i-rør og mekanisk avtrekk.
- Elektrisk anlegg rehabilitert. Ingen samsvarserklæring foreligger.
Standard
Velkommen inn i en leilighet som kombinerer klassiske kvaliteter fra byggeåret 1891 med en moderne og arealeffektiv planløsning. Den gjennomgående gode takhøyden på cirka 2,80 meter og store vindusflater gir en lys og luftig atmosfære. Leiligheten har en åpen løsning mellom stue og kjøkken, samtidig som en separat entré og en indre gang skaper en god og funksjonell rominndeling.
Entré:
Entréen gir et godt første inntrykk og fungerer som et praktisk skille mellom felles trappeoppgang og leilighetens private del. Rommet har downlights i himlingen. En dør med glassfelt leder videre inn til stuen og bidrar til en åpen følelse.
Bad:
Badet er fra 2008 og har flislagte overflater på gulv og vegger, med gulvvarme for økt komfort. Innredningen består av et vegghengt servantskap, speilskap med overlys, dusjkabinett og et gulvmontert toalett. Det er opplegg for vaskemaskin, og rommet har mekanisk avtrekk.
Stue og kjøkken:
Dette er leilighetens sosiale sone, med en åpen og funksjonell løsning. Kjøkkeninnredningen fra 2008 har slette fronter, benkeplate i stein og fliser over benken. Kjøkkenet er utstyrt med integrert komfyr med keramisk platetopp, oppvaskmaskin og kjøleskap med frysedel. En kjøkkenventilator er tilknyttet avtrekkskanal. Den åpne løsningen gir god plass til både spisebord og sofagruppe, og de store vinduene slipper inn rikelig med dagslys. Rommet har downlights i himlingen.
Det gjøres oppmerksom på at medfølgende hvitevarer er kjøpt for noen år tilbake, og kjøper må forvente slitasje som følge alder og normal bruk.
Soverom:
Soverommet ligger tilbaketrukket fra stuen, tilgjengelig via en indre gang. Rommet har en praktisk skyvedørsgarderobe og god plass til dobbeltseng.
Overflater:
Gulvoverflater: Parkett, flislagt gulv på bad.
Vegger: Malte veggflater, flislagte vegger på bad.
Himling: Malte himlingsflater med downlights i entré, bad og stue/kjøkken. Malte himlingsflater på soverom.
Teknisk:
- Sikringsskap med automatsikringer og kursfortegnelse er plassert i entré.
- Stoppekran for vann er plassert i fordelerskap på soverom.
- Varmtvannsbereder på 120 liter fra 2007 er plassert i kjøkkenskap.
Lagring:
Leiligheten har en kjellerbod på 2 m².
For beskrivelse av tilstandsgrad (TG) 2 og 3, se punktet Byggemåte i salgsoppgaven.
Interessenter oppfordres spesielt til å undersøke disse forholdene som er gitt TG2 og 3 nærmere, da gitte tilstandsgrader her er et konkret uttrykk for alder/slitasje/ødeleggelser/konsekvenser som innebærer kostnader til utbedring. Kjøper må innta disse vurderingene og medfølgende utbedringskostnader i sin kjøpsbeslutning, jf. avhl. § 3-10. Det samme gjelder eventuelt andre opplysninger om kjente risikofaktorer, som for eksempel ufaglært arbeid, begrenset kontroll av det elektriske anlegget og opplysninger fra selgers egenerklæringsskjema.
Løsøre og tilbehør
To nattbord med lys medfølger ikke.
Vi viser for øvrig til liste fra Norges Eiendomsmeglerforbund som gjelder fra 01.01.2020 angående løsøre og tilbehør.
Oppvarming
Boligen varmes opp med radiatorer tilkoblet felles varmesentral, samt elektrisk gulvvarme på badet.
Dersom beboelsesrom ikke har vegg- eller fastmonterte varmekilder ved visning, følger dette heller ikke med.
Ferdigattest/brukstillatelse
Det er utstedt ferdigattest for bruksendring datert 22.12.2009. Denne kan fås ved henvendelse til megler.
Bygningen er opprinnelig oppført i 1891. Det foreligger en ferdig attestert bygningsanmeldelse for "Oppførelse af et Vaaningshus" datert 19.01.1892. Denne kan fås ved henvendelse til megler.
At slike tillatelser/attester eksisterer gir ingen garanti for at det ikke senere er utført arbeider som ikke er byggemeldt/godkjent.
Det foreligger i tillegg følgende dokumentasjon i kommunens arkiv:
- Expeditions-Dokument for "Indredningsforandring" (innvendig ombygging), datert 16.03.1900.
- Ekspedisjons-Dokument for "Bilkjellegarasje", datert 15.03.1928.
- Ferdigattest for "Innrede leilighet på loft samt utv. heis", datert 08.11.1989.
- Ferdigattest for bruksendring, datert 22.05.2008.
- Ferdigattest for loftsutbygging, datert 09.05.2009.
- Ferdigattest for bruksendring, datert 26.01.2016.
Disse kan fås ved henvendelse til megler.
Det er uvisst om det er gjort endringer etter at ferdigattest ble gitt, men selger opplyser at det ikke er foretatt endringer i selgers eiertid.
Kjøper overtar alt ansvar, kostnad og risiko for dette videre.
Tinglyste heftelser og rettigheter
Utover andel fellesgjeld overdras leiligheten fri for pengeheftelser med unntak av:
Sameiet har legalpant for krav mot sameieren som følger av sameieforholdet iht. eierseksjonsloven § 31. Pantet er begrenset oppad til 2G (G = folketrygdens grunnbeløp).
Det er tinglyst følgende 11 servitutter på sameiets eiendom:
09.10.1890 - DOK.NR. 990670 - ERKLÆRING/AVTALE
Bestemmelse om benyttelse.
Gjelder denne registerenheten med flere.
Overført fra: KNR: 0301 GNR: 217 BNR: 122 SNR: 1
12.01.1893 - DOK.NR. 941555 - ERKLÆRING/AVTALE
Bestemmelse om benyttelse.
Gjelder denne registerenheten med flere.
Overført fra: KNR: 0301 GNR: 217 BNR: 122 SNR: 1
Eiendommen er beheftet med en bestemmelse om at den til eiendommen hørende del av gaten skal holdes i stand av eieren. I tillegg er det bestemmelser om gjerdeplikt mot nabo, samt vedlikeholdsplikt for vann- og kloakkledning.
25.10.1927 - DOK.NR. 921049 - BEST OM GARASJE/PARKERING
Gjelder denne registerenheten med flere.
Overført fra: KNR: 0301 GNR: 217 BNR: 122 SNR: 1
Oslo bygningskommisjon har gitt dispensasjon for en garasje, men eier forplikter seg til å fjerne eller forandre bygget uten erstatning dersom kommisjonen krever det. Erklæringen kan ikke avlyses uten bygningskommisjonens samtykke.
02.07.1964 - DOK.NR. 509746 - ERKLÆRING/AVTALE
Vedtak av Oslo kommunes vann- og kloakkreglement.
Kan ikke slettes uten samtykke fra kommunen.
Gjelder denne registerenheten med flere.
Overført fra: KNR: 0301 GNR: 217 BNR: 122 SNR: 1
Erklæringen pålegger eier plikter som å melde fra før arbeid på anlegget, tillate inspeksjon, koble til offentlig kloakk ved krav, og bærer ansvar for skader på offentlig ledning forårsaket av eiendommens avløp. Kommunen fraskriver seg ansvar for visse skader og ulemper, og erklæringen kan ikke avlyses uten samtykke fra vann- og kloakkvesenet.
22.02.1967 - DOK.NR. 503613 - BEST. OM VANN/KLOAKKLEDN.
Kan ikke slettes uten samtykke fra kommunen.
Gjelder denne registerenheten med flere.
Overført fra: KNR: 0301 GNR: 217 BNR: 122 SNR: 1
Eier av eiendommen forplikter seg til å koble eiendommens overvannsuttrekk til offentlig overvannsledning når kommunen krever det, samt å innbetale fastsatt gebyr til Oslo Vann- og Kloakkvesen når ledningen er lagt. Heftelsen kan ikke avlyses uten samtykke fra Oslo Vann- og Kloakkvesen.
05.06.1975 - DOK.NR. 510733 - ERKLÆRING/AVTALE
Angående baldakin.
Kan ikke slettes uten samtykke fra bygningsrådet.
Gjelder denne registerenheten med flere.
Overført fra: KNR: 0301 GNR: 217 BNR: 122 SNR: 1
Byggherren og etterfølgende eiere forplikter seg til å fjerne eller forandre en baldakin over hovedinngangen uten erstatning, dersom bygningsrådet krever det. Erklæringen kan ikke avlyses uten bygningsrådets samtykke.
11.08.1977 - DOK.NR. 514065 - BEST. OM ADKOMSTRETT
Byggeforbud på nærmere angitt avstand.
Kan ikke slettes uten samtykke fra Oslo byplanskontor.
Gjelder denne registerenheten med flere.
Overført fra: KNR: 0301 GNR: 217 BNR: 122 SNR: 1
I forbindelse med deling av eiendommen er det tinglyst en erklæring. Den sydøstre parsellen har bruksrett til nødvendig atkomst over den nordvestre parsellen frem til Eugenies gt. Videre kan den nordvestre parsellen ikke bebygges nærmere den nye bebyggelsen på den sydøstre parsellen enn forskriftsmessig avstand (8 m). Erklæringen kan ikke endres eller avlyses uten samtykke fra Oslo byplankontor.
30.11.2001 - DOK.NR. 74906 - ERKLÆRING/AVTALE
Denne seksjon har tilleggsdel - areal og bygning.
Overført fra: Knr:0301 Gnr:217 Bnr:122 Snr:1
Gjelder denne registerenheten med flere.
17.06.2005 - DOK.NR. 38746 - BEST. OM ADKOMSTRETT
Rettighetshaver: KNR: 0301 GNR: 217 BNR: 122 SNR: 3, 4, 5, 6
Gjelder denne registerenheten med flere.
Overført fra: KNR: 0301 GNR: 217 BNR: 122 SNR: 1
Nåværende og fremtidige eiere av seksjonene i Sameiet Eugeniesgate 23 A har rett til kjørbar atkomst over tilleggsarealene, spesifikt over snr. 1 sitt tilleggsareal (T1). Tilsvarende atkomstrett gis også leietakere og besøkende. Erklæringen er tinglyst som heftelse på snr. 1 og snr. 2.
29.06.2005 - DOK.NR. 41744 - ERKLÆRING/AVTALE
Bestemmelse om garasje/parkering.
Gjelder denne registerenheten med flere.
Overført fra: KNR: 0301 GNR: 217 BNR: 122 SNR: 1
En avtale mellom S/E Eugeniesgate 23 A (gnr. 217 bnr. 122) og B/L Eugeniesgate 23 B (gnr. 217 bnr. 496) regulerer parkeringsforhold. B/L Eugeniesgate 23 B forplikter seg til å ikke bruke parkeringsplass 4 på egen eiendom hvis den blokkerer garasjen på gnr. 217 bnr. 122. En ny parkeringsplass 4 er etablert delvis over grensen til gnr. 217 bnr. 122. Avtalen tinglyses som heftelse på begge eiendommer.
29.09.2008 - DOK.NR. 786647 - RESEK/ENDRING FORMÅL/BRØK/TILLEGGSDEL
Endret seksjon: Snr: 8 Formål: Bolig Tilleggsdel: Bygning
Sameiebrøk: 66/1429
Servituttene anses å være av generell karakter og vurderes ikke å ha praktisk betydning for kjøpers bruk av leiligheten.
Servituttene vil følge eiendommen. Kjøpers bank vil få prioritet etter ovennevnte heftelser og servitutter.
Eventuell adgang til utleie
Leiligheten kan leies ut såfremt leiligheten har forsvarlige radonverdier. Leietaker må følge sameiets vedtekter og ordensregler på lik linje som eier.
Energimerking
Denne boligen er energimerket. På en skala fra A til G, der A er best, har denne boligen oppnådd G (en normalbolig vil gjerne ligge i området C-F). Kopi av energiattest ligger vedlagt i salgsoppgaven eller kan fås ved henvendelse til megler.
Beliggenhet og tomteforhold
Beliggenhet og tomteforhold
Beliggenhet
Leiligheten i Eugenies gate 23 har en ettertraktet beliggenhet på Bolteløkka, et stille og tilbaketrukket nabolag som ligger rett ved det pulserende livet på St. Hanshaugen. Her bor du i rolige omgivelser, samtidig som du har umiddelbar tilgang til alt bydelen har å by på. Dette er en perfekt kombinasjon av fredelig boliggate og urban atmosfære, hvor du kan trekke deg tilbake fra byens larm uten å gi avkall på nærheten til det.
St. Hanshaugen er kjent for sin unike landsbyfølelse midt i byen. Her starter dagen gjerne med ferske bakevarer fra Åpent Bakeri eller en kaffe fra anerkjente Java Espressobar. Området er rikt på kulinariske opplevelser, fra den Michelin-anbefalte nabolagsrestauranten Smalhans til den intime franske bistroen Grotto. I tillegg finner du lokale perler som Restaurant Schrøder og den populære pizzarestauranten Jungel Pizza. Alt dette ligger bare en kort spasertur fra ytterdøren.
For rekreasjon og fritid er St. Hanshaugen park et naturlig samlingspunkt. Parken, som er en av byens flotteste, byr på alt fra turstier og uteservering til panoramautsikt over Oslo. En spasertur gjennom Vår Frelsers gravlund, med sine historiske minnesmerker, gir også en spesiell ro. I nærområdet finnes det treningssentre som EVO Adamstuen, og for de minste er det kort gangavstand til Bolteløkka skole.
Hverdagslogistikken er enkel med dagligvarebutikker som Kiwi og Coop Extra innen fem minutters gange. Området har også et utmerket kollektivtilbud. Bussholdeplasser for linje 37 i Colletts gate og linje 17 og 18 i Stensgata er kun et par minutter unna, noe som gir effektiv transport til resten av byen.
Adkomst
Det vil bli skiltet med Krogsveen visningsskilt ved fellesvisninger.
Barnehager, skoler og fritid
Eugenies gate 23 sokner til Bolteløkka skole (1.-7. trinn) og Fagerborg skole (8.-10. trinn).
Det er flere barnehager i området som Lovisenberg Diakonale barnehage, Melkeveien barnehage og Den Jødiske barnehage.
Dersom skole- og barnehagetilbud er av betydning for kjøpet, ber vi om at det rettes en særskilt henvendelse til kommunen/bydelsadministrasjonen for oppdatert informasjon.
Beskrivelse av tomt
Eiet tomt på 791 m² som tilhører sameiet. Tomten er fellesareal.
Fellesareal er opparbeidet med blant annet asfalterte internveier, biloppstillingsplasser, sykkelstativer, plenarealer og diverse beplantning.
Parkering
Det medfølger ikke garasje- eller parkeringsplass til leiligheten.
Det er innført beboerparkering i dette området, som betyr at du kan parkere fritt døgnet rundt på parkeringsplassene regulert til beboerparkering for kun kr 3 850,- pr. år for bensinbil, dieselbil, hybridbil og ladbar hybridbil.
Har du el-bil så betaler du kr 1 300,- pr. år (hydrogenbil og el-varebil er gratis).
Motorsykkel og moped kr 1 925,- pr. år.
El-motorsykkel og el-moped kr 650,- pr. år.
Vei, vann og avløp
Eiendommen er tilknyttet offentlig vann- og avløpssystem. Stikkledningene fra eiendommen og ut til det kommunale nettet er private, og vedlikeholdsansvaret for disse påhviler sameiet. Adkomst til eiendommen skjer via offentlig vei.
Regulerings-og arealplaner
Eiendommen er regulert til byggeområde for boliger i henhold til reguleringsplan S-2837, "Endret reg.plan med reg.best. for 217/37 m.fl. Bolteløkka, Bevaring m.v.", vedtatt 15.01.1986. Planen angir en utnyttelsesgrad på inntil 1,0 og en maksimal etasjehøyde på 4 etasjer.
Eiendommen omfattes også av eldre reguleringsplaner. I plan S-2255, "Reguleringsbestemmelser i tilknytning til endret reguleringsplan for Oslo sentrum og indre sone i Oslo kommune", vedtatt 28.07.1977, er eiendommen regulert til bolig med tilhørende anlegg. I plan S-132GO, "Vestre bydeler III", vedtatt 03.02.1939, er deler av eiendommen regulert til offentlig kjørebane/veigrunn.
Reguleringsplan S-2837 er en bevaringsplan for Bolteløkka. Dette innebærer spesielle krav til utforming ved endringer. I henhold til planens bestemmelser § 3a skal bygningens høyde, form og fasade tilpasses det bevaringsverdige miljøet ved nybygg eller ombygging.
Flere av de eldre reguleringsplanene som omfatter eiendommen er helt eller delvis opphevet som følge av vedtakelsen av Kommuneplan 2015. Dette innebærer at bestemmelser fra eldre planer kan gjelde i kombinasjon med, eller være erstattet av, nyere overordnede planer.
Utvalgte byggesaker i nærområdet:
- Eugenies Gate 25: Bruksendring av loft til bolig og fasadeendringer. Rammetillatelse er gitt, med senere fraråding fra byantikvaren gitt i starten av 2024 som siste aktivitet. Saksnr. 202312888.
- Louises gate 20: Bruksendring fra kontor til bolig i 1. og 2. etasje. Saksnr. 202508078.
- Louises gate 20: Bruksendring av del av kjeller til bolig - Fasadeendringer. Saksnr. 202508058.
- Louises gate 24A-B: Sikring av vinduer, rehabilitering av våtrom og kjellerboder og brannsikring av trapperom. Saksnr. 202515166.
- Johannes Bruns gate 6: Anmodning om forhåndskonferanse for byggesak. Saksnr. 202523646.
- Johannes Bruns gate 8B: Etablering av heis, utvidelse av H0401, fasadeendringer i form av et takvindu og fire takglugger. Saksnr. 202509242.
- Vallegata 2A: Oppføring av antenner. Saksnr. 202458929.
- Vallegata 7: Riving og oppføring av tilbygg, horisontaldelt tomannsbolig omgjøres til vertikaldelt tomannsbolig. Saksnr. 202457052.
- Colletts gate 35: Bruksendring og sammenslåing av to leiligheter. Saksnr. 202521312.
- Colletts gate 33: Colletts gate 33 - bruksendring til bolig for kollektiv boligfunksjon/hybler. Saksnr. 202301696.
- Bolteløkka allé 10A-B: Bruksendring av loft (H05) til boliger, oppdelinger av leiligheter i plan 2-4 og installasjon av heis. Saksnr. 202510029.
- Ullevålsveien 61: Tilbakeføring av fasade - Etablering av heis - Forlengelse av trapp. Saksnr. 202460235.
Plansak i nærområdet:
Saken gjelder Ullevålsveien fra Colletts gate til Ring 2 - Sykkeltrasé. Saksnr. 202207037.
For ytterligere informasjon om ovennevnte saker se: https://innsyn.pbe.oslo.kommune.no/saksinnsyn/main.asp
Utsnitt av plan med tilhørende bestemmelser kan fås ved henvendelse til megler.
Økonomi
Økonomi
Boligens kostnader
Totale felleskostnader er kr 4 693,- per måned. Dette inkluderer blant annet oppvarming med radiatorer, grunnpakke TV/internett, kommunale avgifter, felles bygningsforsikring, trappevask, drift og vedlikehold, honorarer og nedbetaling andel fellesgjeld.
Felleskostnadene justeres normalt en til to ganger årlig i forhold til sameiets faktiske utgifter.
Det tas forbehold om at felleskostnadene kan justeres fortløpende pga. renteøkninger.
Nåværende eier har ikke kunnskap om årlig strømforbruk.
Boligen er tilknyttet Telia som leverandør av TV/internett. TV-tuner/dekoder medfølger ikke.
Utgiftene er basert på nåværende eiers forbruk. Kjøper må selv tegne innboforsikring.
Formuesverdi
Formuesverdi for 2024 var kr 1 334 453,- ifølge Skatteetaten. Beløpet forutsetter at eier bor fast i boligen (primærbolig).
Ved eventuell øvrig bruk av eiendommen (f.eks. fritidsbolig, pendlerbolig, utleieobjekt) var formuesverdien for 2024 kr 5 337 812,-.
Fra 2026 har Stortinget vedtatt en oppdatert modell for beregning av formuesverdi for primærbolig, så avvik kan forekomme.
For mer informasjon se skatteetaten.no
Eiendomsskatt
Det er ikke utskrevet eiendomsskatt for seksjonen pr. d.d.
Opplysninger om fellesgjeld
Andel formue er kr 11 539,- pr. 31.12.2025.
Andel fellesgjeld er kr 6 724,87 pr. 03.02.2026.
Total fellesgjeld for sameiet er kr 123 730,- pr. 03.02.2026 og lånevilkårene er:
Bank: OBOS-banken AS
Lånenummer: 98208004654
Type: Annuitetslån, 12 terminer per år
Innfrielsesdato: 28.02.2027
Type Rente: Flytende rente
Rente: 7,45 %
Omkostninger
5 340 000,00 Prisantydning
6 724,87 Andel av fellesgjeld
--------------------------------------------------------
5 346 724,87 Pris inkl. fellesgjeld
Omkostninger
133 650,00 Dokumentavgift til staten (2,5% av kjøpesum)
9 950,00 Gjensidige Boligkjøperpakke (valgfri)* (valgfritt)
545,00 Tinglysing panterettsdokument
545,00 Tinglysing skjøte
--------------------------------------------------------
134 740,00 Omkostninger totalt (uten Gjensidige Boligkjøperpakke (valgfri))
144 690,00 Omkostninger totalt (med Gjensidige Boligkjøperpakke (valgfri))
--------------------------------------------------------
5 481 464,87 Totalpris inkl. omkostninger
5 491 414,87 Totalpris inkl. omkostninger (med Gjensidige Boligkjøperpakke (valgfri))
--------------------------------------------------------
Leilighetens andel av fellesgjelden vil komme i tillegg til kjøpesummen. Denne gjelden skal ikke innbetales i oppgjøret, men følger leiligheten.
Totalpris inkl. omkostninger forutsetter kjøp til prisantydning.
Det tas forbehold om endringer i avgifter og gebyrer.
Tilbud om lånefinansiering
Megler formidler gjerne kontakt med rådgiver hos vår samarbeidspartner BN Bank. De har konkurransedyktige betingelser samt rask og løsningsorientert behandling av din lånesøknad. Krogsveen mottar et honorar dersom lån opprettes.
Betalingsbetingelser
Kjøpesum inkludert omkostninger, samt pantedokument tilknyttet eventuelt lån, skal være disponibelt hos megler 2 virkedager før overtakelsen.
Annen viktig informasjon
Annen viktig informasjon
Eier
Cathrine Bang Norum
Informasjon om sameiet
Leiligheten er tilknyttet Eugeniesgate 23A Sameie, med sameiebrøk 66/1429.
- Sameiet består av 21 seksjoner.
- Forretningsfører er OBOS Eiendomsforvaltning AS.
- Sameiets side på Vibbo: https://vibbo.no/6412
Dugnad må påregnes.
Informasjon om husdyrhold er ikke funnet i dokumentene for sameiet.
Alle installasjoner på fellesarealene må godkjennes av styret på forhånd.
Sentralfyring er avslått i perioden 1. mai til 1. september.
Fra styrets årsrapport for 2024 (datert mai 2025) og senere møter fremkommer følgende planer:
- Styret jobber med planer for oppgradering av brannvarsling/brannalarm og innhenter tilbud.
- Behovet for generelt vedlikehold av fasade, inkludert vinduer, blir vurdert.
- Etter en rotteobservasjon i kjelleren avventer sameiet en rapport fra Anticimex for å tette sprekker i rør.
- Større investeringer vil bli forelagt et årsmøte eller ekstraordinært årsmøte.
Iht. sameiets vedtekter må kjøper godkjennes av styret som ny sameier. Det er kjøpers ansvar at styregodkjenning blir gitt, men styret kan ikke nekte godkjenning uten saklig grunn. Vi gjør oppmerksom på at det iht. eierseksjonsloven ikke er anledning å erverve mer enn 2 seksjoner i sameiet, her teller også eierskap via firma, nærstående og familie.
Sameiet er ikke tilknyttet en sikringsordning som dekker tap ved manglende innbetaling av felleskostnader. For å sikre oppfyllelse av forpliktelsene har sameiet panterett i hver seksjon med kr 100 000.
Dokumenter for sameiet kan fås ved henvendelse til megler.
Overtakelse
Etter nærmere avtale. Overtakelse kan tidligst skje etter at styrets godkjennelse er avklart.
Boligselgerforsikring
Selger har i forbindelse med salget tegnet Boligselgerforsikring levert av Gjensidige.
Boligselgerforsikringen dekker selgers ansvar etter avhendingsloven begrenset oppad til kr 14 millioner. Dersom kjøper oppdager forhold ved eiendommen som hen mener utgjør en mangel ved eiendommen, vil Gjensidige behandle reklamasjonen på vegne av selger. Forsikringsvilkår kan fås ved henvendelse til megler.
Vedlagt salgsoppgaven følger selgers egenerklæringsskjema og tilstandsrapport. Interessenter må sette seg inn i dokumentene før bud inngis.
Boligkjøperforsikring
Innen kontraktsmøtet må kjøper ta stilling til om det ønskes å bestille Boligkjøperpakken gjennom Gjensidige. I denne gunstige pakken er boligen ferdig forsikret og inkluderer rettshjelpsforsikring, også kalt Boligkjøperforsikring. Rettshjelpsforsikring gir trygghet og tilgang på profesjonell juridisk hjelp dersom det oppdages uventede feil eller mangler det første året etter overtakelse. Forsikringsselskapet behandler i så fall ethvert mangelskrav kjøper måtte ha overfor selger.
Boligkjøperpakken inkluderer bygningsforsikring for hus og hytte, innboforsikring, flytteforsikring og dobbel rentedekning - i situasjoner hvor kjøper ikke får solgt nåværende primærbolig.
Kjøper mottar ingen særskilt faktura for Boligkjøperpakken da kostnaden det første året legges til kjøpesummen for boligen. Det gjøres oppmerksom på Krogsveen mottar et honorar for denne formidlingen.
Produktark for Boligkjøperpakken ligger vedlagt i salgsoppgaven.
Dersom ikke Boligkjøperpakke ønskes kan kun rettshjelpsforsikring, også kalt Boligkjøperforsikring, tegnes særskilt via megler. Rettshjelpsforsikringen varer i 5 år fra overtakelse og leveres gjennom Gjensidige. Ta kontakt med megler for ytterligere informasjon.
Selskap og privatpersoner som driver med kjøp/salg/utvikling som ledd i egen næringsvirksomhet kan ikke tegne Boligkjøperpakke eller rettshjelpsforsikring.
Budgivning
Forbrukerinformasjon om budgivning er vedlagt denne salgsoppgaven og er også på vår hjemmeside Krogsveen.no. Alle bud og budforhøyelser må inngis skriftlig. I tillegg må legitimasjon være fremlagt sammen med signatur fra budgiver.
Vi oppfordrer til å gi bud elektronisk via GI BUD-knappen på eiendommens hjemmeside på Krogsveen.no. Da vil samtlige vilkår bli oppfylt.
Eventuelle forhøyelser eller endringer av budet kan bekreftes pr. SMS eller på e-post. Vi oppfordrer alltid til å kontakte megler pr. telefon i tillegg, da forsinkelser i SMS og e-post kan forekomme.
For at budene skal kunne bli behandlet og videreformidlet skriftlig til alle involverte parter, må alle bud ha en tilstrekkelig lang akseptfrist, jf. eiendomsmeglingsforskriften § 6-3.
Selger må også skriftlig akseptere budet før aksept kan formidles til budgiver. Akseptfrist bør derfor være på minimum 30 minutter, og budforhøyelser må derfor skje i god tid før fristens utløp.
Bud i forbrukerforhold kan uansett ikke settes med kortere frist enn kl. 12.00 første virkedag etter siste annonserte visning. I tillegg kan ikke budet ha forbehold om at det skal holdes hemmelig ovenfor øvrige interessenter. Megler har iht. lov om eiendomsmegling ikke anledning til å videreformidle disse budene, og de vil dermed heller ikke bli journalført.
Etter at eiendommen er solgt vil kjøper og selger få tilsendt budjournal. Øvrige budgivere kan få utlevert kopi av budjournalen i anonymisert form.
Hvitvaskingsreglene
I henhold til lov om hvitvasking og terrorfinansiering har megler plikt til å gjennomføre kontrolltiltak overfor kunder, herunder fullmektiger. Dette innebærer bl.a. å bekrefte kunders og reelle rettighetshaveres identitet på bakgrunn av fremvist gyldig legitimasjon eller på annen godkjent måte, samt å innhente opplysninger om kundeforholdets formål og tilsiktede art.
Dersom slike kundetiltak ikke kan gjennomføres, kan megler ikke etablere kundeforholdet eller utføre transaksjonen.
Hvis kjøper ikke bidrar til gjennomføring av kundekontrollen og dette fører til at transaksjonen blir forsinket eller ikke kan gjennomføres, vil dette ansees som mislighold av avtalen og gi selger rettigheter etter avhendingslova kapittel 5. I tilfeller der selger ikke bidrar til gjennomføring av løpende kundekontroll underveis i oppdraget, er det selger som misligholder sine forpliktelser etter avtalen og gi kjøper rettigheter etter avhendingslovens kapittel 4. Partene er selv ansvarlige for eventuelle kostnader og ansvar dette kan medføre. Eiendomsmegleren eller eiendomsmeglingsforetaket kan ikke holdes ansvarlig for de konsekvenser dette vil kunne få for partene eller andre som har interesser i eiendomshandelen.
Kjøper oppfordres til å innbetale kjøpesummen som ikke kommer fra låneinstitusjon i én samlet innbetaling fra egen konto i norsk bank. Megler har plikt til å melde fra til Økokrim om eiendomshandler som fremstår som mistenkelige. Melding sendes Økokrim uten at partene varsles.
Personopplysningsloven
I henhold til personopplysningsloven gjør vi oppmerksom på at interessenter kan bli registrert for videre oppfølging.
Lovanvendelse
Generelle bestemmelser
Salgsoppgaven er basert på de opplysningene selger har gitt til megler, den bygningssakyndiges tilstandsrapport, samt opplysninger innhentet fra kommunen, Kartverket og andre tilgjengelige kilder. Det er viktig at kjøper setter seg grundig inn i alle salgsdokumentene, herunder salgsoppgave, tilstandsrapport og selgers egenerklæring. Kjøper anses kjent med forhold som er tydelig beskrevet i salgsdokumentene, og slike forhold kan ikke påberopes som mangler. Dette gjelder uavhengig av om kjøper har lest dokumentene. Alle interessenter oppfordres til å undersøke eiendommen nøye, gjerne sammen med fagkyndig før bud inngis. Kjøper som velger å kjøpe usett kan ikke gjøre gjeldende som mangel noe han burde blitt kjent med ved undersøkelsen.
Dersom det er behov for avklaringer, anbefaler vi at interessenter rådfører seg med eiendomsmegler eller egne rådgivere før det legges inn bud.
En bolig som har blitt brukt i en viss tid, har vanligvis blitt utsatt for slitasje og skader kan ha oppstått. Slik bruksslitasje må kjøper regne med, og det kan avdekkes enkelte forhold etter overtakelse som nødvendiggjør utbedringer. Normal slitasje og skader som nødvendiggjør utbedring, er innenfor hva kjøper må forvente og vil ikke utgjøre en mangel.
Kjøper og selgers rettigheter og plikter reguleres av avtalen mellom partene, samt informasjonen som har vært tilgjengelig for kjøperen i forbindelse med handelen. Avtalen utfylles av avhendingsloven, og det gjelder ulike avtalevilkår avhengig av om kjøper er forbrukerkjøper eller ikke. Dette er nærmere beskrevet nedenfor.
På grunn av ulike avtalevilkår kan selger vurdere bud fra en som ikke er forbruker, ulikt fra en forbrukers bud. Dersom kjøper ikke er forbruker, er selger sitt mulige mangelsansvar begrenset fordi eiendommen selges "som den er". Selger kan ikke ta «som den er»- forbehold overfor en forbrukerkjøper. Selv et lavere bud fra en som ikke er forbruker kan foretrekkes fordi begrensningen i mulig mangelsansvar kan ha egenverdi for selger. Selger står fritt til å forkaste eller akseptere ethvert bud, og er for eksempel ikke forpliktet til å akseptere høyeste bud.
Budgiver skal i budskjema avgi egenerklæring om budgiver er forbruker eller næringsdrivende/ person som hovedsakelig handler som ledd i næringsvirksomhet. Budgivere får informasjon dersom andre bud er inngitt av en som ikke er forbruker.
Forbrukerkjøp - definisjon
Med forbrukerkjøp menes kjøp av eiendom når kjøperen er en fysisk person som ikke hovedsakelig handler som ledd i næringsvirksomhet.
Forbruker – avtalevilkår
Eiendommen har en mangel dersom den ikke er i samsvar med kravene som følger av avtalen, eller det foreligger brudd på bestemmelsene i avhendingsloven §§ 3-2 til 3-8. Hvis eiendommen ikke er i samsvar med det kjøperen må kunne forvente ut ifra alder, type og synlig tilstand, kan det være grunnlag for mangelskrav. Det samme gjelder hvis det er holdt tilbake eller gitt uriktige opplysninger om eiendommen. Dette gjelder likevel bare dersom man kan gå ut ifra at det virket inn på avtalen at opplysningen ikke ble gitt eller at mangelskravet ikke blir rettet i tide på en tydelig måte.
Boligen kan ha en mangel etter avhendingsloven § 3-3 andre ledd, dersom det er avvik mellom opplyst og faktisk innvendig areal, forutsatt at avviket er på 2% eller mer og minimum 1 kvm.
Ved beregning av et eventuelt prisavslag eller erstatning må kjøper selv dekke tap/kostnader opptil et beløp på kr 10 000 (egenandel).
Ikke-forbruker (næringsdrivende) – definisjon
Hvis kjøper er en juridisk person, eller en fysisk person som hovedsakelig handler som ledd i næringsvirksomhet, vil kjøpet ikke anses som et forbrukerkjøp.
Ikke-forbruker – avtalevilkår
Eiendommen har en mangel dersom den ikke er i samsvar med kravene som følger av avtalen.
Eiendommen selges «som den er», og selgers ansvar utover det konkret avtalte er da begrenset etter avhendingsloven § 3-9, første ledd andre setning.
Avhendingsloven § 3-3 andre ledd fravikes, og hvorvidt boligens arealsvikt utgjør en mangel vurderes etter avhendingsloven § 3-8.
Informasjon om kjøpers undersøkelsesplikt, herunder oppfordringen om å undersøke eiendommen nøye, gjelder også for kjøpere som ikke anses som forbrukere.
Det forutsettes at hjemmel overføres til kjøper. Hvis kjøper ikke ønsker hjemmelsoverføring av eiendommen, må det tas forbehold om dette i budet.
Meglers vederlag
Meglers vederlag betales av selger og er avtalt til:
Vederlag: 1,00 % av salgssummen inkl. andel fellesgjeld.
Vederlag:
Kontroll av hjemmel og heftelser kr 4 500,00
Markedsføringspakke kr 30 900,00
Oppgjør kr 8 900,00
Tilrettelegging kr 24 900,00
Felles visninger pr. stk. / Overtakelse kr 3 890,00
Utlegg:
Eierskiftegebyr forretningsfører kr 6 725,00
Innhenting av informasjon forretningsfører kr 4 375,00
Innhenting av offentlige opplysninger Oslo kommune kr 132,50
Tinglysing sikring kr 545,00
Andre utgifter:
Boligselgerforsikring Gjensidige kr 27 022,00
Foto kr 6 500,00
Tilstandsrapport leilighet kr 10 750,00
Vi er opptatt av verdiskapning, og har knyttet til oss samarbeidspartnere som skal sikre våre kunder de beste produkter og tjenester;
• I forbindelse med forberedelse av salget, innhenter vi informasjon om eiendommen hovedsakelig fra vår samarbeidspartner Amibita.
• Gjensidige leverer boligselgerforsikring og tilbyr bygningsforsikring.
• Boligkjøperforsikring leveres av Hiscox og med Sedgwick som skadebehandler, og er formidlet gjennom Gjensidige.
• BN bank tilbyr finansieringsløsninger.
• Vår avdeling Krogsveen Pluss tilbyr flyttetjenester som utvask, visningsvask, lager, tømming og transport av flyttelass, i tillegg til å formidle kontakt med Flip for overflateoppussing.
• I forbindelse med overtakelse av eiendommen tilbyr Overo avtale om strøm, alarm og bredbånd.
• Krogsveen er, sammen med øvrige bransjeaktører, medeier i den digitale annonseringsplattformen Hjem som eies av Bomega AS.
Opplysninger om oppdraget
Oppdragsnummer 48-0003/26
Eiendomsmegler Krogsveen AS, avd. Røa
Vækerøveien 193 A, 0751, OSLO
950 007 613
Oppdragets KR-kode KR48.263
Dato
Sist oppdatert: 22. mai 2026 kl. 13:45
Dokumenter
Dokumenter
PDF – 944 KB
PDF – 168 KB
PDF – 194 KB
PDF – 312 KB
PDF – 29 KB
PDF – 127 KB
PDF – 392 KB
Område
Legg til steder som er viktige for deg
Visning
For å delta på visning, ber vi om at du melder deg på. Da sikrer vi at du får nødvendig informasjon og at det er satt av tilstrekkelig med tid. Kontakt megler dersom annet tidspunkt ønskes. Husk å lese salgsoppgaven før visningen, så du stiller forberedt.
Ønsker du kun å bli holdt orientert, kan du fra eiendommens hjemmeside få varsel om solgtpris, eller kontakte megler.
Lurer du på noe?
Unngå doble boligrenter
Vi tilbyr gunstig forsikring.
Vurderer du utleie?
Få et tilbud fra Utleie KrogsveenHva koster lånet?
Sjekk estimert lånekostnadVil du varsles om lignende boliger?
Ved å lagre ditt boligsøk hos oss får du beskjed når vi har en bolig som ligner denne, før den legges ut på markedet!
































